Maison à construire à Saint-Benoît-d'Hébertot (14130)
Images
Description
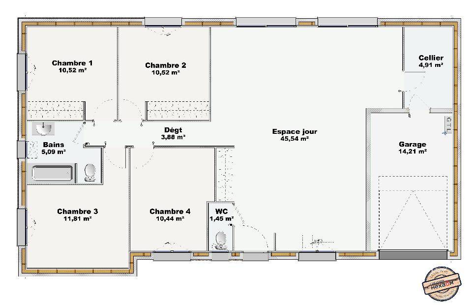
Saint-Benoît-d'Hébertot : maison F5 (104 m²) à vendre
PROCHE DU HAVRE - MAISON 5 PIÈCES NEUVE
En vente : localisée à 13 km de la Manche et à 22 km du Havre, à Saint-Benoît-d'Hébertot (14130), notre agence Extraco construction rénovation Pont-l'Évêque est heureuse de vous proposer cette maison de 5 pièces de plain-pied de 104 m². Son intérieur offre quatre chambres, une cuisine et deux salles de bains.
Le terrain du bien est de 700 m².
La maison est neuve.
Il y a une école primaire dans le quartier. Côté transports en commun, on trouve la gare Pont-l'Évêque à moins de 10 minutes en voiture. Les autoroutes A13, A132 et A29 sont accessibles à moins de 7 km. Il y a deux commerces à proximité.
Son prix de vente est de 270 000 €.
Contactez notre constructeur (Marion PAIN : (Numéro supprimé)) pour toute information sur la maison.
Logement susceptibles de vous intéresser
Nous vous proposons de découvrir aussi cette sélection de logements situés à moins de 10km de Saint-Benoît-d'Hébertot et qui seraient susceptibles de vous intéresser.
Saint-Benoît-d'Hébertot
TERRAIN ET MAISONVENTE : maison F6 (118 m²) à Saint-Benoît-d’HébertotMAISON 6 PIÈCES NEUVE – PROCHE DU HAVREÀ vendre à 13 km de la Manche et à deux pas du Havre, nous sommes heureux de vous proposer cette maison de 6 pièces de 118 m² et de 700 m² de terrain à Saint-Benoît-d’Hébertot (14130). Elle inclut quatre chambres, une cuisine et deux salles de bains.C’est une maison de 2 niveaux. Elle est neuve.Une école primaire est implantée dans le quartier. Niveau transports en commun, on trouve la gare Pont-l’Évêque à moins de 10 minutes en voiture. Les autoroutes A13, A132 et A29 sont accessibles à moins de 7 km. Il y a deux commerces à quelques minutes à peine.Son prix de vente est de 314 000 €.Contactez notre agence (Marion PAIN : (Numéro supprimé)) pour toute information sur cette maison.
Genneville
TERRAINTerrain de 593 m² en vente à GennevilleEMPLACEMENT PRIVILÉGIÉÀ Genneville (14600), imaginez la maison de vos rêves sur ce terrain de 593 m². Dans un secteur recherché, ce terrain bénéficiant d’un emplacement d’exception est proche des commerces et des écoles. L’École Primaire Rene Lecottier est implantée à moins de 10 minutes à pied. Les autoroutes A29 et A13 sont accessibles à moins de 6 km. Il y a une boulangerie dans les environs.Il est proposé à l’achat pour 69 500 €. N’hésitez pas à prendre contact avec Angélique CUVILLIERS (tél : (Numéro supprimé)) pour toute information sur ce terrain.
Genneville
TERRAIN ET MAISONOSSATURE BOIS VENTE d’une maison F3 (65 m²) à GennevilleEMPLACEMENT PRIVILÉGIÉ – MAISON 3 PIÈCES NEUVENous vous présentons à vendre, bénéficiant d’un emplacement privilégié dans Genneville (14600), cette maison de 3 pièces de plain-pied de 65 m².Son intérieur est composé de deux chambres, d’une cuisine et d’une salle de bains. Cette maison est neuve.Le terrain du bien est de 593 m².Le bien est situé dans un secteur attractif. L’École Primaire Rene Lecottier est implantée à moins de 10 minutes à pied. Les autoroutes A29 et A13 sont accessibles à moins de 6 km. Il y a une boulangerie dans les environs.Son prix de vente est de 214 700 €.Contactez Angélique CUVILLIERS (tél : (Numéro supprimé)) pour obtenir de plus amples renseignements sur la maison, sur les démarches à suivre ou sur les modalités de vente. Faites de vos projets immobiliers une réalité avec EXTRACO Construction Rénovation Pont-l’Évêque.
Genneville
TERRAIN ET MAISONMaison F5 (92 m²) en vente à GennevilleEMPLACEMENT PRIVILÉGIÉ – MAISON 5 PIÈCES NEUVEÀ vendre bénéficiant d’un emplacement privilégié dans Genneville (14600), votre agence EXTRACO Construction Rénovation Pont-l’Évêque est ravie de vous proposer cette maison de 5 pièces de plain-pied de 92 m² et de 593 m² de terrain.Son intérieur comporte quatre chambres, une cuisine et une salle de bains. Cette maison est neuve.La maison se trouve dans un quartier prisé. Il y a l’École Primaire Rene Lecottier à moins de 10 minutes à pied. Les autoroutes A29 et A13 sont accessibles à moins de 6 km. On trouve une boulangerie à quelques minutes du logement.Elle est à vendre pour la somme de 224 500 €.Prenez contact avec notre constructeur (CUVILLIERS Angélique : (Numéro supprimé)) pour toute question sur la maison ou sur les modalités de vente. Donnez vie à vos projets immobiliers avec EXTRACO Construction Rénovation Pont-l’Évêque.
Saint-Benoît-d'Hébertot
TERRAINVENTE : terrain de 700 m² à Saint-Benoît-d’HébertotPROCHE DU HAVREÀ Saint-Benoît-d’Hébertot (14130) à vendre à 13 km de la Manche et à deux pas du Havre, imaginez la maison de vos rêves sur ce terrain de 700 m². Ce terrain est proche des commerces et des écoles. Une école primaire est implantée dans le quartier. Niveau transports, il y a la gare Pont-l’Évêque à moins de 10 minutes en voiture. Les autoroutes A13, A132 et A29 sont accessibles à moins de 7 km. On trouve deux commerces à quelques minutes.Il est à vendre pour la somme de 77 500 €. N’hésitez pas à prendre contact avec Marion PAIN (tél : (Numéro supprimé)) pour tout renseignement sur ce terrain. Extraco construction rénovation Pont-l’Évêque est là pour vous accompagner dans toutes vos démarches.
Saint-Benoît-d'Hébertot
TERRAIN ET MAISONMaison T4 (98 m²) à vendre à Saint-Benoît-d’HébertotMAISON 4 PIÈCES NEUVE – PROCHE DU HAVREÀ 13 km de la Manche et à quelques kilomètres du Havre, ayez le coup de coeur pour cette maison de 4 pièces de plain-pied de 98 m² à vendre à Saint-Benoît-d’Hébertot (14130). Conçue de plain-pied, elle se divise en trois chambres, une cuisine et une salle de bains.Le terrain de la maison s’étend sur 700 m².Cette maison est neuve.Une école primaire est implantée dans le quartier. Côté transports, on trouve la gare Pont-l’Évêque à moins de 10 minutes en voiture. Les autoroutes A13, A132 et A29 sont accessibles à moins de 7 km. Il y a deux commerces dans les environs.Elle est proposée à l’achat pour 241 000 €.Prenez contact avec Marion PAIN (tél : (Numéro supprimé)) pour toute question sur cette maison, sur les modalités de vente ou sur les démarches à suivre. Extraco construction rénovation Pont-l’Évêque vous accompagne dans tous vos projets immobiliers et dans toutes vos démarches.
Pont-l'Évêque
TERRAIN ET MAISONMaison de 5 pièces (105 m²) à vendre à Saint-Benoît-d’HébertotEMPLACEMENT PRIVILÉGIÉ – MAISON 5 PIÈCES NEUVEBénéficiant d’un emplacement d’exception dans Saint-Benoît-d’Hébertot (14130), nous vous proposons cette maison de 5 pièces de 105 m² et de 800 m² de terrain.Cette maison possède 2 niveaux. Son intérieur offre quatre chambres, une cuisine et deux salles de bains. Cette maison est neuve.La maison est située dans un quartier prisé. On y trouve une école primaire. Niveau transports, il y a la gare Pont-l’Évêque à moins de 10 minutes en voiture. Les autoroutes A13, A132 et A29 sont accessibles à moins de 7 km. On trouve deux commerces à quelques minutes du bien.Elle est proposée à l’achat pour 254 700 €.Contactez Angélique CUVILLIERS ((Numéro supprimé)) pour tout renseignement sur la maison, sur les modalités de vente ou sur les démarches à suivre. EXTRACO Construction Rénovation Pont-l’Évêque est là pour vous accompagner à toutes les étapes de l’achat.
Pont-l'Évêque
TERRAINVENTE : terrain de 800 m² à Saint-Benoît-d’HébertotEMPLACEMENT PRIVILÉGIÉ Grand terrain à vendre de 800 m², ce terrain se situe bénéficiant d’un emplacement d’exception dans Saint-Benoît-d’Hébertot (14130). Dans un quartier prisé, le terrain est proche des commerces et des écoles. Une école primaire est implantée dans le quartier. Côté transports, on trouve la gare Pont-l’Évêque à moins de 10 minutes en voiture. Les autoroutes A13, A132 et A29 sont accessibles à moins de 7 km. Il y a deux commerces à proximité.Ce terrain est proposé à l’achat pour 82 100 €. Contactez Angélique CUVILLIERS (tél : (Numéro supprimé)) pour toute information sur le terrain ou sur les modalités de vente.
Pont-l'Évêque
TERRAIN ET MAISONVENTE d’une maison de 6 pièces (139 m²) à Saint-Benoît-d’HébertotEMPLACEMENT PRIVILÉGIÉ – MAISON 6 PIÈCES NEUVEEn vente : bénéficiant d’un emplacement privilégié dans Saint-Benoît-d’Hébertot (14130), nous vous présentons cette maison de 6 pièces de 139 m² et de 800 m² de terrain.C’est une maison de 2 niveaux. Elle est composée de quatre chambres, d’une cuisine et de deux salles de bains. Cette maison est neuve.La maison se trouve dans un secteur attractif. On y trouve une école primaire. Niveau transports en commun, il y a la gare Pont-l’Évêque à moins de 10 minutes en voiture. Les autoroutes A13, A132 et A29 sont accessibles à moins de 7 km. On trouve deux commerces dans les environs.Elle est proposée à l’achat pour 349 700 €.Prenez contact avec notre agence (Angélique CUVILLIERS : (Numéro supprimé)) pour obtenir de plus amples informations sur la propriété, sur les démarches à suivre ou sur les modalités de vente. EXTRACO Construction Rénovation Pont-l’Évêque est là pour vous accompagner à toutes les étapes de votre projet.
L’actualité immobilière à Saint-Benoît-d'Hébertot
27/11/2023
02/11/2023
30/10/2023
20/10/2023
16/10/2023
16/10/2023