Maison à construire à Saint-Hymer (14130)
Images
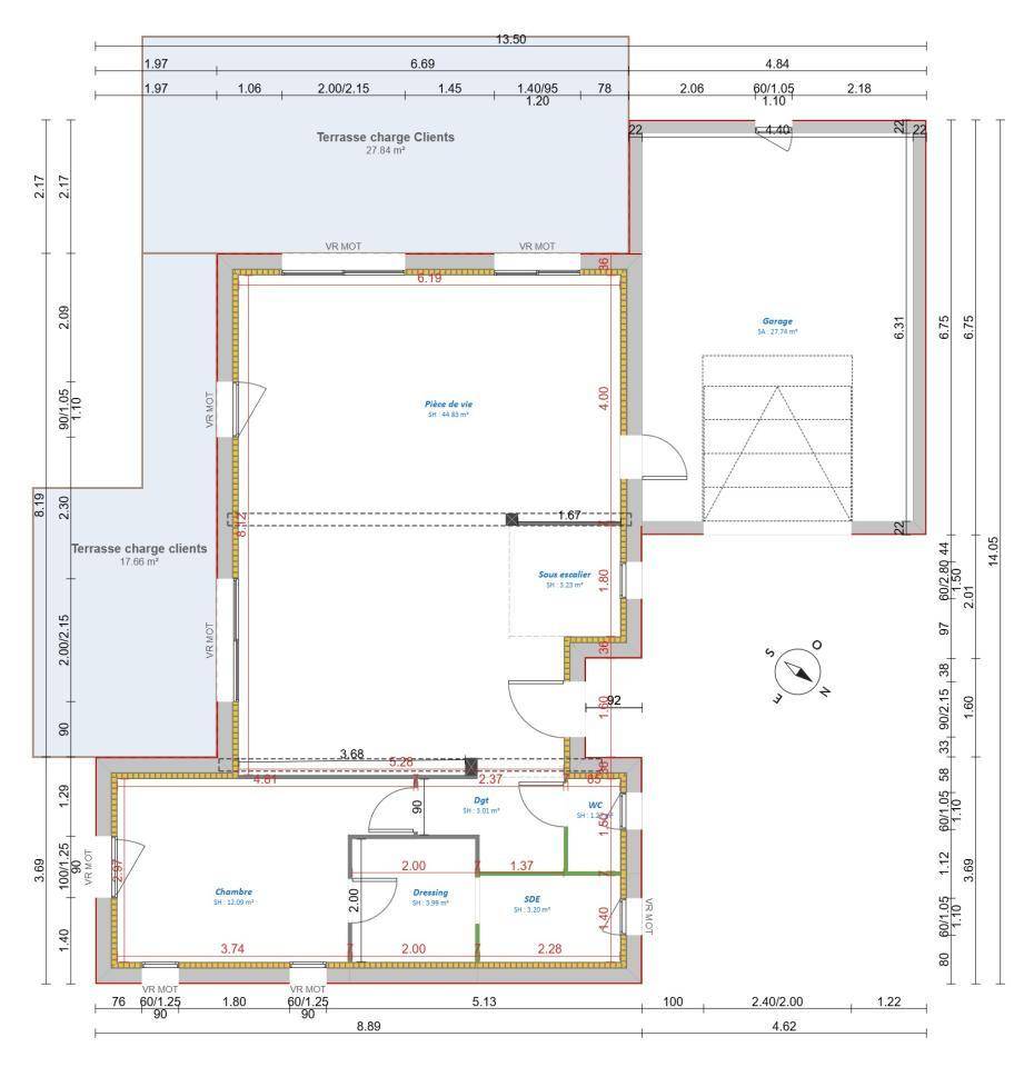
Description
Maisons France Confort vous propose cette maison à étage de 115m² avec un grand garage.
Entrée sur pièce de vie ouverte et lumineuse, une suite parentale avec 4ml de dressing et une salle de bain privée.
A l'étage 3 belle chambres, une salle de bain avec douche et baignoire.
Prestations:
carrelage 45*45
menuiserie anthracite
volet roulant encastrée à la maçonnerie et électrique Somfy
Pompe à chaleur plancher chauffant
Wc suspendu
Pour une étude personnalisée merci de prendre rdv avec Mme Vaudry Angélique (Numéro supprimé)
Logement susceptibles de vous intéresser
Nous vous proposons de découvrir aussi cette sélection de logements situés à moins de 10km de Saint-Hymer et qui seraient susceptibles de vous intéresser.
Bonnebosq
TERRAINVENTE : terrain de 1 458 m² à FormentinIDÉALEMENT SITUÉÀ Formentin (14340), imaginez la maison de vos rêves sur ce terrain de 1 458 m². Tous les types d’écoles (de la maternelle au lycée) sont implantés à moins de 10 minutes en voiture. Côté transports, on trouve les gares Le Grand Jardin et Lisieux à proximité. Il y a un accès à l’autoroute A13 à 8 km. Il y a des tennis, des bibliothèques, un bassin de natation, un bowling, des boulangeries, des commerces, quatre supermarchés, des épiceries et deux supérettes à quelques minutes du bien. Le marché Place de la République a lieu chaque samedi.Il est à vendre pour la somme de 90 000 €. Prenez contact avec Angélique CUVILLIERS ((Numéro supprimé)) pour obtenir de plus amples renseignements sur ce terrain, sur les modalités de vente ou sur les démarches à suivre. EXTRACO Construction Rénovation Pont-l’Évêque vous accompagne à toutes les étapes de votre projet et dans tous vos projets immobiliers.
Le Brévedent
TERRAINLe Brévedent : terrain de 4 125 m² en venteIDÉALEMENT SITUÉAu Brévedent (14130), découvrez ce terrain de 4 125 m². Des établissements scolaires de tous types (de la maternelle au lycée) sont implantés à moins de 10 minutes en voiture. On trouve un accès à l’autoroute A13 à 10 km. On trouve des tennis, une bibliothèque, des commerces, des boulangeries, des supermarchés, deux supérettes et des boucheries-charcuteries à quelques minutes à peine. Ne manquez pas le marché Rue de l’Abbaye tous les vendredis matin.Il est à vendre pour la somme de 127 500 €. Contactez notre agence (Angélique CUVILLIERS : (Numéro supprimé)) pour toute information sur le terrain, sur les démarches à suivre ou sur les modalités de vente. EXTRACO Construction Rénovation Pont-l’Évêque vous accompagne à toutes les étapes de votre projet et dans tous vos projets immobiliers.
Pont-l'Évêque
TERRAINVENTE d’un terrain de 988 m² à Fierville-les-ParcsIDÉALEMENT SITUÉ À Fierville-les-Parcs (14130), projetez la maison de vos rêves sur ce terrain de 988 m². Il y a des établissements scolaires du primaire et du secondaire à moins de 10 minutes en voiture. Côté transports, on trouve la gare Pont-l’Évêque dans les alentours. Les autoroutes A13 et A132 sont accessibles à moins de 6 km. Il y a des tennis, deux bibliothèques, des boulangeries, des commerces, quatre supermarchés, une poissonnerie et quatre boucheries-charcuteries à quelques minutes. Le marché Place Foch anime les environs tous les lundis matin.Il est à vendre pour la somme de 92 000 €. N’hésitez pas à prendre contact avec notre agence (Angélique CUVILLIERS : (Numéro supprimé)) pour plus de renseignements sur ce terrain. EXTRACO Construction Rénovation Pont-l’Évêque est là pour vous accompagner dans toutes vos démarches.
Pont-l'Évêque
TERRAINVENTE d’un terrain de 988 m² à Fierville-les-ParcsIDÉALEMENT SITUÉ À Fierville-les-Parcs (14130), projetez la maison de vos rêves sur ce terrain de 988 m². Il y a des établissements scolaires du primaire et du secondaire à moins de 10 minutes en voiture. Côté transports, on trouve la gare Pont-l’Évêque dans les alentours. Les autoroutes A13 et A132 sont accessibles à moins de 6 km. Il y a des tennis, deux bibliothèques, des boulangeries, des commerces, quatre supermarchés, une poissonnerie et quatre boucheries-charcuteries à quelques minutes. Le marché Place Foch anime les environs tous les lundis matin.Il est à vendre pour la somme de 92 000 €. N’hésitez pas à prendre contact avec notre agence (Angélique CUVILLIERS : (Numéro supprimé)) pour plus de renseignements sur ce terrain. EXTRACO Construction Rénovation Pont-l’Évêque est là pour vous accompagner dans toutes vos démarches.
Pont-l'Évêque
TERRAINSaint-Hymer : terrain de 636 m² à vendreIDÉALEMENT SITUÉ À Saint-Hymer (14130), donnez vie à la maison de vos rêves sur ce terrain de 636 m². On trouve plusieurs établissements scolaires (maternelle, élémentaire, primaire et collège) à moins de 10 minutes en voiture. Côté transports en commun, il y a la gare Pont-l’Évêque à proximité. Les autoroutes A13 et A132 sont accessibles à moins de 5 km. On trouve trois bibliothèques, quatre tennis, des commerces, des boulangeries, quatre supermarchés, des épiceries et une poissonnerie à quelques minutes à peine. Enfin, le marché Place Foch anime le quartier tous les lundis matin.Son prix de vente est de 75 000 €. Contactez Angélique CUVILLIERS (tél : (Numéro supprimé)) pour toute information sur le terrain. EXTRACO Construction Rénovation Pont-l’Évêque est là pour vous accompagner dans toutes vos démarches.
Bonnebosq
TERRAIN ET MAISONOSSATURE BOIS Formentin : maison T5 (113 m²) en venteIDÉALEMENT SITUÉE – MAISON 5 PIÈCES NEUVEEn vente : idéalement située dans Formentin (14340), nous vous présentons cette maison de 5 pièces de plain-pied de 113 m².Conçue de plain-pied, elle offre quatre chambres, une cuisine et deux salles de bains. Cette maison est neuve.Le terrain du bien est de 1 458 m².La maison se trouve dans un quartier prisé. Il y a des écoles (de la maternelle au lycée) à moins de 10 minutes en voiture. Côté transports, on trouve les gares Le Grand Jardin et Lisieux dans un rayon de 10 km. On trouve un accès à l’autoroute A13 à 8 km. Il y a des tennis, des bibliothèques, un bassin de natation, un bowling, des boulangeries, des commerces, quatre supermarchés, trois bureaux de poste et des épiceries dans les environs. Enfin, le marché Place de la République a lieu chaque samedi.Elle est proposée à l’achat pour 299 900 €.Prenez contact avec Angélique CUVILLIERS (tél : (Numéro supprimé)) pour plus de renseignements sur la propriété.
Bonnebosq
TERRAIN ET MAISONVENTE d’une maison T6 (132 m²) à FormentinIDÉALEMENT SITUÉE – MAISON 6 PIÈCES NEUVENous sommes heureux de vous présenter à vendre, idéalement située dans Formentin (14340), cette maison de 6 pièces de 132 m².Il s’agit d’une maison de 2 niveaux. Son intérieur est composé de cinq chambres, d’une cuisine et de deux salles de bains. Cette maison est neuve.Le terrain du bien s’étend sur 1 458 m².La maison se trouve dans un secteur attractif. Il y a tous les types d’écoles à moins de 10 minutes en voiture. Côté transports, on trouve les gares Le Grand Jardin et Lisieux dans les environs. On trouve un accès à l’autoroute A13 à 8 km. Il y a des tennis, des bibliothèques, un bassin de natation, un bowling, des boulangeries, des commerces, quatre supermarchés, des épiceries et trois bureaux de poste à proximité. Ne manquez pas le marché Place de la République chaque samedi.Elle est à vendre pour la somme de 309 900 €.Prenez contact avec notre agence (CUVILLIERS Angélique : (Numéro supprimé)) pour toute information sur le bien, sur les modalités de vente et sur les démarches à suivre.
Bonnebosq
TERRAIN ET MAISONFormentin : maison F4 (98 m²) à vendreIDÉALEMENT SITUÉE – MAISON 4 PIÈCES NEUVENous sommes ravis de vous présenter cette maison de 4 pièces de plain-pied de 98 m² et de 1 458 m² de terrain idéalement située dans Formentin (14340).Conçue de plain-pied, elle comporte trois chambres, une cuisine et une salle de bains. Cette maison est neuve.Cette maison se trouve dans un quartier prisé. Tous les types d’écoles (maternelle, élémentaire et secondaire) sont implantés à moins de 10 minutes en voiture. Côté transports en commun, il y a deux gares (Le Grand Jardin et Lisieux) dans un rayon de 10 km. On trouve un accès à l’autoroute A13 à 8 km. On trouve des tennis, des bibliothèques, un bassin de natation, un bowling, des boulangeries, des commerces, quatre supermarchés, des épiceries et des boucheries-charcuteries dans les environs. Enfin, le marché Place de la République anime le quartier tous les samedis.Elle est à vendre pour la somme de 255 700 €.Contactez Angélique CUVILLIERS ((Numéro supprimé)) pour toute information sur la propriété, sur les démarches à suivre ou sur les modalités de vente. EXTRACO Construction Rénovation Pont-l’Évêque vous accompagne dans tous vos projets immobiliers et à toutes les étapes de votre projet.
Bonnebosq
TERRAIN ET MAISONVENTE d’une maison de 5 pièces (92 m²) à FormentinIDÉALEMENT SITUÉE – MAISON 5 PIÈCES NEUVEÀ vendre : idéalement située dans Formentin (14340), nous sommes heureux de vous proposer cette maison de 5 pièces de plain-pied de 92 m².Son intérieur inclut quatre chambres, une cuisine et une salle de bains. La maison est neuve.Le terrain du bien est de 1 458 m².La maison est située dans un secteur attractif. Il y a tous les types d’établissements scolaires (maternelle, élémentaire et secondaire) à moins de 10 minutes en voiture. Niveau transports en commun, on trouve deux gares (Le Grand Jardin et Lisieux) à proximité. L’autoroute A13 est accessible à 8 km. Il y a des tennis, des bibliothèques, un bassin de natation, un bowling, des boulangeries, des commerces, quatre supermarchés, des boucheries-charcuteries et des épiceries à quelques minutes à peine. Enfin, le marché Place de la République anime les environs tous les samedis.Elle est proposée à l’achat pour 244 500 €.N’hésitez pas à prendre contact avec notre agence (Angélique CUVILLIERS : (Numéro supprimé)) pour obtenir de plus amples informations sur la propriété.
L’actualité immobilière à Saint-Hymer
27/11/2023
02/11/2023
30/10/2023
20/10/2023
16/10/2023
16/10/2023