Maison à construire à Saint-Manvieu-Norrey (14740)
Images
Description
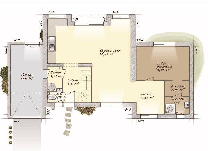
Saint-Manvieu-Norrey : maison de 6 pièces (90 m²) à vendre
PROCHE DE CAEN - MAISON 6 PIÈCES NEUVE
En vente à 18 km de la mer et à 9 km du centre-ville de Caen, venez découvrir à Saint-Manvieu-Norrey (14740), cette maison de 6 pièces de 90 m² et de 360 m² de terrain.
C'est une maison de 2 niveaux. Elle est composée de quatre chambres, d'une cuisine et de deux salles de bains. Cette maison est neuve.
Quatre établissements scolaires sont implantés à moins de 10 minutes à pied. Côté transports, la commune est desservie par les transports scolaires. On trouve les gares Bretteville-Norrey, Saint-Germain-en-Laye Bel-Air-Fourqueux T13 et Audrieu à moins de 10 minutes en voiture. L'autoroute A84 et les nationales N13 et N814 sont accessibles à moins de 6 km.
Il y a une boulangerie, un commerce et un supermarché à proximité.
Elle est à vendre pour la somme de 359 900 €.
Contactez notre agence (UCENDO Sophie : (Numéro supprimé)) pour tout renseignement sur la maison, sur les modalités de vente ou sur les démarches à suivre. Faites de vos projets immobiliers une réalité avec Maisons Balency Caen.
Logement susceptibles de vous intéresser
Nous vous proposons de découvrir aussi cette sélection de logements situés à moins de 10km de Saint-Manvieu-Norrey et qui seraient susceptibles de vous intéresser.
Thue et Mue
TERRAINVente Terrain 750m² Martragny (14740 – Moulin en Bessin)Chez Romain Propriétés Privées – Rare à la vente – Proche de toutes commodités.Terrain de 750m2, idéalement situé, hors lotissement.Ce dernier offre une belle opportunité pour votre projet de construction.Ce terrain est non viabilisé. Réseaux accessibles en bordure de rue.Opportunité idéale pour un projet de construction individuelle ou un investissement immobilier.Je vous propose ce terrain constructible au prix de 90 000.00 euros HAI dont 5,88% d’honoraires à charge acquéreur soit 85 000.00 euros net vendeur.Pour visiter et vous accompagner dans votre projet, contactez Romain MARIE, au (Numéro supprimé) ou, par courriel à (Email supprimé).Selon l’article L.561.5 du Code Monétaire et Financier, pour l’organisation de la visite, la présentation d’une pièce d’identité vous sera demandée.Cette présente annonce a été rédigée sous la responsabilité éditoriale de Romain MARIE agissant sous le statut d’agent commercial immatriculé au RSAC CAEN 888 838 166 auprès de SAS PROPRIETES PRIVEES, au capital de 44 920 euros, ZAC LE CHÊNE FERRÉ – 44 ALLÉE DES CINQ CONTINENTS 44120 VERTOU; SIRET 487 624 777 00040, RCS Nantes. Carte Professionnelle Transactions sur immeubles et fonds de commerce (T) et Gestion immobilière (G) n°CPI 4401 2016 000 010 388 délivrée par la CCI Nantes – Saint Nazaire. Compte séquestre n(Numéro supprimé)67 BPA SAINT-SEBASTIEN-SUR-LOIRE (44230). Garantie GALIAN-SMABTP – 89 rue de la Boétie, 75008 Paris – n°28137 J pour 2 000 000 euros pour T et 120 000 euros pour G. Assurance responsabilité civile professionnelle par GALIAN-SMABTP n° de police 28137.JMandat réf : 405182 – Le professionnel garantit et sécurise votre projet immobilier. (5.88 % honoraires TTC à la charge de l’acquéreur.) Romain MARIE (EI) Agent Commercial – Numéro RSAC : CAEN 888 838 166 – .
Thaon
TERRAINCaen NORDVENTE d’un terrain de 314 m² 517m² à ThaonEMPLACEMENT PRIVILÉGIÉ – PROCHE DE CAEN et LA MERA Thaon (14610), terrain de 314 m² à 517 m². Chaque terrain a été pensé par rapport à l’orientation. Ce petit lotissement se situe dans un secteur recherché. L’École Primaire Yvonne Guégan se trouve à moins de 10 minutes à pied. Nous vous proposons des terrains allant de 73 500 € jusqu’à 115000€. Reste encore quelques opportunités, venez vite pour choisir votre terrain. Contactez Séverine CHATARD ((Numéro supprimé)) pour toute question sur ce terrain, sur les modalités de vente ou sur les démarches à suivre.
Thaon
TERRAINThaon : terrain de 433 m² à vendreEMPLACEMENT PRIVILÉGIÉ – PROCHE DE CAENÀ Thaon (14610) en vente à 10 km de la Mer et à quelques kilomètres de Caen, découvrez ce terrain de 433 m². Il profite d’une vue sur rue. Dans un quartier recherché, le terrain bénéficiant d’un emplacement privilégié est proche des écoles et des commerces. Il y a l’École Primaire Yvonne Guégan à moins de 10 minutes à pied. Il y a un tennis, une boulangerie et une épicerie à quelques minutes.Ce terrain est proposé à l’achat pour 102 000 €. Contactez Séverine CHATARD (tél : (Numéro supprimé)) pour toute question sur le terrain ou sur les démarches à suivre.
Thaon
TERRAIN ET MAISONA THAONEMPLACEMENT PRIVILÉGIÉ – PROCHE DE CAEN et LA MER – 10 min de Caen et 10 min de la mer A Thaon (14610), dans un petit lotissement se situant dans un secteur recherché, proche de toutes commodités.Nous vous proposons une Maison de plain pied de 80m² – 3 chambres et un garage entièrement sur mesure, avec un espace de vie de 40m².Vous recherchez une maison de plain de pied, fonctionnelle, avec toutes les nouvelles normes, contactez Séverine CHATARD au (Numéro supprimé), Séverine saura vous conseiller et vous proposer la maison idéale pour vous.
Thaon
TERRAIN ET MAISONA THAONEMPLACEMENT PRIVILÉGIÉ – PROCHE DE CAEN et LA MER – 10 min de Caen et 10 min de la mer A Thaon (14610), dans un petit lotissement se situant dans un secteur recherché, proche de toutes commodités.Nous vous proposons une Maison de plain pied de 93m² – 3 chambres et un garage entièrement sur mesure, avec un espace de vie de 45m², chambre parentale avec dressing et SDE, une salle de bain indépendante, 2 autres chambres, un cellier et un garage.Vous recherchez une maison de plain de pied, fonctionnelle, avec toutes les nouvelles normes, contactez Séverine CHATARD au (Numéro supprimé), Séverine saura vous conseiller et vous proposer la maison idéale pour vous.
Thaon
TERRAIN ET MAISONVENTE d’une maison de 5 pièces (80 m²) à ThaonEMPLACEMENT PRIVILÉGIÉ – MAISON 5 PIÈCES NEUVEÀ 10 km de la Mer et à 10 km de Caen, venez découvrir à vendre, bénéficiant d’un emplacement d’exception dans Thaon (14610), cette maison de 5 pièces de 80 m² et de 314 m² de terrain. Son intérieur comporte trois chambres, une cuisine et une salle de bains.Cette maison compte 2 niveaux. Elle est neuve.Cette maison est située dans un secteur convoité. On trouve l’École Primaire Yvonne Guégan à moins de 10 minutes à pied. un supermarché, une boulangerie et une épicerie à proximité de la maison.Elle est proposée à l’achat pour 236 500 €.Contactez notre agence (CHATARD Séverine : (Numéro supprimé)) pour toute question sur la maison ou sur les démarches à suivre.
Thaon
TERRAIN ET MAISONThaon : maison T6 (105 m²) en venteEMPLACEMENT PRIVILÉGIÉ – MAISON 6 PIÈCES NEUVEÀ vendre à 10 km de la Mer et à deux pas de Caen, Maisons France Confort Caen vous propose cette maison de 6 pièces de 105 m² bénéficiant d’un emplacement d’exception dans Thaon (14610). Elle compte quatre chambres, une cuisine et deux salles de bains.Le terrain du bien est de 314 m².Il s’agit d’une maison de 2 niveaux. Elle est neuve.Cette maison se trouve dans un quartier prisé. L’École Primaire Yvonne Guégan est implantée à moins de 10 minutes à pied. On trouve un tennis, une boulangerie et un supermarché, des services de restauration, etc, dans les environs.Son prix de vente est de 290 500 €.Contactez notre agence (CHATARD Séverine : (Numéro supprimé)) pour toute information sur la maison, sur les modalités de vente ou sur les démarches à suivre. Concrétisez vos projets immobiliers avec Maisons France Confort Caen.
Thaon
TERRAIN ET MAISONVENTE d’une maison de 7 pièces (120 m²) à ThaonEMPLACEMENT PRIVILÉGIÉ – MAISON 7 PIÈCES NEUVEÀ vendre à 10 km de la Mer et à deux pas de Caen, bénéficiant d’un emplacement privilégié dans Thaon (14610), ayez le coup de coeur pour cette maison de 7 pièces de 120 m².Cette maison possède 2 niveaux. Elle inclut quatre chambres, une cuisine et deux salles de bains. Cette maison est neuve.Le terrain du bien s’étend sur 433 m².La maison se trouve dans un quartier attractif. Il y a l’École Primaire Yvonne Guégan à moins de 10 minutes à pied. Niveau transports, les bus. Il y a un tennis, une boulangerie et une épicerie à proximité.Son prix de vente est de 367 000 €.Prenez contact avec Séverine CHATARD (tél : (Numéro supprimé)) pour plus de renseignements sur la maison. Maisons France Confort Caen est là pour vous accompagner à toutes les étapes de l’achat.
Thaon
TERRAIN ET MAISONThaon : maison de 6 pièces (125 m²) à vendreEMPLACEMENT PRIVILÉGIÉ – MAISON 6 PIÈCES NEUVEÀ 10 km de la Mer et à deux pas de Caen, Maisons France Confort Caen vous propose à vendre, bénéficiant d’un emplacement privilégié dans Thaon (14610), cette maison de 6 pièces de 125 m². Son intérieur compte quatre chambres, une cuisine et deux salles de bains.Le terrain du bien est de 433 m².Cette maison possède 2 niveaux. Elle est neuve.Cette maison est située dans un secteur convoité. L’École Primaire Yvonne Guégan se trouve à moins de 10 minutes à pied. Côté transports en commun, il y a les bus. On trouve un tennis, une boulangerie et une épicerie à quelques minutes de la maison.Elle est à vendre pour la somme de 340 000 €.Contactez Séverine CHATARD (tél : (Numéro supprimé)) pour obtenir de plus amples renseignements sur le bien, sur les démarches à suivre et sur les modalités de vente.
L’actualité immobilière à Saint-Manvieu-Norrey
27/11/2023
02/11/2023
30/10/2023
20/10/2023
16/10/2023
16/10/2023