Maison à construire à Saint-Vigor-le-Grand (14400)
Images
Description
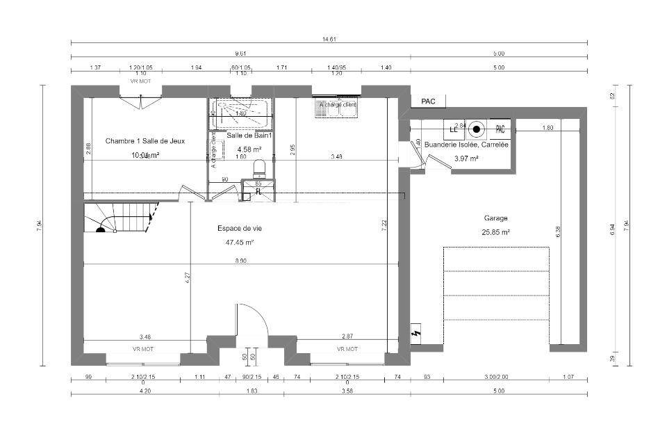
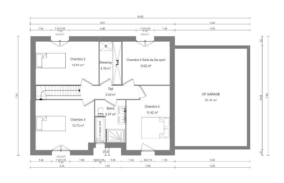
VENTE d'une maison de 7 pièces (120 m²) à Bayeux
PROCHE DE CAEN - MAISON 7 PIÈCES NEUVE
À 9 km de la Manche et à 26 km de Caen, en vente à Bayeux (14400), découvrez cette maison de 7 pièces de 120 m². Son intérieur inclut cinq chambres, une cuisine et deux salles de bains.
Le terrain de la propriété est de 301 m².
Cette maison possède 2 niveaux. Elle est neuve.
Des établissements scolaires du primaire et du secondaire sont implantés à moins de 10 minutes à pied, tout comme une structure d'accueil pour les enfants en bas âge. Niveau transports, il y a la gare Bayeux dans les alentours. On trouve un accès à la nationale N13 à 3 km. On trouve une bibliothèque, des commerces, des boulangeries, un supermarché, des boucheries-charcuteries et un bureau de poste à quelques minutes à peine. 2 marchés animent le quartier.
Son prix de vente est de 256 000 €.
N'hésitez pas à prendre contact avec Emilie HUE (tél : (Numéro supprimé)) pour plus d'informations sur cette maison, sur les modalités de vente ou sur les démarches à suivre. Maisons France Confort Bayeux est là pour vous accompagner à toutes les étapes de l'achat.
Annonce proposée par un Agent Commercial Partenaire.
Logement susceptibles de vous intéresser
Nous vous proposons de découvrir aussi cette sélection de logements situés à moins de 10km de Saint-Vigor-le-Grand et qui seraient susceptibles de vous intéresser.
Le Manoir
TERRAIN ET MAISONVENTE d’une maison F6 (110 m²) à BayeuxPROCHE DE CAEN – MAISON 6 PIÈCES NEUVEEn vente : localisée à 9 km de la Manche et à 26 km de Caen, Maisons France Confort Bayeux vous propose cette maison de 6 pièces de 110 m² à Bayeux (14400). Son intérieur comporte quatre chambres, une cuisine et deux salles de bains.Le terrain de la maison s’étend sur 301 m².Cette maison compte 2 niveaux. Elle est neuve.On trouve des écoles (de la maternelle au lycée) à moins de 10 minutes à pied, tout comme une crèche. Niveau transports en commun, il y a la gare Bayeux à quelques pas du bien. On trouve un accès à la nationale N13 à 3 km. On trouve une bibliothèque, des commerces, des boulangeries, un supermarché, des boucheries-charcuteries et une supérette à proximité. 2 marchés animent le quartier.Elle est à vendre pour la somme de 221 000 €.Prenez contact avec notre agence (HUE Emilie : (Numéro supprimé)) pour tout renseignement sur cette maison. Maisons France Confort Bayeux vous accompagne à toutes les étapes de l’achat et dans tous vos projets immobiliers.Annonce proposée par un Agent Commercial Partenaire.
Le Manoir
TERRAIN ET MAISONVENTE : maison T5 (90 m²) à BayeuxPROCHE DE CAEN – MAISON 5 PIÈCES NEUVEÀ vendre : à 9 km de la Manche et à deux pas de Caen, Maisons France Confort Bayeux vous présente cette maison de 5 pièces de 90 m² à Bayeux (14400). Son intérieur propose quatre chambres, une cuisine et deux salles de bains.Le terrain de la propriété est de 301 m².Cette maison comporte 2 niveaux. Elle est neuve.Il y a tous les types d’écoles (maternelle, élémentaire et secondaire) à moins de 10 minutes à pied, tout comme une structure d’accueil pour les tout-petits. Niveau transports en commun, on trouve la gare Bayeux dans un rayon de 1 km. Il y a un accès à la nationale N13 à 3 km. Il y a une bibliothèque, des commerces, des boulangeries, un supermarché, une supérette et des boucheries-charcuteries à quelques minutes à peine. 2 marchés animent le quartier.Elle est proposée à l’achat pour 206 000 €.Contactez notre agence (HUE Emilie : (Numéro supprimé)) pour toute question sur la maison.Annonce proposée par un Agent Commercial Partenaire.
Le Manoir
TERRAIN ET MAISONBayeux : maison de 5 pièces (85 m²) en venteMAISON 5 PIÈCES NEUVE – PROCHE DE CAENÀ vendre à 9 km de la Manche et à quelques kilomètres de Caen, à Bayeux (14400), notre agence Maisons France Confort Bayeux est heureuse de vous proposer cette maison de 5 pièces de 85 m².Cette maison possède 2 niveaux. Elle compte trois chambres, une cuisine et une salle de bains. Cette maison est neuve.Le terrain du bien s’étend sur 301 m².Des écoles (de la maternelle au lycée) se trouvent à moins de 10 minutes à pied, tout comme une crèche. Côté transports en commun, il y a la gare Bayeux à proximité. Il y a un accès à la nationale N13 à 3 km. On trouve une bibliothèque, des commerces, des boulangeries, un supermarché, une supérette et trois épiceries dans les environs. 2 marchés animent les environs.Elle est à vendre pour la somme de 201 000 €.N’hésitez pas à prendre contact avec notre constructeur (Emilie HUE : (Numéro supprimé)) pour plus d’informations sur la maison, sur les démarches à suivre ou sur les modalités de vente. Maisons France Confort Bayeux est là pour vous accompagner à toutes les étapes de l’achat.Annonce proposée par un Agent Commercial Partenaire.
Bayeux
TERRAIN ET MAISONBayeux : maison de 5 pièces (110 m²) à vendrePROCHE DE CAEN – MAISON 5 PIÈCES NEUVEÀ 9 km de la Manche et à quelques kilomètres de Caen, nous sommes heureux de vous présenter cette maison de 5 pièces de plain-pied de 110 m² et de 303 m² de terrain à Bayeux (14400). Conçue de plain-pied, elle comporte trois chambres, une cuisine et deux salles de bains.La maison est neuve.On trouve des établissements scolaires de tous types à moins de 10 minutes à pied, tout comme une structure d’accueil pour les tout-petits. Niveau transports en commun, il y a la gare Bayeux dans un rayon de 1 km. La nationale N13 est accessible à 3 km. On trouve une bibliothèque, des commerces, des boulangeries, un supermarché, un bureau de poste et une supérette à proximité du bien. 2 marchés animent les environs.Elle est proposée à l’achat pour 256 000 €.N’hésitez pas à prendre contact avec notre agence (Emilie HUE : (Numéro supprimé)) pour tout renseignement sur cette maison. Faites de vos projets immobiliers une réalité avec Maisons France Confort Bayeux.Annonce proposée par un Agent Commercial Partenaire.
Bayeux
TERRAIN ET MAISONVENTE d’une maison de 5 pièces (110 m²) à BayeuxPROCHE DE CAEN – MAISON 5 PIÈCES NEUVEÀ 9 km de la Manche et à quelques kilomètres de Caen, en vente à Bayeux (14400), nous vous proposons cette maison de 5 pièces de plain-pied de 110 m² et de 303 m² de terrain.Conçue de plain-pied, elle offre trois chambres, une cuisine et une salle de bains. Cette maison est neuve.Il y a tous les types d’établissements scolaires (maternelle, élémentaire et secondaire) à moins de 10 minutes à pied, tout comme une structure d’accueil pour les enfants en bas âge. Côté transports, on trouve la gare Bayeux juste à côté. Il y a un accès à la nationale N13 à 3 km. Il y a une bibliothèque, des commerces, des boulangeries, un supermarché, un bureau de poste et trois épiceries dans les environs. Enfin, 2 marchés animent le quartier.Elle est proposée à l’achat pour 256 000 €.Contactez Emilie HUE (tél : (Numéro supprimé)) pour toute question sur la maison, sur les démarches à suivre ou sur les modalités de vente. Concrétisez vos projets immobiliers avec Maisons France Confort Bayeux.Annonce proposée par un Agent Commercial Partenaire.
Bayeux
TERRAIN ET MAISONBayeux : maison T5 (85 m²) à vendreMAISON 5 PIÈCES NEUVE – PROCHE DE CAENEn vente à 9 km de la Manche et à 26 km de Caen, nous vous présentons cette maison de 5 pièces de plain-pied de 85 m² et de 303 m² de terrain à Bayeux (14400).Conçue de plain-pied, elle compte trois chambres, une cuisine et une salle de bains. La maison est neuve.Des écoles de tous niveaux sont implantées à moins de 10 minutes à pied, tout comme une crèche. Niveau transports, on trouve la gare Bayeux juste à côté. On trouve un accès à la nationale N13 à 3 km. Il y a une bibliothèque, des commerces, des boulangeries, un supermarché, des boucheries-charcuteries et un bureau de poste dans les environs. Enfin, 2 marchés animent les environs.Son prix de vente est de 201 000 €.Prenez contact avec Emilie HUE ((Numéro supprimé)) pour toute information sur cette maison, sur les modalités de vente ou sur les démarches à suivre.Annonce proposée par un Agent Commercial Partenaire.
Bayeux
TERRAIN ET MAISONMaison T5 (95 m²) en vente à BayeuxPROCHE DE CAEN – MAISON 5 PIÈCES NEUVEEn vente à 9 km de la Manche et à quelques kilomètres de Caen, laissez vous charmer par cette maison de 5 pièces de plain-pied de 95 m² et de 303 m² de terrain à Bayeux (14400).Son intérieur comporte trois chambres, une cuisine et deux salles de bains. La maison est neuve.Il y a des écoles du primaire et du secondaire à moins de 10 minutes à pied, tout comme une crèche. Niveau transports, on trouve la gare Bayeux dans un rayon de 1 km. La nationale N13 est accessible à 3 km. Il y a une bibliothèque, des commerces, des boulangeries, un supermarché, une supérette et des boucheries-charcuteries à proximité du bien. Enfin, 2 marchés animent les environs.Elle est proposée à l’achat pour 211 000 €.Contactez Emilie HUE (tél : (Numéro supprimé)) pour toute question sur cette maison. Maisons France Confort Bayeux est là pour vous accompagner à toutes les étapes de votre projet.Annonce proposée par un Agent Commercial Partenaire.
Bayeux
TERRAIN ET MAISONVENTE : maison de 7 pièces (120 m²) à BayeuxPROCHE DE CAEN – MAISON 7 PIÈCES NEUVEÀ 9 km de la Manche et à deux pas de Caen, nous sommes heureux de vous proposer à vendre à Bayeux (14400), cette maison de 7 pièces de 120 m² et de 303 m² de terrain.Il s’agit d’une maison de 2 niveaux. Son intérieur est composé de cinq chambres, d’une cuisine et de deux salles de bains. Cette maison est neuve.Des établissements scolaires de tous niveaux (de la maternelle au lycée) se trouvent à moins de 10 minutes à pied, tout comme une structure d’accueil pour les enfants en bas âge. Niveau transports en commun, il y a la gare Bayeux à proximité. On trouve un accès à la nationale N13 à 3 km. On trouve une bibliothèque, des commerces, des boulangeries, un supermarché, un bureau de poste et une supérette dans les environs. 2 marchés animent les environs.Il est proposé à l’achat pour 256 000 €.Prenez contact avec notre agence (Emilie HUE : (Numéro supprimé)) pour tout renseignement sur la maison, sur les démarches à suivre ou sur les modalités de vente. Maisons France Confort Bayeux est là pour vous accompagner à toutes les étapes de l’achat.Annonce proposée par un Agent Commercial Partenaire.
Bayeux
TERRAIN ET MAISONVENTE d’une maison de 6 pièces (140 m²) à BayeuxMAISON 6 PIÈCES NEUVE – PROCHE DE CAENEn vente : localisée à 9 km de la Manche et à quelques kilomètres de Caen, à Bayeux (14400), nous vous proposons cette maison de 6 pièces de 140 m². Son intérieur est composé de quatre chambres, d’une cuisine et de deux salles de bains.Le terrain du bien s’étend sur 303 m².Cette maison possède 2 niveaux. Elle est neuve.Il y a des écoles de tous niveaux à moins de 10 minutes à pied, tout comme une structure d’accueil pour les enfants en bas âge. Niveau transports en commun, on trouve la gare Bayeux à proximité. La nationale N13 est accessible à 3 km. Il y a une bibliothèque, des commerces, des boulangeries, un supermarché, une supérette et trois épiceries dans les environs. Enfin, 2 marchés animent le quartier.Son prix de vente est de 286 000 €.Contactez notre agence (Emilie HUE : (Numéro supprimé)) pour plus de renseignements sur la maison et sur les modalités de vente.Annonce proposée par un Agent Commercial Partenaire.
L’actualité immobilière à Saint-Vigor-le-Grand
27/11/2023
02/11/2023
30/10/2023
20/10/2023
16/10/2023
16/10/2023