Maison à construire à Sainte-Croix-sur-Mer (14480)
Images
Description
VENTE d'une maison de 6 pièces (140 m²) à Creully
IDÉALEMENT SITUÉE - MAISON 6 PIÈCES NEUVE
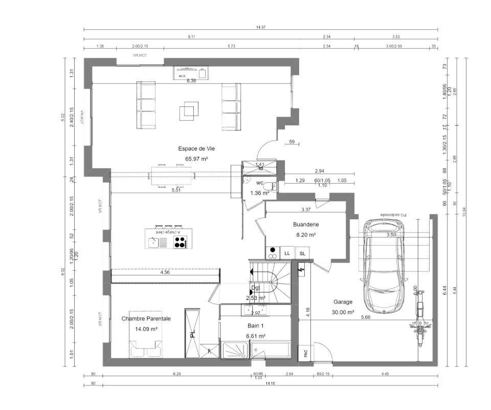
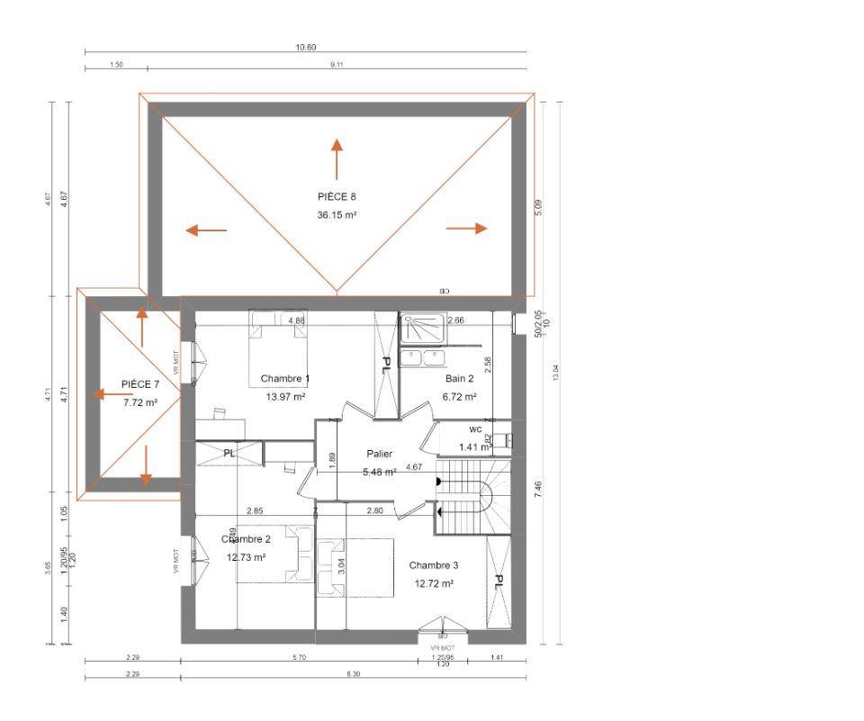
En vente à 8 km de la Manche et à deux pas de Caen, nous sommes heureux de vous proposer cette maison de 6 pièces de 140 m² idéalement située dans Creully (14480).
Cette maison compte 2 niveaux. Son intérieur dispose de quatre chambres, d'une cuisine et de deux salles de bains. La maison est neuve.
Le terrain du bien s'étend sur 445 m².
Ce bien se situe dans un secteur recherché. On trouve des écoles de tous niveaux à moins de 10 minutes à pied et dont l'Institut Agricole Privé Lemonnier-Site de Saint Gabriel Brécy et le Collège Jean de la Varende. Niveau transports en commun, il y a les gares Audrieu et Bretteville-Norrey à moins de 10 minutes en voiture. La nationale N13 est accessible à 7 km. On trouve une bibliothèque, deux boulangeries, quatre commerces, une supérette et un bureau de poste à quelques minutes à peine.
Son prix de vente est de 305 000 €.
Contactez Emilie HUE ((Numéro supprimé)) pour tout renseignement sur la maison ou sur les démarches à suivre. Maisons France Confort Bayeux vous accompagne dans tous vos projets immobiliers et à toutes les étapes de l'achat.
Annonce proposée par un Agent Commercial Partenaire.
Logement susceptibles de vous intéresser
Nous vous proposons de découvrir aussi cette sélection de logements situés à moins de 10km de Sainte-Croix-sur-Mer et qui seraient susceptibles de vous intéresser.
Moulins-en-Bessin
TERRAIN ET MAISONMaison T5 (85 m²) à vendre à Saint-Manvieu-NorreyIdéalement située – Maison neuve 5 pièces à vendre à Saint-Manvieu-Norrey (14740) avec 2 niveaux, une surface de 85 m² sur un terrain de 321 m². Son intérieur comporte trois chambres, une cuisine et une salle de bains.À proximité : gares (Bretteville-Norrey, Saint-Germain-en-Laye Bel-Air-Fourqueux T13 et Audrieu), établissements scolaires, boulangerie, commerce et supermarché. Autoroute A84 et nationales N13 et N814 à 6 km. Caen à 9 km.Cette maison de 5 pièces est proposée à l’achat pour 217 000 €.Prenez contact avec Emilie HUE (tél : (Numéro supprimé)) pour obtenir de plus amples informations sur la maison. Donnez vie à vos projets immobiliers avec Maisons France Confort Bayeux.Annonce proposée par un Agent Commercial Partenaire.
Vienne-en-Bessin
TERRAIN ET MAISONVENTE d’une maison F6 (91 m²) à BayeuxMAISON 6 PIÈCES NEUVE – PROCHE DE CAENEn vente : à 9 km de la Manche et à quelques kilomètres de Caen, à Bayeux (14400), nous vous proposons cette maison de 6 pièces de 91 m² et de 301 m² de terrain.Cette maison possède 2 niveaux. Elle se divise en quatre chambres, une cuisine et une salle de bains. La maison est neuve.Il y a des écoles (de la maternelle au lycée) à moins de 10 minutes à pied, tout comme une crèche. Côté transports, on trouve la gare Bayeux à quelques pas de la maison. La nationale N13 est accessible à 3 km. Il y a une bibliothèque, des commerces, des boulangeries, un supermarché, trois épiceries et un bureau de poste à proximité du bien. 2 marchés animent le quartier.Elle est à vendre pour la somme de 221 000 €.Prenez contact avec Emilie HUE (tél : (Numéro supprimé)) pour obtenir de plus amples informations sur le bien ou sur les démarches à suivre.Annonce proposée par un Agent Commercial Partenaire.
Moulins-en-Bessin
TERRAIN ET MAISONVENTE : maison T6 (130 m²) à Saint-Manvieu-NorreyIdéalement située – À Saint-Manvieu-Norrey (14740), maison neuve en vente de 6 pièces, 2 niveaux, 130 m² et 321 m² de terrain. Elle est composée de quatre chambres, d’une cuisine et de deux salles de bains.À dix minutes : gares (Bretteville-Norrey, Saint-Germain-en-Laye Bel-Air-Fourqueux T13 et Audrieu), établissements scolaires, boulangerie, commerce et supermarché. Autoroute A84 et nationales N13 et N814 à 6 km. Caen à 9 km.Le prix de vente de cette maison de 6 pièces est de 352 000 €.N’hésitez pas à prendre contact avec notre agence (Emilie HUE : (Numéro supprimé)) pour plus d’informations sur la maison ou sur les démarches à suivre. Maisons France Confort Bayeux vous accompagne dans tous vos projets immobiliers et à toutes les étapes de l’achat.Annonce proposée par un Agent Commercial Partenaire.
Moulins-en-Bessin
TERRAIN ET MAISONVENTE : maison de 5 pièces (85 m²) à Saint-Manvieu-NorreyIdéalement située – À découvrir à Saint-Manvieu-Norrey (14740) : maison neuve 5 pièces à vendre, 85 m² sur 321 m² de terrain. Son intérieur dispose de trois chambres, d’une cuisine et d’une salle de bains.À proximité : gares (Bretteville-Norrey, Saint-Germain-en-Laye Bel-Air-Fourqueux T13 et Audrieu), établissements scolaires, boulangerie, commerce et supermarché. Accès autoroute A84 et nationales N13 et N814 à 6 km. Caen à 9 km.Cette maison de 5 pièces est à vendre pour la somme de 217 000 €.Contactez Emilie HUE ((Numéro supprimé)) pour obtenir de plus amples informations sur la maison, sur les modalités de vente ou sur les démarches à suivre. Maisons France Confort Bayeux vous accompagne à toutes les étapes de l’achat et dans tous vos projets immobiliers.Annonce proposée par un Agent Commercial Partenaire.
Moulins-en-Bessin
TERRAIN ET MAISONSaint-Manvieu-Norrey : maison de 5 pièces (110 m²) en venteIdéalement située – À découvrir à Saint-Manvieu-Norrey (14740) : maison neuve 5 pièces à vendre. Surface de 110 m² sur 321 m² de terrain. Son intérieur se divise en trois chambres, une cuisine et une salle de bains.À dix minutes : gares (Bretteville-Norrey, Saint-Germain-en-Laye Bel-Air-Fourqueux T13 et Audrieu), établissements scolaires, boulangerie, commerce et supermarché. Autoroute A84 et nationales N13 et N814 à 6 km. Caen à 9 km.Le prix de vente de cette maison de 5 pièces est de 272 000 €.Contactez notre agence (HUE Emilie : (Numéro supprimé)) pour obtenir de plus amples informations sur la maison ou sur les modalités de vente. Maisons France Confort Bayeux est là pour vous accompagner dans toutes vos démarches.Annonce proposée par un Agent Commercial Partenaire.
Moulins-en-Bessin
TERRAINVENTE d’un terrain de 321 m² à Saint-Manvieu-NorreyIdéalement situé – À quelques minutes des écoles et commerces, terrain de 321 m² en vente à Saint-Manvieu-Norrey (14740).À dix minutes : gares (Bretteville-Norrey, Saint-Germain-en-Laye Bel-Air-Fourqueux T13 et Audrieu), établissements scolaires, boulangerie, commerce et supermarché. Autoroute A84 et nationales N13 et N814 accessibles à 6 km. Proche Caen.Son prix de vente est de 72 000 €. Contactez Emilie HUE ((Numéro supprimé)) pour tout renseignement sur le terrain. Maisons France Confort Bayeux est là pour vous accompagner dans tous vos projets immobiliers.Annonce proposée par un Agent Commercial Partenaire.
Moulins-en-Bessin
TERRAIN ET MAISONVENTE : maison de 7 pièces (124 m²) à Saint-Manvieu-NorreyIdéalement située – Maison neuve 7 pièces à vendre à Saint-Manvieu-Norrey (14740) avec 2 niveaux, une surface de 124 m² sur un terrain de 321 m². Son intérieur se divise en cinq chambres, une cuisine et trois salles de bains.À dix minutes : gares (Bretteville-Norrey, Saint-Germain-en-Laye Bel-Air-Fourqueux T13 et Audrieu), établissements scolaires, boulangerie, commerce et supermarché. Autoroute A84 et nationales N13 et N814 accessibles à 6 km. Caen à 9 km.Le prix de vente de cette maison de 7 pièces est de 262 000 €.Contactez Emilie HUE ((Numéro supprimé)) pour toute information sur la maison, sur les modalités de vente ou sur les démarches à suivre.Annonce proposée par un Agent Commercial Partenaire.
Moulins-en-Bessin
TERRAIN ET MAISONSaint-Manvieu-Norrey : maison T7 (102 m²) à vendreIdéalement située – À Saint-Manvieu-Norrey (14740), maison neuve à vendre de 7 pièces, 2 niveaux, 102 m² sur 321 m² de terrain. Elle offre cinq chambres, une cuisine et deux salles de bains.Proche gares (Bretteville-Norrey, Saint-Germain-en-Laye Bel-Air-Fourqueux T13 et Audrieu), établissements scolaires, boulangerie, commerce et supermarché. Autoroute A84 et nationales N13 et N814 accessibles à 6 km. Caen à 9 km.Cette maison de 7 pièces est à vendre pour la somme de 242 000 €.Prenez contact avec notre agence (Emilie HUE : (Numéro supprimé)) pour tout renseignement sur la maison ou sur les modalités de vente. Donnez vie à vos projets immobiliers avec Maisons France Confort Bayeux.Annonce proposée par un Agent Commercial Partenaire.
Moulins-en-Bessin
TERRAIN ET MAISONSaint-Manvieu-Norrey : maison de 5 pièces (95 m²) en venteIdéalement située – Maison neuve 5 pièces en vente à Saint-Manvieu-Norrey (14740) avec une surface de 95 m² et de 321 m² de terrain. Elle propose trois chambres, une cuisine et deux salles de bains.À proximité : gares (Bretteville-Norrey, Saint-Germain-en-Laye Bel-Air-Fourqueux T13 et Audrieu), établissements scolaires, boulangerie, commerce et supermarché. Autoroute A84 et nationales N13 et N814 accessibles à 6 km. Caen à 9 km.Le prix de vente de cette maison de 5 pièces est de 227 000 €.Contactez notre agence (HUE Emilie : (Numéro supprimé)) pour tout renseignement sur la maison. Donnez vie à vos projets immobiliers avec Maisons France Confort Bayeux.Annonce proposée par un Agent Commercial Partenaire.
L’actualité immobilière à Sainte-Croix-sur-Mer
27/11/2023
02/11/2023
30/10/2023
20/10/2023
16/10/2023
16/10/2023