Maison à construire à Bretteville-l'Orgueilleuse (14740)
Images
Description
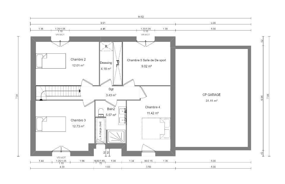
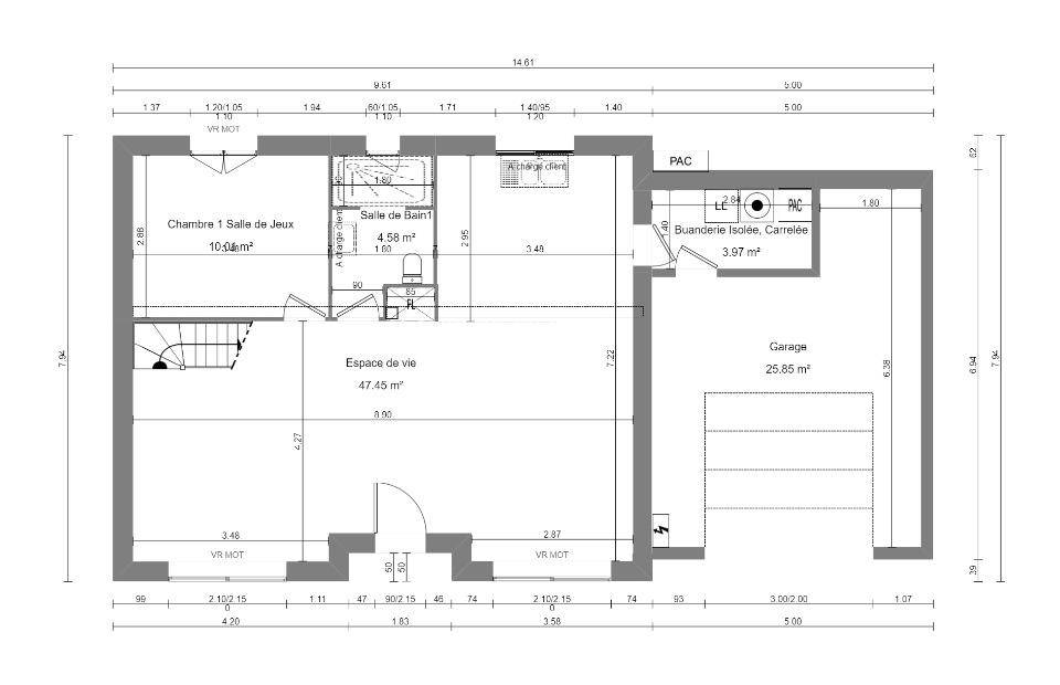
VENTE d'une maison de 7 pièces (120 m²) à Bretteville-l'Orgueilleuse
IDÉALEMENT SITUÉE - MAISON 7 PIÈCES NEUVE
En vente : à 15 km de la Manche et à quelques kilomètres de Caen, nous vous présentons cette maison de 7 pièces de 120 m² idéalement située dans Bretteville-l'Orgueilleuse (14740).
Cette maison possède 2 niveaux. Elle compte cinq chambres, une cuisine et deux salles de bains. Cette maison est neuve.
Le terrain de la propriété est de 108 m².
Cette maison est située dans un quartier attractif. L'École Maternelle les Lilas et l'École Élémentaire les Coquelicots sont implantées à moins de 10 minutes à pied. Niveau transports en commun, il y a la gare Bretteville-Norrey à quelques pas du bien. La nationale N13 est accessible à 1 km. On trouve un tennis, une bibliothèque, trois commerces, des boulangeries, un supermarché, un bureau de poste et une boucherie-charcuterie à proximité.
Elle est à vendre pour la somme de 279 000 €.
N'hésitez pas à prendre contact avec Emilie HUE (tél : (Numéro supprimé)) pour toute information sur la maison et sur les démarches à suivre. Concrétisez vos projets immobiliers avec Maisons France Confort Bayeux.
Annonce proposée par un Agent Commercial Partenaire.
Logement susceptibles de vous intéresser
Nous vous proposons de découvrir aussi cette sélection de logements situés à moins de 10km de Thue et Mue et qui seraient susceptibles de vous intéresser.
Thue et Mue
TERRAINVente Terrain 750m² Martragny (14740 – Moulin en Bessin)Chez Romain Propriétés Privées – Rare à la vente – Proche de toutes commodités.Terrain de 750m2, idéalement situé, hors lotissement.Ce dernier offre une belle opportunité pour votre projet de construction.Ce terrain est non viabilisé. Réseaux accessibles en bordure de rue.Opportunité idéale pour un projet de construction individuelle ou un investissement immobilier.Je vous propose ce terrain constructible au prix de 90 000.00 euros HAI dont 5,88% d’honoraires à charge acquéreur soit 85 000.00 euros net vendeur.Pour visiter et vous accompagner dans votre projet, contactez Romain MARIE, au (Numéro supprimé) ou, par courriel à (Email supprimé).Selon l’article L.561.5 du Code Monétaire et Financier, pour l’organisation de la visite, la présentation d’une pièce d’identité vous sera demandée.Cette présente annonce a été rédigée sous la responsabilité éditoriale de Romain MARIE agissant sous le statut d’agent commercial immatriculé au RSAC CAEN 888 838 166 auprès de SAS PROPRIETES PRIVEES, au capital de 44 920 euros, ZAC LE CHÊNE FERRÉ – 44 ALLÉE DES CINQ CONTINENTS 44120 VERTOU; SIRET 487 624 777 00040, RCS Nantes. Carte Professionnelle Transactions sur immeubles et fonds de commerce (T) et Gestion immobilière (G) n°CPI 4401 2016 000 010 388 délivrée par la CCI Nantes – Saint Nazaire. Compte séquestre n(Numéro supprimé)67 BPA SAINT-SEBASTIEN-SUR-LOIRE (44230). Garantie GALIAN-SMABTP – 89 rue de la Boétie, 75008 Paris – n°28137 J pour 2 000 000 euros pour T et 120 000 euros pour G. Assurance responsabilité civile professionnelle par GALIAN-SMABTP n° de police 28137.JMandat réf : 405182 – Le professionnel garantit et sécurise votre projet immobilier. (5.88 % honoraires TTC à la charge de l’acquéreur.) Romain MARIE (EI) Agent Commercial – Numéro RSAC : CAEN 888 838 166 – .
Nonant
TERRAIN ET MAISONVENTE : maison de 5 pièces (110 m²) à BayeuxPROCHE DE CAEN – MAISON 5 PIÈCES NEUVEÀ vendre : localisée à 9 km de la Manche et à quelques kilomètres de Caen, nous vous présentons cette maison de 5 pièces de plain-pied de 110 m² à Bayeux (14400).Son intérieur inclut trois chambres, une cuisine et deux salles de bains. Cette maison est neuve.Le terrain du bien s’étend sur 301 m².Tous les types d’écoles sont implantés à moins de 10 minutes à pied, tout comme une crèche. Niveau transports en commun, on trouve la gare Bayeux à proximité. Il y a un accès à la nationale N13 à 3 km. Il y a une bibliothèque, des commerces, des boulangeries, un supermarché, une supérette et des boucheries-charcuteries à quelques minutes. 2 marchés animent le quartier.Elle est à vendre pour la somme de 256 000 €.Contactez notre agence (HUE Emilie : (Numéro supprimé)) pour obtenir de plus amples informations sur la maison. Maisons France Confort Bayeux est là pour vous accompagner dans toutes vos démarches.Annonce proposée par un Agent Commercial Partenaire.
Nonant
TERRAIN ET MAISONBayeux : maison F5 (110 m²) en ventePROCHE DE CAEN – MAISON 5 PIÈCES NEUVEÀ 9 km de la Manche et à 26 km de Caen, nous vous présentons à vendre à Bayeux (14400), cette maison de 5 pièces de plain-pied de 110 m² et de 301 m² de terrain. Conçue de plain-pied, elle offre trois chambres, une cuisine et une salle de bains.Cette maison est neuve.Il y a des établissements scolaires (de la maternelle au lycée) à moins de 10 minutes à pied, tout comme une structure d’accueil pour les enfants en bas âge. Niveau transports en commun, on trouve la gare Bayeux juste à côté. Il y a un accès à la nationale N13 à 3 km. Il y a une bibliothèque, des commerces, des boulangeries, un supermarché, un bureau de poste et trois épiceries à quelques minutes de la maison. 2 marchés animent les environs.Elle est proposée à l’achat pour 256 000 €.Contactez notre agence (Emilie HUE : (Numéro supprimé)) pour toute question sur la maison.Annonce proposée par un Agent Commercial Partenaire.
Nonant
TERRAIN ET MAISONVENTE : maison de 5 pièces (85 m²) à BayeuxMAISON 5 PIÈCES NEUVE – PROCHE DE CAENÀ vendre : située à 9 km de la Manche et à deux pas de Caen, à Bayeux (14400), votre agence Maisons France Confort Bayeux est heureuse de vous proposer cette maison de 5 pièces de plain-pied de 85 m² et de 301 m² de terrain. Son intérieur propose trois chambres, une cuisine et une salle de bains.La maison est neuve.Il y a des établissements scolaires du primaire et du secondaire à moins de 10 minutes à pied, tout comme une structure d’accueil pour les enfants en bas âge. Niveau transports en commun, on trouve la gare Bayeux à quelques pas du bien. On trouve un accès à la nationale N13 à 3 km. Il y a une bibliothèque, des commerces, des boulangeries, un supermarché, des boucheries-charcuteries et un bureau de poste à quelques minutes à peine. Enfin, 2 marchés animent le quartier.Elle est proposée à l’achat pour 201 000 €.Contactez notre agence (Emilie HUE : (Numéro supprimé)) pour toute information sur cette maison. Maisons France Confort Bayeux est là pour vous accompagner dans tous vos projets immobiliers.Annonce proposée par un Agent Commercial Partenaire.
Nonant
TERRAIN ET MAISONMaison de 5 pièces (95 m²) en vente à BayeuxPROCHE DE CAEN – MAISON 5 PIÈCES NEUVEÀ 9 km de la Manche et à 26 km de Caen, nous sommes heureux de vous présenter cette maison de 5 pièces de plain-pied de 95 m² et de 301 m² de terrain à Bayeux (14400).Elle dispose de trois chambres, d’une cuisine et de deux salles de bains. La maison est neuve.Des écoles (de la maternelle au lycée) sont implantées à moins de 10 minutes à pied, tout comme une crèche. Niveau transports, il y a la gare Bayeux dans un rayon de 1 km. La nationale N13 est accessible à 3 km. On trouve une bibliothèque, des commerces, des boulangeries, un supermarché, une supérette et des boucheries-charcuteries à proximité. Enfin, 2 marchés animent le quartier.Elle est proposée à l’achat pour 211 000 €.Contactez Emilie HUE (tél : (Numéro supprimé)) pour tout renseignement sur cette propriété, sur les démarches à suivre ou sur les modalités de vente.Annonce proposée par un Agent Commercial Partenaire.
Nonant
TERRAIN ET MAISONMaison T7 (120 m²) en vente à BayeuxPROCHE DE CAEN – MAISON 7 PIÈCES NEUVEÀ 9 km de la Manche et à quelques kilomètres de Caen, découvrez à vendre à Bayeux (14400), cette maison de 7 pièces de 120 m² et de 301 m² de terrain. Son intérieur compte cinq chambres, une cuisine et deux salles de bains.Il s’agit d’une maison de 2 niveaux. Elle est neuve.Il y a des établissements scolaires (de la maternelle au lycée) à moins de 10 minutes à pied, tout comme une crèche. Côté transports en commun, on trouve la gare Bayeux dans un rayon de 1 km. La nationale N13 est accessible à 3 km. Il y a une bibliothèque, des commerces, des boulangeries, un supermarché, un bureau de poste et des boucheries-charcuteries à proximité. Enfin, 2 marchés animent le quartier.Elle est proposée à l’achat pour 256 000 €.Prenez contact avec Emilie HUE (tél : (Numéro supprimé)) pour tout renseignement sur cette maison, sur les démarches à suivre ou sur les modalités de vente. Maisons France Confort Bayeux vous accompagne dans tous vos projets immobiliers et dans toutes vos démarches.Annonce proposée par un Agent Commercial Partenaire.
Nonant
TERRAIN ET MAISONMaison F6 (140 m²) en vente à BayeuxPROCHE DE CAEN – MAISON 6 PIÈCES NEUVEEn vente à 9 km de la Manche et à quelques kilomètres de Caen, découvrez à Bayeux (14400), cette maison de 6 pièces de 140 m².Cette maison possède 2 niveaux. Elle compte quatre chambres, une cuisine et deux salles de bains. La maison est neuve.Le terrain du bien est de 301 m².On trouve des écoles de tous niveaux à moins de 10 minutes à pied, tout comme une crèche. Niveau transports en commun, il y a la gare Bayeux juste à côté. On trouve un accès à la nationale N13 à 3 km. On trouve une bibliothèque, des commerces, des boulangeries, un supermarché, trois épiceries et des boucheries-charcuteries à proximité. 2 marchés animent le quartier.Son prix de vente est de 286 000 €.Contactez Emilie HUE (tél : (Numéro supprimé)) pour toute information sur cette maison ou sur les démarches à suivre. Faites de vos projets immobiliers une réalité avec Maisons France Confort Bayeux.Annonce proposée par un Agent Commercial Partenaire.
Nonant
TERRAIN ET MAISONMaison F6 (130 m²) à vendre à BayeuxPROCHE DE CAEN – MAISON 6 PIÈCES NEUVEÀ vendre : à 9 km de la Manche et à 26 km de Caen, à Bayeux (14400), notre agence Maisons France Confort Bayeux est heureuse de vous proposer cette maison de 6 pièces de 130 m² et de 301 m² de terrain. Son intérieur propose quatre chambres, une cuisine et deux salles de bains.Il s’agit d’une maison de 2 niveaux. Elle est neuve.Il y a des écoles de tous types à moins de 10 minutes à pied, tout comme une structure d’accueil pour les enfants en bas âge. Côté transports, on trouve la gare Bayeux juste à côté. La nationale N13 est accessible à 3 km. Il y a une bibliothèque, des commerces, des boulangeries, un supermarché, un bureau de poste et trois épiceries dans les environs. 2 marchés animent les environs.Son prix de vente est de 336 000 €.Contactez Emilie HUE (tél : (Numéro supprimé)) pour toute information sur la maison. Maisons France Confort Bayeux est là pour vous accompagner dans tous vos projets immobiliers.Annonce proposée par un Agent Commercial Partenaire.
Nonant
TERRAIN ET MAISONVENTE : maison F6 (110 m²) à BayeuxPROCHE DE CAEN – MAISON 6 PIÈCES NEUVEÀ vendre : à 9 km de la Manche et à deux pas de Caen, nous sommes heureux de vous présenter à Bayeux (14400), cette maison de 6 pièces de 110 m².Cette maison compte 2 niveaux. Elle est composée de quatre chambres, d’une cuisine et de deux salles de bains. La maison est neuve.Le terrain du bien est de 301 m².Des écoles (de la maternelle au lycée) sont implantées à moins de 10 minutes à pied, tout comme une structure d’accueil pour la petite enfance. Niveau transports en commun, il y a la gare Bayeux dans les environs. Il y a un accès à la nationale N13 à 3 km. On trouve une bibliothèque, des commerces, des boulangeries, un supermarché, des boucheries-charcuteries et une supérette à quelques minutes à peine. Enfin, 2 marchés animent les environs.Il est à vendre pour la somme de 221 000 €.Contactez Emilie HUE (tél : (Numéro supprimé)) pour toute question sur la maison, sur les démarches à suivre ou sur les modalités de vente. Maisons France Confort Bayeux est là pour vous accompagner à toutes les étapes de votre projet.Annonce proposée par un Agent Commercial Partenaire.
L’actualité immobilière à Thue et Mue
27/11/2023
02/11/2023
30/10/2023
20/10/2023
16/10/2023
16/10/2023