Maison à construire à Tourville-en-Auge (14130)
Images
Description
Tourville-en-Auge : maison F5 (120 m²) en vente
PROCHE DU HAVRE - MAISON 5 PIÈCES NEUVE
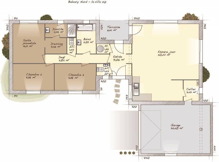
À vendre : localisée à 4 km de Pont-l'Evêque et 12 km des plages de Deauville Trouville, votre agence Maisons Balency Caen est ravie de vous présenter cette maison de 5 pièces de plain-pied de 120 m² et de 2 090 m² de terrain à Tourville-en-Auge (14130). Conçue de plain-pied, elle inclut trois chambres, une cuisine et deux salles de bains.
Cette maison est à construire.
Située à moins de 5 minutes en voitures des commerces et des écoles. Un lac d'activités et de baignade se trouve à 5 minutes.
Gares de Pont-L'Evêque et de Deauville dans un rayon de 10 km.
Les autoroutes A132, A13 et A29 sont accessibles à moins de 6 km.
Son prix de vente est de 438 900 €.
Contactez Sophie UCENDO (tél : (Numéro supprimé)) pour toute question sur la maison. Maisons Balency Caen vous accompagne dans tous vos projets immobiliers et dans toutes vos démarches.
Logement susceptibles de vous intéresser
Nous vous proposons de découvrir aussi cette sélection de logements situés à moins de 10km de Tourville-en-Auge et qui seraient susceptibles de vous intéresser.
Trouville-sur-Mer
TERRAINVENTE : terrain de 586 m² à Trouville-sur-MerIDÉALEMENT SITUÉ – PROCHE DU HAVREÀ vendre à Trouville-sur-Mer (14360), grand terrain. Il est prêt à accueillir votre projet immobilier pour toute la famille. Dans un secteur recherché, le terrain idéalement situé est proche des commerces et des écoles. L’École Élémentaire Privée Jeanne d’Arc, le Lycée Général Privé Marie-Joseph et le Collège Privé Marie-Joseph sont implantés à moins de 10 minutes à pied. Côté transports, on trouve les gares Trouville-Deauville, Blonville-sur-Mer-Benerville et Villers-sur-Mer à moins de 10 minutes en voiture. Les autoroutes A29 et A132 sont accessibles à moins de 10 km. Il y a une bibliothèque à quelques minutes de la propriété.Ce terrain est à vendre pour la somme de 270 000 €. N’hésitez pas à prendre contact avec notre agence (Angélique CUVILLIERS : (Numéro supprimé)) pour toute information sur le terrain, sur les démarches à suivre ou sur les modalités de vente. Concrétisez vos projets immobiliers avec EXTRACO Construction Rénovation Pont-l’Évêque.
Trouville-sur-Mer
TERRAINVENTE : terrain de 1 304 m² à Trouville-sur-MerEMPLACEMENT PRIVILÉGIÉ À Trouville-sur-Mer (14360), grand terrain. Il est prêt à accueillir la maison de vos rêves pour toute la famille. Dans un secteur recherché, le terrain bénéficiant d’un emplacement privilégié est proche des commerces et des écoles. L’École Élémentaire Privée Jeanne d’Arc, le Lycée Général Privé Marie-Joseph et le Collège Privé Marie-Joseph se trouvent à moins de 10 minutes à pied. Niveau transports, il y a trois gares (Trouville-Deauville, Blonville-sur-Mer-Benerville et Villers-sur-Mer) à moins de 10 minutes en voiture. Les autoroutes A29 et A132 sont accessibles à moins de 10 km. On trouve une bibliothèque dans les environs.Ce terrain est à vendre pour la somme de 526 300 €. Contactez notre agence (CUVILLIERS Angélique : (Numéro supprimé)) pour toute information sur le terrain ou sur les démarches à suivre. EXTRACO Construction Rénovation Pont-l’Évêque est là pour vous accompagner dans tous vos projets immobiliers.
Pont-l'Évêque
TERRAINVENTE d’un terrain de 988 m² à Fierville-les-ParcsIDÉALEMENT SITUÉ À Fierville-les-Parcs (14130), projetez la maison de vos rêves sur ce terrain de 988 m². Il y a des établissements scolaires du primaire et du secondaire à moins de 10 minutes en voiture. Côté transports, on trouve la gare Pont-l’Évêque dans les alentours. Les autoroutes A13 et A132 sont accessibles à moins de 6 km. Il y a des tennis, deux bibliothèques, des boulangeries, des commerces, quatre supermarchés, une poissonnerie et quatre boucheries-charcuteries à quelques minutes. Le marché Place Foch anime les environs tous les lundis matin.Il est à vendre pour la somme de 92 000 €. N’hésitez pas à prendre contact avec notre agence (Angélique CUVILLIERS : (Numéro supprimé)) pour plus de renseignements sur ce terrain. EXTRACO Construction Rénovation Pont-l’Évêque est là pour vous accompagner dans toutes vos démarches.
Pont-l'Évêque
TERRAINVENTE d’un terrain de 988 m² à Fierville-les-ParcsIDÉALEMENT SITUÉ À Fierville-les-Parcs (14130), projetez la maison de vos rêves sur ce terrain de 988 m². Il y a des établissements scolaires du primaire et du secondaire à moins de 10 minutes en voiture. Côté transports, on trouve la gare Pont-l’Évêque dans les alentours. Les autoroutes A13 et A132 sont accessibles à moins de 6 km. Il y a des tennis, deux bibliothèques, des boulangeries, des commerces, quatre supermarchés, une poissonnerie et quatre boucheries-charcuteries à quelques minutes. Le marché Place Foch anime les environs tous les lundis matin.Il est à vendre pour la somme de 92 000 €. N’hésitez pas à prendre contact avec notre agence (Angélique CUVILLIERS : (Numéro supprimé)) pour plus de renseignements sur ce terrain. EXTRACO Construction Rénovation Pont-l’Évêque est là pour vous accompagner dans toutes vos démarches.
Pont-l'Évêque
TERRAINSaint-Hymer : terrain de 636 m² à vendreIDÉALEMENT SITUÉ À Saint-Hymer (14130), donnez vie à la maison de vos rêves sur ce terrain de 636 m². On trouve plusieurs établissements scolaires (maternelle, élémentaire, primaire et collège) à moins de 10 minutes en voiture. Côté transports en commun, il y a la gare Pont-l’Évêque à proximité. Les autoroutes A13 et A132 sont accessibles à moins de 5 km. On trouve trois bibliothèques, quatre tennis, des commerces, des boulangeries, quatre supermarchés, des épiceries et une poissonnerie à quelques minutes à peine. Enfin, le marché Place Foch anime le quartier tous les lundis matin.Son prix de vente est de 75 000 €. Contactez Angélique CUVILLIERS (tél : (Numéro supprimé)) pour toute information sur le terrain. EXTRACO Construction Rénovation Pont-l’Évêque est là pour vous accompagner dans toutes vos démarches.
Quetteville
TERRAINProche Quetteville : terrain de 800 m² à vendreIDÉALEMENT SITUÉ – VUE DÉGAGÉEProche Quetteville (14130), grand terrain. Réalisez-y la maison de vos rêves. Il profite d’une vue dégagée. Il y a l’École Élémentaire Jean Macé à moins de 10 minutes à pied. Les autoroutes A13, A29 et A132 sont accessibles à moins de 10 km.Son prix de vente est de 49 900 €. Contactez Angélique CUVILLIERS (tél : (Numéro supprimé)) pour toute information sur ce terrain. EXTRACO Construction Rénovation Pont-l’Évêque vous accompagne à toutes les étapes de votre projet et dans toutes vos démarches.
Trouville-sur-Mer
TERRAIN ET MAISONOSSATURE BOIS VENTE d’une maison T4 (120 m²) à Trouville-sur-MerIDÉALEMENT SITUÉE – MAISON 4 PIÈCES NEUVEEXTRACO Construction Rénovation Pont-l’Évêque vous présente, idéalement située dans Trouville-sur-Mer (14360), cette maison de 4 pièces de plain-pied de 120 m² et de 586 m² de terrain.Son intérieur propose trois chambres, une cuisine et deux salles de bains. Cette maison est neuve.La maison est située dans un secteur prisé. On trouve l’École Élémentaire Privée Jeanne d’Arc, le Lycée Général Privé Marie-Joseph et le Collège Privé Marie-Joseph à moins de 10 minutes à pied. Niveau transports, il y a les gares Trouville-Deauville, Blonville-sur-Mer-Benerville et Villers-sur-Mer à moins de 10 minutes en voiture. Les autoroutes A29 et A132 sont accessibles à moins de 10 km. On trouve une bibliothèque à quelques minutes.Elle est proposée à l’achat pour 509 800 €.Contactez notre agence (CUVILLIERS Angélique : (Numéro supprimé)) pour plus de renseignements sur la maison. EXTRACO Construction Rénovation Pont-l’Évêque vous accompagne à toutes les étapes de l’achat et dans tous vos projets immobiliers.
Trouville-sur-Mer
TERRAIN ET MAISONVENTE d’une maison de 5 pièces (147 m²) à Trouville-sur-MerIDÉALEMENT SITUÉE – MAISON 5 PIÈCES NEUVEIdéalement située dans Trouville-sur-Mer (14360), EXTRACO Construction Rénovation Pont-l’Évêque vous propose cette maison de 5 pièces de 147 m² et de 586 m² de terrain. Elle est composée de quatre chambres, d’une cuisine et d’une salle de bains.C’est une maison de 2 niveaux. Elle est neuve.Cette maison se situe dans un secteur prisé. On trouve l’École Élémentaire Privée Jeanne d’Arc, le Lycée Général Privé Marie-Joseph et le Collège Privé Marie-Joseph à moins de 10 minutes à pied. Niveau transports en commun, il y a trois gares (Trouville-Deauville, Blonville-sur-Mer-Benerville et Villers-sur-Mer) à moins de 10 minutes en voiture. Les autoroutes A29 et A132 sont accessibles à moins de 10 km. On trouve une bibliothèque à proximité du logement.Son prix de vente est de 574 700 €.N’hésitez pas à prendre contact avec Angélique CUVILLIERS ((Numéro supprimé)) pour obtenir de plus amples renseignements sur la maison.EXTRACO Construction Rénovation Pont-l’Évêque est là pour vous accompagner à toutes les étapes de l’achat.
Trouville-sur-Mer
TERRAIN ET MAISONVENTE : maison T4 (98 m²) à Trouville-sur-MerIDÉALEMENT SITUÉE – MAISON 4 PIÈCES NEUVEEn vente : nous sommes ravis de vous proposer, idéalement située dans Trouville-sur-Mer (14360), cette maison de 4 pièces de plain-pied de 98 m².Son intérieur compte trois chambres, une cuisine et une salle de bains. La maison est neuve.Le terrain de la propriété s’étend sur 586 m².Cette maison est située dans un quartier prisé. On trouve l’École Élémentaire Privée Jeanne d’Arc, le Lycée Général Privé Marie-Joseph et le Collège Privé Marie-Joseph à moins de 10 minutes à pied. Côté transports en commun, il y a les gares Trouville-Deauville, Blonville-sur-Mer-Benerville et Villers-sur-Mer à moins de 10 minutes en voiture. Les autoroutes A29 et A132 sont accessibles à moins de 10 km. On trouve une bibliothèque dans les environs.Son prix de vente est de 434 500 €.N’hésitez pas à prendre contact avec notre agence (CUVILLIERS Angélique : (Numéro supprimé)) pour toute question sur la maison ou sur les démarches à suivre. EXTRACO Construction Rénovation Pont-l’Évêque vous accompagne dans tous vos projets immobiliers et à toutes les étapes de l’achat.
L’actualité immobilière à Tourville-en-Auge
27/11/2023
02/11/2023
30/10/2023
20/10/2023
16/10/2023
16/10/2023