Maison à construire à Noyers-Bocage (14210)
Images
Description
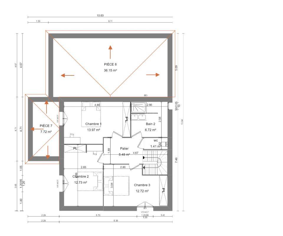
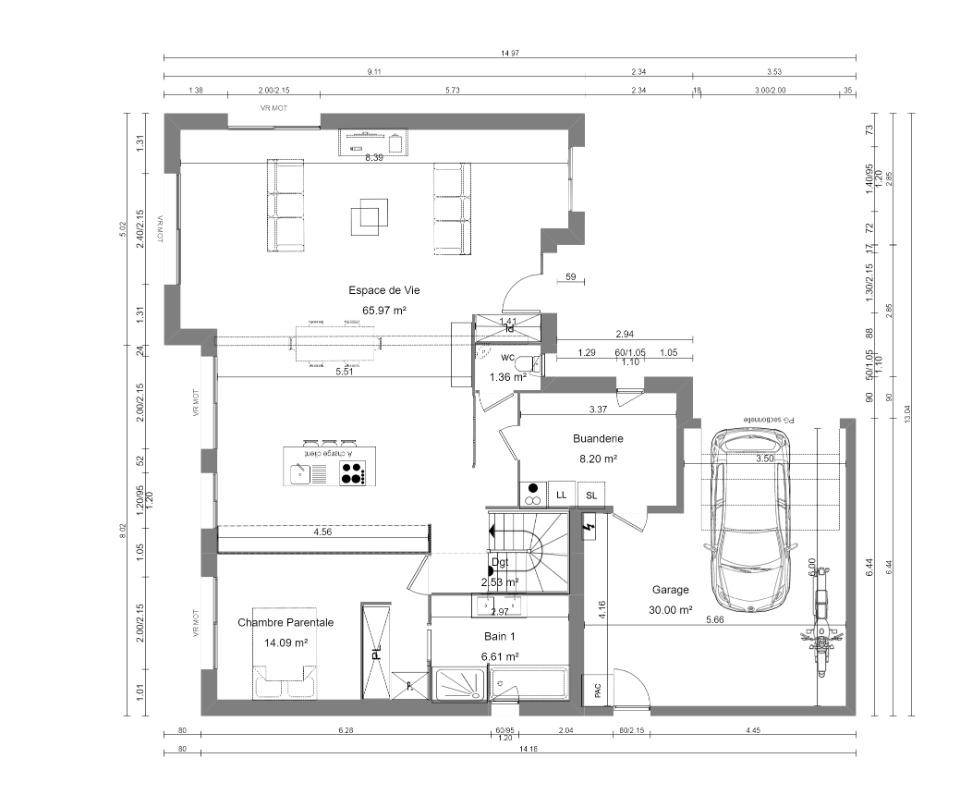
VENTE : maison de 6 pièces (140 m²) à Noyers-Bocage
IDÉALEMENT SITUÉE - MAISON 6 PIÈCES NEUVE
En vente : à 25 km de la Manche et à 17 km de Caen, Maisons France Confort Bayeux vous propose cette maison de 6 pièces de 140 m² idéalement située dans Noyers-Bocage (14210).
Il s'agit d'une maison de 2 niveaux. Son intérieur est composé de quatre chambres, d'une cuisine et de deux salles de bains. La maison est neuve.
Le terrain du bien s'étend sur 390 m².
Le bien se situe dans un secteur recherché. Il y a l'École Primaire Noyers Bocage à moins de 10 minutes à pied. Niveau transports en commun, on trouve la gare Bretteville-Norrey à moins de 10 minutes en voiture. L'autoroute A84 est accessible à 1 km. Il y a une bibliothèque, une boulangerie, une épicerie et une boucherie-charcuterie dans les environs.
Son prix de vente est de 296 400 €.
N'hésitez pas à prendre contact avec Emilie HUE (tél : (Numéro supprimé)) pour tout renseignement sur la maison. Faites de vos projets immobiliers une réalité avec Maisons France Confort Bayeux.
Annonce proposée par un Agent Commercial Partenaire.
Logement susceptibles de vous intéresser
Nous vous proposons de découvrir aussi cette sélection de logements situés à moins de 10km de Val d'Arry et qui seraient susceptibles de vous intéresser.
Thue et Mue
TERRAINVente Terrain 750m² Martragny (14740 – Moulin en Bessin)Chez Romain Propriétés Privées – Rare à la vente – Proche de toutes commodités.Terrain de 750m2, idéalement situé, hors lotissement.Ce dernier offre une belle opportunité pour votre projet de construction.Ce terrain est non viabilisé. Réseaux accessibles en bordure de rue.Opportunité idéale pour un projet de construction individuelle ou un investissement immobilier.Je vous propose ce terrain constructible au prix de 90 000.00 euros HAI dont 5,88% d’honoraires à charge acquéreur soit 85 000.00 euros net vendeur.Pour visiter et vous accompagner dans votre projet, contactez Romain MARIE, au (Numéro supprimé) ou, par courriel à (Email supprimé).Selon l’article L.561.5 du Code Monétaire et Financier, pour l’organisation de la visite, la présentation d’une pièce d’identité vous sera demandée.Cette présente annonce a été rédigée sous la responsabilité éditoriale de Romain MARIE agissant sous le statut d’agent commercial immatriculé au RSAC CAEN 888 838 166 auprès de SAS PROPRIETES PRIVEES, au capital de 44 920 euros, ZAC LE CHÊNE FERRÉ – 44 ALLÉE DES CINQ CONTINENTS 44120 VERTOU; SIRET 487 624 777 00040, RCS Nantes. Carte Professionnelle Transactions sur immeubles et fonds de commerce (T) et Gestion immobilière (G) n°CPI 4401 2016 000 010 388 délivrée par la CCI Nantes – Saint Nazaire. Compte séquestre n(Numéro supprimé)67 BPA SAINT-SEBASTIEN-SUR-LOIRE (44230). Garantie GALIAN-SMABTP – 89 rue de la Boétie, 75008 Paris – n°28137 J pour 2 000 000 euros pour T et 120 000 euros pour G. Assurance responsabilité civile professionnelle par GALIAN-SMABTP n° de police 28137.JMandat réf : 405182 – Le professionnel garantit et sécurise votre projet immobilier. (5.88 % honoraires TTC à la charge de l’acquéreur.) Romain MARIE (EI) Agent Commercial – Numéro RSAC : CAEN 888 838 166 – .
Fontenay-le-Pesnel
TERRAINTerrain de 524 m² en vente à Fontenay-le-PesnelIDÉALEMENT SITUÉ – PROCHE DE CAENEn vente à 19 km de la Manche et à quelques kilomètres de Caen à Fontenay-le-Pesnel (14250), grand terrain. Réalisez-y votre résidence principale ou secondaire. Ce terrain, exposé au sud, donne sur un espace vert. Dans un quartier convoité, ce terrain idéalement situé est proche des commerces et des écoles. Une école primaire est implantée dans le quartier. Niveau transports en commun, il y a les gares Audrieu et Bretteville-Norrey à moins de 10 minutes en voiture. L’autoroute A84 et la nationale N13 sont accessibles à moins de 6 km. On trouve une bibliothèque, un commerce et une boucherie-charcuterie à quelques minutes à peine.Ce terrain est à vendre pour la somme de 100 000 €. N’hésitez pas à prendre contact avec Kevin DUCHESNE (tél : (Numéro supprimé)) pour plus d’informations sur le terrain ou sur les modalités de vente. Faites de vos projets immobiliers une réalité avec Maisons France Confort Caen.
Fontenay-le-Pesnel
TERRAIN ET MAISONFontenay-le-Pesnel : maison F4 (82 m²) à vendreIDÉALEMENT SITUÉE – MAISON 4 PIÈCES NEUVEEn vente : à 19 km de la Manche et à deux pas de Caen, Maisons France Confort Caen vous présente cette maison de 4 pièces de 82 m² et de 524 m² de terrain avec vue sur espace vert idéalement située dans Fontenay-le-Pesnel (14250).C’est une maison de 2 niveaux. Son intérieur est composé de trois chambres, d’une cuisine et d’une salle de bains. Cette maison est neuve.La maison se situe dans un quartier prisé. On y trouve une école primaire. Niveau transports en commun, on trouve deux gares (Audrieu et Bretteville-Norrey) à moins de 10 minutes en voiture. L’autoroute A84 et la nationale N13 sont accessibles à moins de 6 km. Il y a une bibliothèque, un commerce et une boucherie-charcuterie à proximité.Elle est à vendre pour la somme de 279 000 €.Contactez notre agence (DUCHESNE Kevin : (Numéro supprimé)) pour toute information sur la maison ou sur les démarches à suivre.
Fontenay-le-Pesnel
TERRAIN ET MAISONVENTE d’une maison de 3 pièces (76 m²) à Fontenay-le-PesnelIDÉALEMENT SITUÉE – MAISON 3 PIÈCES NEUVEEn vente à 19 km de la Manche et à deux pas de Caen, notre agence Maisons France Confort Caen est heureuse de vous présenter cette maison de 3 pièces de plain-pied de 76 m², idéalement située dans Fontenay-le-Pesnel (14250). Elle offre trois chambres, une cuisine et trois salles de bains.Le terrain de cette maison est de 524 m².La maison est neuve.Cette maison se trouve dans un quartier convoité. On y trouve une école primaire. Côté transports en commun, il y a deux gares (Audrieu et Bretteville-Norrey) à moins de 10 minutes en voiture. L’autoroute A84 et la nationale N13 sont accessibles à moins de 6 km. On trouve une bibliothèque, un commerce et une boucherie-charcuterie à proximité.Son prix de vente est de 272 000 €.N’hésitez pas à prendre contact avec notre constructeur (Kevin DUCHESNE : (Numéro supprimé)) pour toute information sur le bien, sur les démarches à suivre ou sur les modalités de vente. Maisons France Confort Caen vous accompagne dans tous vos projets immobiliers et dans toutes vos démarches.
Fontenay-le-Pesnel
TERRAIN ET MAISONFontenay-le-Pesnel : maison T6 (100 m²) en venteIDÉALEMENT SITUÉE – MAISON 6 PIÈCES NEUVEEn vente : localisée à 19 km de la Manche et à 15 km de Caen, découvrez, idéalement située dans Fontenay-le-Pesnel (14250), cette maison de 6 pièces de 100 m².Il s’agit d’une maison de 2 niveaux. Son intérieur inclut quatre chambres, une cuisine et une salle de bains. Cette maison est neuve.Le terrain du bien s’étend sur 524 m².Cette maison est située dans un quartier prisé. On y trouve une école primaire. Côté transports en commun, on trouve les gares Audrieu et Bretteville-Norrey à moins de 10 minutes en voiture. L’autoroute A84 et la nationale N13 sont accessibles à moins de 6 km. Il y a une bibliothèque, un commerce et une boucherie-charcuterie dans les environs.Elle est à vendre pour la somme de 289 000 €.N’hésitez pas à prendre contact avec notre agence (Kevin DUCHESNE : (Numéro supprimé)) pour obtenir de plus amples renseignements sur la maison.
Fontenay-le-Pesnel
TERRAIN ET MAISONVENTE : maison de 6 pièces (105 m²) à Fontenay-le-PesnelIDÉALEMENT SITUÉE – MAISON 6 PIÈCES NEUVEÀ vendre : localisée à 19 km de la Manche et à 15 km de Caen, Maisons France Confort Caen vous présente, idéalement située dans Fontenay-le-Pesnel (14250), cette maison de 6 pièces de 105 m².Cette maison possède 2 niveaux. Elle se divise en trois chambres, une cuisine et deux salles de bains. La maison est neuve.Le terrain de la propriété est de 524 m².La maison se situe dans un secteur convoité. Une école primaire y est implantée. Niveau transports en commun, il y a les gares Audrieu et Bretteville-Norrey à moins de 10 minutes en voiture. L’autoroute A84 et la nationale N13 sont accessibles à moins de 6 km. On trouve une bibliothèque, un commerce et une boucherie-charcuterie à proximité du logement.Son prix de vente est de 352 900 €.Prenez contact avec notre agence (DUCHESNE Kevin : (Numéro supprimé)) pour obtenir de plus amples informations sur le bien, sur les modalités de vente ou sur les démarches à suivre. Faites de vos projets immobiliers une réalité avec Maisons France Confort Caen.
Fontenay-le-Pesnel
TERRAIN ET MAISONFontenay-le-Pesnel : maison T5 (90 m²) en venteIDÉALEMENT SITUÉE – MAISON 5 PIÈCES NEUVEEn vente : située à 19 km de la Manche et à quelques kilomètres de Caen, idéalement située dans Fontenay-le-Pesnel (14250), ayez le coup de coeur pour cette maison de 5 pièces de 90 m² et de 524 m² de terrain.Cette maison comporte 2 niveaux. Son intérieur comporte trois chambres, une cuisine et une salle de bains. Cette maison est neuve.Cette maison est située dans un quartier prisé. Une école primaire y est implantée. Côté transports, il y a deux gares (Audrieu et Bretteville-Norrey) à moins de 10 minutes en voiture. L’autoroute A84 et la nationale N13 sont accessibles à moins de 6 km. On trouve une bibliothèque, un commerce et une boucherie-charcuterie à proximité de la maison.Elle est à vendre pour la somme de 305 900 €.Contactez Kevin DUCHESNE ((Numéro supprimé)) pour obtenir de plus amples renseignements sur la maison. Maisons France Confort Caen vous accompagne dans toutes vos démarches et dans tous vos projets immobiliers.
Fontenay-le-Pesnel
TERRAIN ET MAISONVENTE d’une maison F5 (89 m²) à Fontenay-le-PesnelIDÉALEMENT SITUÉE – MAISON 5 PIÈCES NEUVEÀ 19 km de la Manche et à 15 km de Caen, en vente idéalement située dans Fontenay-le-Pesnel (14250), ayez le coup de coeur pour cette maison de 5 pièces de plain-pied de 89 m². Elle se divise en trois chambres, une cuisine et une salle de bains.Le terrain de la propriété est de 524 m².La maison est neuve.Cette maison est située dans un secteur recherché. Une école primaire y est implantée. Niveau transports en commun, il y a les gares Audrieu et Bretteville-Norrey à moins de 10 minutes en voiture. L’autoroute A84 et la nationale N13 sont accessibles à moins de 6 km. On trouve une bibliothèque, un commerce et une boucherie-charcuterie à quelques minutes à peine.Elle est proposée à l’achat pour 289 000 €.Contactez notre agence (DUCHESNE Kevin : (Numéro supprimé)) pour obtenir de plus amples renseignements sur la propriété. Maisons France Confort Caen vous accompagne dans toutes vos démarches et à toutes les étapes de votre projet.
Fontenay-le-Pesnel
TERRAIN ET MAISONFontenay-le-Pesnel : maison de 5 pièces (80 m²) en venteIDÉALEMENT SITUÉE – MAISON 5 PIÈCES NEUVEÀ vendre : à 19 km de la Manche et à quelques kilomètres de Caen, idéalement située dans Fontenay-le-Pesnel (14250), nous sommes ravis de vous présenter cette maison de 5 pièces de plain-pied de 80 m² et de 524 m² de terrain.Conçue de plain-pied, elle dispose de trois chambres, d’une cuisine et d’une salle de bains. La maison est neuve.La maison se trouve dans un secteur attractif. Une école primaire y est implantée. Côté transports, il y a les gares Audrieu et Bretteville-Norrey à moins de 10 minutes en voiture. L’autoroute A84 et la nationale N13 sont accessibles à moins de 6 km. On trouve une bibliothèque, un commerce et une boucherie-charcuterie à proximité.Son prix de vente est de 269 800 €.N’hésitez pas à prendre contact avec Kevin DUCHESNE (tél : (Numéro supprimé)) pour obtenir de plus amples renseignements sur la maison. Concrétisez vos projets immobiliers avec Maisons France Confort Caen.
L’actualité immobilière à Val d'Arry
27/11/2023
02/11/2023
30/10/2023
20/10/2023
16/10/2023
16/10/2023