Maison à construire à Billy (14370)
Images
Description
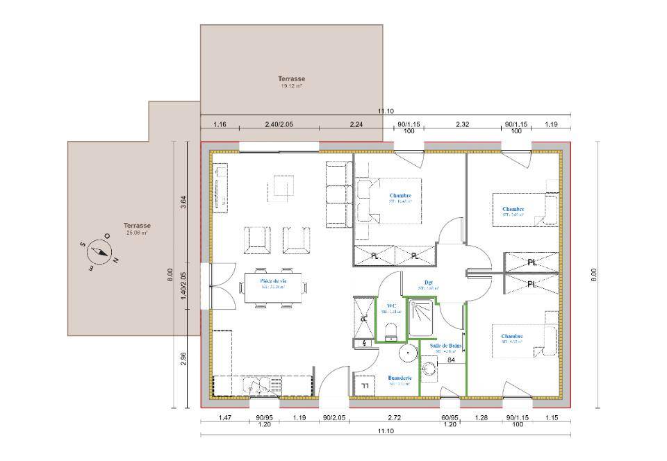
Maisons France Confort Lisieux vous propose de construire ce plain pied de 73m².
Il se compose d'une entrée sur une belle pièce de vie, un accès au cellier.
Dans l'espace nuit, 3 chambres et une salle de bain indépendante.
Belle prestation :
- carrelage 45*45
- menuiserie encastrer à la maçonnerie
- volet roulant électrique somfy
- système de chauffage très économique
Pour une étude de construction, merci de prendre rdv avec Mme Vaudry Angélique (Numéro supprimé)
Logement susceptibles de vous intéresser
Nous vous proposons de découvrir aussi cette sélection de logements situés à moins de 10km de Valambray et qui seraient susceptibles de vous intéresser.
Frénouville
TERRAINFrénouville : terrain de 385 m² en venteIDÉALEMENT SITUÉ – VUE SANS VIS-À-VISÀ Frénouville (14630) à 16 km de la Manche et à deux pas de Caen, découvrez ce terrain de 385 m². Ce terrain, avec une exposition sud, profite d’une vue sans vis-à-vis. Dans un secteur recherché, le terrain idéalement situé est proche des écoles et des commerces. L’École Primaire Docteur Derrien se trouve à moins de 10 minutes à pied. Côté transports en commun, il y a les gares Frénouville-Cagny, Moult-Argences et Caen à moins de 10 minutes en voiture. L’autoroute A13 et les nationales N814 et N158 sont accessibles à moins de 6 km. On trouve un tennis, deux boulangeries et trois commerces dans les environs.Son prix de vente est de 81 500 €. N’hésitez pas à prendre contact avec notre agence (Kevin DUCHESNE : (Numéro supprimé)) pour obtenir de plus amples informations sur le terrain, sur les démarches à suivre ou sur les modalités de vente. Maisons France Confort Caen est là pour vous accompagner dans tous vos projets immobiliers.
Frénouville
TERRAIN ET MAISONFrénouville : maison de 6 pièces (100 m²) en venteIDÉALEMENT SITUÉE – VUE SANS VIS-À-VISÀ 16 km de la Manche et à quelques kilomètres de Caen, en vente idéalement située dans Frénouville (14630), nous sommes heureux de vous présenter cette maison de 6 pièces de 100 m² sans vis-à-vis.Cette maison comporte 2 niveaux. Elle dispose de quatre chambres, d’une cuisine et d’une salle de bains. La maison est neuve.Le terrain du bien s’étend sur 385 m².Cette maison se situe dans un quartier recherché. On trouve l’École Primaire Docteur Derrien à moins de 10 minutes à pied. Côté transports en commun, il y a trois gares (Frénouville-Cagny, Moult-Argences et Caen) à moins de 10 minutes en voiture. L’autoroute A13 et les nationales N814 et N158 sont accessibles à moins de 6 km. On trouve un tennis, deux boulangeries et trois commerces à quelques minutes.Elle est à vendre pour la somme de 289 000 €.N’hésitez pas à prendre contact avec notre agence (Kevin DUCHESNE : (Numéro supprimé)) pour obtenir de plus amples renseignements sur la maison ou sur les modalités de vente. Maisons France Confort Caen vous accompagne dans toutes vos démarches et à toutes les étapes de votre projet.
Frénouville
TERRAIN ET MAISONVENTE : maison de 5 pièces (89 m²) à FrénouvilleIDÉALEMENT SITUÉE – MAISON 5 PIÈCES NEUVEÀ vendre : à 16 km de la Manche et à quelques kilomètres de Caen, votre agence Maisons France Confort Caen est heureuse de vous proposer cette maison de 5 pièces de plain-pied de 89 m² idéalement située dans Frénouville (14630).Conçue de plain-pied, elle est composée de trois chambres, d’une cuisine et d’une salle de bains. La maison est neuve.Le terrain du bien s’étend sur 385 m².Ce bien est situé dans un quartier recherché. On trouve l’École Primaire Docteur Derrien à moins de 10 minutes à pied. Côté transports en commun, il y a les gares Frénouville-Cagny, Moult-Argences et Caen à moins de 10 minutes en voiture. L’autoroute A13 et les nationales N814 et N158 sont accessibles à moins de 6 km. On trouve un tennis, deux boulangeries et trois commerces à quelques minutes.Il est à vendre pour la somme de 289 000 €.Contactez Kevin DUCHESNE (tél : (Numéro supprimé)) pour plus d’informations sur la maison ou sur les démarches à suivre.
Frénouville
TERRAIN ET MAISONMaison de 3 pièces (60 m²) à vendre à FrénouvilleIDÉALEMENT SITUÉE – MAISON 3 PIÈCES NEUVEEn vente : à 16 km de la Manche et à quelques kilomètres de Caen, Maisons France Confort Caen vous présente cette maison de 3 pièces de plain-pied de 60 m² et de 385 m² de terrain, idéalement située dans Frénouville (14630). Son intérieur dispose d’une chambre, d’une cuisine et d’une salle de bains.La maison est neuve.Cette maison se situe dans un secteur convoité. Il y a l’École Primaire Docteur Derrien à moins de 10 minutes à pied. Niveau transports, on trouve les gares Frénouville-Cagny, Moult-Argences et Caen à moins de 10 minutes en voiture. L’autoroute A13 et les nationales N814 et N158 sont accessibles à moins de 6 km. Il y a un tennis, deux boulangeries et trois commerces à proximité de la maison.Son prix de vente est de 239 000 €.N’hésitez pas à prendre contact avec Kevin DUCHESNE (tél : (Numéro supprimé)) pour toute question sur le bien, sur les démarches à suivre ou sur les modalités de vente.
Frénouville
TERRAIN ET MAISONMaison de 5 pièces (96 m²) en vente à FrénouvilleIDÉALEMENT SITUÉE – MAISON 5 PIÈCES NEUVEÀ vendre : située à 16 km de la Manche et à quelques kilomètres de Caen, nous vous proposons, idéalement située dans Frénouville (14630), cette maison de 5 pièces de 96 m² et de 385 m² de terrain. Son intérieur compte quatre chambres, une cuisine et une salle de bains.C’est une maison de 2 niveaux. Elle est neuve.Cette maison se trouve dans un secteur recherché. Il y a l’École Primaire Docteur Derrien à moins de 10 minutes à pied. Côté transports, on trouve trois gares (Frénouville-Cagny, Moult-Argences et Caen) à moins de 10 minutes en voiture. L’autoroute A13 et les nationales N814 et N158 sont accessibles à moins de 6 km. Il y a un tennis, deux boulangeries et trois commerces à proximité.Elle est proposée à l’achat pour 252 000 €.N’hésitez pas à prendre contact avec notre agence (Kevin DUCHESNE : (Numéro supprimé)) pour toute information sur la maison ou sur les modalités de vente.
Frénouville
TERRAIN ET MAISONFrénouville : maison de 3 pièces (76 m²) à vendreIDÉALEMENT SITUÉE – MAISON 3 PIÈCES NEUVEÀ vendre : située à 16 km de la Manche et à quelques kilomètres de Caen, notre agence Maisons France Confort Caen est heureuse de vous proposer, idéalement située dans Frénouville (14630), cette maison de 3 pièces de plain-pied de 76 m². Elle inclut trois chambres, une cuisine et trois salles de bains.Le terrain de la propriété est de 385 m².La maison est neuve.Cette maison se trouve dans un quartier prisé. Il y a l’École Primaire Docteur Derrien à moins de 10 minutes à pied. Côté transports en commun, on trouve trois gares (Frénouville-Cagny, Moult-Argences et Caen) à moins de 10 minutes en voiture. L’autoroute A13 et les nationales N814 et N158 sont accessibles à moins de 6 km. Il y a un tennis, deux boulangeries et trois commerces à quelques minutes.Son prix de vente est de 242 000 €.Prenez contact avec notre constructeur (DUCHESNE Kevin : (Numéro supprimé)) pour tout renseignement sur la maison. Maisons France Confort Caen est là pour vous accompagner dans toutes vos démarches.
Moult-Chicheboville
TERRAINVENTE d’un terrain de 389 m² à Moult-ChichebovilleIDÉALEMENT SITUÉ – PROCHE DE CAENEn vente à deux pas de Caen à Moult-Chicheboville (14370), terrain de 389 m². Dans un secteur attractif, le terrain idéalement situé est proche des commerces et des écoles. Il y a une école primaire dans le quartier. Côté transports, on trouve les gares Moult-Argences, Frénouville-Cagny et Mézidon-Canon à moins de 10 minutes en voiture. L’autoroute A13 et les nationales N158 et N814 sont accessibles à moins de 10 km.Il est à vendre pour la somme de 58 500 €. Contactez notre agence (CUVILLIERS Angélique : (Numéro supprimé)) pour tout renseignement sur ce terrain, sur les démarches à suivre ou sur les modalités de vente. EXTRACO Construction Rénovation Pont-l’Évêque vous accompagne à toutes les étapes de l’achat et dans tous vos projets immobiliers.
Moult-Chicheboville
TERRAIN ET MAISONOSSATURE BOIS Moult-Chicheboville : maison T4 (75 m²) à vendreIDÉALEMENT SITUÉE – MAISON 4 PIÈCES NEUVEÀ quelques kilomètres de Caen, votre agence EXTRACO Construction Rénovation Pont-l’Évêque est ravie de vous présenter à vendre, idéalement située dans Moult-Chicheboville (14370), cette maison de 4 pièces de plain-pied de 75 m².Elle inclut trois chambres, une cuisine et une salle de bains. La maison est neuve.Le terrain de la propriété s’étend sur 389 m².La maison est située dans un quartier prisé. Une école primaire y est implantée. Niveau transports, on trouve les gares Moult-Argences, Frénouville-Cagny et Mézidon-Canon à moins de 10 minutes en voiture. L’autoroute A13 et les nationales N158 et N814 sont accessibles à moins de 10 km.Elle est proposée à l’achat pour 199 900 €.Contactez notre constructeur (CUVILLIERS Angélique : (Numéro supprimé)) pour toute information sur la maison, sur les démarches à suivre ou sur les modalités de vente. EXTRACO Construction Rénovation Pont-l’Évêque est là pour vous accompagner dans tous vos projets immobiliers.
Moult-Chicheboville
TERRAIN ET MAISONVENTE : maison T4 (81 m²) à Moult-ChichebovilleIDÉALEMENT SITUÉE – MAISON 4 PIÈCES NEUVEÀ vendre : située à 17 km de Caen, découvrez cette maison de 4 pièces de 81 m² idéalement située dans Moult-Chicheboville (14370).Cette maison comporte 2 niveaux. Son intérieur est composé de deux chambres, d’une cuisine et d’une salle de bains. La maison est neuve.Le terrain du bien est de 389 m².Cette propriété se trouve dans un secteur prisé. Une école primaire y est implantée. Côté transports en commun, il y a les gares Moult-Argences, Frénouville-Cagny et Mézidon-Canon à moins de 10 minutes en voiture. L’autoroute A13 et les nationales N158 et N814 sont accessibles à moins de 10 km.Son prix de vente est de 199 900 €.Prenez contact avec notre agence (Angélique CUVILLIERS : (Numéro supprimé)) pour obtenir de plus amples renseignements sur la maison, sur les modalités de vente ou sur les démarches à suivre. EXTRACO Construction Rénovation Pont-l’Évêque est là pour vous accompagner à toutes les étapes de votre projet.
L’actualité immobilière à Valambray
27/11/2023
02/11/2023
30/10/2023
20/10/2023
16/10/2023
16/10/2023