Maison à construire à Arpajon-sur-Cère (15130)
Images
Description
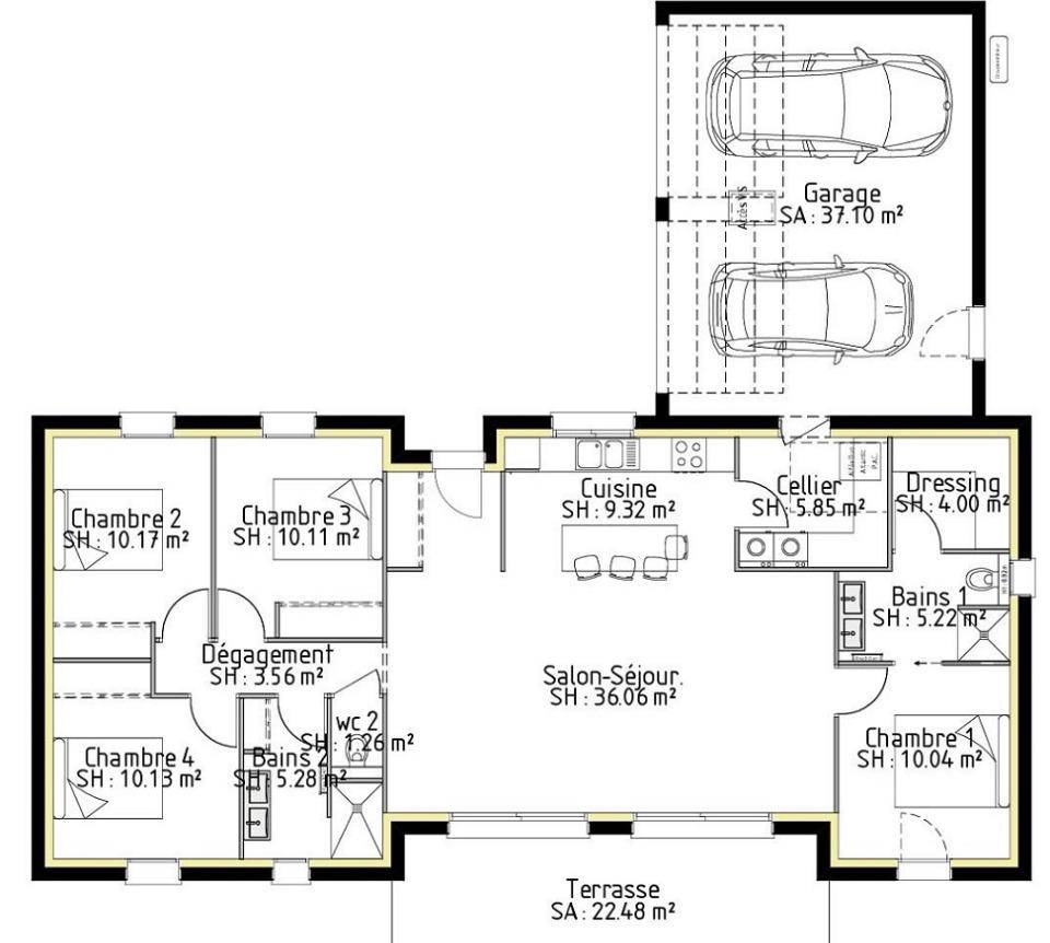
Cette future villa de plain-pied, d'une superficie habitable de 111 m² avec un double garage de 37 m² a été pensée pour répondre à toutes vos attentes. Avec ses 4 chambres spacieuses, dont une suite parentale comprenant un dressing et une salle d'eau, elle offre un espace de vie généreux et fonctionnel de 45 m², idéal pour accueillir votre famille et partager des moments inoubliables. Sur un terrain plat de 829 m², dans un environnement paisible et à proximité immédiate des commerces, se dressera bientôt votre nouvelle demeure. Imaginez-vous déjà profiter de ce cadre idyllique avec une terrasse de 22.50 m² exposée Sud/Est, où le calme règne en maître et où chaque jour est synonyme de confort et de sérénité.
Ne laissez pas passer cette opportunité unique de construire la maison de vos rêves dans un cadre enchanteur. Contactez-nous dès maintenant à l'agence Maisons Partout ((Numéro supprimé)) pour en savoir plus et commencez à imaginer votre nouvelle vie dans cette villa d'exception.
Logement susceptibles de vous intéresser
Nous vous proposons de découvrir aussi cette sélection de logements situés à moins de 10km de Arpajon-sur-Cère et qui seraient susceptibles de vous intéresser.
 
  
 
 Arpajon-sur-Cère
TERRAINVotre constructeur MAISONS PARTOUT Aurillac vous propose avec son partenaire foncier, de faire bâtir votre projet de vie sur ce magnifique terrain de 548 m² dans un cadre campagne et paisible à ARPAJON-SUR-CERE. Toutes les commodités sont présentes à proximité.N’hésitez pas à contacter l’Agence MAISONS PARTOUT au (Numéro supprimé), pour plus de renseignements.
 
  
 
 Roannes-Saint-Mary
TERRAINVENTE : terrain de 900 m² à Roannes-Saint-MaryEMPLACEMENT PRIVILÉGIÉ – VUE DÉGAGÉE QUARTIER PAISIBLEÀ Roannes-Saint-Mary (15220) à 10 km d’Aurillac, donnez vie à la maison de vos rêves sur ce terrain de 900 m². Ce terrain, orienté sud, profite d’une vue dégagée. Il se situe dans un quartier convoité. Une école élémentaire y est implantée. Ce terrain est à vendre pour la somme de 22 500 €. Prenez contact avec Fabien CHARMES ((Numéro supprimé)) pour toute information sur ce terrain. MAISONS PARTOUT Aurillac est là pour vous accompagner dans toutes vos démarches.
 
  
 
 Roannes-Saint-Mary
TERRAINTerrain de 1 500 m² en vente à Roannes-Saint-MaryPROCHE D’AURILLACÀ Roannes-Saint-Mary (15220) à vendre à 10 km d’Aurillac, donnez vie à votre projet immobilier sur ce terrain de 1 500 m². Ce terrain, exposé plein sud, donne sur un jardin. Il y a une école élémentaire dans le quartier. Côté transports, on trouve les gares Ytrac et Aurillac à moins de 10 minutes en voiture. La nationale N122 est accessible à 14 km. Il y a un tennis et une boulangerie à quelques minutes.Il est à vendre pour la somme de 37 500 €. Contactez Fabien CHARMES ((Numéro supprimé)) pour toute question sur ce terrain. MAISONS PARTOUT Aurillac est là pour vous accompagner à toutes les étapes de votre projet.
 
  
 
 Lafeuillade-en-Vézie
TERRAINVENTE : terrain de 790 m² à Lafeuillade-en-VézieEmplacement privilégié – En vente à Lafeuillade-en-Vézie (15130) : réalisez votre projet sur ce terrain de 790 m².À proximité : écoles, boulangeries, boucherie-charcuterie, bureau de poste et épicerie. Nationale N122 accessible à 19 km. Aurillac à 15 km.Il est proposé à l’achat pour 26 860 €. Contactez l’Agence MAISONS PARTOUT ((Numéro supprimé)) pour toute question sur le terrain, sur les démarches à suivre et sur les modalités de vente. MAISONS PARTOUT Aurillac vous accompagne dans tous vos projets immobiliers et à toutes les étapes de l’achat.
 
  
 
 Lafeuillade-en-Vézie
TERRAINTerrain de 705 m² en vente à Lafeuillade-en-VézieEmplacement privilégié – Proche écoles et commerces, à vendre : réalisez votre projet sur ce terrain de 705 m² à Lafeuillade-en-Vézie (15130).À proximité : écoles, boulangeries, boucherie-charcuterie, bureau de poste et épicerie. Aurillac à 15 km.Son prix de vente est de 23 970 €. N’hésitez pas à prendre contact avec l’Agence MAISONS PARTOUT ((Numéro supprimé)) pour toute information sur le terrain, sur les démarches à suivre ou sur les modalités de vente. Donnez vie à vos projets immobiliers avec MAISONS PARTOUT Aurillac.
 
  
 
 Lafeuillade-en-Vézie
TERRAINLafeuillade-en-Vézie : terrain de 555 m² en venteEmplacement privilégié – Proche des commodités, en vente : concrétisez votre projet sur ce terrain de 555 m² à Lafeuillade-en-Vézie (15130).À dix minutes : écoles, boulangeries, épicerie, boucherie-charcuterie et bureau de poste. Aurillac à 15 km.Il est proposé à l’achat pour 22 755 €. Contactez l’Agence MAISONS PARTOUT (Numéro supprimé) pour tout renseignement sur le terrain.
 
  
 
 Lafeuillade-en-Vézie
TERRAINLafeuillade-en-Vézie : terrain de 790 m² en venteEmplacement privilégié – Proche des écoles et commerces, terrain de 790 m² à vendre à Lafeuillade-en-Vézie (15130).À proximité : écoles, boulangeries, boucherie-charcuterie, épicerie et bureau de poste, on peut tout faire à pied. Aurillac à 15 km.Son prix de vente est de 30 810 €. Prenez contact avec l’Agence MAISONS PARTOUT (Numéro supprimé) pour plus d’informations sur le terrain, sur les modalités de vente ou sur les démarches à suivre.
 
  
 
 Lafeuillade-en-Vézie
TERRAINVENTE : terrain de 1 160 m² à Lafeuillade-en-VézieEmplacement privilégié – À Lafeuillade-en-Vézie (15130) : terrain en vente de 1 160 m².Proche écoles, boulangeries, bureau de poste, épicerie et boucherie-charcuterie. Nationale N122 à 19 km. Aurillac à 15 km.Il est à vendre pour la somme de 32 000 €. Contactez notre agence MAISONS PARTOUT (Numéro supprimé) pour tout renseignement sur le terrain ou sur les modalités de vente.
 
  
 
 Naucelles
TERRAINTerrain de 627 m² en vente à NaucellesEmplacement privilégié – Terrain en vente de 627 m² à Naucelles (15250).À proximité : gares (Aurillac et Ytrac), écoles, tennis, bibliothèque, boulangerie, commerce, supérette, bureau de poste et boucherie-charcuterie. Aurillac à 3 km.Il est proposé à l’achat pour 43 800 €. Pour plus d’informations sur le terrain, sur les démarches à suivre ou sur les modalités de vente, MAISONS PARTOUT Aurillac est là pour vous accompagner dans tous vos projets immobiliers, contactez nous au (Numéro supprimé).
L’actualité immobilière à Arpajon-sur-Cère
 27/11/2023
 
 27/11/2023
 
  02/11/2023
 
 02/11/2023
 
  30/10/2023
 
 30/10/2023
 
  20/10/2023
 
 20/10/2023
 
  16/10/2023
 
 16/10/2023
 
  16/10/2023
 
 16/10/2023
 
  
 
 
 
 
 
  
  
  
  
  
 