Maison à construire à Aurillac (15000)
Images
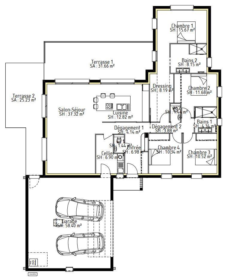
Description
Découvrez cette superbe maison contemporaine de plain-pied, conçue pour allier confort et modernité. Sa toiture monopente en aluminium apporte une touche unique à son design élégant. Vous serez séduit par ses 4 chambres spacieuses, dont une suite parentale, idéale pour vos moments de détente. Le grand salon-séjour lumineux ouvre sur une vaste terrasse, parfaite pour profiter des beaux jours. Un grand garage, un cellier et deux WC séparés viennent compléter ce bien pratique et fonctionnel. Idéale pour toute la famille, cette maison combine confort, espace et esthétisme.
Logement susceptibles de vous intéresser
Nous vous proposons de découvrir aussi cette sélection de logements situés à moins de 10km de Aurillac et qui seraient susceptibles de vous intéresser.
 
  
 
 Arpajon-sur-Cère
TERRAINVotre constructeur MAISONS PARTOUT Aurillac vous propose avec son partenaire foncier, de faire bâtir votre projet de vie sur ce magnifique terrain de 548 m² dans un cadre campagne et paisible à ARPAJON-SUR-CERE. Toutes les commodités sont présentes à proximité.N’hésitez pas à contacter l’Agence MAISONS PARTOUT au (Numéro supprimé), pour plus de renseignements.
 
  
 
 Saint-Simon
TERRAINVENTE d’un terrain de 789 m² à Saint-SimonIDÉALEMENT SITUÉ – PROCHE D’AURILLACÀ quelques kilomètres d’Aurillac à Saint-Simon (15130), grand terrain. Réalisez-y votre résidence principale ou secondaire. Il est orienté plein sud. Vous trouverez toutes les commodités à moins de 10 minutes en voiture.Il est proposé à l’achat pour 48 000 €. Contactez notre agence (Sylvie SOUQUIERES : (Numéro supprimé)) pour toute question sur ce terrain, sur les modalités de vente et sur les démarches à suivre. Concrétisez vos projets immobiliers avec MAISONS PARTOUT Aurillac.
 
  
 
 Saint-Simon
TERRAINVENTE d’un terrain de 986 m² à Saint-SimonIDÉALEMENT SITUÉ – VUE DÉGAGÉEEn vente à deux pas d’Aurillac à Saint-Simon (15130), grand terrain. Il est prêt à accueillir votre résidence principale ou secondaire pour toute la famille. Il profite d’une vue dégagée et bénéficie d’une exposition est.Son prix de vente est de 60 000 €. N’hésitez pas à prendre contact avec notre agence (Sylvie SOUQUIERES : (Numéro supprimé)) pour obtenir de plus amples renseignements sur ce terrain, sur les démarches à suivre ou sur les modalités de vente. MAISONS PARTOUT Aurillac est là pour vous accompagner à toutes les étapes de votre projet.
 
  
 
 Roannes-Saint-Mary
TERRAINVENTE : terrain de 900 m² à Roannes-Saint-MaryEMPLACEMENT PRIVILÉGIÉ – VUE DÉGAGÉE QUARTIER PAISIBLEÀ Roannes-Saint-Mary (15220) à 10 km d’Aurillac, donnez vie à la maison de vos rêves sur ce terrain de 900 m². Ce terrain, orienté sud, profite d’une vue dégagée. Il se situe dans un quartier convoité. Une école élémentaire y est implantée. Ce terrain est à vendre pour la somme de 22 500 €. Prenez contact avec Fabien CHARMES ((Numéro supprimé)) pour toute information sur ce terrain. MAISONS PARTOUT Aurillac est là pour vous accompagner dans toutes vos démarches.
 
  
 
 Roannes-Saint-Mary
TERRAINTerrain de 1 500 m² en vente à Roannes-Saint-MaryPROCHE D’AURILLACÀ Roannes-Saint-Mary (15220) à vendre à 10 km d’Aurillac, donnez vie à votre projet immobilier sur ce terrain de 1 500 m². Ce terrain, exposé plein sud, donne sur un jardin. Il y a une école élémentaire dans le quartier. Côté transports, on trouve les gares Ytrac et Aurillac à moins de 10 minutes en voiture. La nationale N122 est accessible à 14 km. Il y a un tennis et une boulangerie à quelques minutes.Il est à vendre pour la somme de 37 500 €. Contactez Fabien CHARMES ((Numéro supprimé)) pour toute question sur ce terrain. MAISONS PARTOUT Aurillac est là pour vous accompagner à toutes les étapes de votre projet.
 
  
 
 Naucelles
TERRAINTerrain de 627 m² en vente à NaucellesEmplacement privilégié – Terrain en vente de 627 m² à Naucelles (15250).À proximité : gares (Aurillac et Ytrac), écoles, tennis, bibliothèque, boulangerie, commerce, supérette, bureau de poste et boucherie-charcuterie. Aurillac à 3 km.Il est proposé à l’achat pour 43 800 €. Pour plus d’informations sur le terrain, sur les démarches à suivre ou sur les modalités de vente, MAISONS PARTOUT Aurillac est là pour vous accompagner dans tous vos projets immobiliers, contactez nous au (Numéro supprimé).
 
  
 
 Naucelles
TERRAINTerrain de 375 m² en vente à NaucellesEmplacement privilégié – Proche des commodités, à Naucelles (15250) : terrain de 375 m².À proximité : gares (Aurillac et Ytrac), écoles, tennis, bibliothèque, boulangerie, commerce, boucherie-charcuterie, bureau de poste et supérette. Aurillac à 3 km.Il est à vendre pour la somme de 31 000 €. Prenez contact avec notre agence MAISONS PARTOUT au (Numéro supprimé) pour plus d’informations sur le terrain ou sur les démarches à suivre.
 
  
 
 Naucelles
TERRAINNaucelles : terrain de 416 m² à vendreEmplacement privilégié – Proche écoles et commerces, terrain de 416 m² en vente à Naucelles (15250).À dix minutes : gares (Aurillac et Ytrac), écoles, tennis, bibliothèque, boulangerie, commerce, bureau de poste, boucherie-charcuterie et supérette. Aurillac à 3 km.Il est à vendre pour la somme de 31 000 €. Contactez l’Agence MAISONS PARTOUT au (Numéro supprimé) pour toute information sur le terrain, sur les modalités de vente ou sur les démarches à suivre. MAISONS PARTOUT Aurillac est là pour vous accompagner à toutes les étapes de l’achat.
 
  
 
 Naucelles
TERRAINTerrain de 579 m² en vente à NaucellesIdéalement situé – Construisez la maison de vos rêves sur ce terrain de 579 m² à Naucelles (15250).À dix minutes : gares (Aurillac et Ytrac), écoles, tennis, bibliothèque, boulangerie, commerce, supérette, bureau de poste et boucherie-charcuterie. Aurillac à 3 km.Il est à vendre pour la somme de 39 800 €. Contactez notre agence MAISONS PARTOUT au (Numéro supprimé) pour plus d’informations sur le terrain ou sur les modalités de vente. Donnez vie à vos projets immobiliers avec MAISONS PARTOUT Aurillac.
L’actualité immobilière à Aurillac
 27/11/2023
 
 27/11/2023
 
  02/11/2023
 
 02/11/2023
 
  30/10/2023
 
 30/10/2023
 
  20/10/2023
 
 20/10/2023
 
  16/10/2023
 
 16/10/2023
 
  16/10/2023
 
 16/10/2023
 
  
 
 
 
 
 
  
  
  
  
  
  
 