Images
Description
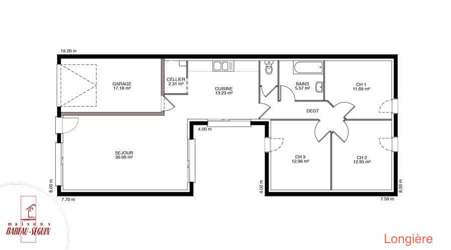
Sur ce terrain, nous vous proposons cette maison neuve : la Longière Sud. Véritable coup de cœur, cette maison de plain-pied est parfaitement adaptée au sud de la France. Avec une surface de 95 m², elle se compose de 3 chambres et de 4 pièces, offrant un espace de vie confortable et fonctionnel.
La Longière Sud est un parfait compromis entre une maison traditionnelle et une maison contemporaine. Elle se distingue par sa toiture 4 pans de faible pente et ses tuiles canal, qui lui confèrent un charme unique. Un bardage en clin bois optionnel peut également être ajouté pour un cachet inimitable.
Cette maison est conçue pour s'adapter à des terrains étroits grâce à une largeur de façade de seulement 8 mètres. Le confort est au rendez-vous avec une partie nuit séparée de la partie jour, et un patio reliant ces deux espaces, créant ainsi une atmosphère conviviale et harmonieuse.
Autre atout majeur de la Longière Sud : elle est basse consommation et conforme à la nouvelle norme RE2020, garantissant des performances énergétiques optimales et un respect de l'environnement.
Le constructeur Babeau-Seguin, reconnu pour offrir le meilleur rapport qualité/prix du marché, vous propose cette maison avec un garage intégré, répondant ainsi aux besoins les plus courants des clients.
Ne manquez pas cette opportunité unique d'acquérir une maison neuve, moderne et économe en énergie, parfaitement conçue pour votre confort et votre bien-être.
Logement susceptibles de vous intéresser
Nous vous proposons de découvrir aussi cette sélection de logements situés à moins de 10km de Angeac-Champagne et qui seraient susceptibles de vous intéresser.
Saint-Fort-sur-le-Né
TERRAINMAISON 4 PIÈCES NEUVE. RE2020 MATERIAUX ET PRESTATATION DE QUALITE. Nous vous proposons cette maison de 4 pièces de plain-pied de 135 m² sur 1 600 m² de terrain à Saint-Fort-sur-le-Né (16130).Son intérieur comporte trois chambres, une grande pièce de vie avec sa une cuisine intégré, cellier, deux salles de bains et un garage. Contactez Tony DAIGRE ((Numéro supprimé)) pour tout renseignement sur cette maison, sur les démarches à suivre ou sur les modalités de vente. Concrétisez vos projets immobiliers avec Alpha Constructions Cognac.
Saint-Fort-sur-le-Né
TERRAIN ET MAISONMAISON 4 PIÈCES NEUVE. RE2020 MATERIAUX ET PRESTATATION DE QUALITE. Nous vous proposons cette maison de 4 pièces de plain-pied de 135 m² sur 1 600 m² de terrain à Saint-Fort-sur-le-Né (16130).Son intérieur comporte trois chambres, une grande pièce de vie avec sa une cuisine intégré, cellier, deux salles de bains et un garage. Contactez Tony DAIGRE ((Numéro supprimé)) pour tout renseignement sur cette maison, sur les démarches à suivre ou sur les modalités de vente. Concrétisez vos projets immobiliers avec Alpha Constructions Cognac.
Cognac
TERRAINTerrain de 425 m² À Cognac (16100), découvrez ce terrain de 425 ². Il est situé dans un quartier attractif. Ce terrain est à vendre pour la somme de 47 000 €. Prenez contact avec notre agence (RICOME Aurélie : (Numéro supprimé)) pour toute question sur ce terrain ou sur les démarches à suivre. Bermax Construction Saint-Yrieix-sur-Charente vous accompagne dans tous vos projets immobiliers et à toutes les étapes de l’achat.
Cognac
TERRAIN ET MAISONMaison de 3 pièces (60 m²) en venteNous sommes ravis de vous présenter, dans un quartier recherché de Cognac (16100), cette maison de 3 pièces de plain-pied de 60 m². Son intérieur comporte deux chambres, une cuisine ouverte sur une pièce de vie lumineuse et une salle de bains.Le terrain de la propriété s’étend sur 425 m².La maison se situe dans un secteur prisé. Elle est à vendre pour la somme de 146 500 €.Contactez Aurélie RICOME (Numéro supprimé) pour tout renseignement sur la maison, sur les démarches à suivre ou sur les modalités de vente.
Cognac
TERRAIN ET MAISONMaison de 3 pièces (70 m²) Bermax Construction Saint-Yrieix-sur-Charente vous propose cette maison de 3 pièces de plain-pied de 70 m² et de 425 m² de terrain située dans un secteur convoité de Cognac (16100).Elle compte trois chambres, une cuisine ouverte sur une pièce de vie lumineuse et une salle de bains.La maison se trouve dans un quartier recherché. Elle est à vendre pour la somme de 168 500 €.Contactez Aurélie RICOME (Numéro supprimé) pour obtenir de plus amples renseignements sur la maison ou sur les démarches à suivre. Bermax Construction Saint-Yrieix-sur-Charente est là pour vous accompagner à toutes les étapes de l’achat.
Cognac
TERRAINVENTE d’un terrain de 425 m² à CognacPROCHE CENTRE-VILLEProche du centre-ville de Cognac (16100), terrain de 425 m². Il est orienté plein sud, à proximité immédiate du collège Félix Gaillard.Son prix de vente est de 47 000 €. Prenez contact avec notre agence (Pascal DECOU : (Numéro supprimé)) pour tout renseignement sur le terrain ou sur les démarches à suivre. Bermax Construction Saintes est là pour vous accompagner à toutes les étapes de votre projet.
Cognac
TERRAIN ET MAISONMaison T3 (2 chambres) à CognacPROCHE CENTRE-VILLE Bermax Construction Saintes vous présente cette maison de 3 pièces proche du centre-ville de Cognac (16100). Conçue de plain-pied, elle compte deux chambres, une cuisine et une salle de bains.Proximité immédiate du collège Félix Gaillard et des zones commerciales de Châteaubernard.Elle est à vendre pour la somme de 155 689 €.Prenez contact avec notre agence (DECOU Pascal : (Numéro supprimé)) pour plus de renseignements sur le bien. Bermax Construction Saintes est là pour vous accompagner à toutes les étapes de votre projet.
Cognac
TERRAIN ET MAISONMaison de 4 pièces (3 chambres) à CognacPROCHE CENTRE-VILLEBermax Construction Saintes vous propose cette maison de 4 pièces de plain-pied proche du centre-ville de Cognac (16100).Elle comporte trois chambres, une cuisine et une salle de bains ainsi qu’un garageSon prix de vente est de 189 585 €.Prenez contact avec Pascal DECOU ((Numéro supprimé)) pour toute question sur la maison, sur les démarches à suivre ou sur les modalités de vente. Bermax Construction Saintes est là pour vous accompagner à toutes les étapes de votre projet.
Cognac
TERRAIN ET MAISONMaison de 3 pièces (2 chambres) à CognacPROCHE CENTRE-VILLENous vous proposons, proche du centre-ville de Cognac (16100), cette maison de 3 pièces de plain-pied Proche zone commerciales, collège Félix Gaillard, marché du champs de Foire hebdomadaire. Son intérieur comporte deux chambres, une cuisine et une salle de bains. Elle est à vendre pour la somme de 213 589 €.N’hésitez pas à prendre contact avec notre agence (Pascal DECOU : (Numéro supprimé)) pour toute question sur la propriété, sur les démarches à suivre ou sur les modalités de vente. Donnez vie à vos projets immobiliers avec Bermax Construction Saintes.
L’actualité immobilière à Angeac-Champagne
27/11/2023
02/11/2023
30/10/2023
20/10/2023
16/10/2023
16/10/2023