Images
Description
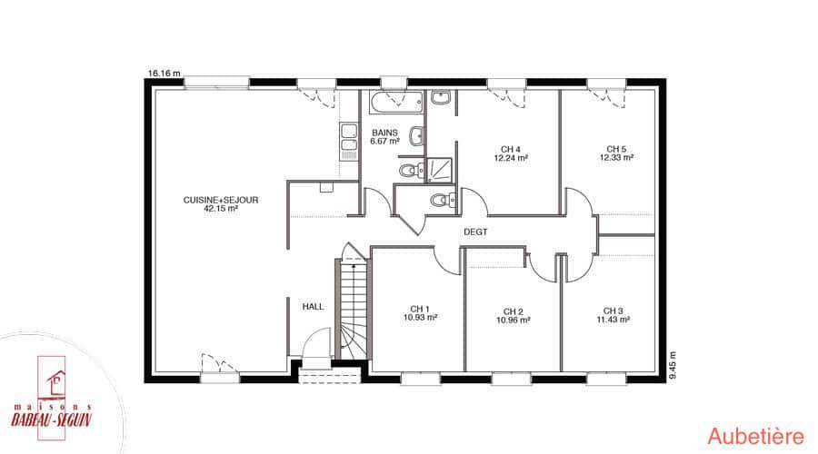
Sur ce terrain, nous vous proposons cette maison neuve Aubetière Sud, un modèle traditionnel plain-pied qui fait partie du top 3 des modèles préférés de nos clients. Avec une surface de 59 m², cette maison dispose d'une chambre et de deux pièces, offrant un espace de vie confortable et fonctionnel.
L'Aubetière Sud se distingue par son toit à faible pente et ses tuiles canal, disponibles en version 2 pans ou 4 pans. Vous avez également la possibilité de personnaliser votre maison avec un garage intégré ou un sous-sol, ainsi qu'un porche accueillant.
Cette maison neuve est basse consommation et conforme à la réglementation environnementale RE2020, garantissant des performances énergétiques optimales et un confort de vie sous le soleil.
Les options les plus demandées par nos clients, telles qu'une deuxième salle de bains, des menuiseries en aluminium, et un garage ou un sous-sol, sont disponibles pour personnaliser votre Aubetière Sud selon vos besoins et vos envies.
Faites confiance à Babeau-Seguin, constructeur offrant le meilleur rapport qualité/prix du marché, pour réaliser votre projet de vie. Découvrez l'Aubetière Sud, une maison traditionnelle appréciée pour son excellent rapport qualité/prix et son adaptabilité pour une maison sur-mesure.
Logement susceptibles de vous intéresser
Nous vous proposons de découvrir aussi cette sélection de logements situés à moins de 10km de Angoulême et qui seraient susceptibles de vous intéresser.
Angoulême
TERRAIN ET MAISONSur ce terrain, nous vous proposons cette maison neuve Aubetière Sud, un modèle traditionnel plain-pied qui fait partie du top 3 des modèles préférés de nos clients. Avec une surface de 59 m², cette maison dispose d’une chambre et de deux pièces, offrant un espace de vie confortable et fonctionnel.L’Aubetière Sud se distingue par son toit à faible pente et ses tuiles canal, disponibles en version 2 pans ou 4 pans. Vous avez également la possibilité de personnaliser votre maison avec un garage intégré ou un sous-sol, ainsi qu’un porche accueillant.Cette maison neuve est basse consommation et conforme à la réglementation environnementale RE2020, garantissant des performances énergétiques optimales et un confort de vie sous le soleil.Les options les plus demandées par nos clients, telles qu’une deuxième salle de bains, des menuiseries en aluminium, et un garage ou un sous-sol, sont disponibles pour personnaliser votre Aubetière Sud selon vos besoins et vos envies.Faites confiance à Babeau-Seguin, constructeur offrant le meilleur rapport qualité/prix du marché, pour réaliser votre projet de vie. Découvrez l’Aubetière Sud, une maison traditionnelle appréciée pour son excellent rapport qualité/prix et son adaptabilité pour une maison sur-mesure.
Angoulême
TERRAINDécouvrez ce magnifique terrain à vendre de 380 m², offrant un potentiel exceptionnel pour votre projet de construction de maison. Situé dans la charmante ville d’Angoulême, ce terrain non-viabilisé présente tous les atouts nécessaires pour réaliser une belle propriété dans un quartier recherché. Avec ses surfaces plates et ses caractéristiques uniques, ce terrain vous permettra d’imaginer et de concrétiser la maison de vos rêves. Idéalement situé au cœur de la Charente, en Nouvelle-Aquitaine, Angoulême est reconnue pour sa qualité de vie remarquable. À proximité immédiate, vous trouverez une multitude de commerces et de commodités qui répondent aux besoins du quotidien. Le centre-ville vibrant offre de nombreuses attractions culturelles, notamment ses célèbres festivals, sans oublier les atouts naturels qui entourent la ville, propices aux balades en plein air. Que vous recherchiez tranquillité ou dynamisme, Angoulême saura vous séduire. Ne laissez pas passer cette opportunité unique d’acquérir un terrain au potentiel prometteur. Contactez-nous dès aujourd’hui pour envisager votre projet sur ce terrain d’exception. A noter qu’en tant que constructeur, nous ne sommes pas mandatés pour réaliser la vente de ce terrain.
Gond-Pontouvre
TERRAINNous vous présentons ce terrain d’une surface de 735 m², idéalement situé dans le charmant quartier de Gond-Pontouvre, en Charente, au cœur de la région Nouvelle-Aquitaine. Ce terrain viabilisé, en pente douce, offre un cadre parfait pour la construction de votre future maison. Grâce à ses caractéristiques uniques, il est possible d’y envisager un projet de construction qui saura tirer parti des atouts environnementaux et architecturaux de la région. Sa situation privilégiée dans un quartier recherché en fait une opportunité à saisir pour ceux qui aspirent à une qualité de vie incomparable. Gond-Pontouvre se distingue par son ambiance paisible et son accessibilité. À proximité immédiate des commerces et des commodités, vous bénéficierez d’un quotidien pratique. La ville est également bien desservie par les transports en commun, rendant les échanges avec les villes environnantes simples et rapides. Votre future maison sera idéalement placée pour profiter des activités locales diversifiées et des espaces verts qui jalonnent la région, faisant ainsi de ce lieu un cadre de vie agréable et stimulant pour toute la famille. Ce terrain représente une opportunité d’investissement unique pour concrétiser vos projets immobiliers. N’hésitez pas à nous contacter pour découvrir ce bien d’exception! À noter qu’en tant que constructeur, nous ne sommes pas mandatés pour réaliser la vente de ce terrain.
Gond-Pontouvre
TERRAIN ET MAISONSur ce terrain, nous vous proposons cette maison neuve : la Prunière Sud, un modèle de plain-pied qui allie confort, modernité et économies d’énergie. Conçue par Babeau-Seguin, constructeur reconnu pour offrir le meilleur rapport qualité/prix du marché, cette maison de 71 m² est idéale pour les familles à la recherche d’un logement fonctionnel et abordable.La Prunière Sud se distingue par son design élégant et ses lignes épurées. Vous avez le choix entre une toiture à 2 pans ou à 4 pans, selon vos préférences esthétiques. Le renfoncement de la façade ajoute une touche de dynamisme et de modernité à l’ensemble.À l’intérieur, vous découvrirez un espace de vie optimisé avec 3 pièces bien agencées, dont 2 chambres confortables. Le garage intégré, inclus de base, vous offre un espace de rangement supplémentaire et un accès direct à la maison, pratique pour les jours de pluie.Cette maison neuve est conforme à la réglementation environnementale RE2020, garantissant une basse consommation énergétique et un respect des normes écologiques les plus récentes. Vous bénéficierez ainsi d’un logement économe en énergie, réduisant vos factures tout en contribuant à la protection de l’environnement.Ne manquez pas cette opportunité unique de devenir propriétaire d’une maison neuve, moderne et économique. La Prunière Sud est l’un des modèles les plus vendus par Babeau-Seguin, et pour cause : elle combine qualité, confort et prix attractif.A saisir vite ! Contactez-nous pour plus d’informations et pour organiser une visite du terrain.
Soyaux
TERRAINRare dans le quartier historique et prisé du vieux Soyaux – Terrain constructible et plat situé dans le bourg de Soyaux dans un environnement très agréable, à la fois au calme et proche du centre clinical, du centre commercial Carrefour, des écoles, des commerces, etc.. Localisation idéal pour implanter une maison avec une excellente exposition – Certificat d’urbanisme OK.Budget 70 990 euros honoraires inclus à la charge du vendeur.Pour visiter et vous accompagner dans votre projet, contactez Romuald MILLOT, au (Numéro supprimé) ou par courriel à (Email supprimé).Mandat réf : 430656RMT. – Le professionnel garantit et sécurise votre projet immobilier – Romuald MILLOT (EI) Agent Commercial – Numéro RSAC : ANGOULEME 844071217 Romuald MILLOT (EI) Agent Commercial – Numéro RSAC : ANGOULEME 844071217 – .
Angoulême
TERRAIN16000 – ANGOULEME – QUARTIER HISTORIQUE – JOLI PETIT TERRAIN CONSTRUCTIBLE AVEC GARAGE – 200.0 M² AVEC JARDIN ARBORÉJe vous propose ce joli terrain constructible plat au calme de 382 m2 avec un garage situé au calme dans le quartier prisé de Saint Martin à Angoulême.Ce terrain plat offre une belle surface pour réaliser votre projet de jardin ou espace pour se ressourcer dans un environnement calme et verdoyant, à deux pas du centre-ville.Doté d’un jardin arboré avec des arbres fruitiers, ce terrain vous permettra de profiter de moments de détente en plein air en toute tranquillité.Ne manquez pas cette opportunité unique d’acquérir ce joli terrain d’exception à Angoulême.Contactez moi dès maintenant pour organiser une visite et découvrir tous les atouts de ce bien.Pour plus d’informations, veuillez me contacter au (Numéro supprimé) (Yann VILLARD) ou par e-mail à (Email supprimé). Les honoraires effiCity sont inclus dans le prix de vente affiché et sont à la charge du vendeur. Les informations sur les risques auxquels ce bien est exposé sont disponibles sur le site Georisque : georisques. gouv. fr Yann Villard – EI – est Agent Commercial mandataire en immobilier, immatriculé au Registre Spécial des Agents Commerciaux du Tribunal de Commerce de Angoulême sous le n(Numéro supprimé).Siège social du mandant : effiCity, 48 avenue de Villiers – 75017 PARIS – Société par Actions Simplifiée, société au capital de 132 373,05 euros, immatriculée au RCS Paris 497 617 746 et titulaire de la Carte professionnelle CPI 7501 2015 000 002 025 – CCI Paris IDF – Caisse de Garantie : GALIAN Assurances 89 rue de la Boétie 75008 Paris
Ruelle-sur-Touvre
TERRAIN ET MAISONSur ce terrain, nous vous proposons cette maison neuve : la Prunière Sud, un modèle de plain-pied qui allie confort, modernité et économies d’énergie. Conçue par Babeau-Seguin, constructeur reconnu pour offrir le meilleur rapport qualité/prix du marché, cette maison de 71 m² est idéale pour les familles à la recherche d’un logement fonctionnel et abordable.La Prunière Sud se distingue par son design élégant et ses lignes épurées. Vous avez le choix entre une toiture à 2 pans ou à 4 pans, selon vos préférences esthétiques. Le renfoncement de la façade ajoute une touche de dynamisme et de modernité à l’ensemble.À l’intérieur, vous découvrirez un espace de vie optimisé avec 3 pièces bien agencées, dont 2 chambres confortables. Le garage intégré, inclus de base, vous offre un espace de rangement supplémentaire et un accès direct à la maison, pratique pour les jours de pluie.Cette maison neuve est conforme à la réglementation environnementale RE2020, garantissant une basse consommation énergétique et un respect des normes écologiques les plus récentes. Vous bénéficierez ainsi d’un logement économe en énergie, réduisant vos factures tout en contribuant à la protection de l’environnement.Ne manquez pas cette opportunité unique de devenir propriétaire d’une maison neuve, moderne et économique. La Prunière Sud est l’un des modèles les plus vendus par Babeau-Seguin, et pour cause : elle combine qualité, confort et prix attractif.A saisir vite ! Contactez-nous pour plus d’informations et pour organiser une visite du terrain.
Ruelle-sur-Touvre
TERRAINDécouvrez ce magnifique terrain de 528 m² situé à Ruelle-sur-Touvre, au cœur de la Charente en Nouvelle-Aquitaine. Ce terrain viabilisé, plat et ensoleillé est idéal pour la construction de votre maison de rêve. Grâce à son emplacement privilégié, vous bénéficierez d’un cadre de vie paisible tout en étant à proximité des commodités essentielles. Ne laissez pas passer cette occasion unique de réaliser votre projet immobilier dans un environnement agréable. Ruelle-sur-Touvre est une ville attractive qui allie tranquillité et accessibilité. Située à proximité des commerces et des services, cette commune offre un cadre de vie de qualité. Les résidents peuvent profiter de plusieurs arrêts de bus à proximité, facilitant les déplacements. Avec ses espaces verts et son ambiance conviviale, Ruelle-sur-Touvre est un lieu idéal pour établir votre projet de vie. Ne manquez pas l’opportunité de devenir propriétaire de ce terrain dans une ville dynamique et accueillante. Ce terrain offre un potentiel exceptionnel pour tous ceux qui rêvent d’une maison sur mesure dans un cadre séduisant. N’hésitez pas à vous renseigner sur cette opportunité d’achat unique ! À noter qu’en tant que constructeur, nous ne sommes pas mandatés pour réaliser la vente de ce terrain.
Ruelle-sur-Touvre
TERRAIN ET MAISONSur ce terrain, nous vous proposons cette maison neuve : le modèle Focus Cosy city. Conçue par Babeau-Seguin, constructeur reconnu pour offrir le meilleur rapport qualité/prix du marché, cette maison de plain-pied traditionnelle offre une surface habitable de 79 m², parfaitement optimisée pour répondre aux besoins des familles.Idéale pour les petits budgets, la Focus Cosy city est une maison neuve écologique, conforme aux normes strictes de la RE2020. Elle garantit une basse consommation énergétique, ce qui se traduit par des coûts d’usage et d’entretien très faibles, notamment pour le chauffage.Cette maison se compose de 4 pièces, dont 3 chambres lumineuses, parfaites pour accueillir une famille. Le grand séjour de 33 m² est baigné de lumière naturelle grâce à une baie vitrée coulissante, créant un espace de vie convivial et chaleureux. La cuisine ouverte sur le séjour permet de partager des moments agréables en famille ou entre amis. Un cellier, situé dans le prolongement de la cuisine, offre un espace de rangement pratique pour les provisions.La maison dispose également d’une salle de bain avec des WC séparés, offrant un espace de vie fonctionnel et bien organisé pour toute la famille. Les options les plus demandées par les clients, telles que la domotique et l’enduit bi-ton, peuvent être intégrées pour personnaliser votre maison selon vos préférences.En résumé, le modèle Focus Cosy city est une maison neuve économique et écologique, qui combine une conception pratique avec une haute efficacité énergétique. Elle offre ainsi un cadre de vie confortable et abordable pour les familles à la recherche d’un logement durable et respectueux de l’environnement. Économie à la construction, économie à la consommation !
L’actualité immobilière à Angoulême
27/11/2023
02/11/2023
30/10/2023
20/10/2023
16/10/2023
16/10/2023