Maison à construire à Bassac (16120)
Images
Description
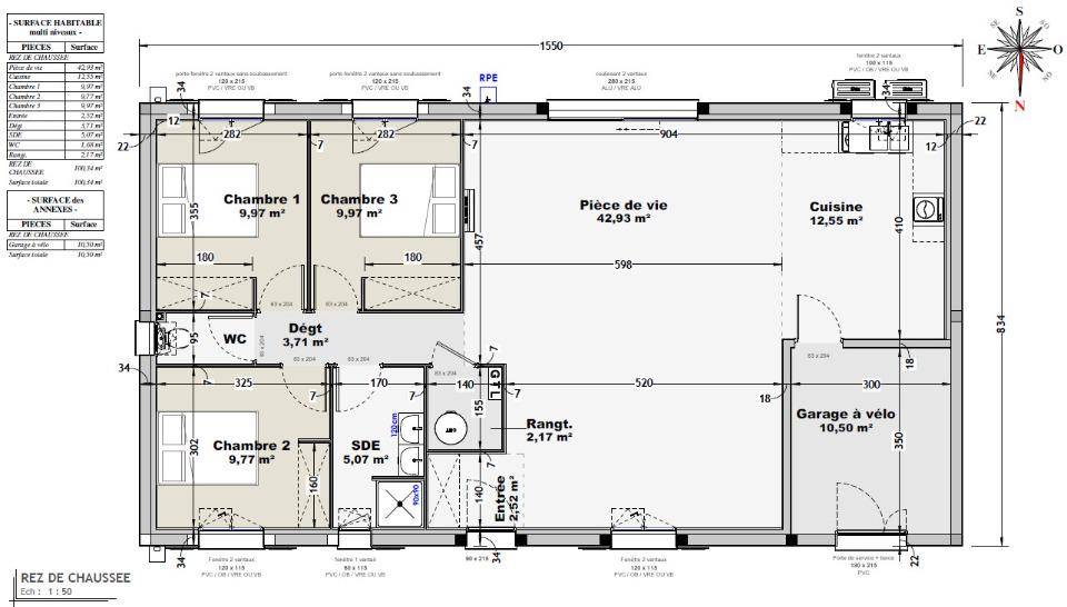
VENTE d'une maison T3 (100 m²) à Bassac
MAISON 3 PIÈCES NEUVE - PROCHE D'ANGOULÊME
À 19 km d'Angoulême, nous sommes ravis de vous présenter cette maison de 3 pièces de plain-pied de 100 m² et de 2 600 m² de terrain à vendre à Bassac (16120). Elle compte trois chambres, une cuisine et une salle de bains.
Cette maison est neuve.
L'École Primaire Bassac est implantée à moins de 10 minutes à pied. Côté transports, on trouve les gares Jarnac et Châteauneuf-sur-Charente à moins de 10 minutes en voiture. La nationale N141 est accessible à 4 km. Il y a deux boulangeries et un commerce dans les environs.
Elle est proposée à l'achat pour 203 800 €.
Contactez Pauline MARCHAND ((Numéro supprimé)) pour plus d'informations sur la maison, sur les démarches à suivre ou sur les modalités de vente. Bermax Construction Saint-Yrieix-sur-Charente est là pour vous accompagner à toutes les étapes de votre projet.
Logement susceptibles de vous intéresser
Nous vous proposons de découvrir aussi cette sélection de logements situés à moins de 10km de Bassac et qui seraient susceptibles de vous intéresser.
Bassac
TERRAINBassac : terrain de 2 600 m² à vendrePROCHE D’ANGOULÊME – VUE DÉGAGÉEGrand terrain à quelques kilomètres d’Angoulême. De 2 600 m², ce terrain se situe dans Bassac (16120). Il profite d’une vue dégagée. Ce terrain est proche des commerces et des écoles. Il y a l’École Primaire Bassac à moins de 10 minutes à pied. La nationale N141 est accessible à 4 km. Il y a deux boulangeries et un commerce à proximité du terrain.Son prix de vente est de 49 500 €. Contactez Pauline MARCHAND (tél : (Numéro supprimé)) pour tout renseignement sur le terrain.
Bassac
TERRAIN ET MAISONMaison de 5 pièces (110 m²) en vente à BassacMAISON 5 PIÈCES NEUVE – PROCHE D’ANGOULÊMEÀ vendre : localisée à deux pas d’Angoulême, Bermax Construction Saint-Yrieix-sur-Charente vous propose cette maison de 5 pièces de plain-pied de 110 m² et de 2 600 m² de terrain à Bassac (16120).Son intérieur compte trois chambres, une cuisine et deux salles de bains. Cette maison est neuve.L’École Primaire Bassac est implantée à moins de 10 minutes à pied. Côté transports en commun, il y a les gares Jarnac et Châteauneuf-sur-Charente à moins de 10 minutes en voiture. La nationale N141 est accessible à 4 km. On trouve deux boulangeries et un commerce à quelques minutes du logement.Elle est à vendre pour la somme de 296 500 €.Contactez notre agence (MARCHAND Pauline : (Numéro supprimé)) pour toute question sur le bien ou sur les modalités de vente. Faites de vos projets immobiliers une réalité avec Bermax Construction Saint-Yrieix-sur-Charente.
Bassac
TERRAIN ET MAISONVENTE d’une maison T3 (100 m²) à BassacMAISON 3 PIÈCES NEUVE – PROCHE D’ANGOULÊMEÀ 19 km d’Angoulême, nous sommes ravis de vous présenter cette maison de 3 pièces de plain-pied de 100 m² et de 2 600 m² de terrain à vendre à Bassac (16120). Elle compte trois chambres, une cuisine et une salle de bains.Cette maison est neuve.L’École Primaire Bassac est implantée à moins de 10 minutes à pied. Côté transports, on trouve les gares Jarnac et Châteauneuf-sur-Charente à moins de 10 minutes en voiture. La nationale N141 est accessible à 4 km. Il y a deux boulangeries et un commerce dans les environs.Elle est proposée à l’achat pour 203 800 €.Contactez Pauline MARCHAND ((Numéro supprimé)) pour plus d’informations sur la maison, sur les démarches à suivre ou sur les modalités de vente. Bermax Construction Saint-Yrieix-sur-Charente est là pour vous accompagner à toutes les étapes de votre projet.
Bassac
TERRAIN ET MAISONMaison de 3 pièces (80 m²) en vente à BassacPROCHE D’ANGOULÊME – MAISON 3 PIÈCES NEUVEÀ 19 km d’Angoulême, laissez vous charmer par cette maison de 3 pièces de plain-pied de 80 m² à Bassac (16120).Son intérieur compte trois chambres, une cuisine et une salle de bains. La maison est neuve.Le terrain de la propriété s’étend sur 2 600 m².Il y a l’École Primaire Bassac à moins de 10 minutes à pied. Côté transports, on trouve deux gares (Jarnac et Châteauneuf-sur-Charente) à moins de 10 minutes en voiture. La nationale N141 est accessible à 4 km. Il y a deux boulangeries et un commerce à quelques minutes à peine.Elle est à vendre pour la somme de 168 500 €.Contactez notre agence (Pauline MARCHAND : (Numéro supprimé)) pour toute information sur cette maison, sur les démarches à suivre ou sur les modalités de vente. Bermax Construction Saint-Yrieix-sur-Charente vous accompagne à toutes les étapes de votre projet et dans tous vos projets immobiliers.
Châteauneuf-sur-Charente
TERRAINSur la commune de Viville, entre Châteauneuf et Barbezieux, venez découvrir ce superbe terrain offrant un cadre paisible et verdoyant, idéal pour votre projet de constructions. Possibilité d’acquérir du terrain agricole supplémentaire selon vos besoins. Réseaux en bordure de parcelle, accès facile, environnement agréable et belle exposition. Une belle opportunité rare sur le secteur. Contactez notre Agence ALPHA CONSTRUCTIONS Cognac (Tony Daigre (Numéro supprimé)) pour plus de renseignements.
Châteauneuf-sur-Charente
TERRAIN ET MAISONA découvrir sans tarder! Magnifique maison de 100m² offre un cadre paisible et verdoyant, alliant confort, espace et luminosité. Composé de 3 chambres spacieuses, 2 salle de bain modernes, cuisine fonctionnelle, carport avec garage attenant et un magnifique séjour traversant baigné dans la lumière. Idéalement située à la campagne tout en étant proche des commodités, cette maison séduit par sa luminosité naturelle, son agencement convivial et son environnement calme. PLAN MODULABLE, MODE DE CHAUFFAGE PERFORMANT ET ECONOMIQUE, RE2020, MAT2RIAUX DE QUALITES. PLAN MODULABLE.Contactez notre agence Alpha Constructions Cognac (Tony DAIGRE (Numéro supprimé)) pour plus de renseignements
Châteauneuf-sur-Charente
TERRAIN ET MAISONA découvrir sans tarder! Magnifique maison en H de 145m² offre un cadre paisible et verdoyant, alliant confort, espace et luminosité. Composé de 3 chambres spacieuses, 2 salle de bain modernes, cuisine fonctionnelle avec son garage attenant et un magnifique séjour traversant baigné dans la lumière. Idéalement située à la campagne tout en étant proche des commodités, cette maison séduit par sa luminosité naturelle, son agencement convivial et son environnement calme. PLAN MODULABLE, MODE DE CHAUFFAGE PERFORMANT ET ECONOMIQUE, RE2020, MATERIAUX DE QUALITES. PLAN MODULABLE.Contactez notre agence Alpha Constructions Cognac (Tony DAIGRE (Numéro supprimé)) pour plus de renseignements
Graves-Saint-Amant
TERRAIN ET MAISONMAISON 5 PIÈCES NEUVE RE2020À vendre : Alpha Constructions Cognac vous présente cette maison de 5 pièces de 138 m² et de 1 100 m² de terrain à Saint Amant de Graves (16120).Cette maison comporte 2 niveaux. Elle compte deux chambres, une suite parentale avec un dressing, une cuisine intégré dans une grande pièce de vie lumineuse, un cellier, deux salles de bains et un garage.Vous disposerez de toutes les commodités à quelques minutes à Jarnac ou Châteauneuf, commerces, gare SNCF, pôle santé, clubs de sport, un beau marché etc… On trouve un accès à la nationale N141 à 6 km. .N’hésitez pas à prendre contact avec Tony DAIGRE ((Numéro supprimé)) pour tout renseignement sur cette maison. Alpha Constructions Cognac vous accompagne dans toutes vos démarches et à toutes les étapes de votre projet.
Les Métairies
TERRAINTerrain de 665 m² en vente aux MétairiesEn vente grand terrain. Il est prêt à accueillir la maison de vos rêves pour toute la famille. Ce terrain, avec une exposition ouest, donne sur un espace vert. Son prix de vente est de 51 162 €. Prenez contact avec Aurélie RICOME (Numéro supprimé) pour tout renseignement sur le terrain. Donnez vie à vos projets avec Bermax Construction Saint-Yrieix-sur-Charente.
L’actualité immobilière à Bassac
27/11/2023
02/11/2023
30/10/2023
20/10/2023
16/10/2023
16/10/2023