Maison à construire à Genté (16130)
Images
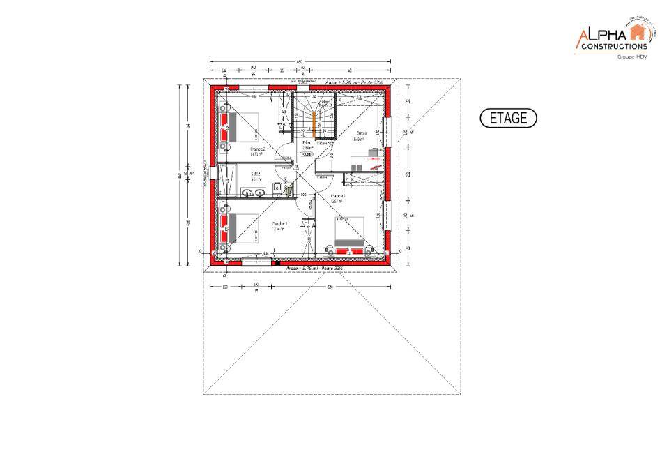
Description
Situé dans un village calme et recherché, à seulement quelques minutes de Cognac et Segonzac, cette jolie maison à construire de 145m² est idéale pour une famille. Vous allez adorer son cadre paisible, sa vue dégagée, son excellent potentiel et sa proximité des commodités.
Cette agréable maison est équipée de 4 chambres lumineuses, une pièce agréable à vivre pour recevoir, 2 salles de bains, WC séparé, terrasse couverte et un garage.
MODE DE CHAUFFAGE ECONOMIQUE. PLAN MODULABLE. PRESTATIONS ET MATERIAUX DE QUALITES. RE2020.
N'hésitez pas à contacter notre agence ALPHA CONSTRUCTIONS Cognac (Tony DAIGRE (Numéro supprimé)) pour plus de renseignements.
Logement susceptibles de vous intéresser
Nous vous proposons de découvrir aussi cette sélection de logements situés à moins de 10km de Genté et qui seraient susceptibles de vous intéresser.
Verrières
TERRAIN ET MAISONSitué dans un village calme à seulement quelques minutes de Segonzac, Cognac et Archiac. Cette jolie maison à construire de 125m² est idéale pour une famille. Vous allez adorer son cadre paisible, sa vue dégagée, son excellent potentiel et sa proximité des commodités. Cette agréable maison est équipée de 3 chambres lumineuses, une pièce agréable à vivre pour recevoir, 2 salles de bains, WC séparé et un garage et carport. MODE DE CHAUFFAGE ECONOMIQUE. PLAN MODULABLE. PRESTATIONS ET MATERIAUX DE QUALITES. RE2020.N’hésitez pas à contacter notre agence ALPHA CONSTRUCTIONS Cognac (Tony DAIGRE (Numéro supprimé)) pour plus de renseignements.
Verrières
TERRAINVenez découvrir une opportunité sur la commune de Verrière, un village paisible proche des commodités. Idéalement située entre Segonzac Cognac et Archiac. Imaginez votre projet de construction dans un cadre authentique, à seulement quelques minutes des axes principaux, tout en bénéficiant de la tranquillité du village. Commerces, écoles et services accessibles à proximité, raccordement en bordure de terrain. N’hésitez pas à contacter notre agence ALPHA CONSTRUCTIONS Cognac (Tony DAIGRE (Numéro supprimé)) pour plus de renseignements.
Genté
TERRAIN ET MAISONSitué au coeur d’un village calme et recherché, à seulement quelques minutes de Cognac et Segonzac, cette jolie maison à construire de 90m² est idéale pour une famille, un premier achat ou un investissement serein. Vous allez adorer son cadre paisible, son excellent potentiel et sa proximité des commodités. Cette agréable maison est équipée de 3 chambres lumineuses, une pièce agréable à vivre pour recevoir, salle de bain avec WC séparé et un garage. MODE DE CHAUFFAGE ECONOMIQUE. PLAN MODULABLE. PRESTATIONS ET MATERIAUX DE QUALITES. RE2020.N’hésitez pas à contacter notre agence ALPHA CONSTRUCTIONS Cognac (Tony DAIGRE (Numéro supprimé)) pour plus de renseignements.
Germignac
TERRAINÀ Germignac (17520) découvrez ce terrain de 800 m² plat, arboré et clôt en partie. Cette charmante commune dispose d’une école primaire et d’une supérette. A moins de 15 minutes de COGNAC et JONZAC vous profiterez de toutes les commodités: commerces, gare SNCF, pôle santé, clubs de sport ..) Les réseaux sont en bordure de terrain eau, électricité et tout à l’égout. Ce terrain est prêt à accueil votre projet de construction. N’hésitez pas à prendre contact avec notre agence (DAIGRE Tony : (Numéro supprimé)) pour tout renseignement sur ce terrain, sur les modalités de vente ou sur les démarches à suivre. Alpha Constructions Cognac est là pour vous accompagner dans tous vos projets immobiliers.
Genté
TERRAIN ET MAISONSitué dans un village calme et recherché, à seulement quelques minutes de Cognac et Segonzac, cette jolie maison à construire de 145m² est idéale pour une famille. Vous allez adorer son cadre paisible, sa vue dégagée, son excellent potentiel et sa proximité des commodités. Cette agréable maison est équipée de 4 chambres lumineuses, une pièce agréable à vivre pour recevoir, 2 salles de bains, WC séparé, terrasse couverte et un garage. MODE DE CHAUFFAGE ECONOMIQUE. PLAN MODULABLE. PRESTATIONS ET MATERIAUX DE QUALITES. RE2020.N’hésitez pas à contacter notre agence ALPHA CONSTRUCTIONS Cognac (Tony DAIGRE (Numéro supprimé)) pour plus de renseignements.
Genté
TERRAINVenez découvrir une opportunité rare sur la commune de Genté, un village paisible et recherché. Idéalement située entre Cognac et Segonzac. Imaginez votre projet de construction dans un cadre authentique, à seulement quelques minutes des axes principaux, tout en bénéficiant de la tranquillité du village. Commerces, écoles et services accessibles à proximité.N’hésitez pas à contacter notre agence ALPHA CONSTRUCTIONS Cognac (Tony DAIGRE (Numéro supprimé)) pour plus de renseignements.
Germignac
TERRAIN ET MAISONMAISON 4 PIÈCES NEUVE RE2020Nous vous présentons cette maison de 4 pièces de plain-pied de 90 m² à Germignac (17520).Elle est composée de trois chambres, d’une cuisine ouvert sur une grande pièce de vie et d’une salle de bains. PLAN MODULABLE. MODE DE CHAUFFAGE ECONOMIQUE. À Germignac (17520) découvrez ce terrain de 800 m² plat, arboré et clôt en partie. Cette charmante commune dispose d’une école primaire et d’une supérette. A moins de 15 minutes de COGNAC et JONZAC vous profiterez de toutes les commodités: commerces, gare SNCF, pôle santé, clubs de sport ..) Les réseaux sont en bordure de terrain eau, électricité et tout à l’égout. N’hésitez pas à prendre contact avec notre agence (DAIGRE Tony : (Numéro supprimé)) pour obtenir de plus amples informations sur la maison, sur les démarches à suivre ou sur les modalités de vente. Alpha Constructions Cognac vous accompagne dans tous vos projets immobiliers et à toutes les étapes de votre projet.
Boutiers-Saint-Trojan
TERRAINTERRAIN CONSTRUCTIBLE – BOUTIERS-SAINT-TROJAN – OPPORTUNITÉ RAREÀ BOUTIERS-SAINT-TROJAN, à seulement 5 km de Cognac, découvrez un TERRAIN CONSTRUCTIBLE d’environ 1200 M², offrant un potentiel idéal pour votre futur projet de vie.Possibilité d’acquérir une surface plus petite, à partir d’environ 600 M², selon vos besoins et votre projet de construction.Situé dans un QUARTIER TRÈS CALME, ce terrain séduit par son CADRE VERDOYANT et sa BONNE EXPOSITION, parfait pour profiter pleinement de la lumière naturelle.Vous bénéficiez de la PROXIMITÉ IMMÉDIATE DE L’ÉCOLE ainsi que des COMMERCES DE PROXIMITÉ, alliant praticité et tranquillité au quotidien.Une OPPORTUNITÉ RARE SUR LA COMMUNE, idéale pour réaliser un projet de construction familiale et harmonieux.Un terrain offrant toutes les conditions pour concrétiser votre projet. Les informations sur les risques auxquels ce bien est exposé sont disponibles sur le site Georisque : georisques. gouv. fr Nicolas Chasseriaud – EI – est Agent Commercial mandataire en immobilier, immatriculé au Registre Spécial des Agents Commerciaux du Tribunal de Commerce de Angoulême sous le n(Numéro supprimé).Siège social du mandant : effiCity, 48 avenue de Villiers – 75017 PARIS – Société par Actions Simplifiée, société au capital de 132 373,05 euros, immatriculée au RCS Paris 497 617 746 et titulaire de la Carte professionnelle CPI 7501 2015 000 002 025 – CCI Paris IDF – Caisse de Garantie : GALIAN Assurances 89 rue de la Boétie 75008 Paris
Cognac
TERRAINDécouvrez ce superbe TERRAIN d’une superficie totale de 3 613 m², dont environ 1 000 m² sont CONSTRUCTIBLES. Une opportunité rare aux abords immédiats de COGNAC.Situé dans un QUARTIER TRÈS CALME, ce bien offre un CADRE DE VIE EXCEPTIONNEL, réunissant le CHARME DE LA CAMPAGNE et la PROXIMITÉ directe de la VILLE : l’HYPERCENTRE de COGNAC est accessible en 5 MINUTES, tout comme les COMMERCES et SERVICES essentiels.Atout rare et recherché : ACCÈS PRIVÉ À LA RIVIÈRE, un véritable plus pour profiter d’un ESPACE NATUREL apaisant au quotidien.La PARCELLE, paisible et VERDOYANTE, est idéale pour un PROJET DE CONSTRUCTION sur mesure, tout en bénéficiant d’un EMPLACEMENT privilégié.Un TERRAIN d’EXCEPTION, alliant TRANQUILLITÉ, NATURE et PRATICITÉ.Un terrain d’exception, alliant tranquillité, nature et praticité. Les informations sur les risques auxquels ce bien est exposé sont disponibles sur le site Georisque : georisques. gouv. fr Nicolas Chasseriaud – EI – est Agent Commercial mandataire en immobilier, immatriculé au Registre Spécial des Agents Commerciaux du Tribunal de Commerce de Angoulême sous le n(Numéro supprimé).Siège social du mandant : effiCity, 48 avenue de Villiers – 75017 PARIS – Société par Actions Simplifiée, société au capital de 132 373,05 euros, immatriculée au RCS Paris 497 617 746 et titulaire de la Carte professionnelle CPI 7501 2015 000 002 025 – CCI Paris IDF – Caisse de Garantie : GALIAN Assurances 89 rue de la Boétie 75008 Paris
L’actualité immobilière à Genté
27/11/2023
02/11/2023
30/10/2023
20/10/2023
16/10/2023
16/10/2023