Images
Description
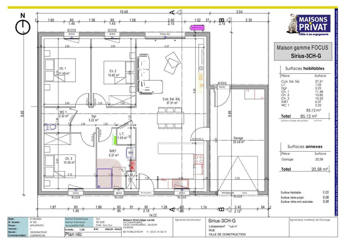
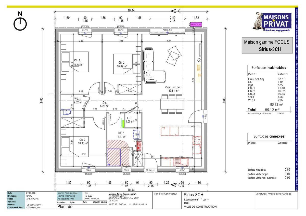
Sur ce terrain, nous vous proposons cette superbe maison de plain-pied au plan optimisé, pensée pour offrir confort et convivialité à toute la famille. Passé l’entrée, vous serez immédiatement séduit par une vaste pièce de vie baignée de lumière, où se côtoient salon, salle à manger et cuisine ouverte, idéale pour partager des moments chaleureux au quotidien.
Côté nuit, trois chambres spacieuses et lumineuses vous attendent, chacune permettant d’installer rangements et bureau selon vos envies. Une salle de bain moderne, un WC complètent cet agencement astucieux, facilitant l’organisation de la vie de famille.
Atout pratique : Un garage attenant de près de 21 m² permet de stationner votre véhicule en toute sécurité, tout en laissant de la place pour un atelier ou du rangement supplémentaire.
Moderne, fonctionnelle et pensée pour un confort optimal, cette maison saura répondre à toutes vos attentes. N’attendez plus pour venir la découvrir et laissez-vous séduire par son agencement harmonieux !
Logement susceptibles de vous intéresser
Nous vous proposons de découvrir aussi cette sélection de logements situés à moins de 10km de Angliers et qui seraient susceptibles de vous intéresser.
Dompierre-sur-Mer
TERRAIN ET MAISONDompierre-sur-Mer : maison neuve 3 chambres garage de 110 m² à vendre !PROCHE DE LA ROCHELLEEn vente à quelques kilomètres de La Rochelle, découvrez cette maison de 4 pièces de plain-pied de 110 m² à Dompierre-sur-Mer (17139). Elle compte trois chambres, deux salles de bains, une cuisine ouverte sur séjour, sur un terrain de 413 m².Elle est à vendre pour la somme de 446 500 €.N’hésitez pas à prendre contact avec notre agence (Yann TRUFFY : (Numéro supprimé)) pour obtenir de plus amples renseignements sur la propriété.
Saint-Jean-de-Liversay
TERRAINÀ saisir, un terrain exceptionnel de 502 m², situé dans un lotissement moderne à Saint-Jean-de-Liversay en Charente-Maritime. Ce terrain entièrement viabilisé représente une opportunité unique pour concrétiser votre projet de construction de maison. Vous pourrez bénéficier d’un cadre de vie agréable et harmonieux, idéal pour les familles souhaitant s’installer dans un environnement paisible. Saint-Jean-de-Liversay, charmante commune de la région Nouvelle-Aquitaine, offre un cadre de vie idéal avec sa proximité aux commodités locales. Profitez des marchés animés, des commerces de proximité et des nombreux loisirs que la ville propose. Vous serez également à quelques minutes des plages de la côte atlantique et des paysages pittoresques de la Charente-Maritime, garantissant ainsi un quotidien agréable et dynamique. N’attendez plus pour découvrir le potentiel de ce terrain dans cette ville pleine de charme! Ce terrain représente une belle opportunité d’investissement. N’hésitez pas à nous contacter pour plus d’informations et pour envisager la réalisation de votre projet de rêve. À noter qu’en tant que constructeur, nous ne sommes pas mandatés pour réaliser la vente de ce terrain.
Saint-Jean-de-Liversay
TERRAIN ET MAISONSur ce terrain, nous vous proposons cette magnifique maison contemporaine de 90,57 m², offrant un cadre de vie idyllique où modernité, confort et nature se rencontrent harmonieusement. Avec ses volumes optimisés, elle est idéale pour une famille à la recherche de bien-être et de sérénité.Un intérieur spacieux et lumineuxDès l’entrée, laissez-vous séduire par un grand espace de vie ouvert de 37 m², baigné de lumière grâce à ses larges baies vitrées offrant une vue imprenable sur le jardin et la piscine. La cuisine moderne et fonctionnelle s’intègre parfaitement à l’espace de réception, créant une atmosphère chaleureuse et conviviale.Au rez-de-chaussée, vous trouverez une suite parentale de 12,18 m², parfaite pour plus d’intimité, une grande pièce de vie de 37 m² avec cuisine ouverte, salon et salle à manger, ainsi qu’une salle d’eau et des WC séparés. Le garage de 22,55 m², accessible directement depuis la maison, offre un espace de rangement idéal.À l’étage, deux chambres confortables de 10,70 m² et 10,74 m² offrent un espace de vie agréable pour les enfants ou les invités. Une salle d’eau spacieuse de 5,56 m² et un palier pouvant être aménagé en bureau ou en espace détente complètent cet étage.* Prix indiqué hors branchements, hors sanitaires, hors revêtement des sols et des murs. Assurance dommages ouvrages incluse.
Saint-Jean-de-Liversay
TERRAINNous vous proposons à la vente un terrain viabilisé de 378 m², idéalement situé dans le charmant lotissement de Saint-Jean-de-Liversay, dans le département de la Charente-Maritime. Ce terrain offre un cadre de vie propice à la construction de votre future maison, dans un environnement calme et verdoyant. C’est une opportunité rare de concevoir une résidence à votre image, tout en bénéficiant d’un emplacement stratégique au sein d’une commune dynamique. Saint-Jean-de-Liversay, nichée en Nouvelle-Aquitaine, vous séduira par ses multiples atouts. À proximité immédiate, vous trouverez de nombreux commerces qui répondront à vos besoins quotidiens, ainsi que des infrastructures scolaires et sportives qui contribuent à la qualité de vie locale. De plus, la ville est idéalement située, permettant d’accéder facilement aux beautés de la Charente-Maritime, avec ses paysages variés et ses attractions historiques. Un lieu parfait pour élever une famille ou profiter de la tranquillité d’un cadre naturel sans être éloigné des commodités du quotidien. Ne manquez pas cette occasion exceptionnelle de donner vie à votre projet immobilier dans un environnement enchanteur. Contactez-nous pour explorer le potentiel de ce terrain et concrétiser vos rêves. À noter qu’en tant que constructeur, nous ne sommes pas mandatés pour réaliser la vente de ce terrain.
Saint-Jean-de-Liversay
TERRAIN ET MAISONSur cet terrain, nous vous proposons cette maison évolutive, conçue pour aujourd’hui et pensée pour demainCe modèle de maison incarne l’harmonie parfaite entre fonctionnalité et adaptabilité, offrant un cadre de vie agréable qui évolue avec vos besoins.Au cœur de cette maison, une spacieuse pièce de vie baignée de lumière naturelle grâce à ses larges ouvertures. Ce séjour chaleureux, avec sa cuisine ouverte moderne, constitue un espace idéal pour partager des moments en famille ou entre amis.À proximité, une chambre et une salle d’eau offrent un espace nuit fonctionnel et pratique.Adossé à la maison, un garage de presque 58m² représente bien plus qu’un simple espace de stationnement. Conçu pour évoluer, il peut être transformé en un véritable espace de vie supplémentaire. En fonction de vos besoins, cet espace pourra accueillir jusqu’à trois chambres et une seconde salle d’eau, apportant ainsi une solution idéale pour agrandir votre maison sans contrainte majeure.Grâce à une conception intelligente et anticipée, cette maison s’adapte à votre mode de vie, que ce soit pour accueillir une famille grandissante, créer un espace de travail ou offrir un confort supplémentaire à vos proches.En choisissant cette maison évolutive, vous investissez dans un habitat durable, adaptable et conçu pour le bien-être de toute votre famille.
Saint-Jean-de-Liversay
TERRAINDécouvrez ce terrain d’une superficie généreuse de 402 m², idéalement situé dans un quartier recherché de Saint-Jean-de-Liversay. Viabilisé et prêt à accueillir votre projet de construction de maison, ce terrain offre un cadre de vie prometteur au cœur de la Charente-Maritime. Ses caractéristiques uniques en font une opportunité rare pour réaliser votre rêve immobilier. Située en Nouvelle-Aquitaine, Saint-Jean-de-Liversay bénéficie d’un environnement paisible tout en offrant un accès rapide aux commodités urbaines. Cette charmante commune est proche de nombreuses attractions, telles que des sentiers de randonnée pittoresques et des équipements sportifs. Les écoles et les commerces de proximité sont facilement accessibles, rendant ce terrain particulièrement attractif pour les familles souhaitant s’y installer. Avec son cadre enchanteur et ses infrastructures conviviales, Saint-Jean-de-Liversay se révèle comme un lieu de vie idéal. Ce terrain représente une opportunité rare et précieuse pour ceux qui souhaitent bâtir leur futur dans un environnement privilégié. Ne manquez pas cette chance exceptionnelle de réaliser votre projet immobilier dans un cadre de vie agréable et dynamique. À noter qu’en tant que constructeur, nous ne sommes pas mandatés pour réaliser la vente de ce terrain.
Saint-Jean-de-Liversay
TERRAIN ET MAISONSur ce terrain, nous vous proposons cette superbe maison de plain-pied, alliant confort, modernité et praticité, idéale pour une famille en quête de bien-être.Avec son agencement optimisé, cette maison vous offre une spacieuse pièce de vie baignée de lumière naturelle, comprenant un séjour convivial et une cuisine ouverte fonctionnelle, parfaite pour des moments en famille ou entre amis.L’espace nuit se compose de trois belles chambres offrant confort et sérénité, d’une salle d’eau moderne et de WC séparés pour plus de praticité.Un garage intégré vient compléter ce bien, idéal pour stationner un véhicule ou disposer d’un espace de rangement supplémentaire.
Saint-Jean-de-Liversay
TERRAINNous vous présentons un terrain exceptionnel à vendre, idéalement situé dans le charmant lotissement de Saint-Jean-de-Liversay, dans la Charente-Maritime. D’une superficie de 433 m², ce terrain viabilisé offre un cadre parfait pour la réalisation de votre projet de construction de maison. Sa configuration et son exposition en font un emplacement privilégié pour bâtir votre rêve immobilier dans un environnement serein et accueillant. Saint-Jean-de-Liversay est une ville dynamique, située en Nouvelle-Aquitaine, qui séduit par son ambiance paisible et ses commodités à proximité. Vous profiterez de la proximité des transports, facilitant ainsi vos déplacements, tout en étant à quelques encablures des attractions locales emblématiques de la région. Les commerces, écoles et services de santé sont également facilement accessibles, offrant ainsi un cadre de vie agréable et pratique pour les familles et les jeunes professionnels. Ce terrain représente une réelle opportunité de s’installer dans une commune en pleine évolution. Ne manquez pas cette occasion unique d’acquérir un terrain au potentiel exceptionnel à Saint-Jean-de-Liversay. Contactez-nous pour plus d’informations et pour envisager votre avenir ici. À noter qu’en tant que constructeur, nous ne sommes pas mandatés pour réaliser la vente de ce terrain.
Saint-Jean-de-Liversay
TERRAIN ET MAISONSur ce terrain, nous vous proposons cette maison neuve : l’Aixoise, un coquet pavillon familial de plain-pied. Disponible en T4 sur une superficie de 80 m², l’Aixoise est une jolie maison traditionnelle qui saura répondre à toutes vos attentes.Une maison neuve idéale pour installer votre petite famille. Vous apprécierez l’espace nuit agrémenté d’un dégagement le rendant véritablement indépendant de la pièce de vie. Il est composé de trois chambres, d’une salle de bain et de w.c. séparés. Le grand séjour traversant est doté d’une cuisine ouverte avec accès au garage intégré. D’une conception pratique et originale tout à la fois, cette demeure a beaucoup d’atouts pour séduire, même les plus exigeants.Les caractéristiques principales de cette maison incluent un toit à 2 pans ou 4 pans, des baies coulissantes pour une luminosité optimale, et un garage intégré. De plus, cette maison neuve est basse consommation et conforme à la RE2020, garantissant ainsi des économies d’énergie et un confort de vie optimal.Les options les plus demandées par nos clients sont également disponibles : une terrasse en béton poreux, un plancher chauffant, des menuiseries en aluminium, et un système de domotique pour une maison connectée et moderne.Construite par Maisons Privat, constructeur centenaire avec les meilleurs avis clients de la région, l’Aixoise est la maison idéale pour votre famille. Ne manquez pas cette opportunité unique de vivre dans une maison neuve, confortable et économe en énergie. Contactez-nous dès aujourd’hui pour plus d’informations !
L’actualité immobilière à Angliers
27/11/2023
02/11/2023
30/10/2023
20/10/2023
16/10/2023
16/10/2023