Images
Description
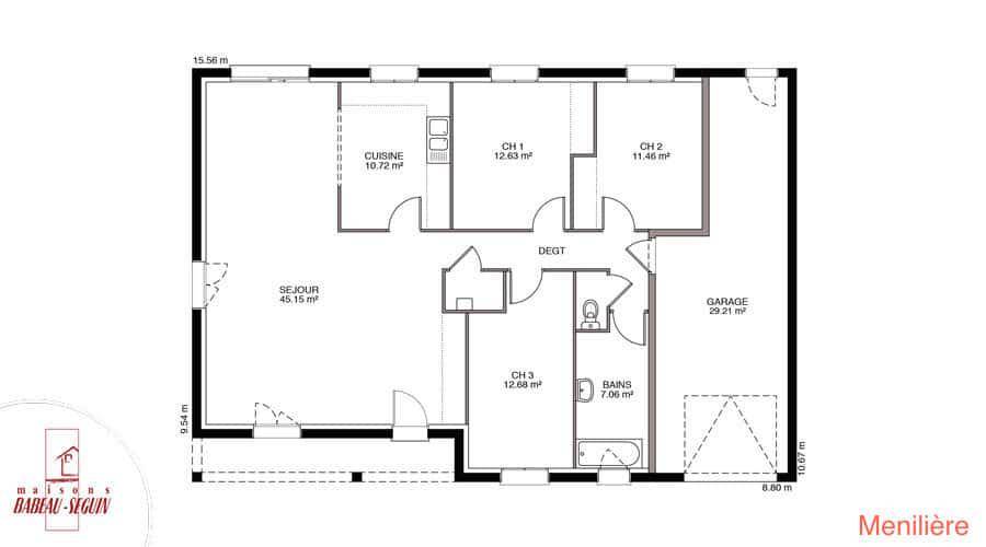
Sur ce terrain, nous vous proposons cette maison neuve, la Ménilière Sud, conçue par Babeau-Seguin, constructeur offrant le meilleur rapport qualité/prix du marché. Avec une surface de 73 m², cette maison basse consommation, conforme à la RE2020, est idéale pour ceux qui recherchent confort et économies d'énergie.
La Ménilière Sud se compose de 3 pièces, dont 2 chambres spacieuses, parfaites pour accueillir une petite famille ou pour disposer d'un espace bureau. Son garage intégré vous offre un espace de stationnement sécurisé et pratique, tandis que vous avez également la possibilité d'opter pour un garage ou un sous-sol selon vos besoins.
Cette maison traditionnelle du sud, avec ses tuiles canal et son architecture élégante, s'adapte parfaitement à votre terrain. Très facilement personnalisable, elle vous permet de créer un espace de vie qui vous ressemble. Son porche avant, pratique et esthétique, vous protégera des intempéries lorsque vous cherchez vos clés les jours de pluie.
Offrant un rapport qualité/prix de premier ordre, la Ménilière Sud est le modèle sur-mesure le plus vendu de Babeau-Seguin. Ne manquez pas cette opportunité unique de devenir propriétaire d'une maison neuve, économe en énergie et parfaitement adaptée à vos besoins. Contactez-nous dès aujourd'hui pour plus d'informations et pour découvrir toutes les options de personnalisation disponibles.
Logement susceptibles de vous intéresser
Nous vous proposons de découvrir aussi cette sélection de logements situés à moins de 10km de Authon-Ébéon et qui seraient susceptibles de vous intéresser.
Brizambourg
TERRAIN ET MAISONCoiffée de longues toitures aux élégants débords, cette maison affirme résolument son style contemporain et sobrement élégant.Un joli porche vous accueille et la porte d’entrée s’ouvre sur un grand salon-séjour de 46 m2. Une belle cuisine fermée de presque 10m2 avec un cellier attenant donne vers l’extérieur sur une terrasse couverte, parfaite pour profiter des repas aux beaux jours.Chaque chambre dispose d’un emplacement placard. La plus grande chambre est complétée par une salle d’eau. Vous serez séduit(e) par ses volumes optimisés, ses finitions et son agencement très fonctionnel.Vous préférez une cuisine ouverte ? Vous souhaitez revoir l’agencement d’une pièce ? C’est possible car ce modèle est 100% personnalisable !Contact et renseignements: Cédric RÊTEUX (Numéro supprimé)
Brizambourg
TERRAIN ET MAISONFort d’une expérience de près de 40 ans, Maisons MCA vous accompagne dans votre projet.Maison de plain-pied de 85 m², comprenant une belle pièce à vivre lumineuse, dédiée à la cuisine et au séjour, 3 chambres dont une suite parentale, une salle d’eau équipée, un WC, cellier et un garage.Outre ses nombreuses possibilités de personnalisations, cette maison saura aussi vous séduire par la qualité de ses menuiseries et de ses équipements, notamment ses volets roulants motorisés. Ces derniers sont pilotables depuis votre smartphone ou votre tablette grâce à la box domotique fournie.Pour un confort optimal en toute saison, le séjour/cuisine est équipé d’émetteurs Air/Air permettant de chauffer ou climatiser le volume de la pièce très rapidement.Cette maison est conforme à la Réglementation Environnementale 2020 (RE 2020).Classe énergétique : AGaranties et assurances obligatoires incluses (voir détails en agence). Prix indicatif hors peintures et hors options. Dans ce même secteur nous disposons de nombreux terrains, n’hésitez pas à contacter Cédric RÊTEUX pour un devis gratuit, rapide et sans engagement, du lundi au samedi de 9h00 à 19h00 sans interruption.Renseignements Cédric RÊTEUX (Numéro supprimé)Projet de construction Maisons MCA
Écoyeux
TERRAINFiche N°Id-TCT178420 : ECOYEUX Fiche BC178420 : Ecoyeux, Terrain d’environ 645 m2 de 645 m2 – Vue : D?gag?e – – Plus d’informations disponibles sur demande… – Mentions légales : Proposé à la vente à 39750 Euros (Dont 8.16% TTC d’honoraires à la charge de l’acquéreur, soit un prix hors honoraires de 36750 Euros) – Affaire suivie par Mme Angelique ROCARD (Agent commercial independant) – Reseau Immo-Diffusion Saint Jean D’angely – Pour plus d’informations, contactez notre secrétariat au (Numéro supprimé) (Appel gratuit ou prix d’une communication locale)
Brizambourg
TERRAIN ET MAISONCette maison résolument contemporaine avec un salon-séjour spacieux traversant s’ouvre sur une agréable terrasse couverte, pour profiter au maximum de l’ensoleillement offert par l’exposition.Un large espace à vivre jouxté d’une cuisine ouverte avec son cellier attenant, donne sur une pergola.Vous serez également séduit par sa suite parentale avec son dressing et sa salle de bain privative, par ses volumes optimisés, ses finitions et son agencement très fonctionnel.Cette maison est personnalisable pour s’adapter à votre mode de vie.Le prix comprend le terrain, les frais de notaire et la construction.Hors frais de branchements et raccordements, hors peinture et sols des chambres. Renseignements et rdv: Cédric RÊTEUX (Numéro supprimé)Construction Les Maisons MCA
Brizambourg
TERRAIN ET MAISONDécouvrez la charmante maison Lilas, un modèle rectangulaire conçu pour répondre à tous vos besoins. Avec ses trois chambres, une salle de bains moderne et un WC séparé, elle offre un agencement pratique et fonctionnel pour votre vie quotidienne.Dès votre entrée, passé un mignon et pratique petit porche, vous serez accueilli par un placard pratique qui vous permettra de ranger vos affaires en toute discrétion. Le modèle de maison Lilas se distingue également par sa cuisine américaine avec un cellier attenant, intégrée dans une pièce à vivre spacieuse de 40 mètres carrés. Imaginez les délicieux repas que vous pourrez préparer tout en restant en contact avec vos invités dans cet espace convivial et lumineux.Contact et renseignements: Cédric RÊTEUX (Numéro supprimé)Projet de construction signé les Maisons MCAMaisons de la Côte Atlantique Saintes est là pour vous accompagner dans tous vos projets immobiliers.Découvrez la charmante maison Lilas, un modèle rectangulaire conçu pour répondre à tous vos besoins. Avec ses trois chambres, une salle de bains moderne et un WC séparé, elle offre un agencement pratique et fonctionnel pour votre vie quotidienne.Dès votre entrée, passé un mignon et pratique petit porche, vous serez accueilli par un placard pratique qui vous permettra de ranger vos affaires en toute discrétion. Le modèle de maison Lilas se distingue également par sa cuisine américaine avec un cellier attenant, intégrée dans une pièce à vivre spacieuse de 40 mètres carrés. Imaginez les délicieux repas que vous pourrez préparer tout en restant en contact avec vos invités dans cet espace convivial et lumineux.Contact et renseignements: Cédric RÊTEUX (Numéro supprimé)Projet de construction signé les Maisons MCAMaisons de la Côte Atlantique Saintes est là pour vous accompagner dans tous vos projets immobiliers.
Brizambourg
TERRAIN🌿 Terrain à bâtir viabilisé à Brizambourg – 560 m² – 20 000 €📍 Cadre calme et agréable, proche des commoditésDécouvrez ce terrain plat de 560 m², entièrement viabilisé (eau, électricité, tout-à-l’égout), idéal pour votre première maison ou un projet sur mesure dans un environnement paisible.✅ Terrain plat et prêt à construire✅ Quartier résidentiel tranquille✅ Accès facile aux communes voisines✅ Exposition favorable pour une maison lumineuse et économe💡 Projet clé en main avec Maisons MCA : réalisez votre maison sur mesure avec un constructeur reconnu pour la qualité et la personnalisation en Charente-Maritime.📞 Contactez-nous dès maintenant pour plus d’informations ou pour bénéficier d’une étude gratuite et personnalisée de votre projet maison + terrain !Cédric RÊTEUX (Numéro supprimé)
Brizambourg
TERRAIN ET MAISONFort d »une expérience de près de 40 ans, Maisons MCA vous accompagne dans votre projet. Contactez nous pour avoir un accompagnement personnalisé à votre projet.Nous vous proposons votre projet de construction d »une maison de plain pied de 87 m2. Le coin nuit se compose de 3 chambres, une salle d »eau et WC séparés. La pièce de vie offre une triple expositions pour une grande luminosité. Le prix comprend le terrain, les frais de notaire, et la construction. Hors branchements et raccordements. Contact et renseignements: Cédric RÊTEUX (Numéro supprimé)
Saint-Sulpice-de-Cognac
TERRAINVENTE d’un terrain de 2 400 m² à Saint-Sulpice-de-CognacIDÉALEMENT SITUÉ – VUE DÉGAGÉEIl est proposé à l’achat pour 49 500 €. Contactez Pascal DECOU ((Numéro supprimé)) pour tout renseignement sur ce terrain, sur les modalités de vente ou sur les démarches à suivre. Bermax Construction Saintes vous accompagne dans tous vos projets immobiliers et dans toutes vos démarches.
Saint-Sulpice-de-Cognac
TERRAIN ET MAISONSaint-Sulpice-de-Cognac : maison T3 (2 chambres) Le terrain de cette maison s’étend sur 2 400 m².La maison se situe dans un quartier prisé. L’École Primaire Buhet y est implantée. Côté transports, on trouve la gare Cognac à moins de 10 minutes en voiture. La nationale N141 est accessible à 8 km. Il y a une boulangerie dans les environs.Elle est proposée à l’achat pour 159 985 €.Prenez contact avec notre agence (Pascal DECOU : (Numéro supprimé)) pour plus de renseignements sur le bien, sur les modalités de vente ou sur les démarches à suivre.
L’actualité immobilière à Authon-Ébéon
27/11/2023
02/11/2023
30/10/2023
20/10/2023
16/10/2023
16/10/2023