Images
Description
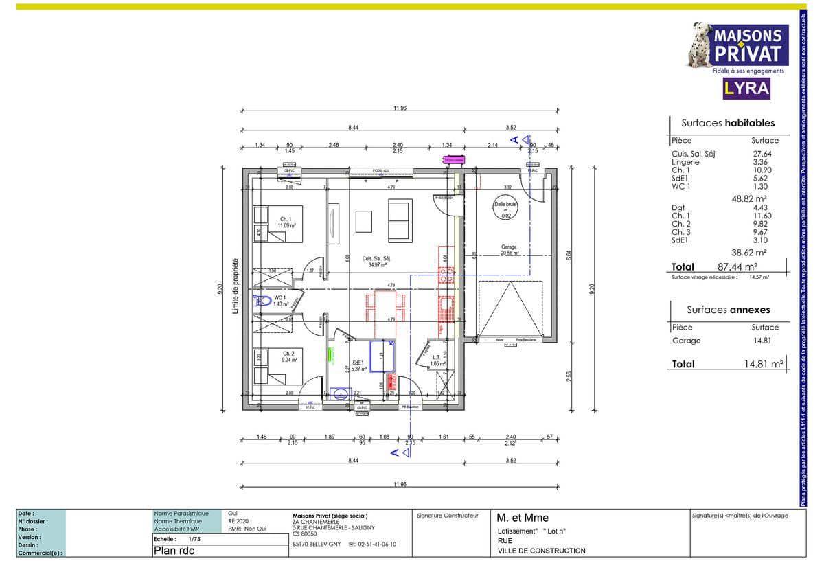
Sur ce terrain, nous vous proposons cette maison de plain-pied au design contemporain, idéale pour un confort de vie au quotidien. Ses deux chambres offrent un espace nuit cosy, tandis que la vaste pièce de vie de plus de 35 m² réunit cuisine ouverte, salle à manger et salon, baignés de lumière naturelle. Vous profiterez également d’une salle d’eau moderne et d’un WC indépendant, pensés pour simplifier votre quotidien.
Le garage de plus de 20 m² constitue un atout majeur pour stationner votre véhicule en toute sécurité ou aménager un espace de bricolage.
Son architecture élégante, soulignée par une toiture à double pente, s’intègre harmonieusement à l’environnement. Ne manquez pas cette belle opportunité?: chaque détail a été soigneusement étudié pour vous garantir une qualité de vie incomparable.
Logement susceptibles de vous intéresser
Nous vous proposons de découvrir aussi cette sélection de logements situés à moins de 10km de Ballon et qui seraient susceptibles de vous intéresser.
Salles-sur-Mer
TERRAIN ET MAISONTerrain + Maison à Salles-sur-Mer (17220)Terrain : 403 m²Terrain seul : 198 000 €Offre Terrain + Maison : à partir de 465900 €*Situé à Salles-sur-Mer, charmante commune recherchée à proximité immédiate de La Rochelle et des plages, ce beau terrain de 403 m² vous offre un cadre de vie calme et agréable.Votre future maison contemporaine signée MAISONS ACCO – Groupe HEXAOM comprend :Une suite parentale avec salle d’eau privativeUne terrasse couverte pour profiter de l’extérieur toute l’annéeDe nombreuses ouvertures pour un intérieur lumineux et accueillantConception personnalisée et accompagnement complet par MAISONS ACCO – Groupe HEXAOM, constructeur reconnu pour la qualité et la fiabilité de ses réalisations.📞 Contact : Julie HOLDRY – (Numéro supprimé)MAISONS ACCO – Groupe HEXAOM*Prix indicatif comprenant le terrain, la maison et les frais estimés, sous réserve de disponibilité et d’étude personnalisée.
Ciré-d'Aunis
TERRAIN ET MAISONTerrain + Maison à Ciré-d’Aunis (17290) Terrain : 300 m²Terrain seul : 60 000 €Offre Terrain + Maison : à partir de 216 600 €*Découvrez ce beau terrain viabilisé situé à Ciré-d’Aunis, charmante commune à seulement quelques minutes de La Rochelle et de Rochefort. Profitez d’un cadre de vie calme et agréable, proche des écoles, commerces et services.Votre future maison familiale de 3 chambres signée MAISONS ACCO – Groupe HEXAOM comprend :Un garage intégréTrois chambres spacieusesUn espace de vie lumineux et fonctionnel, idéal pour la familleAccompagnement sur mesure avec MAISONS ACCO – Groupe HEXAOM, constructeur reconnu pour la qualité et la performance de ses réalisations.Contact : Julie HOLDRY – (Numéro supprimé)MAISONS ACCO – Groupe HEXAOM*Prix indicatif comprenant le terrain, la maison et les frais estimés, sous réserve de disponibilité et d’étude personnalisée.
Ballon
TERRAINNous vous présentons un terrain à vendre dans un beau lotissement. Ce terrain est entièrement viabilisé et prêt à accueillir un projet de construction de maison. Ce terrain offre un cadre champêtre et ensoleillé, parfait pour ceux qui cherchent à s’installer dans un environnement calme tout en préservant leur qualité de vie. Idéal pour une maison familiale ou un projet de résidence secondaire, cet espace promet de devenir un havre de paix. Ce terrain possède un potentiel indéniable pour concrétiser votre projet immobilier. N’hésitez pas à saisir cette opportunité d’achat unique. À noter qu’en tant que constructeur, nous ne sommes pas mandatés pour réaliser la vente de ce terrain.
Ballon
TERRAIN ET MAISONSur ce terrain, nous vous proposons cette maison de plain-pied au design contemporain, idéale pour un confort de vie au quotidien. Ses deux chambres offrent un espace nuit cosy, tandis que la vaste pièce de vie de plus de 35 m² réunit cuisine ouverte, salle à manger et salon, baignés de lumière naturelle. Vous profiterez également d’une salle d’eau moderne et d’un WC indépendant, pensés pour simplifier votre quotidien.Le garage de plus de 20 m² constitue un atout majeur pour stationner votre véhicule en toute sécurité ou aménager un espace de bricolage. Son architecture élégante, soulignée par une toiture à double pente, s’intègre harmonieusement à l’environnement. Ne manquez pas cette belle opportunité?: chaque détail a été soigneusement étudié pour vous garantir une qualité de vie incomparable.
Ballon
TERRAINNous vous présentons un terrain à vendre dans un beau lotissement. Ce terrain est entièrement viabilisé et prêt à accueillir un projet de construction de maison. Ce terrain offre un cadre champêtre et ensoleillé, parfait pour ceux qui cherchent à s’installer dans un environnement calme tout en préservant leur qualité de vie. Idéal pour une maison familiale ou un projet de résidence secondaire, cet espace promet de devenir un havre de paix. Ce terrain possède un potentiel indéniable pour concrétiser votre projet immobilier. N’hésitez pas à saisir cette opportunité d’achat unique. À noter qu’en tant que constructeur, nous ne sommes pas mandatés pour réaliser la vente de ce terrain.
Ballon
TERRAIN ET MAISONSur ce terrain, nous vous proposons cette maison neuve : la Blainium, une maison résolument moderne et très singulière. La Blainium, une maison de plain-pied contemporaine, propose une façade très stylée et originale avec ses jeux de toiture et de façades. Par ailleurs, ses grandes fenêtres laissent entrer généreusement la lumière extérieure. Cette demeure est disponible en plusieurs variantes, dans des dimensions allant de 85 à 125 m². En configuration 3 ou 4 chambres, avec ou sans bureau, dressing, salle d’eau privative, notre seule limite c’est votre imagination.Avec une surface de 110 m², cette maison dispose de 3 chambres et de 4 pièces. En partie jour, vous disposerez d’un hall d’entrée qui donne sur un vaste séjour, une cuisine ouverte qui se prête à accueillir un grand îlot central, et un cellier. Le garage pratique d’accès est accolé. Parmi les caractéristiques principales, vous trouverez un toit plat, un garage accolé, un dressing et une suite parentale.Les options les plus demandées par nos clients sont également disponibles : menuiseries en aluminium, enduit bi-ton, plancher chauffant et double garage. Cette maison neuve est basse consommation et conforme à la RE2020, vous garantissant ainsi une habitation éco-responsable et économique.Maisons Privat, constructeur centenaire avec les meilleurs avis clients de la région, vous permet de vivre votre rêve dans une maison unique. Posséder une maison neuve exceptionnelle n’a jamais été aussi accessible. La Blainium permet de vivre son rêve dans une maison unique. Cette habitation vous permettra de réaliser votre rêve : posséder une maison neuve exceptionnelle.
Landrais
TERRAIN ET MAISONSur ce terrain, nous vous proposons cette maison neuve, la Dompierre, conçue par le constructeur Elysees Ocean, reconnu pour ses excellents avis clients. Cette maison de 120 m², basse consommation et conforme à la RE2020, est idéale pour les familles à la recherche de confort et de modernité.La Dompierre se distingue par son architecture contemporaine de standing, articulée autour d’un mur rideau de plus de 30 m² orienté plein sud. Ce mur rideau illumine le séjour au rez-de-chaussée et une grande mezzanine-bureau à l’étage, offrant un volume étendu et harmonieux à la pièce à vivre. Vous aurez l’impression que l’intérieur et l’extérieur de la maison ne font qu’un.Le confort d’été est assuré par un brise-soleil vertical sur la partie haute et horizontal pour les vantaux coulissants du rez-de-chaussée, ainsi que des vitrages auto-nettoyants et performants sur le plan thermique. Une petite terrasse privative se love à l’arrière de la maison entre la cuisine et la salle de bain parentale, offrant un espace protégé pour les déjeuners et après-midis d’été.La maison dispose de 4 chambres, dont une suite parentale, et de 4 pièces principales. L’escalier luxueux de la collection Plénitude ajoute une touche d’élégance à l’intérieur. Un garage accolé complète les prestations de cette maison.Les options les plus demandées par nos clients, telles que le bardage Vibrato et les menuiseries en aluminium, sont également disponibles pour personnaliser votre future maison.Ne manquez pas cette opportunité unique de devenir propriétaire d’une maison neuve, moderne et économe en énergie, conçue par Elysees Ocean, le constructeur de confiance.
Landrais
TERRAINDécouvrez ce terrain exceptionnel de 603 m², niché dans la charmante ville de Landrais, en Charente-Maritime. Ce bien unique saura séduire les acheteurs potentiels par sa tranquillité, son cadre champêtre et son ensoleillement optimal. Idéalement situé, ce terrain offre de multiples opportunités pour un projet de construction de maison, permettant ainsi à chacun de dessiner l’espace de vie de ses rêves dans un environnement paisible et sécurisé. Landrais, une perle de la Nouvelle-Aquitaine, se distingue par son atmosphère conviviale et ses attraits locaux. À proximité, vous pourrez profiter de toutes les commodités nécessaires au quotidien ainsi que de magnifiques espaces naturels à explorer. Ce secteur est réputé pour son ambiance agréable et sa qualité de vie, vous permettant de bénéficier d’un cadre idyllique tout en étant proche des services et des activités locales. C’est l’endroit parfait pour allier tranquillité et vie active. Ne manquez pas l’opportunité d’acquérir ce terrain au potentiel exceptionnel et envisagez dès maintenant la réalisation de votre projet de vie. Contactez-nous pour plus d’informations ! À noter qu’en tant que constructeur, nous ne sommes pas mandatés pour réaliser la vente de ce terrain.
Ballon
TERRAIN ET MAISONBallon : maison T5 82 m² en ventePROCHE DE LA ROCHELLE ET ROCHEFORTEn vente : localisée à 11 km de l’océan Atlantique et à deux pas de La Rochelle, nous sommes heureux de vous proposer cette maison de 5 pièces de plain-pied de 82 m² et de 435 m² de terrain à Ballon (17290). Conçue de plain-pied, elle est composée de trois chambres, d’une cuisine et d’une salle de bains.L’École Maternelle Ballon est implantée à moins de 10 minutes à pied, tout comme une crèche. Elle est à vendre pour la somme de 231 700 €.Contactez Julie HOLDRY ((Numéro supprimé)) pour plus de renseignements sur cette maison.
L’actualité immobilière à Ballon
27/11/2023
02/11/2023
30/10/2023
20/10/2023
16/10/2023
16/10/2023