Images
Description
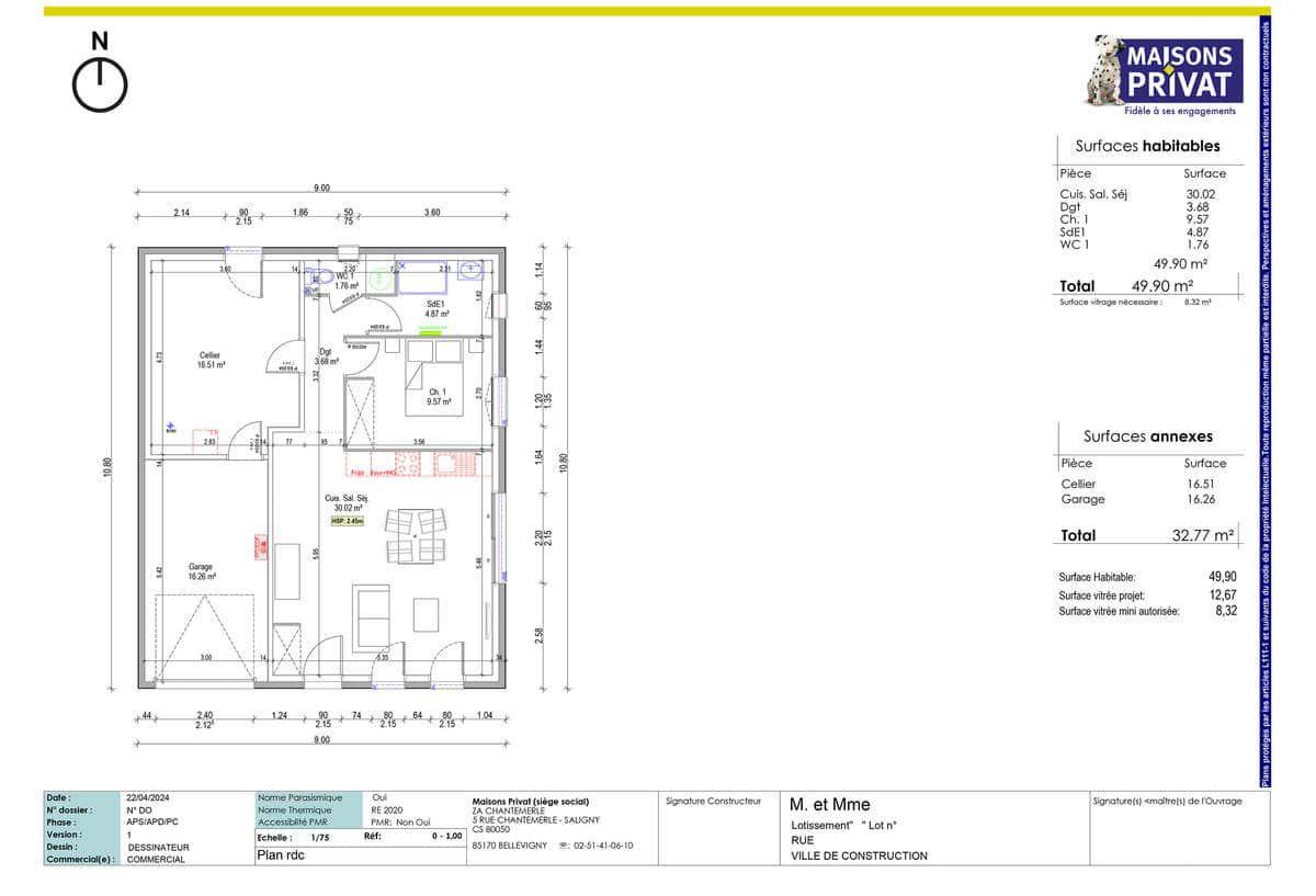
Sur ce terrain, nous vous proposons ce modèle de maison qui incarne l'harmonie parfaite entre fonctionnalité et adaptabilité, elle est conçue pour répondre à vos besoins présents tout en anticipant vos projets futurs.
Le cœur de cette maison est une pièce de vie spacieuse et lumineuse de 30 m², judicieusement aménagée pour maximiser le confort et l'utilité. Cet espace multifonctionnel combine un salon / séjour accueillant, et une cuisine ouverte moderne. Les grandes fenêtres baignent la pièce de lumière naturelle, créant une atmosphère chaleureuse et accueillante, idéale pour se détendre ou recevoir des invités.
À côté de la pièce de vie se trouvent une chambre et une salle d’eau.
Adossé à la maison, un garage de 34 m.² offre un espace pratique pour garer un véhicule ou stocker des équipements.
La conception de cette maison intègre dès le départ la possibilité d'évolution. Lorsque le moment sera venu d'agrandir, l'atelier actuel pourra être aménagé en une chambre avec salle d'eau ou dressing. Cette transformation est facilitée par une infrastructure prévue pour accueillir les installations sanitaires nécessaires. Cette flexibilité permet d'adapter la maison à l'évolution de votre famille ou de vos besoins sans compromis sur le confort ou la qualité de vie.
En résumé, cette maison évolutive est une solution idéale pour ceux qui cherchent à investir dans un habitat adaptable et durable.
* Prix indiqué hors branchements, hors sanitaires, hors revêtement des sols et des murs. Assurance dommages ouvrages incluse.
Logement susceptibles de vous intéresser
Nous vous proposons de découvrir aussi cette sélection de logements situés à moins de 10km de Benon et qui seraient susceptibles de vous intéresser.
Courçon
TERRAINNous vous proposons à la vente un terrain exceptionnelle d’une superficie de 405 m², idéalement situé à Courçon, au cœur de la belle Charente-Maritime. Ce terrain viabilisé offre une opportunité parfaite pour la construction de votre future maison, vous permettant de réaliser votre projet à votre image dans un environnement paisible et accueillant. Avec son cadre verdoyant et ses caractéristiques uniques, ce terrain saura séduire les futurs propriétaires désireux de s’installer dans une région dynamique. Courçon, située dans le département de la Charente-Maritime en Nouvelle-Aquitaine, est une ville qui conjugue charmante atmosphère locale et proximité des commodités essentielles. Vous pourrez profiter de diverses attractions, notamment des marchés animés et des paysages naturels à couper le souffle. De plus, la proximité des services de santé, des écoles et des commerces donne à ce quartier un attrait indéniable pour les familles et les jeunes actifs. Ne manquez pas cette occasion d’acquérir un terrain dans une localité prometteuse et pleine de vie. Ce terrain représente une opportunité unique à ne pas manquer pour tous ceux qui souhaitent bâtir leur avenir dans un cadre de vie agréable. Pensez à envisager cette belle parcelle pour réaliser votre rêve d’habitat. À noter qu’en tant que constructeur, nous ne sommes pas mandatés pour réaliser la vente de ce terrain.
Courçon
TERRAIN ET MAISONSur ce terrain, nous vous proposons cette maison de plain-pied au design contemporain, idéale pour un confort de vie au quotidien. Ses deux chambres offrent un espace nuit cosy, tandis que la vaste pièce de vie de plus de 35 m² réunit cuisine ouverte, salle à manger et salon, baignés de lumière naturelle. Vous profiterez également d’une salle d’eau moderne et d’un WC indépendant, pensés pour simplifier votre quotidien.Le garage de plus de 20 m² constitue un atout majeur pour stationner votre véhicule en toute sécurité ou aménager un espace de bricolage. Son architecture élégante, soulignée par une toiture à double pente, s’intègre harmonieusement à l’environnement. Ne manquez pas cette belle opportunité?: chaque détail a été soigneusement étudié pour vous garantir une qualité de vie incomparable.
Courçon
TERRAINNous vous présentons un terrain en vente d’une superficie généreuse dans un charmant lotissement situé à Courçon, en Charente-Maritime. Avec des caractéristiques viabilisées, ce terrain est idéal pour un projet de construction de maison. Son emplacement exceptionnel vous permet de bénéficier de l’air pur de la campagne tout en restant à proximité des commodités essentielles, vous assurant ainsi un cadre de vie agréable et équilibré. Courçon, nichée en Nouvelle-Aquitaine, se distingue par son cadre paisible et ses atouts locaux. Vous trouverez à proximité des attractions naturelles ainsi que des services variés, notamment des commerces, des écoles et des espaces de loisirs. Cette ville dynamique est également idéale pour les amoureux de la nature, offrant de belles promenades et un accès facile aux merveilles de la Charente-Maritime, vous promettant ainsi une qualité de vie sans égale. Ce terrain représente une opportunité unique pour les acheteurs en quête d’un emplacement privilégié pour réaliser leur rêve immobilier. N’attendez plus pour envisager ce potentiel exceptionnel. À noter qu’en tant que constructeur, nous ne sommes pas mandatés pour réaliser la vente de ce terrain.
Courçon
TERRAIN ET MAISONSur ce terrain, nous vous proposons cette superbe maison de plain-pied au plan optimisé, pensée pour offrir confort et convivialité à toute la famille. Passé l’entrée, vous serez immédiatement séduit par une vaste pièce de vie baignée de lumière, où se côtoient salon, salle à manger et cuisine ouverte, idéale pour partager des moments chaleureux au quotidien.Côté nuit, trois chambres spacieuses et lumineuses vous attendent, chacune permettant d’installer rangements et bureau selon vos envies. Une salle de bain moderne, un WC complètent cet agencement astucieux, facilitant l’organisation de la vie de famille.Atout pratique : Un garage attenant de près de 21 m² permet de stationner votre véhicule en toute sécurité, tout en laissant de la place pour un atelier ou du rangement supplémentaire.Moderne, fonctionnelle et pensée pour un confort optimal, cette maison saura répondre à toutes vos attentes. N’attendez plus pour venir la découvrir et laissez-vous séduire par son agencement harmonieux !
Courçon
TERRAINÀ la recherche d’un écrin pour votre projet de vie ? Nous vous proposons ce terrain idéalement situé à Courçon, dans la Charente-Maritime. D’une superficie généreuse, ce terrain viabilisé constitue une opportunité parfaite pour construire la maison de vos rêves. Le lotissement dans lequel il se trouve offre un cadre calme et agréable, propice à l’épanouissement de toute la famille, le tout à proximité des commodités locales. Courçon, localisé en Nouvelle-Aquitaine, est une ville dynamique qui allie charme et praticité. Vous profiterez de la proximité immédiate des commerces et des écoles, ce qui facilitera votre quotidien. La région est également connue pour ses activités récréatives et culturelles qui sauront séduire petits et grands. C’est un cadre de vie recherché, où tranquillité et accessibilité se rencontrent, idéal pour établir votre foyer. N’attendez plus pour envisager cette opportunité unique d’acquérir un terrain à fort potentiel. Ne laissez pas passer votre chance de réaliser vos rêves de construction ! À noter qu’en tant que constructeur, nous ne sommes pas mandatés pour réaliser la vente de ce terrain.
Courçon
TERRAIN ET MAISONSur cet terrain, nous vous proposons cette maison évolutive, conçue pour aujourd’hui et pensée pour demainCe modèle de maison incarne l’harmonie parfaite entre fonctionnalité et adaptabilité, offrant un cadre de vie agréable qui évolue avec vos besoins.Au cœur de cette maison, une spacieuse pièce de vie baignée de lumière naturelle grâce à ses larges ouvertures. Ce séjour chaleureux, avec sa cuisine ouverte moderne, constitue un espace idéal pour partager des moments en famille ou entre amis.À proximité, une chambre et une salle d’eau offrent un espace nuit fonctionnel et pratique.Adossé à la maison, un garage de presque 58m² représente bien plus qu’un simple espace de stationnement. Conçu pour évoluer, il peut être transformé en un véritable espace de vie supplémentaire. En fonction de vos besoins, cet espace pourra accueillir jusqu’à trois chambres et une seconde salle d’eau, apportant ainsi une solution idéale pour agrandir votre maison sans contrainte majeure.Grâce à une conception intelligente et anticipée, cette maison s’adapte à votre mode de vie, que ce soit pour accueillir une famille grandissante, créer un espace de travail ou offrir un confort supplémentaire à vos proches.En choisissant cette maison évolutive, vous investissez dans un habitat durable, adaptable et conçu pour le bien-être de toute votre famille.
Benon
TERRAIN25 mn LA ROCHELLE – Terrain à bâtir situé dans un environnement très calme et résidentiel sans vis à vis – Toute viabilité sur rue –
Benon
TERRAIN ET MAISONSur ce terrain, nous vous proposons cette superbe maison de plain-pied, alliant confort, modernité et praticité, idéale pour une famille en quête de bien-être.Avec son agencement optimisé, cette maison vous offre une spacieuse pièce de vie baignée de lumière naturelle, comprenant un séjour convivial et une cuisine ouverte fonctionnelle, parfaite pour des moments en famille ou entre amis.L’espace nuit se compose de trois belles chambres offrant confort et sérénité, d’une salle d’eau moderne et de WC séparés pour plus de praticité.Un garage intégré vient compléter ce bien, idéal pour stationner un véhicule ou disposer d’un espace de rangement supplémentaire.
Anais
TERRAIN ET MAISONLa ligne EVOLUTION vous offre une maison plain-pied dès 93 m² habitables, pensée pour s’adapter à votre style de vie. Profitez d’une pièce de vie traversante à partir de 35m², baignée de lumière grâce à une grande baie vitrée, avec cuisine ouverte et cellier isolé pour plus de praticité. Ce modèle se compose de 4 chambres dont une suite parentale offrant confort et intimité. À l’extérieur, choisissez un garage, un préau ou un carport attenant d’une surface de 15m², parfait pour stationner ou profiter des beaux jours.Informations : Mathieu Blay au (Numéro supprimé).Prix incluant assurance dommages-ouvrage, VRD compris, terrain viabilisé, assainissement compris, frais de notaire non compris, taxes non comprises, frais divers non compris. Terrain sous réserve de disponibilité de notre partenaire foncier. Images non contractuelles.Cette annonce a été créée et diffusée avec le logiciel VITAHOME.
L’actualité immobilière à Benon
27/11/2023
02/11/2023
30/10/2023
20/10/2023
16/10/2023
16/10/2023