Images
Description
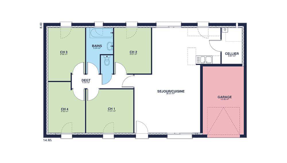
Sur ce terrain, nous vous proposons cette maison neuve : la Focus Family Sud. Conçue par Babeau-Seguin, constructeur reconnu pour offrir le meilleur rapport qualité/prix du marché, cette maison de 89 m² est idéale pour les familles à la recherche d'un logement moderne et économique.
Vous avez un budget serré et rêvez d’une maison au style urbain et contemporain ? La Focus Family Sud est faite pour vous. Cette maison compacte et élégante dispose de 4 chambres et de 4 pièces, offrant un espace de vie optimisé pour votre confort. Le garage intégré de près de 15 m², l'enduit bi-ton et les tuiles Canal ajoutent une touche de charme et de fonctionnalité à cette habitation.
Les options les plus demandées par nos clients, telles que les menuiseries en aluminium, sont disponibles pour personnaliser votre maison selon vos goûts. De plus, cette maison neuve est basse consommation et conforme à la réglementation environnementale RE2020, garantissant des économies d'énergie et un respect de l'environnement.
Ne manquez pas cette opportunité de construire une maison accessible à tous les budgets sans faire l’impasse sur les équipements. Avec ses 4 chambres, un cellier, un large séjour et un garage, la Focus Family Sud n’a rien à envier aux autres modèles de la gamme Babeau-Seguin. Profitez d'une habitation qui allie petit prix et grande prestation.
Logement susceptibles de vous intéresser
Nous vous proposons de découvrir aussi cette sélection de logements situés à moins de 10km de Burie et qui seraient susceptibles de vous intéresser.
La Chapelle-des-Pots
TERRAINÀ vendre : terrain constructible à La Chapelle-des-Pots (17100) avec chai sur le terrain Découvrez cette grange de 130 m², nichée sur un terrain constructible de 660 m², offrant d’innombrables possibilités pour concrétiser vos projets.Atouts :Surface de 130 m², idéale pour une rénovation complète ou une transformation en habitation, atelier ou espace professionnel.Terrain constructible de 660 m², prêt à accueillir vos idées : agrandissement, nouvelle construction ou aménagement paysager.Située dans un village prisé, à proximité des commerces et services, tout en offrant le calme de la campagne.Opportunité unique :Que vous soyez investisseur, artisan ou à la recherche d’un lieu atypique à transformer, cette propriété est une véritable pépite. Localisation idéale : à quelques minutes de Saintes et des axes principaux, offrant une qualité de vie exceptionnelle. Nous pouvons vous proposer gratuitement un avis de valeur et une véritable étude de votre bien immobilier. Les informations Géorisque sont disponibles sur : www.georisques.gouv.fr. Contactez Olivier DE Larquier au (Numéro supprimé)Annonce publiée par Olivier de Larquier (EI) votre agent commercial en immobilier LMDimmobilier à Port D’Envaux, 17350 immatriculé au RSAC de Saintes sous le n(Numéro supprimé). Consultez nos tarifs sur le site LMDimmobilier.Les informations sur les risques auxquels ce bien est exposé sont disponibles sur le site Géorisques : www.georisques.gouv.fr.
Saint-Laurent-de-Cognac
TERRAINTerrain de 572 m² à vendreGrand terrain. Il profite d’une vue panoramique. Ce terrain se situe dans un secteur prisé. Son prix de vente est de 44 000 €. N’hésitez pas à prendre contact avec Aurélie RICOME (Numéro supprimé) pour obtenir de plus amples informations sur le terrain, sur les démarches à suivre ou sur les modalités de vente.Bermax Construction Saintes vous accompagne dans tous vos projets immobiliers et dans toutes vos démarches.
Saint-Laurent-de-Cognac
TERRAIN ET MAISONMaison T3 (60 m²) à Saint-Laurent-de-CognacA quelques kilomètres de Saintes, idéalement située dans Saint-Laurent-de-Cognac (16100), nous vous présentons cette maison de 3 pièces de 60 m².Conçue de plain-pied, elle comporte deux chambres, une cuisine ouverte sur une pièce de vie lumineuse et une salle de bains. Le terrain de la propriété est de 572 m².Son prix de vente est de 143 500 €.N’hésitez pas à prendre contact avec Aurélie RICOME (Numéro supprimé) pour plus d’informations sur la maison, sur les modalités de vente et sur les démarches à suivre. Bermax Construction Saintes vous accompagne dans tous vos projets immobiliers et dans toutes vos démarches.
Saint-Laurent-de-Cognac
TERRAIN ET MAISONSaint-Laurent-de-Cognac : maison F3 (70 m²) À 48 km de la côte atlantique et à quelques kilomètres de Saintes, nous sommes ravis de vous présenter cette maison de 3 pièces de plain-pied de 70 m² et de 572 m² de terrain idéalement située dans Saint-Laurent-de-Cognac (16100). Elle inclut trois chambres, une cuisine ouverte sur une pièce de vie lumineuse, un garage et une salle de bains.Elle est proposée à l’achat pour 165 500 €.Contactez notre agence (Aurélie RICOME : (Numéro supprimé)) pour toute question sur la maison. Concrétisez vos projets immobiliers avec Bermax Construction Saintes.
Brizambourg
TERRAIN ET MAISONCoiffée de longues toitures aux élégants débords, cette maison affirme résolument son style contemporain et sobrement élégant.Un joli porche vous accueille et la porte d’entrée s’ouvre sur un grand salon-séjour de 46 m2. Une belle cuisine fermée de presque 10m2 avec un cellier attenant donne vers l’extérieur sur une terrasse couverte, parfaite pour profiter des repas aux beaux jours.Chaque chambre dispose d’un emplacement placard. La plus grande chambre est complétée par une salle d’eau. Vous serez séduit(e) par ses volumes optimisés, ses finitions et son agencement très fonctionnel.Vous préférez une cuisine ouverte ? Vous souhaitez revoir l’agencement d’une pièce ? C’est possible car ce modèle est 100% personnalisable !Contact et renseignements: Cédric RÊTEUX (Numéro supprimé)
Brizambourg
TERRAIN ET MAISONFort d’une expérience de près de 40 ans, Maisons MCA vous accompagne dans votre projet.Maison de plain-pied de 85 m², comprenant une belle pièce à vivre lumineuse, dédiée à la cuisine et au séjour, 3 chambres dont une suite parentale, une salle d’eau équipée, un WC, cellier et un garage.Outre ses nombreuses possibilités de personnalisations, cette maison saura aussi vous séduire par la qualité de ses menuiseries et de ses équipements, notamment ses volets roulants motorisés. Ces derniers sont pilotables depuis votre smartphone ou votre tablette grâce à la box domotique fournie.Pour un confort optimal en toute saison, le séjour/cuisine est équipé d’émetteurs Air/Air permettant de chauffer ou climatiser le volume de la pièce très rapidement.Cette maison est conforme à la Réglementation Environnementale 2020 (RE 2020).Classe énergétique : AGaranties et assurances obligatoires incluses (voir détails en agence). Prix indicatif hors peintures et hors options. Dans ce même secteur nous disposons de nombreux terrains, n’hésitez pas à contacter Cédric RÊTEUX pour un devis gratuit, rapide et sans engagement, du lundi au samedi de 9h00 à 19h00 sans interruption.Renseignements Cédric RÊTEUX (Numéro supprimé)Projet de construction Maisons MCA
Écoyeux
TERRAINFiche N°Id-TCT178420 : ECOYEUX Fiche BC178420 : Ecoyeux, Terrain d’environ 645 m2 de 645 m2 – Vue : D?gag?e – – Plus d’informations disponibles sur demande… – Mentions légales : Proposé à la vente à 39750 Euros (Dont 8.16% TTC d’honoraires à la charge de l’acquéreur, soit un prix hors honoraires de 36750 Euros) – Affaire suivie par Mme Angelique ROCARD (Agent commercial independant) – Reseau Immo-Diffusion Saint Jean D’angely – Pour plus d’informations, contactez notre secrétariat au (Numéro supprimé) (Appel gratuit ou prix d’une communication locale)
Brizambourg
TERRAIN ET MAISONCette maison résolument contemporaine avec un salon-séjour spacieux traversant s’ouvre sur une agréable terrasse couverte, pour profiter au maximum de l’ensoleillement offert par l’exposition.Un large espace à vivre jouxté d’une cuisine ouverte avec son cellier attenant, donne sur une pergola.Vous serez également séduit par sa suite parentale avec son dressing et sa salle de bain privative, par ses volumes optimisés, ses finitions et son agencement très fonctionnel.Cette maison est personnalisable pour s’adapter à votre mode de vie.Le prix comprend le terrain, les frais de notaire et la construction.Hors frais de branchements et raccordements, hors peinture et sols des chambres. Renseignements et rdv: Cédric RÊTEUX (Numéro supprimé)Construction Les Maisons MCA
Brizambourg
TERRAIN ET MAISONDécouvrez la charmante maison Lilas, un modèle rectangulaire conçu pour répondre à tous vos besoins. Avec ses trois chambres, une salle de bains moderne et un WC séparé, elle offre un agencement pratique et fonctionnel pour votre vie quotidienne.Dès votre entrée, passé un mignon et pratique petit porche, vous serez accueilli par un placard pratique qui vous permettra de ranger vos affaires en toute discrétion. Le modèle de maison Lilas se distingue également par sa cuisine américaine avec un cellier attenant, intégrée dans une pièce à vivre spacieuse de 40 mètres carrés. Imaginez les délicieux repas que vous pourrez préparer tout en restant en contact avec vos invités dans cet espace convivial et lumineux.Contact et renseignements: Cédric RÊTEUX (Numéro supprimé)Projet de construction signé les Maisons MCAMaisons de la Côte Atlantique Saintes est là pour vous accompagner dans tous vos projets immobiliers.Découvrez la charmante maison Lilas, un modèle rectangulaire conçu pour répondre à tous vos besoins. Avec ses trois chambres, une salle de bains moderne et un WC séparé, elle offre un agencement pratique et fonctionnel pour votre vie quotidienne.Dès votre entrée, passé un mignon et pratique petit porche, vous serez accueilli par un placard pratique qui vous permettra de ranger vos affaires en toute discrétion. Le modèle de maison Lilas se distingue également par sa cuisine américaine avec un cellier attenant, intégrée dans une pièce à vivre spacieuse de 40 mètres carrés. Imaginez les délicieux repas que vous pourrez préparer tout en restant en contact avec vos invités dans cet espace convivial et lumineux.Contact et renseignements: Cédric RÊTEUX (Numéro supprimé)Projet de construction signé les Maisons MCAMaisons de la Côte Atlantique Saintes est là pour vous accompagner dans tous vos projets immobiliers.
L’actualité immobilière à Burie
27/11/2023
02/11/2023
30/10/2023
20/10/2023
16/10/2023
16/10/2023