Images
Description
Sur ce terrain, nous vous proposons cette maison neuve : la Blainium, une maison résolument moderne et très singulière.
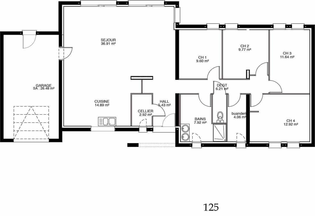
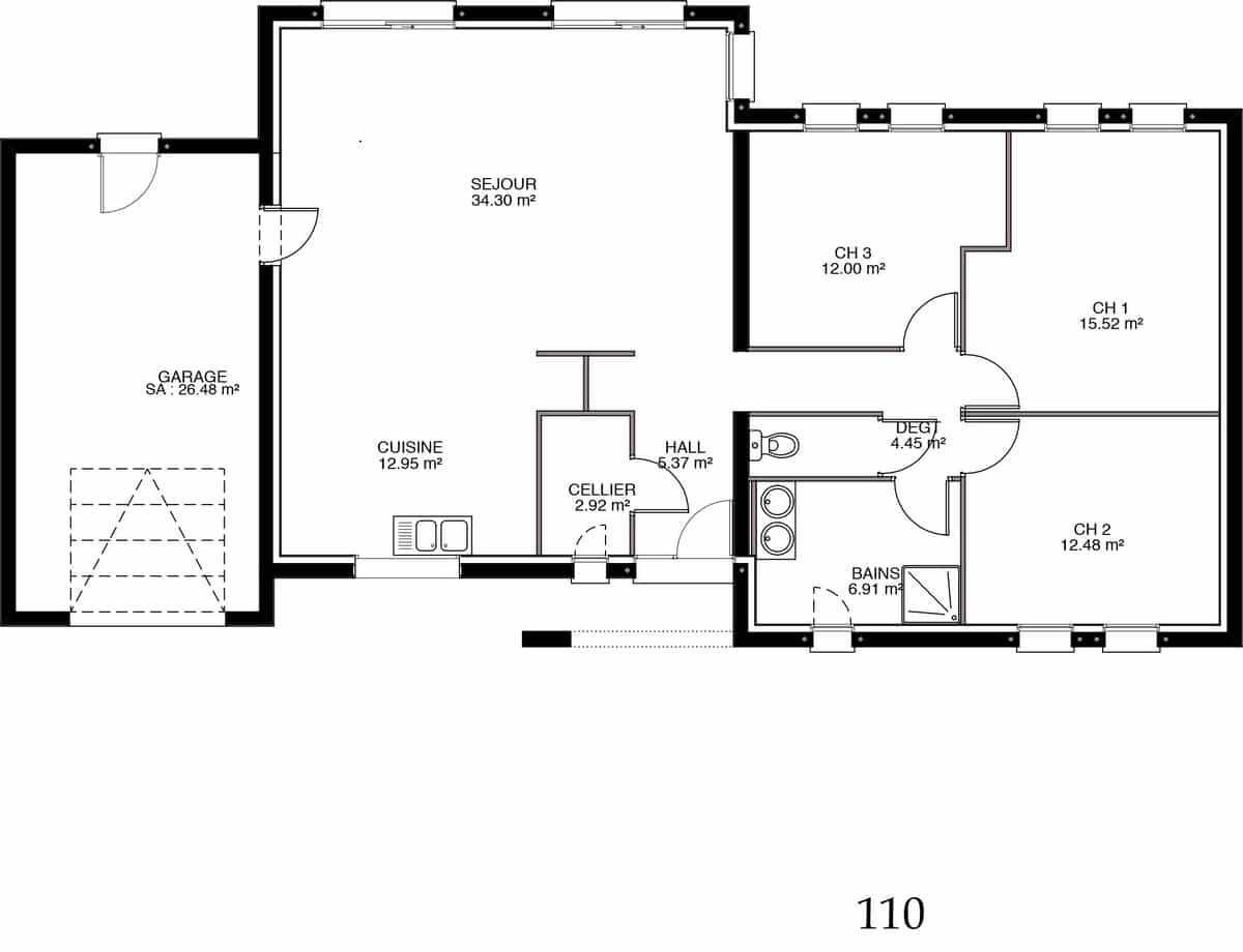
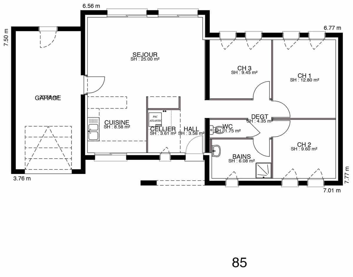
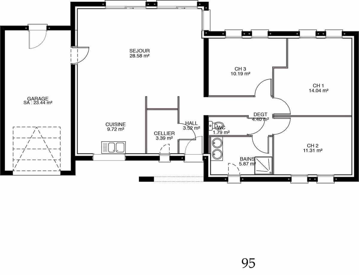
La Blainium, une maison de plain-pied contemporaine, propose une façade très stylée et originale avec ses jeux de toiture et de façades. Par ailleurs, ses grandes fenêtres laissent entrer généreusement la lumière extérieure. Cette demeure est disponible en plusieurs variantes, dans des dimensions allant de 85 à 125 m². En configuration 3 ou 4 chambres, avec ou sans bureau, dressing, salle d'eau privative, notre seule limite c'est votre imagination.
Avec une surface de 110 m², cette maison dispose de 3 chambres et de 4 pièces. En partie jour, vous disposerez d’un hall d'entrée qui donne sur un vaste séjour, une cuisine ouverte qui se prête à accueillir un grand îlot central, et un cellier. Le garage pratique d'accès est accolé. Parmi les caractéristiques principales, vous trouverez un toit plat, un garage accolé, un dressing et une suite parentale.
Les options les plus demandées par nos clients sont également disponibles : menuiseries en aluminium, enduit bi-ton, plancher chauffant et double garage.
Cette maison neuve est basse consommation et conforme à la RE2020, vous garantissant ainsi une habitation éco-responsable et économique.
Maisons Privat, constructeur centenaire avec les meilleurs avis clients de la région, vous permet de vivre votre rêve dans une maison unique. Posséder une maison neuve exceptionnelle n'a jamais été aussi accessible.
La Blainium permet de vivre son rêve dans une maison unique. Cette habitation vous permettra de réaliser votre rêve : posséder une maison neuve exceptionnelle.
Logement susceptibles de vous intéresser
Nous vous proposons de découvrir aussi cette sélection de logements situés à moins de 10km de Dompierre-sur-Mer et qui seraient susceptibles de vous intéresser.
Dompierre-sur-Mer
TERRAIN ET MAISONDompierre-sur-Mer : maison neuve 3 chambres garage de 110 m² à vendre !PROCHE DE LA ROCHELLEEn vente à quelques kilomètres de La Rochelle, découvrez cette maison de 4 pièces de plain-pied de 110 m² à Dompierre-sur-Mer (17139). Elle compte trois chambres, deux salles de bains, une cuisine ouverte sur séjour, sur un terrain de 413 m².Elle est à vendre pour la somme de 446 500 €.N’hésitez pas à prendre contact avec notre agence (Yann TRUFFY : (Numéro supprimé)) pour obtenir de plus amples renseignements sur la propriété.
Lagord
TERRAINSuperbe terrain à bâtir individuel entièrement viabilisé – Situation exceptionnelle – A 10 mn de l’Ile de Ré –
Lagord
TERRAIN ET MAISONSur ce terrain, nous vous proposons cette maison neuve : la Rochelaise, une villa de plain-pied optimisée. Cette demeure de 90 m² est idéale pour toute la famille avec ses 4 chambres et ses 4 pièces. La distribution ingénieuse de ses pièces assure une utilisation optimale de chaque mètre carré, sans aucune perte de surface.Le modèle Rochelaise est une belle maison de plain-pied tout en longueur, dotée d’un garage intégré et d’un auvent pratique et élégant. Personnalisable à souhait, vous pouvez accentuer son côté traditionnel avec des volets battants de couleur ou opter pour un look plus moderne en jouant avec des enduits de couleurs différentes et des menuiseries en aluminium. Cette maison dispose d’un grand séjour-salon avec cuisine ouverte, parfait pour les moments en famille ou entre amis. Vous avez la possibilité de choisir parmi plusieurs plans totalement adaptables à vos envies, y compris une version pour personnes à mobilité réduite.Les options les plus demandées par nos clients sont disponibles : toiture à 2 pans ou 4 pans, menuiseries en aluminium, plancher chauffant et domotique. De plus, cette maison neuve est basse consommation et conforme à la réglementation environnementale RE2020, garantissant ainsi des économies d’énergie et un confort optimal.Construite par Maisons Privat, constructeur centenaire avec les meilleurs avis clients de la région, la Rochelaise est une opportunité unique pour investir dans un patrimoine immobilier de qualité. Ne manquez pas cette chance de devenir propriétaire d’une maison alliant tradition et modernité, parfaitement adaptée à vos besoins et à ceux de votre famille.
Saint-Rogatien
TERRAINDécouvrez ce terrain d’une surface de 182 m², idéalement situé à Saint-Rogatien, dans le département de la Charente-Maritime. Ce projet non-viabilisé est une opportunité rare pour construire la maison de vos rêves dans une ville prisée pour sa qualité de vie et son cadre agréable. Que ce soit pour un premier achat ou un projet d’investissement, ce terrain représente un potentiel certain pour un projet résidentiel unique. Contactez-nous pour en savoir plus sur cette belle opportunité d’achat! À noter qu’en tant que constructeur, nous ne sommes pas mandatés pour réaliser la vente de ce terrain.
Saint-Rogatien
TERRAIN ET MAISONSur ce terrain, nous vous proposons cette maison neuve : la Clissonnaise, une charmante maison à étage de 70 m². Conçue par Maisons Privat, constructeur centenaire avec les meilleurs avis clients de la région, cette maison basse consommation est conforme à la RE2020, garantissant des performances énergétiques optimales.Très jolie maison traditionnelle à étage, la Clissonnaise conviendra aussi bien aux primo-accédants qu’aux couples ou aux petites familles. Elle se compose de 3 pièces, dont 2 chambres spacieuses, et est idéale pour un terrain étroit grâce à son design ingénieux.Les caractéristiques principales de cette maison incluent des baies coulissantes pour un maximum de luminosité, une dalle étage en béton pour une solidité accrue, et une conformité à la norme RT2020 pour une efficacité énergétique supérieure.Parmi les options les plus demandées par nos clients, vous pouvez choisir d’ajouter une deuxième salle de bains pour plus de confort, une baie à galandage pour un espace de vie encore plus ouvert, un carport pour protéger votre véhicule, ou un garage accolé pour plus de commodité.Achetez votre nouvelle demeure à étage comme vous la souhaitez et profitez d’un grand espace de vie avec cuisine ouverte, parfait pour des moments conviviaux en famille ou entre amis. La Clissonnaise est disponible dans des dimensions allant de 70 à 110 m², permettant de nombreuses configurations en fonction de vos besoins.Ne manquez pas cette opportunité unique de devenir propriétaire d’une maison neuve, basse consommation et parfaitement adaptée à vos attentes. Contactez-nous dès aujourd’hui pour plus d’informations et pour découvrir toutes les possibilités offertes par la Clissonnaise.
Saint-Rogatien
TERRAINDécouvrez ce terrain très beau terrain de 364 m², partiellement viabilisé et prêt à accueillir votre projet de construction dans la charmante commune de Saint-Rogatien, en Charente-Maritime. Sa localisation privilégiée vous garantit des moments de tranquillité tout en étant à proximité des commodités nécessaires pour votre quotidien. Profitez d’une atmosphère conviviale et familiale, avec des infrastructures scolaires, des commerces locaux et des espaces verts pour des activités de plein air. A voir vite À noter qu’en tant que constructeur, nous ne sommes pas mandatés pour réaliser la vente de ce terrain.
Saint-Rogatien
TERRAIN ET MAISONSur ce terrain, nous vous proposons cette maison neuve : la Blainium, une maison résolument moderne et très singulière. La Blainium, une maison de plain-pied contemporaine, propose une façade très stylée et originale avec ses jeux de toiture et de façades. Par ailleurs, ses grandes fenêtres laissent entrer généreusement la lumière extérieure. Cette demeure est disponible en plusieurs variantes, dans des dimensions allant de 85 à 125 m². En configuration 3 ou 4 chambres, avec ou sans bureau, dressing, salle d’eau privative, notre seule limite c’est votre imagination.Avec une surface de 110 m², cette maison dispose de 3 chambres et de 4 pièces. En partie jour, vous disposerez d’un hall d’entrée qui donne sur un vaste séjour, une cuisine ouverte qui se prête à accueillir un grand îlot central, et un cellier. Le garage pratique d’accès est accolé. Parmi les caractéristiques principales, vous trouverez un toit plat, un garage accolé, un dressing et une suite parentale.Les options les plus demandées par nos clients sont également disponibles : menuiseries en aluminium, enduit bi-ton, plancher chauffant et double garage. Cette maison neuve est basse consommation et conforme à la RE2020, vous garantissant ainsi une habitation éco-responsable et économique.Maisons Privat, constructeur centenaire avec les meilleurs avis clients de la région, vous permet de vivre votre rêve dans une maison unique. Posséder une maison neuve exceptionnelle n’a jamais été aussi accessible. La Blainium permet de vivre son rêve dans une maison unique. Cette habitation vous permettra de réaliser votre rêve : posséder une maison neuve exceptionnelle.
Bourgneuf
TERRAINÀ vendre : terrain non-viabilisé de 240 m², idéalement situé à Bourgneuf. Ce terrain bénéficie d’un emplacement privilégié, au cœur de la ville, offrant un cadre calme et paisible. Avec son potentiel constructif et un bati existant de 58 m² ce terrain saura séduire les acheteurs en quête d’un projet personnel ou d’investissement dans une commune attractive. Ne laissez pas passer cette opportunité d’acquérir un terrain au potentiel indéniable. Contactez-nous dès maintenant pour envisager votre futur projet ! À noter qu’en tant que constructeur, nous ne sommes pas mandatés pour réaliser la vente de ce terrain.
Bourgneuf
TERRAIN ET MAISONSur ce terrain, nous vous proposons cette maison de plain-pied au design contemporain, idéale pour un confort de vie au quotidien. Ses deux chambres offrent un espace nuit cosy, tandis que la vaste pièce de vie de plus de 35 m² réunit cuisine ouverte, salle à manger et salon, baignés de lumière naturelle. Vous profiterez également d’une salle d’eau moderne et d’un WC indépendant, pensés pour simplifier votre quotidien.Le garage de plus de 20 m² constitue un atout majeur pour stationner votre véhicule en toute sécurité ou aménager un espace de bricolage. Son architecture élégante, soulignée par une toiture à double pente, s’intègre harmonieusement à l’environnement. Ne manquez pas cette belle opportunité?: chaque détail a été soigneusement étudié pour vous garantir une qualité de vie incomparable.
L’actualité immobilière à Dompierre-sur-Mer
27/11/2023
02/11/2023
30/10/2023
20/10/2023
16/10/2023
16/10/2023