Images
Description
Sur ce terrain, nous vous proposons cette maison neuve, modèle Impresa, construite par Elysees Ocean, le constructeur avec les meilleurs avis clients de la profession.
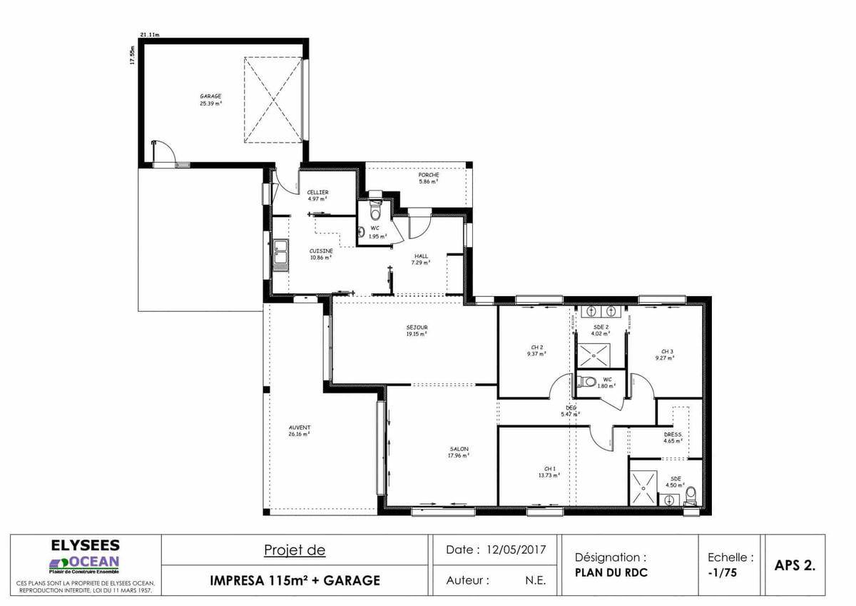
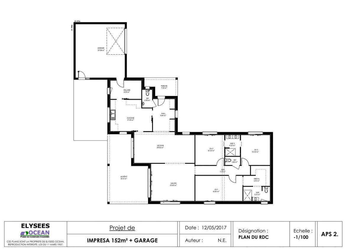
Cette maison de 152 m², conforme à la norme RE2020, est un véritable bijou de modernité et de basse consommation énergétique. Elle se compose de 3 chambres spacieuses et de 4 pièces lumineuses, offrant un cadre de vie agréable et confortable.
Les grandes pièces de cette maison sont baignées de lumière naturelle grâce à une conception architecturale ingénieuse qui maximise l'exposition au soleil. Le séjour et la cuisine, ouverts sur l’Est et le Sud, permettent de profiter de la lumière dès les premières heures du jour et tout au long de l’année. L’auvent généreux ajoute une touche de confort supplémentaire, idéale pour les journées ensoleillées.
La toiture ciselée en plusieurs parties de 2 pans, avec des tuiles rondes de pays ou plates anthracites, confère à cette maison une allure traditionnelle tout en étant résolument moderne. Le garage, plus ou moins décalé, offre une protection efficace contre les vents d’ouest et les surchauffes estivales.
Les menuiseries en aluminium, très demandées par nos clients, ajoutent une touche de sophistication et de durabilité à cette maison. L'architecture découpée de l'Impresa crée des espaces de rencontre conviviaux ainsi que des espaces intimes, pour le plus grand plaisir de ses futurs habitants.
Ne manquez pas cette opportunité unique de devenir propriétaire d'une maison neuve, basse consommation, et conforme aux dernières normes environnementales. Contactez-nous dès aujourd'hui pour plus d'informations et pour organiser une visite du terrain.
Logement susceptibles de vous intéresser
Nous vous proposons de découvrir aussi cette sélection de logements situés à moins de 10km de Épargnes et qui seraient susceptibles de vous intéresser.
Grézac
TERRAIN ET MAISONVéronique CANTEAU des maisons MCA à Royan, vous propose d’adapter le modèle Plaisir Sud, sur ce terrain d’environ 390 m2, idéalement situé sur la commune de Grézac, à 20 minutes de Royan.Ce modèle de maison de plain-pied de 145 m² possède de nombreux atouts qui ne vous laisseront pas indifférent.Tout d’abord des espaces généreux : une pièce de vie (cuisine ouverte/séjour) de plus de 60 m², prolongée par une terrasse couverte de 11 m² pour profiter de l’extérieur dès l’arrivée des beaux jours.4 belles chambres de 11 à 13 m², dont une suite parentale avec salle d’eau. Toutes les chambres sont équipées de rangements. Un grand bureau de 11 m², idéal pour le home office, une salle de jeu pour les enfants ou pour vos activités manuelles.Cette maison est personnalisable pour s’adapter au mode de vie des grandes familles.Vous souhaitez revoir l’agencement d’une pièce ? C’est possible car ce modèle est 100% personnalisable !Le prix affiché comprend le terrain, les frais de notaire, et cette maison livrée prête à décorer.Contactez vite votre conseillère Véronique CANTEAU au (Numéro supprimé) à l’agence MCA de Royan, afin qu’elle vous guide dans les démarches et vous accompagne dans ce projet de construction personnalisé, aux normes RE2020.
Grézac
TERRAINEtienne NEAU conseiller chez Alpha Construction vous propose ce terrain à bâtir, non-viabiliséde 597m², sur la commune de Grézac en Charente Maritime. Situé à moins 500m d’une école maternelle, primaire et d’un parc pour enfants et d’une épicerie de proximité. Seulement à 15 minutes de Royan, 10 minutes de la plage et 5 minutes de Cozes et tous ces commerces. Ce terrain est à vendre pour la somme de 59 700 €. Retrouvez-moi, directement en agence à Royan ou par téléphone au (Numéro supprimé) Alpha Constructions Royan vous accompagne dans toutes vos démarches et à toutes les étapes de votre projet.
Grézac
TERRAINEtienne NEAU conseiller chez Alpha Construction vous propose ce terrain à bâtir, non-viabiliséde 763m², sur la commune de Grézac en Charente Maritime. Situé à moins 500m d’une école maternelle, primaire et d’un parc pour enfants et d’une épicerie de proximité. Seulement à 15 minutes de Royan, 10 minutes de la plage et 5 minutes de Cozes et tous ces commerces. Ce terrain est à vendre pour la somme de 76300 €. Retrouvez-moi, directement en agence à Royan ou par téléphone au (Numéro supprimé) Alpha Constructions Royan vous accompagne dans toutes vos démarches et à toutes les étapes de votre projet.
Grézac
TERRAIN ET MAISONSur la commune de Grézac, MCA vous propose cette maison fonctionnelle de plain-pied de 84 m2 sur un terrain viabilisé idéalement exposé de 390 m2.Cette maison bien organisée vous offre une agréable pièce de vie avec cuisine ouverte, cellier attenant. Vous disposerez de 3 chambres avec placard, une salle de bain et un WC indépendant. L’école et le bourg se trouvent à 5 minutes à pied.Royan, ses plages et son marché se situent à 20 minutes.Le prix affiché comprend le terrain, les frais de notaire, et cette maison livrée prête à décorer.Contactez vite votre conseillère Véronique CANTEAU au (Numéro supprimé) à l’agence MCA de Royan, afin qu’elle vous guide dans les démarches et vous accompagne dans ce projet de construction personnalisé, aux normes RE2020.
Grézac
TERRAIN ET MAISONVéronique CANTEAU des maisons MCA de Royan, vous propose d’adapter le modèle Pivoine sur ce terrain d’environ 390 m2, idéalement situé sur la commune de Grézac à 20 minutes de Royan.Idéalement optimisée, cette maison dispose d’une entrée avec placard de rangement. L’espace jour est composé d’un beau séjour avec cuisine ouverte, et cellier attenant, pour un espace de vie de 40m2. L’espace nuit est quant à lui composé de trois chambres avec placard, une salle de bains et un wc séparé. Un garage attenant vient compléter cette maison.Vous apprécierez son côté compact avec des volumes optimisés.Le prix affiché comprend le terrain, les frais de notaire, et cette maison livrée prête à décorer.Contactez vite votre conseillère Véronique CANTEAU au (Numéro supprimé) à l’agence MCA de Royan, afin qu’elle vous guide dans les démarches et vous accompagne dans ce projet de construction personnalisé, aux normes RE2020.
Grézac
TERRAIN ET MAISONVéronique CANTEAU des maisons MCA de Royan, vous propose d’adapter le modèle Lilas sur ce terrain d’environ 390 m2, idéalement situé sur la commune de Grézac à 20 minutes de Royan et des plages.Cette maison est composée d’un bel espace à vivre d’environ 41 m2, avec cuisine ouverte. L’espace nuit est composé de 3 chambres, une salle de bains et WC séparés. Ce modèle est entièrement personnalisable pour s’adapter à votre mode de vie, idéal pour un premier achat ou un investissement locatif.Le prix affiché comprend le terrain, les frais de notaire, et cette maison livrée prête à décorer.Contactez vite votre conseillère Véronique CANTEAU au (Numéro supprimé) à l’agence MCA de Royan, afin qu’elle vous guide dans les démarches et vous accompagne dans ce projet de construction personnalisé, aux normes RE2020.
Grézac
TERRAINVéronique CANTEAU des maisons MCA de Royan, vous propose ce terrain d’une surface de 390 m2, à 49900€.Agréable commune où il fait bon vivre, située à 15 Kms de Royan, 5 minutes de Cozes et à 20 minutes des plages de Meschers-sur-Gironde, dans un cadre de vie privilégié, vous disposerez des principales commodités et d’une école facilement accessibles à pieds.Ce terrain idéalement exposé est vendu entièrement viabilisé, il vous est proposé dans le cadre d’une construction MCA, en collaboration avec notre partenaire foncier.Contactez vite votre conseillère Véronique CANTEAU au (Numéro supprimé) à l’agence MCA de Royan, afin qu’elle vous guide dans les démarches et vous accompagne dans ce projet de construction personnalisé, aux normes RE2020.
Grézac
TERRAINEtienne NEAU conseiller chez Alpha Construction vous propose ce terrain à bâtir, non-viabiliséde 627m², sur la commune de Grézac en Charente Maritime. Situé à moins 500m d’une école maternelle, primaire et d’un parc pour enfants et d’une épicerie de proximité. Seulement à 15 minutes de Royan, 10 minutes de la plage et 5 minutes de Cozes et tous ces commerces. Ce terrain est à vendre pour la somme de 62700 €. Retrouvez-moi, directement en agence à Royan ou par téléphone au (Numéro supprimé) Alpha Constructions Royan vous accompagne dans toutes vos démarches et à toutes les étapes de votre projet.
Grézac
TERRAIN ET MAISONVéronique CANTEAU des maisons MCA de Royan, vous propose d’adapter le modèle LYS 70 sur ce terrain d’environ 390 m2, idéalement situé sur la commune de Grézac à 20 minutes de Royan et des plages.Cette maison est composée d’une belle pièce de vie d’environ 31 m2, avec cuisine ouverte. L’espace nuit est composé de 3 chambres dont une suite parentale, une salle de bains et WC séparés. Ce modèle est entièrement personnalisable pour s’adapter à votre mode de vie, idéal pour un premier achat ou un investissement locatif.Le prix affiché comprend le terrain, les frais de notaire, et cette maison livrée prête à décorer.Contactez vite votre conseillère Véronique CANTEAU au (Numéro supprimé) à l’agence MCA de Royan, afin qu’elle vous guide dans les démarches et vous accompagne dans ce projet de construction personnalisé, aux normes RE2020.
L’actualité immobilière à Épargnes
27/11/2023
02/11/2023
30/10/2023
20/10/2023
16/10/2023
16/10/2023