Images
Description
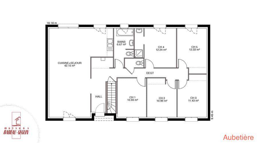
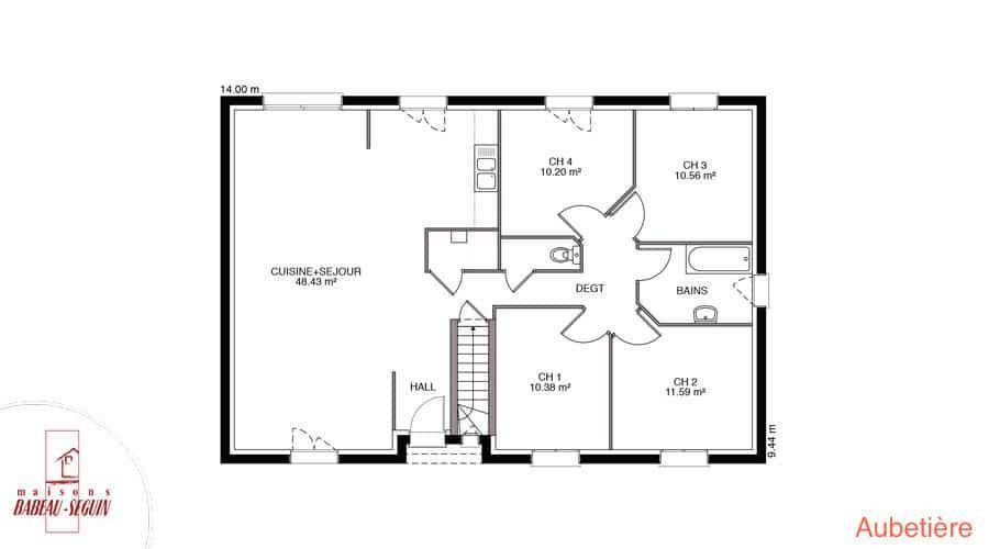
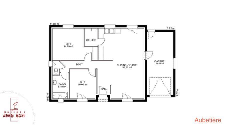
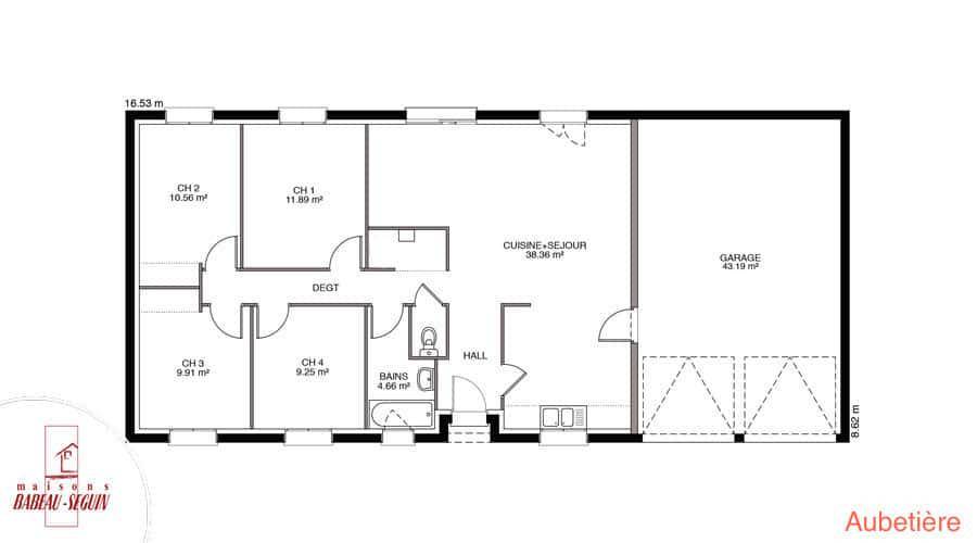
Sur ce terrain, nous vous proposons cette maison neuve Aubetière Sud, un modèle traditionnel plain-pied qui fait partie du top 3 des modèles préférés de nos clients. Avec une surface de 59 m², cette maison dispose d'une chambre et de deux pièces, offrant un espace de vie confortable et fonctionnel.
L'Aubetière Sud se distingue par son toit à faible pente et ses tuiles canal, disponibles en version 2 pans ou 4 pans. Vous avez également la possibilité de personnaliser votre maison avec un garage intégré ou un sous-sol, ainsi qu'un porche accueillant.
Cette maison neuve est basse consommation et conforme à la réglementation environnementale RE2020, garantissant des performances énergétiques optimales et un confort de vie sous le soleil.
Les options les plus demandées par nos clients, telles qu'une deuxième salle de bains, des menuiseries en aluminium, et un garage ou un sous-sol, sont disponibles pour personnaliser votre Aubetière Sud selon vos besoins et vos envies.
Faites confiance à Babeau-Seguin, constructeur offrant le meilleur rapport qualité/prix du marché, pour réaliser votre projet de vie. Découvrez l'Aubetière Sud, une maison traditionnelle appréciée pour son excellent rapport qualité/prix et son adaptabilité pour une maison sur-mesure.
Logement susceptibles de vous intéresser
Nous vous proposons de découvrir aussi cette sélection de logements situés à moins de 10km de La Chapelle-des-Pots et qui seraient susceptibles de vous intéresser.
La Chapelle-des-Pots
TERRAINÀ vendre : terrain constructible à La Chapelle-des-Pots (17100) avec chai sur le terrain Découvrez cette grange de 130 m², nichée sur un terrain constructible de 660 m², offrant d’innombrables possibilités pour concrétiser vos projets.Atouts :Surface de 130 m², idéale pour une rénovation complète ou une transformation en habitation, atelier ou espace professionnel.Terrain constructible de 660 m², prêt à accueillir vos idées : agrandissement, nouvelle construction ou aménagement paysager.Située dans un village prisé, à proximité des commerces et services, tout en offrant le calme de la campagne.Opportunité unique :Que vous soyez investisseur, artisan ou à la recherche d’un lieu atypique à transformer, cette propriété est une véritable pépite. Localisation idéale : à quelques minutes de Saintes et des axes principaux, offrant une qualité de vie exceptionnelle. Nous pouvons vous proposer gratuitement un avis de valeur et une véritable étude de votre bien immobilier. Les informations Géorisque sont disponibles sur : www.georisques.gouv.fr. Contactez Olivier DE Larquier au (Numéro supprimé)Annonce publiée par Olivier de Larquier (EI) votre agent commercial en immobilier LMDimmobilier à Port D’Envaux, 17350 immatriculé au RSAC de Saintes sous le n(Numéro supprimé). Consultez nos tarifs sur le site LMDimmobilier.Les informations sur les risques auxquels ce bien est exposé sont disponibles sur le site Géorisques : www.georisques.gouv.fr.
Brizambourg
TERRAIN ET MAISONCoiffée de longues toitures aux élégants débords, cette maison affirme résolument son style contemporain et sobrement élégant.Un joli porche vous accueille et la porte d’entrée s’ouvre sur un grand salon-séjour de 46 m2. Une belle cuisine fermée de presque 10m2 avec un cellier attenant donne vers l’extérieur sur une terrasse couverte, parfaite pour profiter des repas aux beaux jours.Chaque chambre dispose d’un emplacement placard. La plus grande chambre est complétée par une salle d’eau. Vous serez séduit(e) par ses volumes optimisés, ses finitions et son agencement très fonctionnel.Vous préférez une cuisine ouverte ? Vous souhaitez revoir l’agencement d’une pièce ? C’est possible car ce modèle est 100% personnalisable !Contact et renseignements: Cédric RÊTEUX (Numéro supprimé)
Brizambourg
TERRAIN ET MAISONFort d’une expérience de près de 40 ans, Maisons MCA vous accompagne dans votre projet.Maison de plain-pied de 85 m², comprenant une belle pièce à vivre lumineuse, dédiée à la cuisine et au séjour, 3 chambres dont une suite parentale, une salle d’eau équipée, un WC, cellier et un garage.Outre ses nombreuses possibilités de personnalisations, cette maison saura aussi vous séduire par la qualité de ses menuiseries et de ses équipements, notamment ses volets roulants motorisés. Ces derniers sont pilotables depuis votre smartphone ou votre tablette grâce à la box domotique fournie.Pour un confort optimal en toute saison, le séjour/cuisine est équipé d’émetteurs Air/Air permettant de chauffer ou climatiser le volume de la pièce très rapidement.Cette maison est conforme à la Réglementation Environnementale 2020 (RE 2020).Classe énergétique : AGaranties et assurances obligatoires incluses (voir détails en agence). Prix indicatif hors peintures et hors options. Dans ce même secteur nous disposons de nombreux terrains, n’hésitez pas à contacter Cédric RÊTEUX pour un devis gratuit, rapide et sans engagement, du lundi au samedi de 9h00 à 19h00 sans interruption.Renseignements Cédric RÊTEUX (Numéro supprimé)Projet de construction Maisons MCA
Écoyeux
TERRAINFiche N°Id-TCT178420 : ECOYEUX Fiche BC178420 : Ecoyeux, Terrain d’environ 645 m2 de 645 m2 – Vue : D?gag?e – – Plus d’informations disponibles sur demande… – Mentions légales : Proposé à la vente à 39750 Euros (Dont 8.16% TTC d’honoraires à la charge de l’acquéreur, soit un prix hors honoraires de 36750 Euros) – Affaire suivie par Mme Angelique ROCARD (Agent commercial independant) – Reseau Immo-Diffusion Saint Jean D’angely – Pour plus d’informations, contactez notre secrétariat au (Numéro supprimé) (Appel gratuit ou prix d’une communication locale)
Brizambourg
TERRAIN ET MAISONCette maison résolument contemporaine avec un salon-séjour spacieux traversant s’ouvre sur une agréable terrasse couverte, pour profiter au maximum de l’ensoleillement offert par l’exposition.Un large espace à vivre jouxté d’une cuisine ouverte avec son cellier attenant, donne sur une pergola.Vous serez également séduit par sa suite parentale avec son dressing et sa salle de bain privative, par ses volumes optimisés, ses finitions et son agencement très fonctionnel.Cette maison est personnalisable pour s’adapter à votre mode de vie.Le prix comprend le terrain, les frais de notaire et la construction.Hors frais de branchements et raccordements, hors peinture et sols des chambres. Renseignements et rdv: Cédric RÊTEUX (Numéro supprimé)Construction Les Maisons MCA
Brizambourg
TERRAIN ET MAISONDécouvrez la charmante maison Lilas, un modèle rectangulaire conçu pour répondre à tous vos besoins. Avec ses trois chambres, une salle de bains moderne et un WC séparé, elle offre un agencement pratique et fonctionnel pour votre vie quotidienne.Dès votre entrée, passé un mignon et pratique petit porche, vous serez accueilli par un placard pratique qui vous permettra de ranger vos affaires en toute discrétion. Le modèle de maison Lilas se distingue également par sa cuisine américaine avec un cellier attenant, intégrée dans une pièce à vivre spacieuse de 40 mètres carrés. Imaginez les délicieux repas que vous pourrez préparer tout en restant en contact avec vos invités dans cet espace convivial et lumineux.Contact et renseignements: Cédric RÊTEUX (Numéro supprimé)Projet de construction signé les Maisons MCAMaisons de la Côte Atlantique Saintes est là pour vous accompagner dans tous vos projets immobiliers.Découvrez la charmante maison Lilas, un modèle rectangulaire conçu pour répondre à tous vos besoins. Avec ses trois chambres, une salle de bains moderne et un WC séparé, elle offre un agencement pratique et fonctionnel pour votre vie quotidienne.Dès votre entrée, passé un mignon et pratique petit porche, vous serez accueilli par un placard pratique qui vous permettra de ranger vos affaires en toute discrétion. Le modèle de maison Lilas se distingue également par sa cuisine américaine avec un cellier attenant, intégrée dans une pièce à vivre spacieuse de 40 mètres carrés. Imaginez les délicieux repas que vous pourrez préparer tout en restant en contact avec vos invités dans cet espace convivial et lumineux.Contact et renseignements: Cédric RÊTEUX (Numéro supprimé)Projet de construction signé les Maisons MCAMaisons de la Côte Atlantique Saintes est là pour vous accompagner dans tous vos projets immobiliers.
Brizambourg
TERRAIN🌿 Terrain à bâtir viabilisé à Brizambourg – 560 m² – 20 000 €📍 Cadre calme et agréable, proche des commoditésDécouvrez ce terrain plat de 560 m², entièrement viabilisé (eau, électricité, tout-à-l’égout), idéal pour votre première maison ou un projet sur mesure dans un environnement paisible.✅ Terrain plat et prêt à construire✅ Quartier résidentiel tranquille✅ Accès facile aux communes voisines✅ Exposition favorable pour une maison lumineuse et économe💡 Projet clé en main avec Maisons MCA : réalisez votre maison sur mesure avec un constructeur reconnu pour la qualité et la personnalisation en Charente-Maritime.📞 Contactez-nous dès maintenant pour plus d’informations ou pour bénéficier d’une étude gratuite et personnalisée de votre projet maison + terrain !Cédric RÊTEUX (Numéro supprimé)
Brizambourg
TERRAIN ET MAISONFort d »une expérience de près de 40 ans, Maisons MCA vous accompagne dans votre projet. Contactez nous pour avoir un accompagnement personnalisé à votre projet.Nous vous proposons votre projet de construction d »une maison de plain pied de 87 m2. Le coin nuit se compose de 3 chambres, une salle d »eau et WC séparés. La pièce de vie offre une triple expositions pour une grande luminosité. Le prix comprend le terrain, les frais de notaire, et la construction. Hors branchements et raccordements. Contact et renseignements: Cédric RÊTEUX (Numéro supprimé)
Saint-Sulpice-de-Cognac
TERRAINVENTE d’un terrain de 2 400 m² à Saint-Sulpice-de-CognacIDÉALEMENT SITUÉ – VUE DÉGAGÉEIl est proposé à l’achat pour 49 500 €. Contactez Pascal DECOU ((Numéro supprimé)) pour tout renseignement sur ce terrain, sur les modalités de vente ou sur les démarches à suivre. Bermax Construction Saintes vous accompagne dans tous vos projets immobiliers et dans toutes vos démarches.
L’actualité immobilière à La Chapelle-des-Pots
27/11/2023
02/11/2023
30/10/2023
20/10/2023
16/10/2023
16/10/2023