Images
Description
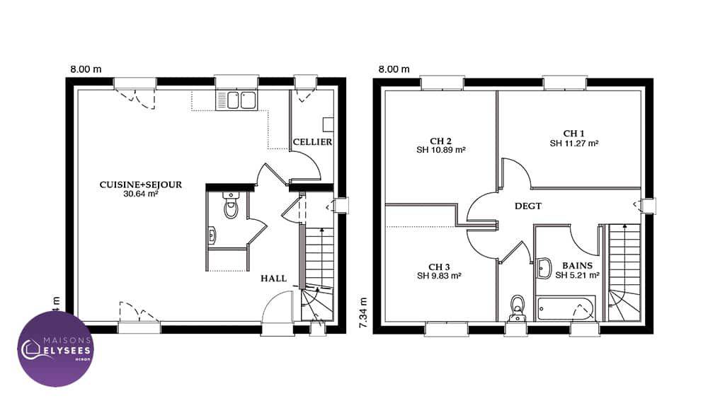
Sur ce terrain, nous vous proposons cette maison neuve, la Bastide, issue des bastides du sud de la France. Cette maison familiale de 109 m² offre le charme de l'ancien et le confort du moderne. Son architecture indémodable en fait un produit d'exception qui évoque le soleil et la douceur de vivre.
La Bastide se compose de 4 chambres et de 4 pièces, avec un plan ingénieux qui propose les pièces de jour en rez-de-chaussée et les chambres à l'étage, idéal pour une famille. La dalle étage en béton assure une solidité et une isolation optimale. De plus, une deuxième salle de bains est prévue pour plus de confort.
Les baies vitrées orientées au sud apportent une luminosité naturelle exceptionnelle, créant une atmosphère chaleureuse et accueillante. Parmi les options les plus demandées par nos clients, vous pouvez choisir entre une toiture à 2 pans ou 4 pans, une grande terrasse pour profiter des beaux jours, et un auvent pour un espace extérieur abrité.
Cerise sur le gâteau, cette maison est basse consommation et conforme à la RE2020, garantissant des performances énergétiques de haute qualité et des économies sur vos factures d'énergie.
Le constructeur Elysees Ocean, reconnu pour ses meilleurs avis clients de la profession, vous accompagne dans la réalisation de ce projet exceptionnel. La Bastide sera également réussie dans le style balnéaire de nos bords de mer, offrant une maison à la fois élégante et fonctionnelle.
Ne manquez pas cette opportunité unique de vivre dans une maison qui allie tradition et modernité, tout en respectant les normes environnementales les plus strictes. Contactez-nous dès aujourd'hui pour plus d'informations et pour planifier une visite.
Logement susceptibles de vous intéresser
Nous vous proposons de découvrir aussi cette sélection de logements situés à moins de 10km de La Tremblade et qui seraient susceptibles de vous intéresser.
La Tremblade
TERRAIN ET MAISONSur ce terrain, nous vous proposons cette maison neuve, la Bastide, issue des bastides du sud de la France. Cette maison familiale de 109 m² offre le charme de l’ancien et le confort du moderne. Son architecture indémodable en fait un produit d’exception qui évoque le soleil et la douceur de vivre.La Bastide se compose de 4 chambres et de 4 pièces, avec un plan ingénieux qui propose les pièces de jour en rez-de-chaussée et les chambres à l’étage, idéal pour une famille. La dalle étage en béton assure une solidité et une isolation optimale. De plus, une deuxième salle de bains est prévue pour plus de confort.Les baies vitrées orientées au sud apportent une luminosité naturelle exceptionnelle, créant une atmosphère chaleureuse et accueillante. Parmi les options les plus demandées par nos clients, vous pouvez choisir entre une toiture à 2 pans ou 4 pans, une grande terrasse pour profiter des beaux jours, et un auvent pour un espace extérieur abrité.Cerise sur le gâteau, cette maison est basse consommation et conforme à la RE2020, garantissant des performances énergétiques de haute qualité et des économies sur vos factures d’énergie.Le constructeur Elysees Ocean, reconnu pour ses meilleurs avis clients de la profession, vous accompagne dans la réalisation de ce projet exceptionnel. La Bastide sera également réussie dans le style balnéaire de nos bords de mer, offrant une maison à la fois élégante et fonctionnelle.Ne manquez pas cette opportunité unique de vivre dans une maison qui allie tradition et modernité, tout en respectant les normes environnementales les plus strictes. Contactez-nous dès aujourd’hui pour plus d’informations et pour planifier une visite.
La Tremblade
TERRAINCe terrain d’une superficie de 626m² avec une façade généreuse peut vous permettre la réalisation d’un projet professionnel, location de box par exemple. Il peut également accueillir votre résidence. La viabilisation est à prévoir.
La Tremblade
TERRAIN ET MAISONSur ce terrain, nous vous proposons cette maison neuve, modèle Golf, conçue par Elysees Ocean, le constructeur aux meilleurs avis clients de la profession. Avec une surface de 114 m², cette maison cubique et design est idéale pour une petite famille. L’architecture ciselée de cette maison réjouira les amateurs de lignes contemporaines harmonieuses. Les grandes pièces de vie sont baignées de lumière grâce aux baies vitrées orientées au Sud, apportant confort et économies d’énergie à ses habitants. La maison Golf dispose de 3 chambres, dont une suite parentale, et de 4 pièces au total. Les menuiseries en aluminium, option très demandée par nos clients, ajoutent une touche de modernité et de durabilité à l’ensemble.Cette maison neuve est basse consommation et conforme à la réglementation environnementale RE2020, garantissant une performance énergétique optimale et un respect de l’environnement.Ne manquez pas cette opportunité unique de vivre dans une maison alliant design contemporain, confort et économies d’énergie. Contactez-nous dès maintenant pour plus d’informations.
La Tremblade
TERRAINDécouvrez ce magnifique terrain de 635 m² situé à La Tremblade, en Charente-Maritime, dans la région dynamique de la Nouvelle-Aquitaine. Ce bien saura séduire les amateurs de tranquillité et d’espace, idéal pour le projet de construction de votre future maison. Vous apprécierez la configuration du terrain qui vous permettra de concevoir un habitat à votre image, en harmonie avec la nature environnante. Son emplacement privilégié en fait un véritable coup de cœur pour les futurs propriétaires. La Tremblade est une charmante ville qui offre un cadre de vie idyllique, alliant la beauté de son environnement naturel à de nombreuses commodités. Vous pourrez profiter de l’accès facile aux plages, aux marchés locaux et aux activités de plein air. La ville est connue pour sa convivialité et son ambiance chaleureuse, tout en étant proche des infrastructures nécessaires au quotidien. Que ce soit pour des balades en bord de mer ou pour explorer les trésors de la région, cet emplacement idéal vous promet une qualité de vie inégalée. Ne manquez pas cette opportunité d’acquérir un terrain au potentiel considérable dans un environnement séduisant. Contactez-nous dès maintenant pour envisager ce projet unique. À noter qu’en tant que constructeur, nous ne sommes pas mandatés pour réaliser la vente de ce terrain.
Les Mathes
TERRAIN ET MAISONSur ce terrain, nous vous proposons cette maison neuve, modèle Golf, conçue par Elysees Ocean, le constructeur aux meilleurs avis clients de la profession. Avec une surface de 114 m², cette maison cubique et design est idéale pour une petite famille. L’architecture ciselée de cette maison réjouira les amateurs de lignes contemporaines harmonieuses. Les grandes pièces de vie sont baignées de lumière grâce aux baies vitrées orientées au Sud, apportant confort et économies d’énergie à ses habitants. La maison Golf dispose de 3 chambres, dont une suite parentale, et de 4 pièces au total. Les menuiseries en aluminium, option très demandée par nos clients, ajoutent une touche de modernité et de durabilité à l’ensemble.Cette maison neuve est basse consommation et conforme à la réglementation environnementale RE2020, garantissant une performance énergétique optimale et un respect de l’environnement.Ne manquez pas cette opportunité unique de vivre dans une maison alliant design contemporain, confort et économies d’énergie. Contactez-nous dès maintenant pour plus d’informations.
Les Mathes
TERRAINNous vous proposons un terrain exceptionnel de 753 m² situé à Mathes en Charente-Maritime, en Nouvelle-Aquitaine. Ce terrain non-viabilisé représente une opportunité parfaite pour concrétiser vos projets de construction de maison. Offrant une belle superficie, il assure un cadre de vie harmonieux, idéal pour recevoir famille et amis, tout en étant idéalement situé dans une ville réputée pour sa qualité de vie. Mathes est une commune prisée qui séduit par son ambiance conviviale et son accessibilité. Évoluant à proximité de la mer, elle permet de profiter des plaisirs balnéaires tout en étant entourée par la nature. La ville propose de nombreuses commodités, comme des commerces, écoles et services de proximité, tout en offrant un cadre naturel exceptionnel et la possibilité de découvrir les attraits touristiques de la région. Ce terrain saura charmer les amoureux de la mer et de la tranquillité. Ne manquez pas l’opportunité de devenir propriétaire de ce terrain au potentiel immense. Contactez-nous pour découvrir tous les avantages qu’il offre ! À noter qu’en tant que constructeur, nous ne sommes pas mandatés pour réaliser la vente de ce terrain.
Les Mathes
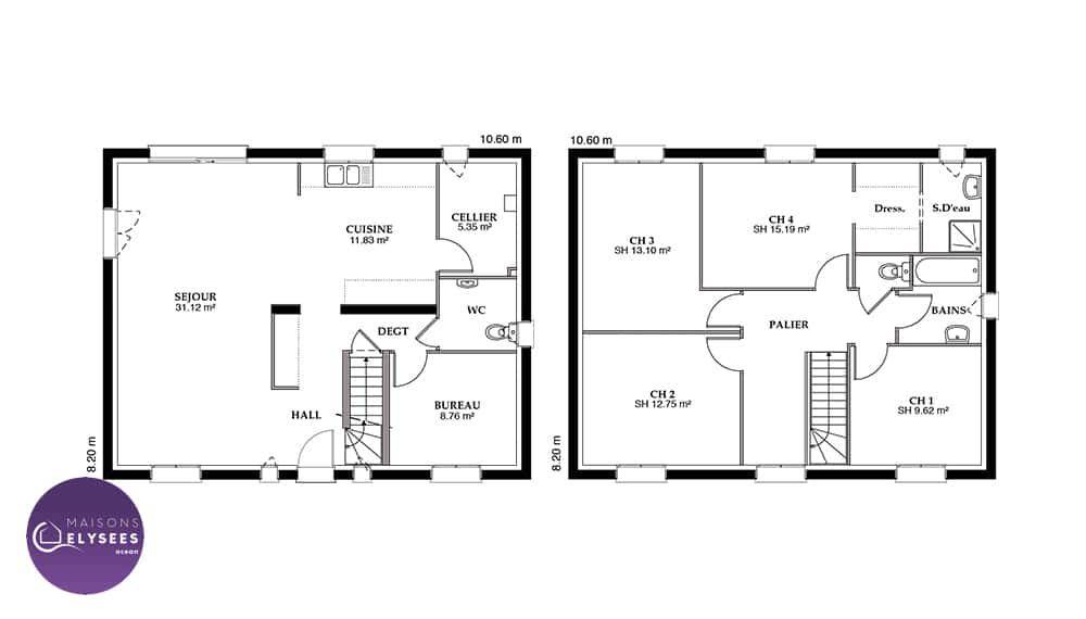
TERRAIN ET MAISONSur ce terrain, nous vous proposons cette maison neuve, le modèle Cordouan, conçue par Elysees Ocean, le constructeur aux meilleurs avis clients de la profession.### Une villa à la fois discrète et exubéranteL’entrée de la maison, discrète et qualitative, témoigne d’une belle maison contemporaine, laissant entrevoir les superbes jeux de toiture de la partie arrière. Cette partie arrière est époustouflante avec de multiples ouvertures que l’on devine ouvertes sur un beau jardin avec piscine.### Une vraie Villa familialeLe rez-de-chaussée de ce modèle Cordouan est composé d’une immense pièce de vie centrale autour de laquelle vous trouverez une cuisine semi-ouverte, un cellier, et deux belles chambres, chacune avec sa salle d’eau privative. Un double garage complète ce rez-de-chaussée, qui se caractérise également par de belles hauteurs sous plafonds grâce aux jeux de toiture. L’étage dispose d’un coin nuit avec deux chambres donnant sur une superbe loggia extérieure et une salle d’eau commune. À noter que ce plan peut être adapté, en optant pour des surfaces encore plus importantes.### Une villa de luxeCette villa, de la gamme Architecte d’Elysees Ocean, est réellement luxueuse, de par son architecture et ses prestations, que vous pourrez découvrir à travers nos différentes collections. ### Caractéristiques principales- Surface de 140 m²- 4 chambres et 4 pièces- Grande terrasse- Toiture 6 versants- Baies vitrées au sud- Style balnéaire### Options les plus demandées- Menuiseries Aluminium- Domotique- Piscine### Performance énergétiqueCette maison neuve est basse consommation et conforme à la RE2020, garantissant des économies d’énergie et un confort optimal tout au long de l’année.Ne manquez pas cette opportunité unique de devenir propriétaire d’une villa exceptionnelle, alliant modernité, confort et luxe. Contactez-nous dès aujourd’hui pour plus d’informations et pour planifier une visite.
Les Mathes
TERRAINDécouvrez ce terrain exceptionnel de 1200 m² situé à Mathes, en Charente-Maritime. Ce bien rare, non viabilisé, constitue une toile vierge idéale pour réaliser le projet de construction de votre future maison. Avec un environnement paisible et des possibilités d’aménagement variées, ce terrain vous permet de concevoir l’espace de vie dont vous avez toujours rêvé, au cœur d’une région bénéficiant d’une qualité de vie sans pareille. Profitez d’une localisation idéale à proximité de la mer, alliant le confort d’une vie tranquille et l’accès rapide aux commodités urbaines. Mathes est une charmante commune de la région Nouvelle-Aquitaine, offrant un cadre de vie enchanteur. Cette ville dynamique se distingue par ses attractions locales, dont les plages à proximité qui séduisent les amateurs de sports nautiques, ainsi que son patrimoine naturel préservé. Les services essentiels et commerces sont facilement accessibles, garantissant ainsi un quotidien pratique et agréable. Que vous soyez à la recherche de détente, de loisirs ou d’activités culturelles, Mathes saura combler toutes vos attentes. Ce terrain représente une opportunité rare pour les investisseurs ou futurs propriétaires souhaitant bâtir leur havre de paix dans un cadre idyllique. Ne laissez pas passer cette chance, contactez-nous dès aujourd’hui pour en savoir plus. À noter qu’en tant que constructeur, nous ne sommes pas mandatés pour réaliser la vente de ce terrain.
La Tremblade
TERRAIN ET MAISONSur ce terrain, nous vous proposons cette maison neuve : le modèle Aria, conçu par Elysees Ocean, le constructeur aux meilleurs avis clients de la profession.Un pavillon familial et designNotre modèle Aria est une superbe maison avec un plan en V, offrant une surface de 104 m². Elle se compose de 4 chambres et de 4 pièces, dont une grande pièce de vie avec cuisine ouverte et un espace nuit comprenant une suite parentale. Le plan en V permet une très bonne exposition, offrant à la maison des caractéristiques bioclimatiques, se traduisant par une luminosité optimale et des économies d’énergie grâce à la réduction des besoins de chauffage.Un plan favorisant les économies d’énergieCette maison neuve est basse consommation et conforme à la RE2020, garantissant des performances énergétiques exceptionnelles. Les menuiseries en aluminium, option très demandée par nos clients, ajoutent une touche de modernité et d’efficacité énergétique à l’ensemble.Le modèle Aria inclut également un garage, offrant un espace de rangement supplémentaire et une protection pour votre véhicule.Ne manquez pas cette opportunité unique de devenir propriétaire d’une maison neuve, design et économe en énergie, construite par Elysees Ocean, le constructeur de confiance avec les meilleurs avis clients de la profession. Contactez-nous dès aujourd’hui pour plus d’informations et pour planifier une visite du terrain.
L’actualité immobilière à La Tremblade
27/11/2023
02/11/2023
30/10/2023
20/10/2023
16/10/2023
16/10/2023