Images
Description
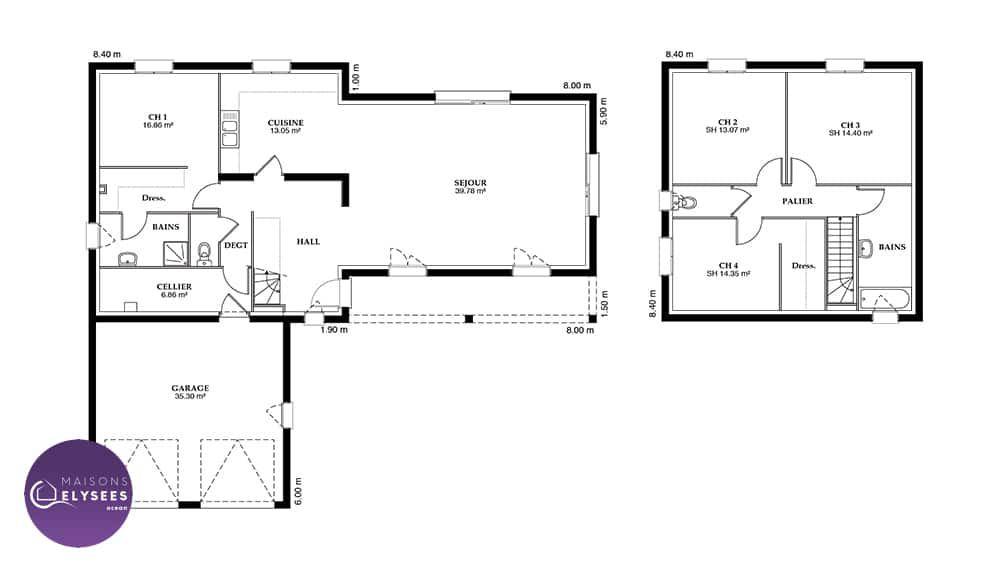
Sur ce terrain, nous vous proposons cette maison neuve, modèle Oceane, construite par Elysees Ocean, le constructeur avec les meilleurs avis clients de la profession.
Cette maison de 116 m², de style provençal, se distingue par son élégance et son harmonie. Elle dispose de 4 chambres et de 4 pièces, offrant ainsi un espace de vie confortable et fonctionnel pour toute la famille. La maison Oceane est conçue avec une dalle étage en béton, garantissant une solidité et une durabilité exceptionnelles. Vous avez le choix entre une toiture à 2 pans ou à 4 pans, selon vos préférences esthétiques.
Le rez-de-chaussée accueille un grand espace à vivre lumineux et convivial, idéal pour les moments en famille ou entre amis. Une chambre ou un bureau supplémentaire se trouve également à ce niveau, offrant une flexibilité d'aménagement. À l'étage, la partie nuit se compose de trois chambres spacieuses, parfaites pour le repos et l'intimité de chacun.
Le garage intégré est un atout pratique, permettant de stationner votre véhicule en toute sécurité et de bénéficier d'un espace de rangement supplémentaire.
Les options les plus demandées par nos clients, telles que les menuiseries en aluminium, sont disponibles pour personnaliser votre maison selon vos goûts et vos besoins. Vous pouvez également choisir des façades colorées ou un bardage bois pour apporter une touche de modernité à votre demeure.
Cette maison neuve est basse consommation et conforme à la réglementation environnementale RE2020, vous assurant ainsi des économies d'énergie et un confort optimal tout au long de l'année.
La maison Oceane est idéale pour une vie en bord de mer, offrant un cadre de vie agréable et paisible. Ne manquez pas cette opportunité unique de devenir propriétaire d'une maison neuve, élégante et éco-responsable, construite par Elysees Ocean, le constructeur de confiance avec les meilleurs avis clients de la profession.
Logement susceptibles de vous intéresser
Nous vous proposons de découvrir aussi cette sélection de logements situés à moins de 10km de La Tremblade et qui seraient susceptibles de vous intéresser.
La Tremblade
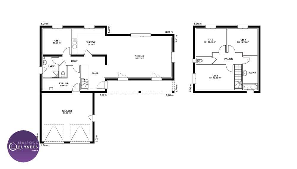
TERRAIN ET MAISONSur ce terrain, nous vous proposons cette maison neuve, modèle Iona, construite par Elysees Ocean, le constructeur avec les meilleurs avis clients de la profession. Avec une surface de 80 m², cette maison compacte et lumineuse offre un excellent rapport qualité-prix. La maison Iona se compose de 4 pièces, dont 3 chambres, et est idéale pour les familles à la recherche d’un espace de vie confortable et fonctionnel. Sa conception compacte permet une optimisation de l’espace tout en garantissant une luminosité naturelle exceptionnelle grâce à son séjour traversant.Cette maison est conforme à la norme RE2020, ce qui en fait une habitation basse consommation, respectueuse de l’environnement et économique en énergie. Vous pourrez ainsi profiter d’un confort thermique optimal tout au long de l’année.Le modèle Iona est également personnalisable selon vos envies. Vous pouvez choisir parmi de nombreuses options pour la rendre unique : enduit coloré, tuiles rondes de pays ou plates anthracites, et bien plus encore. De plus, cette maison est disponible avec ou sans garage accolé, selon vos besoins.Les menuiseries en aluminium, très demandées par nos clients, sont également disponibles en option pour ajouter une touche de modernité et de durabilité à votre future maison.Idéale pour un petit terrain en bord de mer, la maison Iona est une opportunité à ne pas manquer pour ceux qui recherchent une habitation alliant confort, performance énergétique et esthétisme. N’attendez plus pour découvrir cette maison neuve et contactez-nous pour plus d’informations.
La Tremblade
TERRAINNous avons le plaisir de vous proposer à la vente un terrain viabilisé de 450 m², parfaitement situé dans le lotissement prisé de La Tremblade, en Charente-Maritime. Ce terrain présente une belle opportunité pour réaliser votre projet de construction de maison rêvée dans un cadre agréable et paisible. La ville est réputée pour son ambiance conviviale et son cadre de vie agréable, parfait pour les familles et les amoureux de la nature. La Tremblade est idéalement située en Nouvelle-Aquitaine, à proximité immédiate de la mer, offrant une multitude d’activités nautiques et un accès rapide aux plages invitantes. La ville bénéficie de nombreuses commodités telles que des commerces de proximité, des écoles et des services de santé. Vous serez également charmé par le cadre naturel environnant, propice à la détente et aux promenades en bord de mer. De plus, la localisation est idéale pour les amoureux de la nature et les passionnés d’activités extérieures, grâce aux paysages pittoresques et aux attractions locales. Ce terrain présente un potentiel énorme pour ceux qui souhaitent construire leur maison dans une région dynamique et accueillante. N’hésitez pas à considérer cette opportunité unique d’acquérir un bien immobilier au cœur d’un environnement privilégié. À noter qu’en tant que constructeur, nous ne sommes pas mandatés pour réaliser la vente de ce terrain.
La Tremblade
TERRAINNous vous proposons un terrain à bâtir d’une superficie de 380 m², idéalement situé à La Tremblade, en Charente-Maritime. Ce terrain, entièrement viabilisé, représente une opportunité parfaite pour la construction de la maison de vos rêves. Profitez d’un cadre de vie agréable dans une ville au caractère authentique, qui combine tranquillité et dynamisme, notamment grâce à ses infrastructures de qualité et son ambiance conviviale. La Tremblade est une charmante ville de la Nouvelle-Aquitaine, à proximité de la mer et des splendides plages. Les commerces de proximité, ainsi que les établissements éducatifs tels que le collège et le lycée, sont facilement accessibles, rendant cette localisation idéale pour les familles. En outre, la richesse des attractions locales, telles que le port et les marchés animés, ajoute au charme de ce secteur en pleine expansion. Le potentiel d’aménagement et de développement de ce terrain est ainsi considérable, offrant une qualité de vie indéniable à ses futurs occupants. N’attendez plus pour envisager cette opportunité d’achat unique pour réaliser votre projet de construction dans un environnement privilégié ! À noter qu’en tant que constructeur, nous ne sommes pas mandatés pour réaliser la vente de ce terrain.
La Tremblade
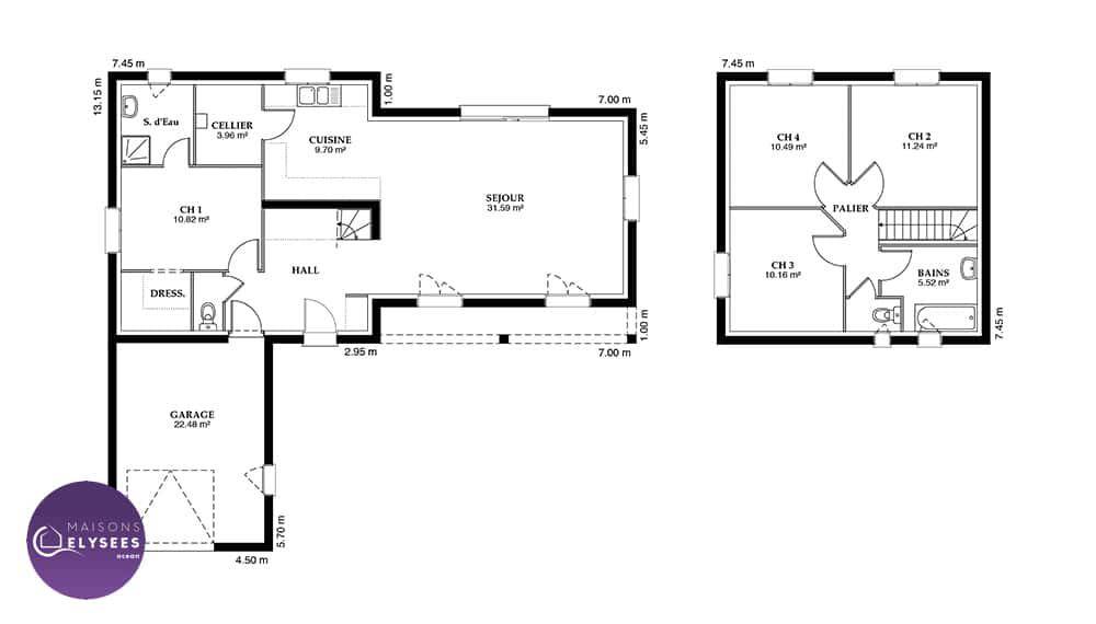
TERRAIN ET MAISONSur ce terrain, nous vous proposons cette maison neuve, modèle Elena, construite par Elysees Ocean, le constructeur avec les meilleurs avis clients de la profession.Avec son porche généreux, cette maison flatte l’œil et accueille le visiteur à l’abri. Son plan en L, très recherché, permet d’offrir une vaste pièce de vie conviviale bien séparée de l’espace nuit. Que l’on entre sur le terrain par le nord ou le sud, le séjour sera toujours du côté du soleil.Cette maison de 66 m² dispose de 3 pièces, dont 2 chambres, et offre un rapport qualité/prix exceptionnel. Le grand séjour lumineux est parfait pour des moments de détente en famille ou entre amis. Le garage accolé et le porche d’entrée ajoutent à la praticité et au charme de cette maison.Les options les plus demandées par nos clients, comme la suite parentale, peuvent être intégrées pour répondre à vos besoins spécifiques. De plus, cette maison neuve est basse consommation et conforme à la RE2020, garantissant des économies d’énergie et un confort optimal tout au long de l’année.Ne manquez pas cette opportunité unique de devenir propriétaire d’une maison moderne, fonctionnelle et respectueuse de l’environnement. Contactez-nous dès maintenant pour plus d’informations et pour planifier une visite.
Étaules
TERRAINDécouvrez ce magnifique terrain à vendre, idéalement situé à Étaules, en Charente-Maritime. S’étendant sur une superficie généreuse de 450 m², ce terrain non viabilisé offre un cadre champêtre paisible, parfait pour réaliser votre projet de construction de maison. La tranquillité d’esprit et la promesse d’un mode de vie au calme sont au rendez-vous, tout en restant à proximité des commodités nécessaires. Ce terrain constitue une opportunité rare pour ceux qui cherchent à bâtir leur chez-soi dans un environnement serein. Étaules, charmante commune de Nouvelle-Aquitaine, se distingue par son cadre naturel préservé et sa proximité avec diverses attractions locales. Profitez de la beauté des paysages environnants, tout en ayant accès aux services essentiels tels que commerces, écoles et transports. La région offre également de nombreuses activités de plein air, rendant le quotidien très agréable. Ici, vous pouvez vivre en harmonie avec la nature tout en restant connecté aux infrastructures urbaines. Ne manquez pas cette occasion unique d’acquérir un terrain au potentiel immense dans un cadre idyllique. Contactez-nous pour explorer ensemble les possibilités de ce terrain qui n’attendent que votre imagination. À noter qu’en tant que constructeur, nous ne sommes pas mandatés pour réaliser la vente de ce terrain.
La Tremblade
TERRAIN ET MAISONSur ce terrain, nous vous proposons cette maison neuve, modèle Oceane, construite par Elysees Ocean, le constructeur avec les meilleurs avis clients de la profession.Cette maison de 116 m², de style provençal, se distingue par son élégance et son harmonie. Elle dispose de 4 chambres et de 4 pièces, offrant ainsi un espace de vie confortable et fonctionnel pour toute la famille. La maison Oceane est conçue avec une dalle étage en béton, garantissant une solidité et une durabilité exceptionnelles. Vous avez le choix entre une toiture à 2 pans ou à 4 pans, selon vos préférences esthétiques.Le rez-de-chaussée accueille un grand espace à vivre lumineux et convivial, idéal pour les moments en famille ou entre amis. Une chambre ou un bureau supplémentaire se trouve également à ce niveau, offrant une flexibilité d’aménagement. À l’étage, la partie nuit se compose de trois chambres spacieuses, parfaites pour le repos et l’intimité de chacun.Le garage intégré est un atout pratique, permettant de stationner votre véhicule en toute sécurité et de bénéficier d’un espace de rangement supplémentaire.Les options les plus demandées par nos clients, telles que les menuiseries en aluminium, sont disponibles pour personnaliser votre maison selon vos goûts et vos besoins. Vous pouvez également choisir des façades colorées ou un bardage bois pour apporter une touche de modernité à votre demeure.Cette maison neuve est basse consommation et conforme à la réglementation environnementale RE2020, vous assurant ainsi des économies d’énergie et un confort optimal tout au long de l’année.La maison Oceane est idéale pour une vie en bord de mer, offrant un cadre de vie agréable et paisible. Ne manquez pas cette opportunité unique de devenir propriétaire d’une maison neuve, élégante et éco-responsable, construite par Elysees Ocean, le constructeur de confiance avec les meilleurs avis clients de la profession.
Étaules
TERRAIN ET MAISONSur ce terrain, nous vous proposons cette maison neuve, modèle CITY, conçue par Elysees Ocean, le constructeur avec les meilleurs avis clients de la profession. Maison citadine et évolutive par excellence, CITY peut se transformer facilement au gré du développement de la famille. Avec une surface de 70 m², cette maison dispose de 2 chambres et de 3 pièces, offrant un espace de vie confortable et fonctionnel.Les caractéristiques principales de cette maison incluent une dalle étage en béton, garantissant robustesse et durabilité, ainsi qu’un excellent rapport qualité/prix. En plus de ses chambres à l’étage, CITY peut offrir une chambre au rez-de-chaussée, et peut être équipée d’un garage accolé, d’un car port ou de volets roulants, options les plus demandées par nos clients.Cette maison neuve est basse consommation et conforme à la réglementation environnementale RE2020, assurant des performances énergétiques optimales et un impact environnemental réduit.Ses finitions sont nombreuses et peuvent s’adapter à tout type d’architecture, qu’elle soit traditionnelle ou contemporaine, pour répondre à toutes vos envies et besoins.Ne manquez pas cette opportunité unique de devenir propriétaire d’une maison moderne, évolutive et éco-responsable avec Elysees Ocean. Contactez-nous dès aujourd’hui pour plus d’informations et pour organiser une visite.
La Tremblade
TERRAINDécouvrez ce terrain à vendre d’une superficie de 350 m², situé au cœur du charmant lotissement de La Tremblade, en Charente-Maritime. Ce terrain viabilisé offre un cadre idéal pour réaliser votre projet de construction de maison qui répond à toutes vos attente et besoins. Avec ses caractéristiques uniques, il constitue une opportunité parfaite pour bâtir le lieu de vie de vos rêves dans une commune dynamique et agréable. La Tremblade, un joyau de la Nouvelle-Aquitaine, vous séduira par sa proximité avec les commodités locales et ses établissements scolaires accessibles à pied. La ville est également réputée pour ses attraits touristiques et ses activités nautiques, séduisant tant les familles que les amateurs de nature. Profitez d’une ambiance conviviale, enrichie par des paysages marins et des marchés animés, idéals pour savourer la qualité de vie de cette région. Ce terrain bénéficie d’une localisation stratégique qui vous permettra de profiter pleinement de la beauté des environs. Ne laissez pas passer cette opportunité d’acquérir un terrain au potentiel immense. Contactez-nous dès maintenant pour plus d’informations et envisagez de réaliser votre rêve immobilier à La Tremblade. À noter qu’en tant que constructeur, nous ne sommes pas mandatés pour réaliser la vente de ce terrain.
Arvert
TERRAIN ET MAISON🏡 Votre maison sur mesure en Charente-Maritime avec Maisons MCA !Envie d’une maison individuelle adaptée à vos rêves et à votre budget ? Maisons MCA, constructeur local depuis 1986 et membre du groupe Hexaom (n°1 en France), vous accompagne de A à Z pour construire votre maison idéale à Rochefort, Saintes, Île d’Oléron ou Presqu’île d’Arvert.✅ Des maisons 100% personnalisables : plain-pied, à étage, contemporaine ou traditionnelle.✅ Qualité et performance : Isolation optimale (perméabilité à 0,4 m³/h/m²), respect strict de la RE 2020, et matériaux haut de gamme.✅ Sécurité et sérénité : Garanties maintenues depuis 2020, artisans locaux expérimentés, et suivi de chantier rigoureux.✅ Budget maîtrisé : Solutions de financement adaptées et étude gratuite.📍 Projets clés en main sur terrain viabilisé – à partir de 284 310€.Terrain sélectionné et vu pour vous sous réserve de disponibilité et au prix indiqué par notre partenaire foncier. 📞 Contact et renseignements: Cédric RÊTEUX (Numéro supprimé)Projet de construction signé les Maisons MCAPourquoi nous choisir ?Avec 40 ans d’expérience et des centaines de maisons construites, nous allions expertise, qualité et proximité pour vous offrir une maison durable, économique et sur mesure.
L’actualité immobilière à La Tremblade
27/11/2023
02/11/2023
30/10/2023
20/10/2023
16/10/2023
16/10/2023