Images
Description
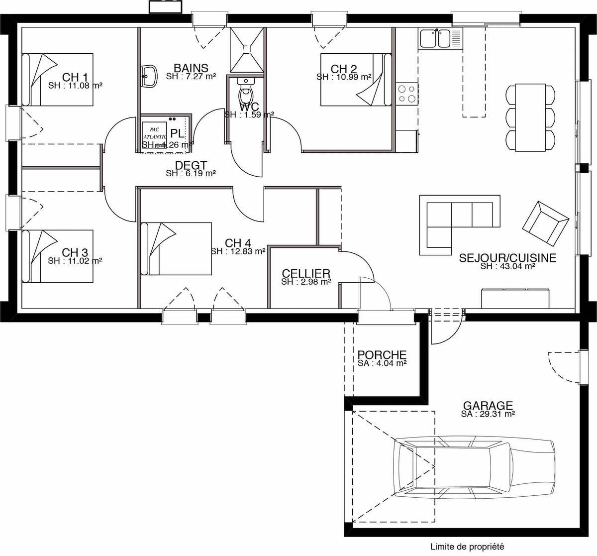
Sur ce terrain, nous vous proposons cette maison neuve, l'Atrium, conçue par le constructeur Elysees Ocean, reconnu pour ses excellents avis clients. Cette superbe demeure de 125 m², alliant tradition et modernité, se distingue par son architecture en L et son garage intégré.
L'Atrium se compose de 4 pièces, dont 3 chambres spacieuses, offrant un espace de vie confortable et fonctionnel. Le porche d'entrée ajoute une touche d'élégance et de convivialité à cette maison.
Les options les plus demandées par nos clients, telles que les menuiseries en aluminium et le clin bois, sont disponibles pour personnaliser votre future maison selon vos goûts.
Cette maison neuve est basse consommation et conforme à la réglementation environnementale RE2020, garantissant des performances énergétiques optimales et un respect de l'environnement.
Ne manquez pas cette opportunité unique de devenir propriétaire d'une maison alliant qualité, confort et modernité, avec Elysees Ocean, le constructeur de confiance.
Logement susceptibles de vous intéresser
Nous vous proposons de découvrir aussi cette sélection de logements situés à moins de 10km de Médis et qui seraient susceptibles de vous intéresser.
Médis
TERRAIN ET MAISONSur ce terrain, nous vous proposons cette maison neuve, modèle Elena, construite par Elysees Ocean, le constructeur avec les meilleurs avis clients de la profession.Avec son porche généreux, cette maison flatte l’œil et accueille le visiteur à l’abri. Son plan en L, très recherché, permet d’offrir une vaste pièce de vie conviviale bien séparée de l’espace nuit. Que l’on entre sur le terrain par le nord ou le sud, le séjour sera toujours du côté du soleil.Cette maison de 91 m² dispose de 4 pièces, dont 3 chambres spacieuses. Le grand séjour lumineux est idéal pour des moments en famille ou entre amis. Le garage accolé et le porche d’entrée ajoutent une touche de praticité et de confort à cette maison.Les options les plus demandées par nos clients, comme la suite parentale, peuvent être intégrées pour répondre à vos besoins spécifiques. De plus, cette maison neuve est basse consommation et conforme à la RE2020, garantissant des économies d’énergie et un respect de l’environnement.Rapport qualité / prix exceptionnel pour ce modèle Elena. Ne manquez pas cette opportunité unique de devenir propriétaire d’une maison moderne et éco-responsable. Contactez-nous dès aujourd’hui pour plus d’informations!
Médis
TERRAIN ET MAISONSur ce terrain, nous vous proposons cette maison neuve, l’Atrium, conçue par le constructeur Elysees Ocean, reconnu pour ses excellents avis clients. Cette superbe demeure de 125 m², alliant tradition et modernité, se distingue par son architecture en L et son garage intégré. L’Atrium se compose de 4 pièces, dont 3 chambres spacieuses, offrant un espace de vie confortable et fonctionnel. Le porche d’entrée ajoute une touche d’élégance et de convivialité à cette maison. Les options les plus demandées par nos clients, telles que les menuiseries en aluminium et le clin bois, sont disponibles pour personnaliser votre future maison selon vos goûts. Cette maison neuve est basse consommation et conforme à la réglementation environnementale RE2020, garantissant des performances énergétiques optimales et un respect de l’environnement.Ne manquez pas cette opportunité unique de devenir propriétaire d’une maison alliant qualité, confort et modernité, avec Elysees Ocean, le constructeur de confiance.
Médis
TERRAINDécouvrez ce remarquable terrain de 405 m², idéalement situé à Médis, en Charente-Maritime. Ce terrain, encore non-viabilisé, se présente comme l’opportunité parfaite pour concrétiser votre projet de construction de maison dans un cadre paisible et arboré. Profitez d’une qualité de vie inégalée et d’une situation idéale pour bâtir votre havre de paix dans ce secteur au calme et propice aux familles. Médis, au cœur de la Nouvelle-Aquitaine, offre un cadre de vie privilégié. Située à proximité des commerces et bénéficiant de la sécurité d’un environnement résidentiel convivial, la ville séduit par ses attraits locaux. Vous y trouverez des services variés, des espaces verts et la promesse d’une vie sereine entourée de nature. Que ce soit pour profiter des balades en plein air ou pour accéder rapidement aux commodités de la région, ce terrain saura vous captiver par son potentiel. N’attendez plus pour saisir cette opportunité unique d’acquérir un terrain dans un cadre idyllique. Laissez libre cours à votre imagination et envisagez les possibilités infinies qu’offre cet emplacement de choix. À noter qu’en tant que constructeur, nous ne sommes pas mandatés pour réaliser la vente de ce terrain.
Médis
TERRAINDécouvrez ce magnifique terrain à vendre d’une surface de 599 m², situé dans la charmante commune de Médis, en Charente-Maritime. Idéalement conçu pour accueillir votre projet de construction de maison, ce terrain non viabilisé présente des caractéristiques uniques qui séduiront les amoureux de la nature et de la tranquillité. Niché au cœur d’un cadre champêtre, il offre un environnement calme et arboré, parfait pour votre futur havre de paix. La ville de Médis, située en Nouvelle-Aquitaine, se distingue par sa qualité de vie exceptionnelle. À proximité immédiate, vous trouverez toutes les commodités nécessaires ainsi que des établissements scolaires, facilitant le quotidien des familles. Profitez également des attraits locaux, tels que ses paysages verdoyants et ses sentiers de randonnée, qui renforcent l’attrait de cette localité. Ce quartier privilégié promet une situation idéale pour construire la maison de vos rêves, loin du tumulte urbain tout en restant proche des animations de la région. Ce terrain représente une opportunité unique pour réaliser votre projet immobilier dans un environnement paisible. N’attendez plus pour envisager cette chance d’acquérir un bien d’exception qui répond à toutes vos attentes. À noter qu’en tant que constructeur, nous ne sommes pas mandatés pour réaliser la vente de ce terrain.
Saujon
TERRAIN ET MAISONSur ce terrain, nous vous proposons cette maison neuve, modèle Elena, construite par Elysees Ocean, le constructeur avec les meilleurs avis clients de la profession.Avec son porche généreux, cette maison flatte l’œil et accueille le visiteur à l’abri. Son plan en L, très recherché, permet d’offrir une vaste pièce de vie conviviale bien séparée de l’espace nuit. Que l’on entre sur le terrain par le nord ou le sud, le séjour sera toujours du côté du soleil.Cette maison de 91 m² dispose de 4 pièces, dont 3 chambres spacieuses. Le grand séjour lumineux est idéal pour des moments en famille ou entre amis. Le garage accolé et le porche d’entrée ajoutent une touche de praticité et de confort à cette maison.Les options les plus demandées par nos clients, comme la suite parentale, peuvent être intégrées pour répondre à vos besoins spécifiques. De plus, cette maison neuve est basse consommation et conforme à la RE2020, garantissant des économies d’énergie et un respect de l’environnement.Rapport qualité / prix exceptionnel pour ce modèle Elena. Ne manquez pas cette opportunité unique de devenir propriétaire d’une maison moderne et éco-responsable. Contactez-nous dès aujourd’hui pour plus d’informations!
Saujon
TERRAINIdéalement positionné dans la charmante commune de L’Éguille à 6kms de Saujon sur l’axe Rochefort – Royan, ce terrain bénéficie de la proximité des commerces et des services essentiels, tout en étant proche d’un axe routier important, facilitant vos déplacements. Les écoles à proximité font de cet emplacement un choix parfait pour les familles et les primo-accédants. Il bénéficie d’une belle profondeur de 25m avec le sud sur l’arrière permettant de mettre une maison et une petite piscine. Ne manquez pas cette opportunité d’acquérir un terrain à fort potentiel dans un environnement paisible. Ce bien pourrait être la clé de votre nouveau projet de vie. Contactez-notre agence de Saujon dès maintenant pour en savoir plus! À noter qu’en tant que constructeur, nous ne sommes pas mandatés pour réaliser la vente de ce terrain.
Corme-Écluse
TERRAIN ET MAISONVéronique CANTEAU des maisons MCA de Royan, vous propose d’adapter le modèle Jonquille sur ce terrain d’environ 670 m2, idéalement situé sur la commune de Corme-Ecluse à 20 minutes de Royan et des plages.Cette maison est composée d’une belle pièce de vie d’environ 38 m2, avec cuisine ouverte et cellier attenant. L’espace nuit est composé de 3 chambres, une salle de bains et WC séparés. Ce modèle est entièrement personnalisable pour s’adapter à votre mode de vie, idéal pour un premier achat ou un investissement locatif.Le prix affiché comprend le terrain, les frais de notaire, et cette maison livrée prête à décorer.Contactez vite votre conseillère Véronique CANTEAU au (Numéro supprimé) à l’agence MCA de Royan, afin qu’elle vous guide dans les démarches et vous accompagne dans ce projet de construction personnalisé, aux normes RE2020.
Le Gua
TERRAIN ET MAISONVéronique CANTEAU des maisons MCA de Royan, vous propose d’adapter le modèle Jonquille sur ce terrain d’environ 510 m2, idéalement situé sur la commune de LE GUA à 20 minutes de Royan et à proximités des commerces et de l’école.Cette maison est composée d’une belle pièce de vie d’environ 38 m2, avec cuisine ouverte et cellier attenant. L’espace nuit est composé de 3 chambres, une salle de bains et WC séparés. Ce modèle est entièrement personnalisable pour s’adapter à votre mode de vie, idéal pour un premier achat ou un investissement locatif.Le prix affiché comprend le terrain, les frais de notaire, et cette maison livrée prête à décorer.Contactez vite votre conseillère Véronique CANTEAU au (Numéro supprimé) à l’agence MCA de Royan, afin qu’elle vous guide dans les démarches et vous accompagne dans ce projet de construction personnalisé, aux normes RE2020.
Médis
TERRAINVéronique CANTEAU des maisons MCA de Royan, vous propose ce terrain d »une surface de 468 m2, sur la commune de Médis.Idéalement situé à 5 minutes de Royan, dans un cadre de vie privilégié, vous disposerez de commerces de proximité et d »une école. La gare de Royan se situe à 6 KMs. Vous pourrez également bénéficier de la plage à moins de 10 minutes.Ce terrain est vendu entièrement viabilisé, il vous est proposé dans le cadre d »une construction MCA, en collaboration avec notre partenaire foncier.Contactez vite votre conseillère Véronique CANTEAU au (Numéro supprimé) à l »agence MCA de Royan, afin qu »elle vous guide dans les démarches et vous accompagne dans ce projet de construction personnalisé, aux normes RE2020.
L’actualité immobilière à Médis
27/11/2023
02/11/2023
30/10/2023
20/10/2023
16/10/2023
16/10/2023