Images
Description
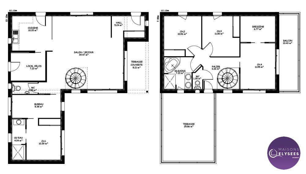
Sur ce terrain, nous vous proposons cette maison neuve, la Meschers, conçue par Elysees Ocean, le constructeur aux meilleurs avis clients de la profession. Cette maison contemporaine de 143 m² se distingue par son design exceptionnel et son caractère écologique, conforme à la norme RE2020 pour une basse consommation énergétique.
La Meschers offre un espace de vie généreux avec plus de 50 m² de séjour-cuisine, idéal pour accueillir une famille nombreuse. Elle dispose de 4 chambres, dont deux suites parentales, et une chambre au rez-de-chaussée, offrant ainsi un confort optimal pour tous les membres de la famille.
Les caractéristiques principales de cette maison incluent un bardage Vibrato, une suite parentale, un balcon et font partie de la collection Plénitude. Un très grand auvent à l'étage confère à cette maison une personnalité hors du commun, ajoutant une touche d'élégance et de modernité.
Les options les plus demandées par nos clients, telles que les menuiseries en aluminium et le bardage Vibrato, sont également disponibles pour personnaliser votre future maison selon vos goûts et besoins.
Ne manquez pas cette opportunité unique de vivre dans une maison neuve, écologique et à la pointe du design, avec Elysees Ocean, le constructeur de confiance.
Logement susceptibles de vous intéresser
Nous vous proposons de découvrir aussi cette sélection de logements situés à moins de 10km de Meschers-sur-Gironde et qui seraient susceptibles de vous intéresser.
Meschers-sur-Gironde
TERRAINMeschers, situé dans un lotissement très agréable à vivre, venez découvrir ce terrain viabilisé de 248 m², clos, profitant d’une exposition sud.Pour tout renseignement complémentaire, contactez Pierre-Emmanuel HÜE (Bermax Construction Vaux-sur-Mer) au (Numéro supprimé)
Médis
TERRAINMédis, dans un quartier calme et bucolique entouré de champs et forêts, très belle opportunité avec ce terrain borné et viabilisé à la façade de plus de 15ml et exposé sud-ouest.Vous souhaitez faire construire à Médis, contactez Pierre-Emmanuel HÜE (Bermax Construction Vaux-sur-Mer) au (Numéro supprimé)
Meschers-sur-Gironde
TERRAIN ET MAISONA Meschers, à 2 km du centre ville et école maternelles et primaires, nous proposons cette maison RE 2020 de plain-pied de 60 m² à construire avec une pièce de vie traversante, 2 chambres, salle d’eau avec wc intégré, carport de 18,65 m²Prenez contact avec Pierre-Emmanuel HÜE (Bermax Construction Vaux-sur-Mer) au (Numéro supprimé) pour tout renseignement complémentaire.
Médis
TERRAIN ET MAISONA Médis, située dans un quartier très calme, nous proposons cette maison RE 2020 de plain-pied de 60 m² avec une pièce de vie traversante, 2 chambres, salle d’eau avec wc intégré, garage accolé.Prenez contact avec Pierre-Emmanuel HÜE (Bermax Construction Vaux-sur-Mer) au (Numéro supprimé) pour tout renseignement complémentaire.
Médis
TERRAIN ET MAISONA Médis, située dans un quartier calme, à 2 pas du centre bourg, nous proposons une maison de plain-pied de 73 m² RE 2020 avec pièce de vie de 29 m², 3 chambres, salle d’eau avec double vasque, wc, garage intégré Pour tout renseignement complémentaire, contactez Pierre-Emmanuel HÜE (Bermax Construction Vaux-sur-Mer) au (Numéro supprimé)
Médis
TERRAINEtienne NEAU, conseiller chez Alpha constructions vous propose ce terrain de 328m², situé à Médis dans un lotissement récent et harmonieux. Ce terrain offre un cadre de vie idéal pour votre futur projet. Médis est réputé pour son calme et est idéalement situé à 2 pas de Royan et de ses plages. Toutes les commodités sont sur place, écoles, commerces et services accessible rapidement. Ce terrain prêt à bâtir est parfait pour la construction de votre maison dans un cadre privilégié. Ce terrain est à vendre pour la somme de 88 000 €. Prenez contact avec Etienne NEAU ((Numéro supprimé)) pour tout renseignement sur le terrain. Retrouvez-moi, directement en agence à Royan ou par téléphone au (Numéro supprimé) Alpha constructions Royan vous accompagne dans toutes vos démarches et à toutes les étapes de votre projet.
Médis
TERRAIN ET MAISONEtienne NEAU conseiller chez Alpha Constructions vous propose cette sublime maison contemporaine avec étage et garage intégré de 22m². Cette maison dispose d’un coin nuit au rez-de-chaussée comprenant 2 grande chambres, une salle de bain et un bureau. Un grand salon avec cuisine ouverte et son cellier attenant. A l’étage, vous aurez votre très grande suite parentale de 22m², une salle d’eau et un grand dressing.Retrouvez moi, directement en agence à Royan ou par téléphone au (Numéro supprimé) Alpha Constructions vous accompagne dans toutes vos démarches et à toutes les étapes de votre projet.
Médis
TERRAIN ET MAISONEtienne NEAU conseiller chez Alpha Constructions vous propose de découvrir tout le charme de notre modèle OPTICA, une maison contemporaine à l’architecture sobre et élégante, conçue pour offrir un espace de vie raffiné et parfaitement optimisé. Dès l’entrée, vous serez séduit par une pièce de vie baignée de lumière grâce à ses larges ouvertures et son exposition idéale. La cuisine ouverte s’intègre harmonieusement à un salon-séjour convivial de plus de 30 m², invitant au partage et à la détente. Côté nuit, deux chambres lumineuses, une salle d’eau moderne et des rangements bien pensés assurent un quotidien fonctionnel et apaisant. Chaque mètre carré a été étudié pour offrir une circulation fluide, un maximum de lumière naturelle et une sensation d’espace remarquable. Économe en énergie, respectueuse des dernières normes environnementales, la maison OPTICA combine design, confort et performance dans un écrin contemporain.Retrouvez moi, directement en agence à Royan ou par téléphone au (Numéro supprimé) Alpha Constructions vous accompagne dans toutes vos démarches et à toutes les étapes de votre projet.
Médis
TERRAIN ET MAISONEtienne NEAU conseiller chez Alpha Constructions vous propose de vous laisser séduire par cette superbe maison de plain-pied au design moderne et fonctionnel. Sa belle pièce de vie lumineuse de près de 40 m², orientée plein sud, offre un espace convivial où cuisine ouverte et salon se fondent harmonieusement, parfait pour partager de beaux moments en famille ou entre amis. Côté nuit, vous profiterez de trois chambres confortables, une salle d’eau et des WC séparés viennent compléter cet agencement idéal. Le cellier attenant à la cuisine permet un accès direct au garage, pratique pour le quotidien. Chaque mètre carré a été pensé pour vous simplifier la vie et offrir un maximum de rangements. Implantée sur un terrain bien proportionné, cette maison combine modernité, fonctionnalité et économies d’énergie grâce à sa conception conforme à la RE2020.Retrouvez moi, directement en agence à Royan ou par téléphone au (Numéro supprimé) Alpha Constructions vous accompagne dans toutes vos démarches et à toutes les étapes de votre projet.
L’actualité immobilière à Meschers-sur-Gironde
27/11/2023
02/11/2023
30/10/2023
20/10/2023
16/10/2023
16/10/2023