Maison à construire à Mornac-sur-Seudre (17113)
Images
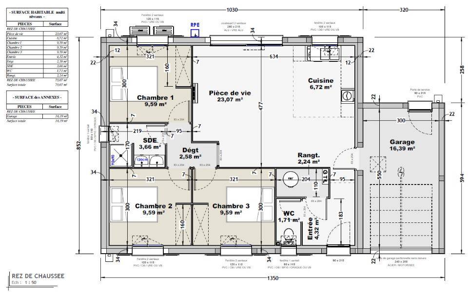
Description
A 10 mn de Royan, proche du centre bourg et école dans l'un des plus beaux villages de France, sur ce lot réservé aux primo-accédants, nous proposons cette maison RE 2020 de plain-pied de 70 m² avec entrée, une pièce de vie de 29m² avec une grande baie vitrée, 3 chambres, salle d'eau avec double vasque, wc, garage.
Prenez contact avec Pierre-Emmanuel HÜE (Bermax Construction Vaux-sur-Mer) au (Numéro supprimé) pour tout renseignement complémentaire.
Logement susceptibles de vous intéresser
Nous vous proposons de découvrir aussi cette sélection de logements situés à moins de 10km de Mornac-sur-Seudre et qui seraient susceptibles de vous intéresser.
Royan
TERRAINROYAN, terrain à bâtir d’une superficie de 453m². Emprise au sol 158m². Viabilisation en bordure de rue. Situé au calme. Hors lotissement.Visites possibles du lundi au samedi 8h/20h. Les honoraires d’agence sont à la charge de l’acquéreur, soit 8,78% TTC du prix hors honoraires.Les informations sur les risques auxquels ce bien est exposé sont disponibles sur le site Géorisques : www. georisques. gouv. fr.Réseau Immobilier CAPIFRANCE – Votre agent commercial (RSAC N(Numéro supprimé) – Greffe de SAINTES) Vincent GUERIN Entrepreneur Individuel à Responsabilité Limitée (Numéro supprimé) – Réf.929191
Étaules
TERRAIN ET MAISONSur ce terrain, nous vous proposons cette maison neuve, le modèle Coubre, conçue par Elysees Ocean, le constructeur aux meilleurs avis clients de la profession. Elysees Ocean vous présente le modèle Coubre, maison parfaite pour le littoral ! Magnifique maison contemporaine à toit plat, la Coubre vous offre ses 137 m² de surface habitable dans un espace superbement bien pensé pour un confort absolu. Pour les vacances ou pour toute l’année, c’est une maison si agréable que vous ne voudrez plus la quitter.Deux espaces bien délimités pour cette maison moderne. Cette demeure de plain-pied se compose de deux corps de bâtiment quasiment distincts, reliés uniquement par un hall. Ce qui permet de compartimenter les espaces, avec le coin jour d’un côté, comprenant un grand séjour avec cuisine ouverte, un cellier, un garage intégré, et de l’autre le coin nuit, luxueux?! Jugez plutôt. Quatre chambres réparties autour d’un dégagement et pas moins de trois salles d’eau composent cette aile?! On dénombre également deux w.c. dont l’un est séparé. C’est la maison parfaite pour les familles ou pour recevoir, personne ne se bouscule, pas même pour la toilette?!Une demeure lumineuse et un extérieur très chic. De grandes baies vitrées courent sur la façade de l’espace diurne. Des fenêtres partout qui laissent entrer la lumière. Une pergola côté séjour, et un enduit façade bi-tons finissent par convaincre les plus réticents?! Cette maison est pour vous?! Vous voulez en savoir plus?? Vite, contactez-nous?!A noter que cette maison neuve est basse consommation et conforme à la RE2020. Les options les plus demandées par les clients sont également disponibles : menuiseries en aluminium et domotique. Ne manquez pas cette opportunité unique de vivre dans une maison moderne, confortable et éco-responsable.
Étaules
TERRAINDécouvrez ce terrain exceptionnel de 963 m² situé dans le charmant lotissement d’Étaules, en Charente-Maritime. Ce terrain viabilisé, au cœur d’un quartier arboré prisé, représente une occasion unique pour concrétiser votre projet de construction de maison. La qualité de vie ici est sans pareil, et les caractéristiques de ce bien vous permettront d’imaginer une demeure qui répondra parfaitement à vos désirs et à votre mode de vie. Étaules, idéalement situé en Nouvelle-Aquitaine, se distingue par ses paysages enchanteurs et son atmosphère conviviale. Profitez des commodités locales, des commerces de proximité, et des activités pour toute la famille. À proximité, vous aurez accès à de nombreuses attractions, dont la beauté des plages de la côte atlantique et les richesses culturelles de la région. Tout cela crée un cadre de vie harmonieux et agréable, parfait pour ceux qui recherchent un équilibre entre tranquillité et accessibilité. Ne manquez pas cette opportunité d’acquérir un terrain au potentiel exceptionnel. Pensez à envisager ce projet qui pourrait devenir votre havre de paix. À noter qu’en tant que constructeur, nous ne sommes pas mandatés pour réaliser la vente de ce terrain.
Arvert
TERRAIN ET MAISONSur ce terrain, nous vous proposons cette maison neuve, la Dompierre, conçue par le constructeur Elysees Ocean, reconnu pour ses excellents avis clients. Cette maison de 120 m², basse consommation et conforme à la RE2020, est idéale pour les familles à la recherche de confort et de modernité.La Dompierre se distingue par son architecture contemporaine de standing, articulée autour d’un mur rideau de plus de 30 m² orienté plein sud. Ce mur rideau illumine le séjour au rez-de-chaussée et une grande mezzanine-bureau à l’étage, offrant un volume étendu et harmonieux à la pièce à vivre. Vous aurez l’impression que l’intérieur et l’extérieur de la maison ne font qu’un.Le confort d’été est assuré par un brise-soleil vertical sur la partie haute et horizontal pour les vantaux coulissants du rez-de-chaussée, ainsi que des vitrages auto-nettoyants et performants sur le plan thermique. Une petite terrasse privative se love à l’arrière de la maison entre la cuisine et la salle de bain parentale, offrant un espace protégé pour les déjeuners et après-midis d’été.La maison dispose de 4 chambres, dont une suite parentale, et de 4 pièces principales. L’escalier luxueux de la collection Plénitude ajoute une touche d’élégance à l’intérieur. Un garage accolé complète les prestations de cette maison.Les options les plus demandées par nos clients, telles que le bardage Vibrato et les menuiseries en aluminium, sont également disponibles pour personnaliser votre future maison.Ne manquez pas cette opportunité unique de devenir propriétaire d’une maison neuve, moderne et économe en énergie, conçue par Elysees Ocean, le constructeur de confiance.
Arvert
TERRAINDécouvrez une occasion exceptionnelle d’acquérir un terrain viabilisé de 2984 m² dont 500?m² constructibles. Ce terrain plat, sans vis-à-vis et arboré, vous offre un cadre de vie paisible et serein pour concrétiser vos rêves architecturaux. Arvert, une ville dynamique de la Nouvelle-Aquitaine, se distingue par son ambiance conviviale, ses nombreuses commodités et ses attractions naturelles. La proximité avec l’océan et les plages de la côte atlantique, ainsi que l’accès à des sites touristiques et culturels, font de cette localité un choix de premier ordre pour toute la famille. Les écoles, commerces et loisirs à proximité s’ajoutent aux attraits de la région, faisant de ce terrain un emplacement stratégique pour une vie épanouie et active. Ne manquez pas cette chance de bâtir la maison de vos rêves dans un cadre idyllique. Contactez-nous dès maintenant pour envisager cette opportunité d’achat unique?! À noter qu’en tant que constructeur, nous ne sommes pas mandatés pour réaliser la vente de ce terrain.
Étaules
TERRAIN ET MAISONSur ce terrain, nous vous proposons cette maison neuve, modèle Evolia, construite par Elysees Ocean, le constructeur avec les meilleurs avis clients de la profession. Cette maison de 70 m², compacte mais évolutive, est idéale pour les jeunes familles ou les personnes recherchant un espace optimisé. Elle dispose de 3 pièces, dont 2 chambres confortables, et d’un garage accolé pour plus de praticité.L’un des atouts majeurs de la maison Evolia est sa capacité à s’adapter à vos besoins futurs. Vous pourrez facilement envisager des extensions pour accompagner l’évolution de votre famille. Sa compacité permet également de l’implanter sur des terrains de petite taille, sans compromis sur le confort.Les options les plus demandées par nos clients, telles que les menuiseries en aluminium, sont disponibles pour personnaliser votre maison selon vos goûts et vos besoins.En choisissant la maison Evolia, vous optez pour une habitation basse consommation, conforme à la réglementation environnementale RE2020. Vous bénéficierez ainsi d’un confort thermique optimal tout en réalisant des économies d’énergie.Ne manquez pas cette opportunité de devenir propriétaire d’une maison neuve, évolutive et respectueuse de l’environnement, construite par Elysees Ocean, le constructeur de confiance. Contactez-nous dès maintenant pour plus d’informations et pour organiser une visite du terrain.
Étaules
TERRAINDécouvrez ce terrain remarquable de 626 m² situé à Étaules, dans le département de Charente-Maritime, au cœur de la belle région de Nouvelle-Aquitaine. Idéal pour la construction de votre future maison, ce terrain non viabilisé offre un cadre idyllique pour concrétiser vos projets immobiliers. Profitez d’une surface généreuse qui vous permettra de donner libre cours à votre créativité architecturale et de créer un véritable havre de paix. Étaules est une commune qui séduira les amateurs de tranquillité, avec ses commodités à proximité et ses écoles accessibles, idéales pour les familles. Cette charmante ville arbore un environnement arboré, offrant une qualité de vie appréciable. À proximité, vous pourrez explorer les merveilles de la Charente-Maritime, profiter des attraits locaux et bénéficier des nombreux services qui font le charme de cette région. Ne manquez pas cette opportunité d’acquérir un terrain aux multiples atouts, dans un cadre de vie agréable et accessible. Ce terrain offre un potentiel inestimable pour vos projets futurs. N’hésitez pas à envisager cette opportunité d’achat unique. À noter qu’en tant que constructeur, nous ne sommes pas mandatés pour réaliser la vente de ce terrain.
Saint-Palais-sur-Mer
TERRAINSt-Palais-s/mer, dans une petite rue calme, à 15 mn de la plage du Bureau en vélo, nous vous invitons à découvrir ce très joli terrain plat, de 590 m², bénéficiant d’une façade de 18 m et d’une emprise au sol de 193 m² pour y construire votre résidence principale ou secondaire. Les réseaux sont en bordure.Pour plus de renseignement sur cette parcelle, contactez Pierre-Emmanuel HÜE (Bermax Construction Vaux-sur-Mer) au (Numéro supprimé)
Saint-Palais-sur-Mer
TERRAIN ET MAISONSt-Palais-sur-Mer, dans un quartier calme, à 5mn du centre-ville en voiture et 10mn de Royan, nous vous proposons cette maison de plain-pied RE 2020, à construire de 83 m², bénéficiant d’une pièce de vie de 37 m², une chambre avec salle privative, 2 chambres supplémentaire, salle d’eau, wc, cellier, garage de 18 m² avec porte sectionnelle motorisée. Le chauffage est assuré par une pompe à chaleur avec plancher chauffant hydraulique. Cette maison vous intéresse !!! Contactez alors Pierre-Emmanuel HÜE (Bermax Construction Vaux-sur-Mer) au (Numéro supprimé)
L’actualité immobilière à Mornac-sur-Seudre
27/11/2023
02/11/2023
30/10/2023
20/10/2023
16/10/2023
16/10/2023