Maison à construire à Mornac-sur-Seudre (17113)
Images
Description
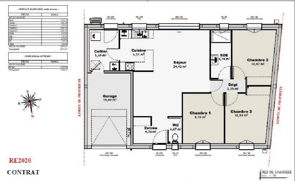
Vous souhaitez habiter une maison de plain-pied, avec une pièce de vie spacieuse avec cuisine légèrement en renforcement, communiquant directement avec le cellier et le garage, mais également avec 3 chambres alors cette maison est faite pour vous.
Cette maison est construite en briques sur vide-sanitaire. Elle est présentée avec les peintures et revêtements de sols dans les chambres faits, faïence toute hauteur en douche et 2 m sur le reste de la salle d'eau, porte de garage sectionnelle motorisée. La production d'eau chaude et de chauffage (plancher chauffant hydraulique) est assurée par une pompe à chaleur air/eau.
Contactez Pierre-Emmanuel HÜE (Bermax Construction Vaux-sur-Mer) au (Numéro supprimé) pour de plus amples renseignements.
Logement susceptibles de vous intéresser
Nous vous proposons de découvrir aussi cette sélection de logements situés à moins de 10km de Mornac-sur-Seudre et qui seraient susceptibles de vous intéresser.
  
 
 Médis
TERRAINMédis, dans un quartier calme et bucolique entouré de champs et forêts, très belle opportunité avec ce terrain borné et viabilisé à la façade de plus de 15ml et exposé sud-ouest.Vous souhaitez faire construire à Médis, contactez Pierre-Emmanuel HÜE (Bermax Construction Vaux-sur-Mer) au (Numéro supprimé)
  
 
 Mornac-sur-Seudre
TERRAINDécouvrez cette nouvelle opportunité située dans l’un des plus beaux villages de France, à seulement 15 minutes du centre-ville de Royan et à 10 minutes des plages de Saint-Palais-sur-Mer. Ce terrain de 343 m², idéalement placé à Mornac-sur-Seudre, est borné et viabilisé, en bordure d’espaces verts. Si vous êtes en quête d’authenticité et de charme, contactez Pierre-Emmanuel HÜE (Bermax Construction à Vaux-sur-Mer) au (Numéro supprimé) pour plus d’informations.
  
 
 Mornac-sur-Seudre
TERRAINVous souhaitez habiter une maison de plain-pied, avec une pièce de vie traversante communiquant avec le cellier et le garage, mais également avec 3 chambres alors cette maison est faite pour vous.Cette maison est construite en briques sur vide-sanitaire. Elle est présentée avec les peintures et revêtements de sols dans les chambres faits, faïence toute hauteur en douche et 2 m sur le reste de la salle d’eau, porte de garage sectionnelle motorisée. La production d’eau chaude et de chauffage (plancher chauffant hydraulique) est assurée par une pompe à chaleur air/eau.Contactez Pierre-Emmanuel HÜE (Bermax Construction Vaux-sur-Mer) au (Numéro supprimé) pour de plus amples renseignements.
  
 
 Médis
TERRAIN ET MAISONA Médis, située dans un quartier très calme, nous proposons cette maison RE 2020 de plain-pied de 60 m² avec une pièce de vie traversante, 2 chambres, salle d’eau avec wc intégré, garage accolé.Prenez contact avec Pierre-Emmanuel HÜE (Bermax Construction Vaux-sur-Mer) au (Numéro supprimé) pour tout renseignement complémentaire.
  
 
 Médis
TERRAIN ET MAISONA Médis, située dans un quartier calme, à 2 pas du centre bourg, nous proposons une maison de plain-pied de 73 m² RE 2020 avec pièce de vie de 29 m², 3 chambres, salle d’eau avec double vasque, wc, garage intégré Pour tout renseignement complémentaire, contactez Pierre-Emmanuel HÜE (Bermax Construction Vaux-sur-Mer) au (Numéro supprimé)
  
 
 Mornac-sur-Seudre
TERRAIN ET MAISONVous souhaitez habiter une maison de plain-pied, avec une pièce de vie spacieuse avec cuisine légèrement en renforcement, communiquant directement avec le cellier et le garage, mais également avec 3 chambres alors cette maison est faite pour vous.Cette maison est construite en briques sur vide-sanitaire. Elle est présentée avec les peintures et revêtements de sols dans les chambres faits, faïence toute hauteur en douche et 2 m sur le reste de la salle d’eau, porte de garage sectionnelle motorisée. La production d’eau chaude et de chauffage (plancher chauffant hydraulique) est assurée par une pompe à chaleur air/eau.Contactez Pierre-Emmanuel HÜE (Bermax Construction Vaux-sur-Mer) au (Numéro supprimé) pour de plus amples renseignements.
  
 
 Mornac-sur-Seudre
TERRAIN ET MAISONVous souhaitez habiter une maison de plain-pied, avec une pièce de vie traversante communiquant avec le cellier et le garage, mais également avec 3 chambres alors cette maison est faite pour vous.Cette maison est construite en briques sur vide-sanitaire. Elle est présentée avec les peintures et revêtements de sols dans les chambres faits, faïence toute hauteur en douche et 2 m sur le reste de la salle d’eau, porte de garage sectionnelle motorisée. La production d’eau chaude et de chauffage (plancher chauffant hydraulique) est assurée par une pompe à chaleur air/eau.Contactez Pierre-Emmanuel HÜE (Bermax Construction Vaux-sur-Mer) au (Numéro supprimé) pour de plus amples renseignements.
  
 
 Saint-Just-Luzac
TERRAIN ET MAISONFort d »une expérience de près de 40 ans, Maisons MCA vous accompagne dans votre projet. Contactez nous pour avoir un accompagnement personnalisé à votre projet.Nous vous proposons votre projet de construction d »une maison de plain pied de 87 m2. Le coin nuit se compose de 3 chambres, une salle d »eau et WC séparés. La pièce de vie offre une triple expositions pour une grande luminosité. Le prix comprend le terrain, les frais de notaire, et la construction. Hors branchements et raccordements. Contact et renseignements: Cédric RÊTEUX (Numéro supprimé)
  
 
 Saint-Just-Luzac
TERRAIN ET MAISONNous vous proposons ce projet de construction d »une maison à étage. Elle vous séduira par la distribution optimale des pièces, sa grande pièce de vie avec cuisine ouverte, et sa jolie terrasse couverte. Le rez de chaussée offre 2 chambres avec une salle d »eau, un WC, un cellier et un garage. A l »étage, une belle suite parentale avec dressing et salle d »eau, et une vue dégagée vous attends. La maison est bien évidement modifiable et personnalisable pour répondre à vos attentes. N »attendez plus pour une visite, contactez Cédric RÊTEUX au (Numéro supprimé) pour une étude sur votre projet de construction. Projet de construction signé les Maisons MCA Maisons de la Côte Atlantique Saintes est là pour vous accompagner dans tous vos projets immobiliers.
L’actualité immobilière à Mornac-sur-Seudre
 
 27/11/2023
 
 
 
 02/11/2023
 
 
 
 30/10/2023
 
 
 
 20/10/2023
 
 
 
 16/10/2023
 
 
 
 16/10/2023