Images
Description
Sur ce terrain, nous vous proposons cette maison neuve : la Blainium, une maison résolument moderne et très singulière.
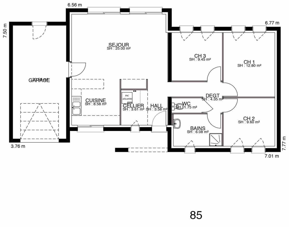
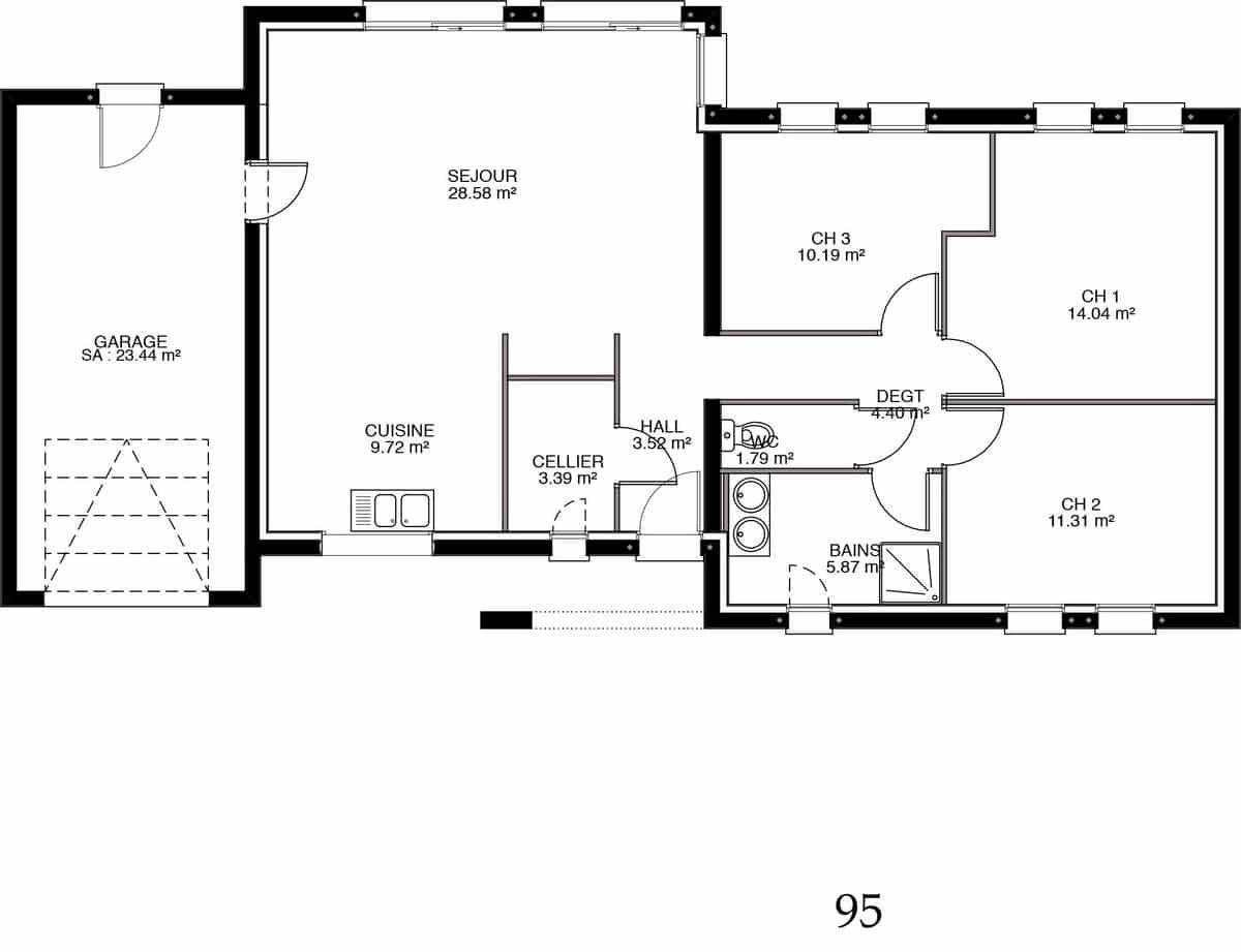
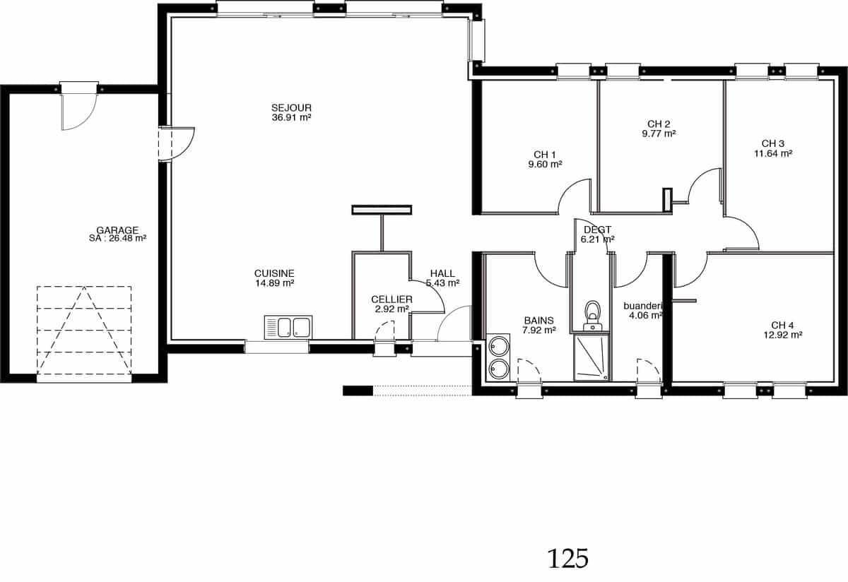
La Blainium, une maison de plain-pied contemporaine, propose une façade très stylée et originale avec ses jeux de toiture et de façades. Par ailleurs, ses grandes fenêtres laissent entrer généreusement la lumière extérieure. Cette demeure est disponible en plusieurs variantes, dans des dimensions allant de 85 à 125 m². En configuration 3 ou 4 chambres, avec ou sans bureau, dressing, salle d'eau privative, notre seule limite c'est votre imagination.
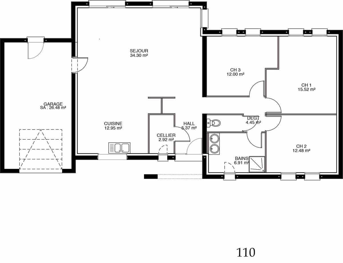
Avec une surface de 110 m², cette maison dispose de 3 chambres et de 4 pièces. En partie jour, vous disposerez d’un hall d'entrée qui donne sur un vaste séjour, une cuisine ouverte qui se prête à accueillir un grand îlot central, et un cellier. Le garage pratique d'accès est accolé. Parmi les caractéristiques principales, vous trouverez un toit plat, un garage accolé, un dressing et une suite parentale.
Les options les plus demandées par nos clients sont également disponibles : menuiseries en aluminium, enduit bi-ton, plancher chauffant et double garage.
Cette maison neuve est basse consommation et conforme à la RE2020, vous garantissant ainsi une habitation éco-responsable et économique.
Maisons Privat, constructeur centenaire avec les meilleurs avis clients de la région, vous permet de vivre votre rêve dans une maison unique. Posséder une maison neuve exceptionnelle n'a jamais été aussi accessible.
La Blainium permet de vivre son rêve dans une maison unique. Cette habitation vous permettra de réaliser votre rêve : posséder une maison neuve exceptionnelle.
Logement susceptibles de vous intéresser
Nous vous proposons de découvrir aussi cette sélection de logements situés à moins de 10km de Nieul-sur-Mer et qui seraient susceptibles de vous intéresser.
Dompierre-sur-Mer
TERRAIN ET MAISONDompierre-sur-Mer : maison neuve 3 chambres garage de 110 m² à vendre !PROCHE DE LA ROCHELLEEn vente à quelques kilomètres de La Rochelle, découvrez cette maison de 4 pièces de plain-pied de 110 m² à Dompierre-sur-Mer (17139). Elle compte trois chambres, deux salles de bains, une cuisine ouverte sur séjour, sur un terrain de 413 m².Elle est à vendre pour la somme de 446 500 €.N’hésitez pas à prendre contact avec notre agence (Yann TRUFFY : (Numéro supprimé)) pour obtenir de plus amples renseignements sur la propriété.
Lagord
TERRAINSuperbe terrain à bâtir individuel entièrement viabilisé – Situation exceptionnelle – A 10 mn de l’Ile de Ré –
Lagord
TERRAIN ET MAISONSur ce terrain, nous vous proposons cette maison neuve : la Rochelaise, une villa de plain-pied optimisée. Cette demeure de 90 m² est idéale pour toute la famille avec ses 4 chambres et ses 4 pièces. La distribution ingénieuse de ses pièces assure une utilisation optimale de chaque mètre carré, sans aucune perte de surface.Le modèle Rochelaise est une belle maison de plain-pied tout en longueur, dotée d’un garage intégré et d’un auvent pratique et élégant. Personnalisable à souhait, vous pouvez accentuer son côté traditionnel avec des volets battants de couleur ou opter pour un look plus moderne en jouant avec des enduits de couleurs différentes et des menuiseries en aluminium. Cette maison dispose d’un grand séjour-salon avec cuisine ouverte, parfait pour les moments en famille ou entre amis. Vous avez la possibilité de choisir parmi plusieurs plans totalement adaptables à vos envies, y compris une version pour personnes à mobilité réduite.Les options les plus demandées par nos clients sont disponibles : toiture à 2 pans ou 4 pans, menuiseries en aluminium, plancher chauffant et domotique. De plus, cette maison neuve est basse consommation et conforme à la réglementation environnementale RE2020, garantissant ainsi des économies d’énergie et un confort optimal.Construite par Maisons Privat, constructeur centenaire avec les meilleurs avis clients de la région, la Rochelaise est une opportunité unique pour investir dans un patrimoine immobilier de qualité. Ne manquez pas cette chance de devenir propriétaire d’une maison alliant tradition et modernité, parfaitement adaptée à vos besoins et à ceux de votre famille.
L'Houmeau
TERRAINDu 15 septembre au 14 novembre, bénéficiez d’une remise de 1 500€ sur vos frais de notaire pour toute réservation d’un terrain à bâtir.*Accueil téléphonique : du lundi au samedi, de 8H00 à 19H00Située sur la façade atlantique et à seulement 5 km de La rochelle et de l’ile de Ré. La commune de L’Houmeau offre une douceur de vivre sur le front de mer, une synergie entre l’attractivité de La Rochelle, l’activité marine et la richesse du patrimoine régional.Profitez du dynamisme du bourg de L’HOUMEAU et de son esprit village. Promenez-vous dans ses étroites ruelles. Admirez cette dernière sur les plages surveillées, de galets dans l’Anse de Pampin.Les 30 associations pluridisciplinaires stimulent le quotidien de citoyens : sport, musique, art… Vous trouverez amplement une activité pour satisfaire votre curiosité.La commune sait jouer de sa proximité avec La rochelle, aisément joignable grâce au réseau de transport Rochelais Yélo. Bénéficiez de ses bus, ses vélos ou de ses voitures électriques.*voir c Les informations sur l’état des risques auxquels ce bien est exposé sont disponibles sur le site Géorisques : www.georisques.gouv.fr
Dompierre-sur-Mer
TERRAINTerrain de 413 m² à vendre à Dompierre-sur-MerPROCHE DE LA ROCHELLEÀ Dompierre-sur-Mer (17139) en vente à deux pas de La Rochelle, venez découvrir ce terrain de 413 m². Cinq établissements scolaires sont implantés dans la commune. Son prix de vente est de 171 500 €. Contactez Yann TRUFFY (tél : (Numéro supprimé)) pour plus de renseignements sur le terrain, sur les modalités de vente et sur les démarches à suivre.
Dompierre-sur-Mer
TERRAIN ET MAISONVENTE d’une maison neuve 3 chambres de 95 m² à Dompierre-sur-MerPROCHE DE LA ROCHELLE À vendre : à deux pas de La Rochelle, à Dompierre-sur-Mer (17139), votre agence Maisons Acco La Jarne est ravie de vous présenter cette maison de 4 pièces de plain-pied de 95 m².Son intérieur dispose de trois chambres, d’une salle de bains, une cuisine ouverte sur un bel espace séjour traversant. L’ensemble sur un terrain de 413m².De la maternelle au collège, commerces et pharmacie, Dompierre sur Mer devient une ville très dynamique et attrayante.Son prix de vente est de 379 250 €.N’hésitez pas à prendre contact avec Yann TRUFFY ((Numéro supprimé)) pour plus de renseignements sur cette propriété et sur les démarches à suivre. Maisons Acco La Jarne est là pour vous accompagner dans tous vos projets immobiliers.
Dompierre-sur-Mer
TERRAIN ET MAISONLa ligne EVOLUTION vous offre une maison plain-pied dès 93 m² habitables, pensée pour s’adapter à votre style de vie. Profitez d’une pièce de vie traversante à partir de 35m², baignée de lumière grâce à une grande baie vitrée, avec cuisine ouverte et cellier isolé pour plus de praticité. Ce modèle se compose de 4 chambres dont une suite parentale offrant confort et intimité. À l’extérieur, choisissez un garage, un préau ou un carport attenant d’une surface de 15m², parfait pour stationner ou profiter des beaux jours.Informations du terrain : Terrain rare et idéalement situé dans la commune de Dompierre sur Mer. A seulement 10 mins de voiture de La Rochelle, ce terrain offre une proximité avec toutes les commodités ainsi que tout transports et école.Informations : Mathieu Blay au (Numéro supprimé).Prix incluant assurance dommages-ouvrage, VRD compris, terrain viabilisé, assainissement compris, frais de notaire non compris, taxes non comprises, frais divers non compris. Terrain sous réserve de disponibilité de notre partenaire foncier. Images non contractuelles.Cette annonce a été créée et diffusée avec le logiciel VITAHOME.
Dompierre-sur-Mer
TERRAIN ET MAISONLa ligne EVOLUTION vous offre une maison plain-pied dès 93 m² habitables, pensée pour s’adapter à votre style de vie. Profitez d’une pièce de vie traversante à partir de 35m², baignée de lumière grâce à une grande baie vitrée, avec cuisine ouverte et cellier isolé pour plus de praticité. Ce modèle se compose de 4 chambres dont une suite parentale offrant confort et intimité. À l’extérieur, choisissez un garage, un préau ou un carport attenant d’une surface de 15m², parfait pour stationner ou profiter des beaux jours.Informations : Mathieu Dagusé au (Numéro supprimé).Prix incluant assurance dommages-ouvrage, VRD compris, terrain viabilisé, assainissement compris, frais de notaire non compris, taxes non comprises, frais divers non compris. Terrain sous réserve de disponibilité de notre partenaire foncier. Images non contractuelles.Cette annonce a été créée et diffusée avec le logiciel VITAHOME.
Dompierre-sur-Mer
TERRAIN ET MAISONSpacieuse et lumineuse ! Cette maison en L à partir de 89 m2 habitable, vous offre une généreuse pièce de vie de 40 m2 avec cuisine ouverte sur salon et séjour, cellier isolé. Grande baie coulissante située sur l’arrière. Vous disposez de 3 chambres, dont une équipée avec un dressing ou une salle d’eau équipée avec douche et meuble vasque. Vous disposez également d’une salle de bain équipée avec meuble vasque, douche et/ou baignoire, sèche serviette. Garage attenant de 16 m2. Orientation cuisine salon séjour arrière. Carrelage grand format compris dans toute les pièces (hors chambres) et faïence au choix dans une large gamme disponible.Informations du terrain : Terrain rare et idéalement situé dans la commune de Dompierre sur Mer. A seulement 10 mins de voiture de La Rochelle, ce terrain offre une proximité avec toutes les commodités ainsi que tout transports et école.Informations : Mathieu Blay au (Numéro supprimé).Prix incluant assurance dommages-ouvrage, VRD compris, terrain viabilisé, assainissement compris, frais de notaire non compris, taxes non comprises, frais divers non compris. Terrain sous réserve de disponibilité de notre partenaire foncier. Images non contractuelles.Cette annonce a été créée et diffusée avec le logiciel VITAHOME.
L’actualité immobilière à Nieul-sur-Mer
27/11/2023
02/11/2023
30/10/2023
20/10/2023
16/10/2023
16/10/2023