Maison à construire à Ozillac (17500)
Images
Description
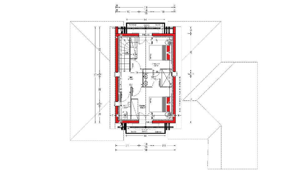
VENTE : maison de 4 pièces
Cette maison de 4 pièces de 115 m². Conçue avec étage partiel, elle offre trois chambres, une cuisine et deux salles de bains.
Terrain de 2200 m² en vente
IDÉALEMENT SITUÉ
Découvrez ce terrain de 2200 m². Ce terrain, exposé plein ouest, donne sur un champ. Il se trouve dans un secteur prisé. Des écoles du primaire et du secondaire sont implantées à moins de 10 minutes en voiture. Côté transports, on trouve la gare Jonzac à proximité ainsi que toutes les commodités de cette commune.
Ce terrain est proposé à l'achat pour 40 000 €. Contactez notre agence (BOUYER Dylan : (Numéro supprimé)) pour obtenir de plus amples informations sur le terrain. Alpha Constructions Jonzac est là pour vous accompagner dans toutes vos démarches.
Logement susceptibles de vous intéresser
Nous vous proposons de découvrir aussi cette sélection de logements situés à moins de 10km de Ozillac et qui seraient susceptibles de vous intéresser.
Saint-Simon-de-Bordes
TERRAINÀ SAISIR ! Au cœur du village paisible de Saint-Simon-de-Bordes (17500), découvrez 5 parcelles constructibles restantes d’une superficie de 623 à 681 m², prêtes à accueillir votre projet de vie ou d’investissement.Les points forts :Situation idéale : dans le village, proche des services, tout en conservant le calme de la campagne.Ecoles primaires et ramassage scolaireSuperficie généreuse : des terrains entre 623 m² et 681 m² — de quoi bâtir une belle maison avec jardin.Village en plein essor et en devenir : petit-déjeuner au bord du plan d’eau, balade en soirée, vie locale active.Accès pratique : zone rurale tranquille mais reliée aux villes alentours, à deux pas de Jonzac.Nature & qualité de vie : cadre verdoyant, altitude douce, climat tempéré — l’endroit parfait pour concrétiser un rêve de maison ou une résidence secondaire.Opportunité rare : Les terrains situés en plein cœur du village se font de plus en plus rares : ici, vous avez la tranquillité, la géographie, le charme et la proximité des commodités.Contactez-moi dès maintenant pour obtenir le plan de situation, le règlement et convenir d’une visite sur place. Faites vite — ces parcelles ne resteront pas disponibles longtemps !Les informations sur les risques auxquels ce bien est exposé sont disponibles sur le site Géorisques : www.georisques.gouv.frPrix de vente honoraires d’agence inclus : 31 350 €Prix de vente hors honoraires d’agence : 28 500 €Honoraires : 10 % TTC de la valeur du bien hors honorairesContactez votre consultant megAgence : Céline COQUIN, Tél. : (Numéro supprimé), E-mail : (Email supprimé) – EI – Agent commercial immatriculé au RSAC de SAINTES sous le numéro 934 023 144
Jonzac
TERRAIN ET MAISONMAISON 3 CHAMBRES ET GARAGEJONZAC. Sur un terrain de 348 m², ALPHA CONSTRUCTIONS vous propose de réaliser votre futur projet de construction d’une surface de 80 m², composé de 3 chambres et garage.Proche du centre-ville, des commerces, de la gare.Dans la partie « jour » d’environ 45 m² vous disposerez d’une cuisine ouverte, d’un salon / séjour avec grande baie vitrée et porte fenêtre, ainsi que d’un cellier communiquant avec la cuisine et le garage. La partie « nuit » se compose de 3 belles chambres avec placard et une salle de bain avec douche italienne et meuble vasque. WC indépendant. Projet modifiable, adaptable à vos envies et besoins.Contactez votre chargé de projet, Mr VINCENT Christophe, au (Numéro supprimé).
Jonzac
TERRAIN ET MAISONMAISON 3 CHAMBRES ET GARAGEJONZAC. Sur un terrain de 348 m², ALPHA CONSTRUCTIONS vous propose de réaliser votre futur projet de construction d’une surface de 90 m², composé de 3 chambres et garage. Dans la partie « jour » d’environ 45 m² vous disposerez d’une cuisine ouverte, d’un salon / séjour avec grande baie vitrée et porte fenêtre, ainsi que d’un cellier communiquant avec la cuisine et le garage. La partie « nuit » se compose de 3 belles chambres avec placard et une salle de bain avec douche italienne et meuble vasque. WC indépendant. Projet modifiable, adaptable à vos envies et besoins.Contactez votre chargé de projet, Mr VINCENT Christophe, au (Numéro supprimé).
Jonzac
TERRAIN ET MAISONMAISON 2 CHAMBRES ET GARAGEJONZAC. Sur un terrain de 348 m², ALPHA CONSTRUCTIONS vous propose de réaliser votre futur projet de construction d’une surface de 85 m², composé de 2 belles chambres et un garage.Proche du centre-ville, gare et commerce.La partie « jour » spacieuse et lumineuse dispose d’une cuisine ouverte, d’un salon / séjour avec grande baie vitrée et porte fenêtre, ainsi que d’un cellier communiquant avec la cuisine et le garage. La partie « nuit » se compose de 2 chambres avec placard et une salle de bain avec douche italienne et meuble vasque. WC indépendant. Projet modifiable, adaptable à vos envies et besoins.Contactez votre chargé de projet, Mr VINCENT Christophe, au (Numéro supprimé).
Saint-Médard
TERRAINOffrez-vous l’opportunité de construire la maison sur ce terrain de 299 m², idéalement situé à Saint-Médard-d’Aunis. Ce terrain, entièrement viabilisé, est lumineux et se trouve dans un environnement paisible, promettant un cadre de vie agréable et serein. . Idéalement situé ce terrain bénéficie d’une proximité avec des commodités essentielles. Les arrêts de bus Yellow à proximité facilitent les déplacements, et vous pourrez facilement accéder aux nombreux services offerts par la CDA de La Rochelle. À noter qu’en tant que constructeur, nous ne sommes pas mandatés pour réaliser la vente de ce terrain.
Saint-Médard
TERRAIN ET MAISONSur ce terrain, nous vous proposons cette superbe maison de plain-pied au plan optimisé, pensée pour offrir confort et convivialité à toute la famille. Passé l’entrée, vous serez immédiatement séduit par une vaste pièce de vie baignée de lumière, où se côtoient salon, salle à manger et cuisine ouverte, idéale pour partager des moments chaleureux au quotidien.Côté nuit, trois chambres spacieuses et lumineuses vous attendent, chacune permettant d’installer rangements et bureau selon vos envies. Une salle de bain moderne, un WC complètent cet agencement astucieux, facilitant l’organisation de la vie de famille.Atout pratique : Un garage attenant de près de 21 m² permet de stationner votre véhicule en toute sécurité, tout en laissant de la place pour un atelier ou du rangement supplémentaire.Moderne, fonctionnelle et pensée pour un confort optimal, cette maison saura répondre à toutes vos attentes. N’attendez plus pour venir la découvrir et laissez-vous séduire par son agencement harmonieux !
Saint-Médard
TERRAINNous avons le plaisir de vous proposer à la vente un magnifique terrain viabilisé de 451 m², situé dans un charmant lotissement à Saint-Médard-d’Aunis, en Charente-Maritime. Ce terrain représente une occasion idéale pour concrétiser votre projet de construction de maison dans un cadre paisible et agréable. Sa surface généreuse offre de multiples possibilités d’aménagement pour créer un véritable cocon familial, où il fera bon vivre. Vous serez à proximité de nombreux commerces, ainsi que d’un arrêt de bus qui facilitera vos déplacements sur la CDA de la Rochelle. À noter qu’en tant que constructeur, nous ne sommes pas mandatés pour réaliser la vente de ce terrain.
Saint-Médard
TERRAIN ET MAISONSur ce terrain, nous vous proposons cette maison neuve : la Blainium, une maison résolument moderne et très singulière. La Blainium, une maison de plain-pied contemporaine, propose une façade très stylée et originale avec ses jeux de toiture et de façades. Par ailleurs, ses grandes fenêtres laissent entrer généreusement la lumière extérieure. Cette demeure est disponible en plusieurs variantes, dans des dimensions allant de 85 à 125 m². En configuration 3 ou 4 chambres, avec ou sans bureau, dressing, salle d’eau privative, notre seule limite c’est votre imagination.Avec une surface de 110 m², cette maison dispose de 3 chambres et de 4 pièces. En partie jour, vous disposerez d’un hall d’entrée qui donne sur un vaste séjour, une cuisine ouverte qui se prête à accueillir un grand îlot central, et un cellier. Le garage pratique d’accès est accolé. Parmi les caractéristiques principales, vous trouverez un toit plat, un garage accolé, un dressing et une suite parentale.Les options les plus demandées par nos clients sont également disponibles : menuiseries en aluminium, enduit bi-ton, plancher chauffant et double garage. Cette maison neuve est basse consommation et conforme à la RE2020, vous garantissant ainsi une habitation éco-responsable et économique.Maisons Privat, constructeur centenaire avec les meilleurs avis clients de la région, vous permet de vivre votre rêve dans une maison unique. Posséder une maison neuve exceptionnelle n’a jamais été aussi accessible. La Blainium permet de vivre son rêve dans une maison unique. Cette habitation vous permettra de réaliser votre rêve : posséder une maison neuve exceptionnelle.
Champagnac
TERRAINConfigurez votre projet de construction sur ce terrainConstruisez avec nous votre maison de plain-pied, aux normes RE 2020, sur un magnifique terrain.Votre maison disposera de belles chambres avec placards, d’une salle de bain avec douche ou baignoire, sèche serviette, double vasque ainsi qu’un WC indépendant. Une grande pièce de vie avec cuisine ouverte donnant sur un séjour très lumineux. Cette maison fonctionnelle disposera également d’une buanderie donnant sur la cuisine. La maison est carrelée et les chambres peuvent recevoir un parquet. La maison est équipée de volets roulants électriques. Pour plus de renseignement, merci de contacter notre agence (LAETITIA HATAY (Numéro supprimé))
L’actualité immobilière à Ozillac
27/11/2023
02/11/2023
30/10/2023
20/10/2023
16/10/2023
16/10/2023