Images
Description
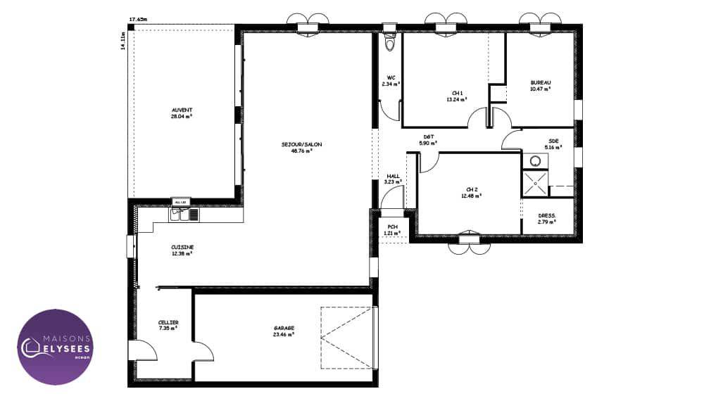
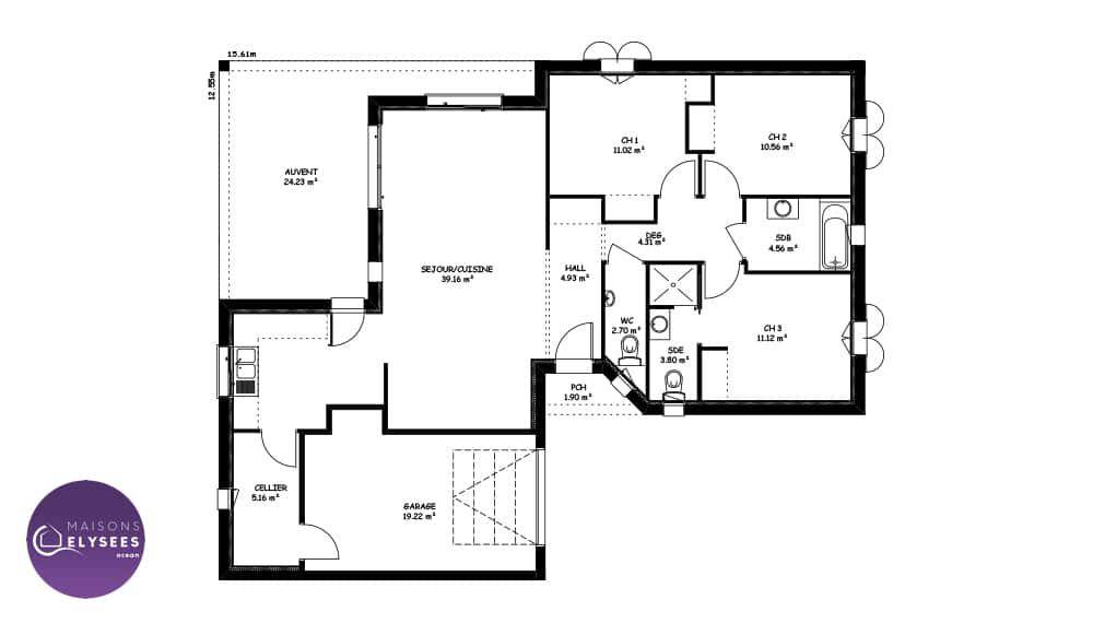
Sur ce terrain, nous vous proposons cette maison neuve, la Noria, conçue par Elysees Ocean, le constructeur aux meilleurs avis clients de la profession. Avec une surface de 103 m², cette maison offre un cadre de vie idéal pour toute la famille.
La Noria se distingue par ses grandes pièces lumineuses et ses baies vitrées orientées au Sud, permettant de profiter pleinement de la lumière naturelle. La maison dispose de 3 chambres spacieuses et de 4 pièces au total, offrant un espace de vie confortable et fonctionnel.
Les caractéristiques principales de cette maison incluent un auvent élégant, un garage intégré pour plus de praticité, et la possibilité de choisir entre une toiture à 2 pans ou à 4 pans, selon vos préférences. De plus, la maison est conçue pour s'adapter parfaitement aux terrains en profondeur, avec une entrée par le Nord, et elle est également très belle en version toiture terrasse.
Les options les plus demandées par nos clients, telles que la baie à galandage et la suite parentale, sont disponibles pour personnaliser votre maison selon vos besoins et vos envies.
La Noria est une maison basse consommation, conforme à la réglementation environnementale RE2020, garantissant des performances énergétiques optimales et un confort de vie tout au long de l'année.
Deux parties bien distinctes pour le jardin, l’espace accueil ouvert et l’espace de vie privatif, assurent le bien-être de ses habitants. Du style, des auvents, des porches, cette construction n'en finit pas de plaire.
Ne manquez pas cette opportunité unique de devenir propriétaire d'une maison neuve, moderne et éco-responsable. Contactez-nous dès aujourd'hui pour plus d'informations et pour planifier une visite.
Logement susceptibles de vous intéresser
Nous vous proposons de découvrir aussi cette sélection de logements situés à moins de 10km de Pont-l'Abbé-d'Arnoult et qui seraient susceptibles de vous intéresser.
Pont-l'Abbé-d'Arnoult
TERRAINTerrains viabilisés de 300m² à 711 m², libres de constructeur sur la commune de Pont l’Abbé d’Arnoult, en Charente-Maritime.Découvrez notre nouvelle opération de 34 lots « Chemin de Bessec » située chemin de Bessin.Idéalement située à 19 km (22min) du centre de Rochefort, à 23 km du centre de Saintes (23min) et 29km du centre de Royan (34min).La commune bénéficie des commerces de proximité, d’un Carrefour Market et surtout d’un ensemble scolaire la Salle de Saint-Louis qui accueille les élèves de la maternelle au Lycée.Retrouvez l’ensemble de nos lots disponibles sur notre site internet.
Pont-l'Abbé-d'Arnoult
TERRAINTerrains viabilisés de 300m² à 711 m², libres de constructeur sur la commune de Pont l’Abbé d’Arnoult, en Charente-Maritime.Découvrez notre nouvelle opération de 34 lots « Chemin de Bessec » située chemin de Bessin.Idéalement située à 19 km (22min) du centre de Rochefort, à 23 km du centre de Saintes (23min) et 29km du centre de Royan (34min).La commune bénéficie des commerces de proximité, d’un Carrefour Market et surtout d’un ensemble scolaire la Salle de Saint-Louis qui accueille les élèves de la maternelle au Lycée.Retrouvez l’ensemble de nos lots disponibles sur notre site internet.
Pont-l'Abbé-d'Arnoult
TERRAIN ET MAISONFort d’une expérience de près de 40 ans, Maisons MCA vous accompagne dans votre projet.Contactez nous pour avoir un accompagnement personnalisé à votre projet.Projet de construction d’une maison à étage de 79 m², comprenant une pièce à vivre lumineuse, dédiée à la cuisine et au séjour, 3 chambres, une salle d’eau équipée, un WC, et un cellier complète ce bien. Outre ses nombreuses possibilités de personnalisations, cette maison saura aussi vous séduire par la qualité de ses menuiseries et de ses équipements, notamment ses volets roulants motorisés. Cette maison est conforme à la Réglementation Environnementale 2020 (RE 2020).Classe énergétique : AGaranties et assurances obligatoires incluses (voir détails en agence). Prix indicatif hors peintures et hors options. Dans ce même secteur nous disposons de nombreux terrains, n’hésitez pas à contacter notre équipe pour un devis gratuit, rapide et sans engagement, du lundi au samedi de 9h00 à 19h00 sans interruption.Contact et renseignements :Cédric RÊTEUX (Numéro supprimé)Maisons MCA Saintes
Pont-l'Abbé-d'Arnoult
TERRAIN ET MAISONDès votre entrée dans la maison, vous serez séduit par un grand placard pratique, vous offrant un espace de rangement généreux pour vos effets personnels. Une pièce à vivre lumineuse et conviviale s’ouvre à vous, avec une cuisine américaine moderne et fonctionnelle. Vous pourrez ainsi préparer de délicieux repas tout en restant en contact avec votre famille ou vos invités. De plus, un cellier attenant à la cuisine vous permettra de stocker vos provisions et de garder votre espace de vie bien organisé.Pavot comprend également un petit bureau de 4 m2, idéal pour ceux qui ont besoin d’un espace de travail à domicile ou d’un coin tranquille pour leurs hobbies. Que vous soyez un professionnel à la recherche d’un espace inspirant ou que vous souhaitiez simplement profiter d’un coin tranquille pour vous détendre, ce bureau sera parfaitement adapté à vos besoins.Chez Maisons MCA, nous comprenons l’importance de créer des maisons qui répondent aux besoins et aux attentes de nos clients. Le modèle Pavot est le fruit d’une conception soignée, alliant praticité, confort et esthétisme. Avec ses caractéristiques uniques et son agencement fonctionnel, cette maison est une véritable invitation au confort.Renseignements et rdv: Cédric RÊTEUX (Numéro supprimé)Construction Les Maisons MCA
Pont-l'Abbé-d'Arnoult
TERRAIN ET MAISONDe plain-pied ce modèle de maison contemporaine a été conçu par notre bureau d’études en 4 versions.4 plans pour cette maison contemporaine de plain-pied pour vous permettre de trouver la configuration qui correspond le mieux à vos envies. Changez les couleurs des jeux d’enduits selon vos préférences ou les impératifs du PLU, choisissez un plan de maison avec ou sans garage, préférez 3 à 4 chambres ou 3 chambres et un bureau ou 3 chambres et une plus grande pièce de vie …Une maison contemporaine et modulableL’avantage de la maison FLORIDE c’est définitivement sa modularité.Ce modèle résolument contemporain qui se décline en plusieurs versions, de 95 à 132 m², vous permet d’envisager plusieurs configurations selon votre mode de vie :une maison de 95 m² avec 3 chambres situées en retrait du salon-séjour et desservies par un dégagement tout en longueur,une maison de 105 m² avec 3 chambres et en complément un bureau ultra fonctionnel,une maison de 115 m² où le salon forme un L avec une cuisine semi-ouverte et 3 spacieuses chambres dont l’agencement optimise le confort acoustique de chacune,une maison de 132 m² comprenant un salon en L doté d’une triple exposition, 4 chambres, un bureau et un garage.Contact et renseignements: Cédric RÊTEUX (Numéro supprimé)
Pont-l'Abbé-d'Arnoult
TERRAIN🌿 Terrain constructible à Pont-l’Abbé-d’Arnoult – 404 m² – 54 420 €🏡 Cadre verdoyant et calme – Idéal pour votre projet immobilier !À Pont-l’Abbé-d’Arnoult, découvrez ce terrain de 404 m², situé dans un environnement paisible et verdoyant. Parfait pour construire votre maison et profiter d’un cadre de vie naturel, tout en restant proche des commodités et des axes routiers.Atouts de Pont-l’Abbé-d’Arnoult :🛒 Commerces et services : Proximité des commerces locaux, supermarchés et artisans.🎓 Écoles et crèches : Établissements scolaires accessibles dans la commune.🏥 Santé : Médecins, pharmacies et services médicaux à proximité.🌳 Loisirs : Parcs, sentiers de randonnée, et activités de plein air.🚗 Transports : Accès facile aux routes principales (D739, D137) pour rejoindre Rochefort ou Saintes.💰 Prix : 54 420 € – Disponible immédiatement.📞 Contactez-moi pour une visite et concrétisez votre projet dans un cadre naturel et apaisant !Cédric RÊTEUX Maisons MCA (Numéro supprimé)
Balanzac
TERRAIN ET MAISONMaison F4 (70 m²) à vendre à BalanzacIDÉALEMENT SITUÉE – MAISON 4 PIÈCES NEUVEÀ 23 km de la côte atlantique et à quelques kilomètres de Saintes, laissez vous charmer par cette maison de 4 pièces de plain-pied de 70 m² à vendre, idéalement située dans Balanzac (17600). Son intérieur comporte trois chambres, une cuisine et deux salles de bains.Le terrain du bien s’étend sur 630 m².Cette maison est neuve.La maison se situe dans un secteur convoité. L’École Maternelle Josiane Baudet-Simmoneau Balanzac se trouve à moins de 10 minutes à pied. On trouve un accès à la nationale N150 à 6 km. Il y a une boulangerie à quelques minutes.Elle est proposée à l’achat pour 175 500 €.Contactez Patrick OLIVRÉ ((Numéro supprimé)) pour tout renseignement sur la propriété ou sur les modalités de vente.
Balanzac
TERRAINVENTE : terrain de 630 m² à BalanzacIDÉALEMENT SITUÉ – VUE DÉGAGÉEEn vente à 23 km de la côte atlantique et à 16 km de Saintes à Balanzac (17600), grand terrain. Il profite d’une vue dégagée. Ce terrain se trouve dans un quartier convoité. Il y a l’École Maternelle Josiane Baudet-Simmoneau Balanzac à moins de 10 minutes à pied. La nationale N150 est accessible à 6 km. On trouve une boulangerie à quelques minutes de la propriété.Son prix de vente est de 37 800 €. N’hésitez pas à prendre contact avec notre agence (Patrick OLIVRÉ : (Numéro supprimé)) pour plus d’informations sur le terrain, sur les modalités de vente ou sur les démarches à suivre. Maisons de la Côte Atlantique Saintes est là pour vous accompagner dans tous vos projets immobiliers.
Corme-Royal
TERRAIN ET MAISONNous vous proposons ce projet de construction d »une maison à étage. Elle vous séduira par la distribution optimale des pièces, sa grande pièce de vie avec cuisine ouverte, et sa jolie terrasse couverte. Le rez de chaussée offre 2 chambres avec une salle d »eau, un WC, un cellier et un garage. A l »étage, une belle suite parentale avec dressing et salle d »eau, et une vue dégagée vous attends. La maison est bien évidement modifiable et personnalisable pour répondre à vos attentes. N »attendez plus pour une visite, contactez Cédric RÊTEUX au (Numéro supprimé) pour une étude sur votre projet de construction. Projet de construction signé les Maisons MCA Maisons de la Côte Atlantique Saintes est là pour vous accompagner dans tous vos projets immobiliers.
L’actualité immobilière à Pont-l'Abbé-d'Arnoult
27/11/2023
02/11/2023
30/10/2023
20/10/2023
16/10/2023
16/10/2023