Images
Description
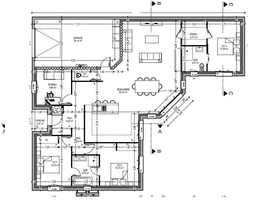
Sur ce terrain, nous vous proposons cette maison neuve, la Forges, construite par Elysees Ocean, le constructeur avec les meilleurs avis clients de la profession. Cette belle et vaste maison familiale offre une superficie habitable de 130 m². De plain-pied et de style traditionnel, elle s'intègre parfaitement dans l'architecture locale tout en offrant un design contemporain.
Son plan est extrêmement bien pensé et offre un grand espace de vie lumineux de 58 m² avec une cuisine ouverte donnant sur l'extérieur, orientée plein sud. La maison dispose de quatre chambres, dont une suite parentale de 20 m² comprenant une salle d'eau et un dressing. Cette suite parentale s'ouvre sur le jardin grâce à une baie vitrée.
Un autre espace nuit, pensé pour des enfants, est composé de deux chambres de plus de 12 m², dotées de grands placards et d'une salle de bain privative avec douche et double vasque. Un très pratique bureau de 9.50 m², pouvant servir de chambre d'ami, se trouve également à proximité du grand séjour.
Un grand garage intégré de 28 m² complète l'ensemble.
Cette maison neuve est basse consommation et conforme à la RE2020, garantissant ainsi une performance énergétique optimale. Les menuiseries en aluminium, très demandées par les clients, ajoutent une touche de modernité et de durabilité à cette construction.
Ne manquez pas cette opportunité unique de devenir propriétaire d'une maison alliant confort, modernité et respect de l'environnement.
Logement susceptibles de vous intéresser
Nous vous proposons de découvrir aussi cette sélection de logements situés à moins de 10km de Saint-Agnant et qui seraient susceptibles de vous intéresser.
Pont-l'Abbé-d'Arnoult
TERRAINTerrains viabilisés de 300m² à 711 m², libres de constructeur sur la commune de Pont l’Abbé d’Arnoult, en Charente-Maritime.Découvrez notre nouvelle opération de 34 lots « Chemin de Bessec » située chemin de Bessin.Idéalement située à 19 km (22min) du centre de Rochefort, à 23 km du centre de Saintes (23min) et 29km du centre de Royan (34min).La commune bénéficie des commerces de proximité, d’un Carrefour Market et surtout d’un ensemble scolaire la Salle de Saint-Louis qui accueille les élèves de la maternelle au Lycée.Retrouvez l’ensemble de nos lots disponibles sur notre site internet.
Pont-l'Abbé-d'Arnoult
TERRAINTerrains viabilisés de 300m² à 711 m², libres de constructeur sur la commune de Pont l’Abbé d’Arnoult, en Charente-Maritime.Découvrez notre nouvelle opération de 34 lots « Chemin de Bessec » située chemin de Bessin.Idéalement située à 19 km (22min) du centre de Rochefort, à 23 km du centre de Saintes (23min) et 29km du centre de Royan (34min).La commune bénéficie des commerces de proximité, d’un Carrefour Market et surtout d’un ensemble scolaire la Salle de Saint-Louis qui accueille les élèves de la maternelle au Lycée.Retrouvez l’ensemble de nos lots disponibles sur notre site internet.
Saint-Froult
TERRAIN ET MAISONSur ce terrain, nous vous proposons cette maison neuve, la Dompierre, conçue par le constructeur Elysees Ocean, reconnu pour ses excellents avis clients. Cette maison de 120 m², basse consommation et conforme à la RE2020, est idéale pour les familles à la recherche de confort et de modernité.La Dompierre se distingue par son architecture contemporaine de standing, articulée autour d’un mur rideau de plus de 30 m² orienté plein sud. Ce mur rideau illumine le séjour au rez-de-chaussée et une grande mezzanine-bureau à l’étage, offrant un volume étendu et harmonieux à la pièce à vivre. Vous aurez l’impression que l’intérieur et l’extérieur de la maison ne font qu’un.Le confort d’été est assuré par un brise-soleil vertical sur la partie haute et horizontal pour les vantaux coulissants du rez-de-chaussée, ainsi que des vitrages auto-nettoyants et performants sur le plan thermique. Une petite terrasse privative se love à l’arrière de la maison entre la cuisine et la salle de bain parentale, offrant un espace protégé pour les déjeuners et après-midis d’été.La maison dispose de 4 chambres, dont une suite parentale, et de 4 pièces principales. L’escalier luxueux de la collection Plénitude ajoute une touche d’élégance à l’intérieur. Un garage accolé complète les prestations de cette maison.Les options les plus demandées par nos clients, telles que le bardage Vibrato et les menuiseries en aluminium, sont également disponibles pour personnaliser votre future maison.Ne manquez pas cette opportunité unique de devenir propriétaire d’une maison neuve, moderne et économe en énergie, conçue par Elysees Ocean, le constructeur de confiance.
Saint-Froult
TERRAINDécouvrez ce magnifique terrain à vendre de 1064 m², situé à Saint-Froult, un lieu enchanteur en Charente-Maritime. Idéal pour une construction de maison, ce terrain non viabilisé offre un cadre champêtre sans vis-à-vis, avec un ensoleillement optimal. Vous serez séduit par l’atmosphère calme et arborée, qui fait de ce lieu un véritable havre de paix, parfait pour concrétiser votre projet de vie. Saint-Froult, niché au cœur de la région Nouvelle-Aquitaine, propose un style de vie agréable avec des commodités à proximité. La ville est connue pour sa qualité de vie exceptionnelle, ses paysages pittoresques et sa proximité avec la mer. Profitez des attractions locales, des marchés pittoresques et des activités en plein air, le tout à quelques pas de votre futur chez-vous. Vous serez également séduits par la richesse culturelle de la région, qui promet un cadre de vie épanouissant. Ne manquez pas cette occasion unique d’acquérir un terrain au potentiel indéniable. Contactez-nous pour envisager ensemble votre futur projet.
Pont-l'Abbé-d'Arnoult
TERRAIN ET MAISONFort d’une expérience de près de 40 ans, Maisons MCA vous accompagne dans votre projet.Contactez nous pour avoir un accompagnement personnalisé à votre projet.Projet de construction d’une maison à étage de 79 m², comprenant une pièce à vivre lumineuse, dédiée à la cuisine et au séjour, 3 chambres, une salle d’eau équipée, un WC, et un cellier complète ce bien. Outre ses nombreuses possibilités de personnalisations, cette maison saura aussi vous séduire par la qualité de ses menuiseries et de ses équipements, notamment ses volets roulants motorisés. Cette maison est conforme à la Réglementation Environnementale 2020 (RE 2020).Classe énergétique : AGaranties et assurances obligatoires incluses (voir détails en agence). Prix indicatif hors peintures et hors options. Dans ce même secteur nous disposons de nombreux terrains, n’hésitez pas à contacter notre équipe pour un devis gratuit, rapide et sans engagement, du lundi au samedi de 9h00 à 19h00 sans interruption.Contact et renseignements :Cédric RÊTEUX (Numéro supprimé)Maisons MCA Saintes
Saint-Hippolyte
TERRAIN ET MAISONFort d’une expérience de près de 40 ans, Maisons MCA vous accompagne dans votre projet.Maison de plain-pied de 85 m², comprenant une belle pièce à vivre lumineuse, dédiée à la cuisine et au séjour, 3 chambres dont une suite parentale, une salle d’eau équipée, un WC, cellier et un garage.Outre ses nombreuses possibilités de personnalisations, cette maison saura aussi vous séduire par la qualité de ses menuiseries et de ses équipements, notamment ses volets roulants motorisés. Ces derniers sont pilotables depuis votre smartphone ou votre tablette grâce à la box domotique fournie.Pour un confort optimal en toute saison, le séjour/cuisine est équipé d’émetteurs Air/Air permettant de chauffer ou climatiser le volume de la pièce très rapidement.Cette maison est conforme à la Réglementation Environnementale 2020 (RE 2020).Classe énergétique : AGaranties et assurances obligatoires incluses (voir détails en agence). Prix indicatif hors peintures et hors options. Dans ce même secteur nous disposons de nombreux terrains, n’hésitez pas à contacter Cédric RÊTEUX pour un devis gratuit, rapide et sans engagement, du lundi au samedi de 9h00 à 19h00 sans interruption.Renseignements Cédric RÊTEUX (Numéro supprimé)Projet de construction Maisons MCA
Saint-Hippolyte
TERRAIN ET MAISONDe plain-pied ce modèle de maison contemporaine a été conçu par notre bureau d’études en 4 versions.4 plans pour cette maison contemporaine de plain-pied pour vous permettre de trouver la configuration qui correspond le mieux à vos envies. Changez les couleurs des jeux d’enduits selon vos préférences ou les impératifs du PLU, choisissez un plan de maison avec ou sans garage, préférez 3 à 4 chambres ou 3 chambres et un bureau ou 3 chambres et une plus grande pièce de vie …Une maison contemporaine et modulableL’avantage de la maison FLORIDE c’est définitivement sa modularité.Ce modèle résolument contemporain qui se décline en plusieurs versions, de 95 à 132 m², vous permet d’envisager plusieurs configurations selon votre mode de vie :une maison de 95 m² avec 3 chambres situées en retrait du salon-séjour et desservies par un dégagement tout en longueur,une maison de 105 m² avec 3 chambres et en complément un bureau ultra fonctionnel,une maison de 115 m² où le salon forme un L avec une cuisine semi-ouverte et 3 spacieuses chambres dont l’agencement optimise le confort acoustique de chacune,une maison de 132 m² comprenant un salon en L doté d’une triple exposition, 4 chambres, un bureau et un garage.Contact et renseignements: Cédric RÊTEUX (Numéro supprimé)
Pont-l'Abbé-d'Arnoult
TERRAIN ET MAISONDès votre entrée dans la maison, vous serez séduit par un grand placard pratique, vous offrant un espace de rangement généreux pour vos effets personnels. Une pièce à vivre lumineuse et conviviale s’ouvre à vous, avec une cuisine américaine moderne et fonctionnelle. Vous pourrez ainsi préparer de délicieux repas tout en restant en contact avec votre famille ou vos invités. De plus, un cellier attenant à la cuisine vous permettra de stocker vos provisions et de garder votre espace de vie bien organisé.Pavot comprend également un petit bureau de 4 m2, idéal pour ceux qui ont besoin d’un espace de travail à domicile ou d’un coin tranquille pour leurs hobbies. Que vous soyez un professionnel à la recherche d’un espace inspirant ou que vous souhaitiez simplement profiter d’un coin tranquille pour vous détendre, ce bureau sera parfaitement adapté à vos besoins.Chez Maisons MCA, nous comprenons l’importance de créer des maisons qui répondent aux besoins et aux attentes de nos clients. Le modèle Pavot est le fruit d’une conception soignée, alliant praticité, confort et esthétisme. Avec ses caractéristiques uniques et son agencement fonctionnel, cette maison est une véritable invitation au confort.Renseignements et rdv: Cédric RÊTEUX (Numéro supprimé)Construction Les Maisons MCA
Saint-Hippolyte
TERRAIN ET MAISONGrâce à son plan en V, cette maison distingue clairement les espaces jour et nuit. D’un côté, l’aile dédiée au repos regroupe 2 ou 3 chambres, une salle de bain et des WC. La version la plus spacieuse intègre une suite parentale pour encore plus de confort.Un espace de vie fonctionnel et lumineuxL’autre aile est consacrée aux pièces de vie, avec un salon-séjour baigné de lumière. La cuisine semi-ouverte, pensée pour allier convivialité et praticité, est prolongée par un cellier et un garage, offrant des espaces de rangement optimisés.Des plans modulables pour s’adapter à vos besoinsDéclinée en cinq surfaces, de 69 à 107 m², cette maison s’adapte à tous les projets. Entièrement personnalisable, elle évolue selon vos envies, que ce soit dans l’aménagement des pièces ou les options choisies.Renseignements Cédric RÊTEUX (Numéro supprimé)Projet de construction Maisons MCA
L’actualité immobilière à Saint-Agnant
27/11/2023
02/11/2023
30/10/2023
20/10/2023
16/10/2023
16/10/2023