Maison à construire à Saint-Augustin (17570)
Images
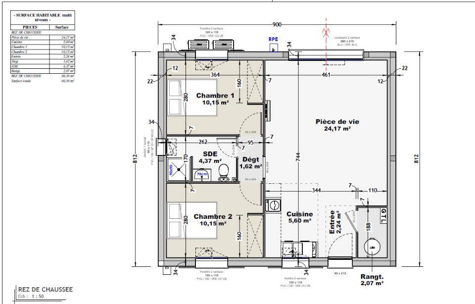
Description
A St-Augustin, à proximité du centre bourg et à 10 mn deROyan et des plages, nous proposons cette maison RE 2020 de plain-pied de 60 m² avec une pièce de vie traversante, 2 chambres, salle d'eau avec wc intégré
Prenez contact avec Pierre-Emmanuel HÜE (Bermax Construction Vaux-sur-Mer) au (Numéro supprimé) pour tout renseignement complémentaire.
Logement susceptibles de vous intéresser
Nous vous proposons de découvrir aussi cette sélection de logements situés à moins de 10km de Saint-Augustin et qui seraient susceptibles de vous intéresser.
Royan
TERRAINROYAN, terrain à bâtir d’une superficie de 453m². Emprise au sol 158m². Viabilisation en bordure de rue. Situé au calme. Hors lotissement.Visites possibles du lundi au samedi 8h/20h. Les honoraires d’agence sont à la charge de l’acquéreur, soit 8,78% TTC du prix hors honoraires.Les informations sur les risques auxquels ce bien est exposé sont disponibles sur le site Géorisques : www. georisques. gouv. fr.Réseau Immobilier CAPIFRANCE – Votre agent commercial (RSAC N(Numéro supprimé) – Greffe de SAINTES) Vincent GUERIN Entrepreneur Individuel à Responsabilité Limitée (Numéro supprimé) – Réf.929191
Les Mathes
TERRAIN ET MAISONSur ce terrain, nous vous proposons cette maison neuve, modèle Golf, conçue par Elysees Ocean, le constructeur aux meilleurs avis clients de la profession. Avec une surface de 114 m², cette maison cubique et design est idéale pour une petite famille. L’architecture ciselée de cette maison réjouira les amateurs de lignes contemporaines harmonieuses. Les grandes pièces de vie sont baignées de lumière grâce aux baies vitrées orientées au Sud, apportant confort et économies d’énergie à ses habitants. La maison Golf dispose de 3 chambres, dont une suite parentale, et de 4 pièces au total. Les menuiseries en aluminium, option très demandée par nos clients, ajoutent une touche de modernité et de durabilité à l’ensemble.Cette maison neuve est basse consommation et conforme à la réglementation environnementale RE2020, garantissant une performance énergétique optimale et un respect de l’environnement.Ne manquez pas cette opportunité unique de vivre dans une maison alliant design contemporain, confort et économies d’énergie. Contactez-nous dès maintenant pour plus d’informations.
Les Mathes
TERRAINNous vous proposons un terrain exceptionnel de 753 m² situé à Mathes en Charente-Maritime, en Nouvelle-Aquitaine. Ce terrain non-viabilisé représente une opportunité parfaite pour concrétiser vos projets de construction de maison. Offrant une belle superficie, il assure un cadre de vie harmonieux, idéal pour recevoir famille et amis, tout en étant idéalement situé dans une ville réputée pour sa qualité de vie. Mathes est une commune prisée qui séduit par son ambiance conviviale et son accessibilité. Évoluant à proximité de la mer, elle permet de profiter des plaisirs balnéaires tout en étant entourée par la nature. La ville propose de nombreuses commodités, comme des commerces, écoles et services de proximité, tout en offrant un cadre naturel exceptionnel et la possibilité de découvrir les attraits touristiques de la région. Ce terrain saura charmer les amoureux de la mer et de la tranquillité. Ne manquez pas l’opportunité de devenir propriétaire de ce terrain au potentiel immense. Contactez-nous pour découvrir tous les avantages qu’il offre ! À noter qu’en tant que constructeur, nous ne sommes pas mandatés pour réaliser la vente de ce terrain.
Les Mathes
TERRAIN ET MAISONSur ce terrain, nous vous proposons cette maison neuve, le modèle Cordouan, conçue par Elysees Ocean, le constructeur aux meilleurs avis clients de la profession.### Une villa à la fois discrète et exubéranteL’entrée de la maison, discrète et qualitative, témoigne d’une belle maison contemporaine, laissant entrevoir les superbes jeux de toiture de la partie arrière. Cette partie arrière est époustouflante avec de multiples ouvertures que l’on devine ouvertes sur un beau jardin avec piscine.### Une vraie Villa familialeLe rez-de-chaussée de ce modèle Cordouan est composé d’une immense pièce de vie centrale autour de laquelle vous trouverez une cuisine semi-ouverte, un cellier, et deux belles chambres, chacune avec sa salle d’eau privative. Un double garage complète ce rez-de-chaussée, qui se caractérise également par de belles hauteurs sous plafonds grâce aux jeux de toiture. L’étage dispose d’un coin nuit avec deux chambres donnant sur une superbe loggia extérieure et une salle d’eau commune. À noter que ce plan peut être adapté, en optant pour des surfaces encore plus importantes.### Une villa de luxeCette villa, de la gamme Architecte d’Elysees Ocean, est réellement luxueuse, de par son architecture et ses prestations, que vous pourrez découvrir à travers nos différentes collections. ### Caractéristiques principales- Surface de 140 m²- 4 chambres et 4 pièces- Grande terrasse- Toiture 6 versants- Baies vitrées au sud- Style balnéaire### Options les plus demandées- Menuiseries Aluminium- Domotique- Piscine### Performance énergétiqueCette maison neuve est basse consommation et conforme à la RE2020, garantissant des économies d’énergie et un confort optimal tout au long de l’année.Ne manquez pas cette opportunité unique de devenir propriétaire d’une villa exceptionnelle, alliant modernité, confort et luxe. Contactez-nous dès aujourd’hui pour plus d’informations et pour planifier une visite.
Les Mathes
TERRAINDécouvrez ce terrain exceptionnel de 1200 m² situé à Mathes, en Charente-Maritime. Ce bien rare, non viabilisé, constitue une toile vierge idéale pour réaliser le projet de construction de votre future maison. Avec un environnement paisible et des possibilités d’aménagement variées, ce terrain vous permet de concevoir l’espace de vie dont vous avez toujours rêvé, au cœur d’une région bénéficiant d’une qualité de vie sans pareille. Profitez d’une localisation idéale à proximité de la mer, alliant le confort d’une vie tranquille et l’accès rapide aux commodités urbaines. Mathes est une charmante commune de la région Nouvelle-Aquitaine, offrant un cadre de vie enchanteur. Cette ville dynamique se distingue par ses attractions locales, dont les plages à proximité qui séduisent les amateurs de sports nautiques, ainsi que son patrimoine naturel préservé. Les services essentiels et commerces sont facilement accessibles, garantissant ainsi un quotidien pratique et agréable. Que vous soyez à la recherche de détente, de loisirs ou d’activités culturelles, Mathes saura combler toutes vos attentes. Ce terrain représente une opportunité rare pour les investisseurs ou futurs propriétaires souhaitant bâtir leur havre de paix dans un cadre idyllique. Ne laissez pas passer cette chance, contactez-nous dès aujourd’hui pour en savoir plus. À noter qu’en tant que constructeur, nous ne sommes pas mandatés pour réaliser la vente de ce terrain.
Étaules
TERRAIN ET MAISONSur ce terrain, nous vous proposons cette maison neuve, le modèle Coubre, conçue par Elysees Ocean, le constructeur aux meilleurs avis clients de la profession. Elysees Ocean vous présente le modèle Coubre, maison parfaite pour le littoral ! Magnifique maison contemporaine à toit plat, la Coubre vous offre ses 137 m² de surface habitable dans un espace superbement bien pensé pour un confort absolu. Pour les vacances ou pour toute l’année, c’est une maison si agréable que vous ne voudrez plus la quitter.Deux espaces bien délimités pour cette maison moderne. Cette demeure de plain-pied se compose de deux corps de bâtiment quasiment distincts, reliés uniquement par un hall. Ce qui permet de compartimenter les espaces, avec le coin jour d’un côté, comprenant un grand séjour avec cuisine ouverte, un cellier, un garage intégré, et de l’autre le coin nuit, luxueux?! Jugez plutôt. Quatre chambres réparties autour d’un dégagement et pas moins de trois salles d’eau composent cette aile?! On dénombre également deux w.c. dont l’un est séparé. C’est la maison parfaite pour les familles ou pour recevoir, personne ne se bouscule, pas même pour la toilette?!Une demeure lumineuse et un extérieur très chic. De grandes baies vitrées courent sur la façade de l’espace diurne. Des fenêtres partout qui laissent entrer la lumière. Une pergola côté séjour, et un enduit façade bi-tons finissent par convaincre les plus réticents?! Cette maison est pour vous?! Vous voulez en savoir plus?? Vite, contactez-nous?!A noter que cette maison neuve est basse consommation et conforme à la RE2020. Les options les plus demandées par les clients sont également disponibles : menuiseries en aluminium et domotique. Ne manquez pas cette opportunité unique de vivre dans une maison moderne, confortable et éco-responsable.
Étaules
TERRAINDécouvrez ce terrain exceptionnel de 963 m² situé dans le charmant lotissement d’Étaules, en Charente-Maritime. Ce terrain viabilisé, au cœur d’un quartier arboré prisé, représente une occasion unique pour concrétiser votre projet de construction de maison. La qualité de vie ici est sans pareil, et les caractéristiques de ce bien vous permettront d’imaginer une demeure qui répondra parfaitement à vos désirs et à votre mode de vie. Étaules, idéalement situé en Nouvelle-Aquitaine, se distingue par ses paysages enchanteurs et son atmosphère conviviale. Profitez des commodités locales, des commerces de proximité, et des activités pour toute la famille. À proximité, vous aurez accès à de nombreuses attractions, dont la beauté des plages de la côte atlantique et les richesses culturelles de la région. Tout cela crée un cadre de vie harmonieux et agréable, parfait pour ceux qui recherchent un équilibre entre tranquillité et accessibilité. Ne manquez pas cette opportunité d’acquérir un terrain au potentiel exceptionnel. Pensez à envisager ce projet qui pourrait devenir votre havre de paix. À noter qu’en tant que constructeur, nous ne sommes pas mandatés pour réaliser la vente de ce terrain.
Arvert
TERRAIN ET MAISONSur ce terrain, nous vous proposons cette maison neuve, la Dompierre, conçue par le constructeur Elysees Ocean, reconnu pour ses excellents avis clients. Cette maison de 120 m², basse consommation et conforme à la RE2020, est idéale pour les familles à la recherche de confort et de modernité.La Dompierre se distingue par son architecture contemporaine de standing, articulée autour d’un mur rideau de plus de 30 m² orienté plein sud. Ce mur rideau illumine le séjour au rez-de-chaussée et une grande mezzanine-bureau à l’étage, offrant un volume étendu et harmonieux à la pièce à vivre. Vous aurez l’impression que l’intérieur et l’extérieur de la maison ne font qu’un.Le confort d’été est assuré par un brise-soleil vertical sur la partie haute et horizontal pour les vantaux coulissants du rez-de-chaussée, ainsi que des vitrages auto-nettoyants et performants sur le plan thermique. Une petite terrasse privative se love à l’arrière de la maison entre la cuisine et la salle de bain parentale, offrant un espace protégé pour les déjeuners et après-midis d’été.La maison dispose de 4 chambres, dont une suite parentale, et de 4 pièces principales. L’escalier luxueux de la collection Plénitude ajoute une touche d’élégance à l’intérieur. Un garage accolé complète les prestations de cette maison.Les options les plus demandées par nos clients, telles que le bardage Vibrato et les menuiseries en aluminium, sont également disponibles pour personnaliser votre future maison.Ne manquez pas cette opportunité unique de devenir propriétaire d’une maison neuve, moderne et économe en énergie, conçue par Elysees Ocean, le constructeur de confiance.
Arvert
TERRAINDécouvrez une occasion exceptionnelle d’acquérir un terrain viabilisé de 2984 m² dont 500?m² constructibles. Ce terrain plat, sans vis-à-vis et arboré, vous offre un cadre de vie paisible et serein pour concrétiser vos rêves architecturaux. Arvert, une ville dynamique de la Nouvelle-Aquitaine, se distingue par son ambiance conviviale, ses nombreuses commodités et ses attractions naturelles. La proximité avec l’océan et les plages de la côte atlantique, ainsi que l’accès à des sites touristiques et culturels, font de cette localité un choix de premier ordre pour toute la famille. Les écoles, commerces et loisirs à proximité s’ajoutent aux attraits de la région, faisant de ce terrain un emplacement stratégique pour une vie épanouie et active. Ne manquez pas cette chance de bâtir la maison de vos rêves dans un cadre idyllique. Contactez-nous dès maintenant pour envisager cette opportunité d’achat unique?! À noter qu’en tant que constructeur, nous ne sommes pas mandatés pour réaliser la vente de ce terrain.
L’actualité immobilière à Saint-Augustin
27/11/2023
02/11/2023
30/10/2023
20/10/2023
16/10/2023
16/10/2023