Images
Description
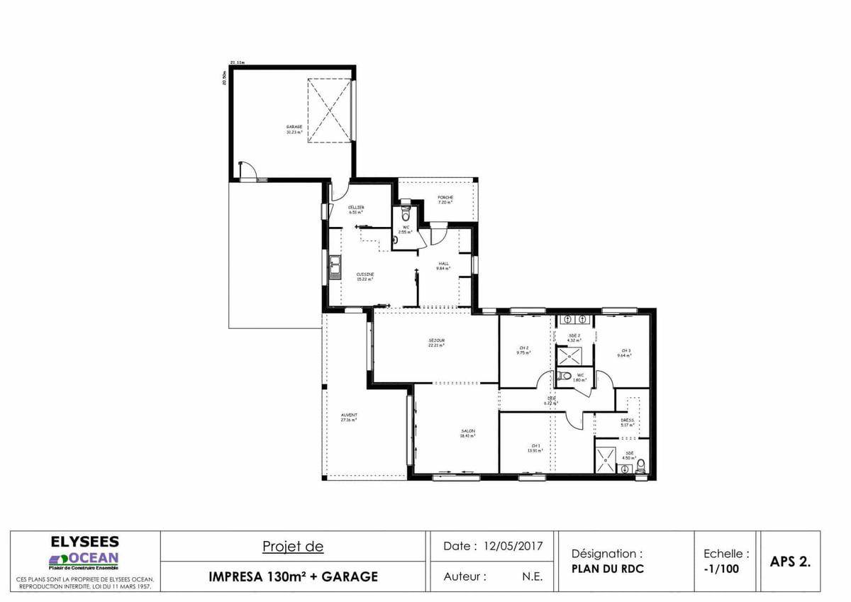
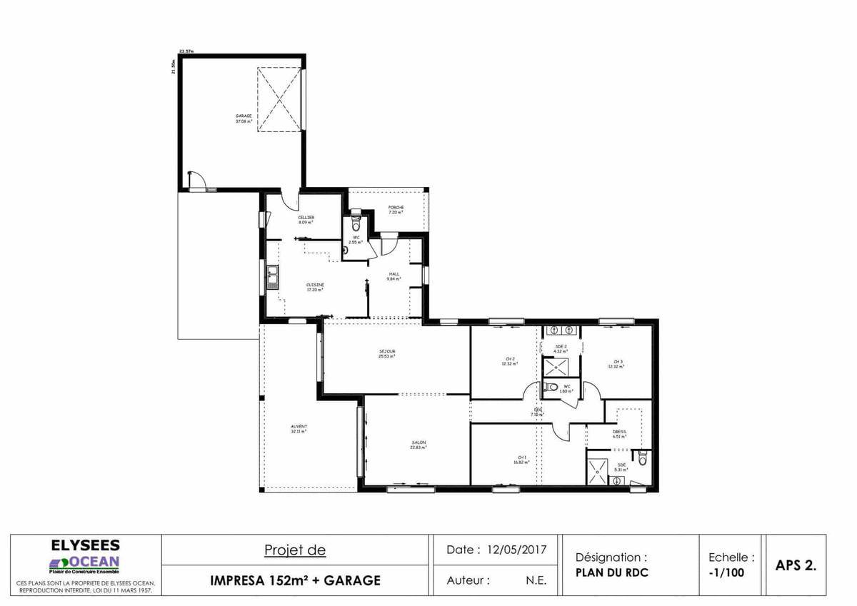
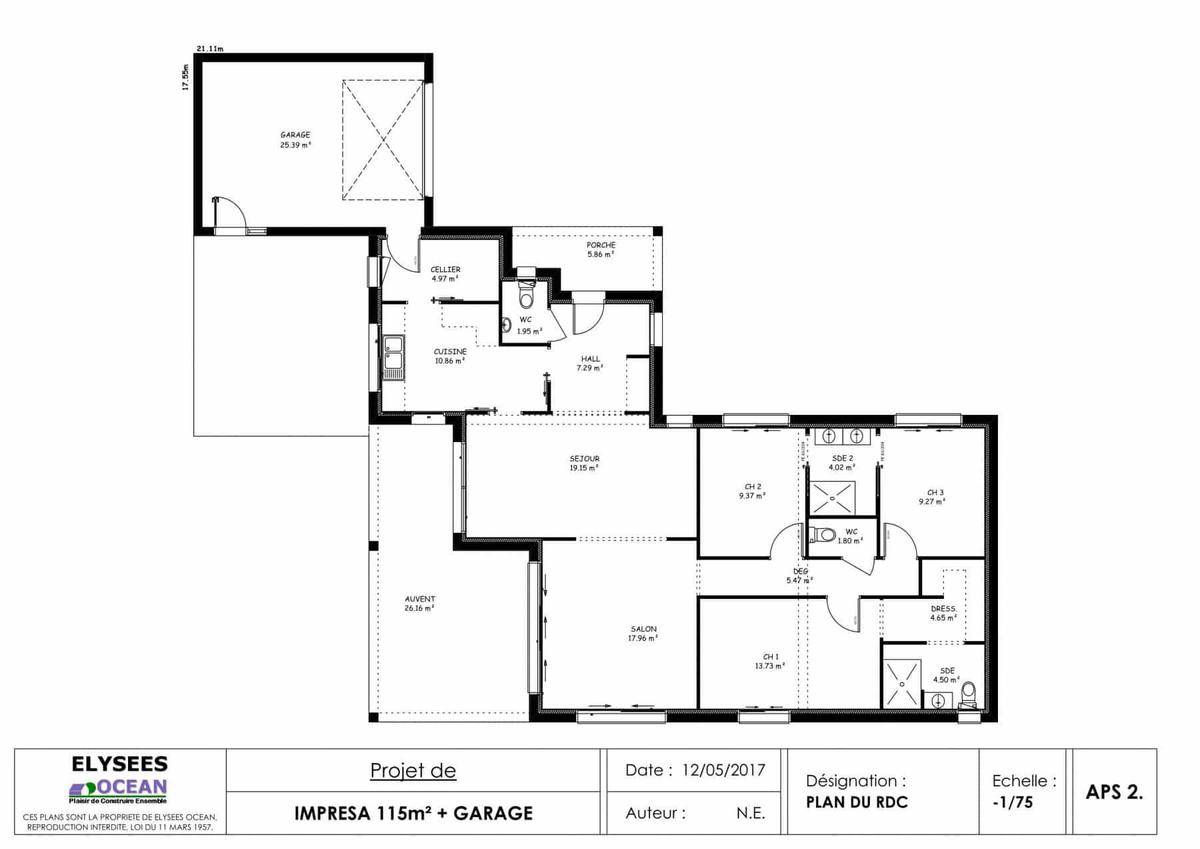
Sur ce terrain, nous vous proposons cette maison neuve, modèle Impresa, construite par Elysees Ocean, le constructeur avec les meilleurs avis clients de la profession.
Cette maison de 152 m², conforme à la norme RE2020, est un véritable bijou de modernité et de basse consommation énergétique. Elle se compose de 3 chambres spacieuses et de 4 pièces lumineuses, offrant un cadre de vie agréable et confortable.
Les grandes pièces de cette maison sont baignées de lumière naturelle grâce à une conception architecturale ingénieuse qui maximise l'exposition au soleil. Le séjour et la cuisine, ouverts sur l’Est et le Sud, permettent de profiter de la lumière dès les premières heures du jour et tout au long de l’année. L’auvent généreux ajoute une touche de confort supplémentaire, idéale pour les journées ensoleillées.
La toiture ciselée en plusieurs parties de 2 pans, avec des tuiles rondes de pays ou plates anthracites, confère à cette maison une allure traditionnelle tout en étant résolument moderne. Le garage, plus ou moins décalé, offre une protection efficace contre les vents d’ouest et les surchauffes estivales.
Les menuiseries en aluminium, très demandées par nos clients, ajoutent une touche de sophistication et de durabilité à cette maison. L'architecture découpée de l'Impresa crée des espaces de rencontre conviviaux ainsi que des espaces intimes, pour le plus grand plaisir de ses futurs habitants.
Ne manquez pas cette opportunité unique de devenir propriétaire d'une maison neuve, basse consommation, et conforme aux dernières normes environnementales. Contactez-nous dès aujourd'hui pour plus d'informations et pour organiser une visite du terrain.
Logement susceptibles de vous intéresser
Nous vous proposons de découvrir aussi cette sélection de logements situés à moins de 10km de Saint-Augustin et qui seraient susceptibles de vous intéresser.
Saint-Augustin
TERRAIN ET MAISONSur ce terrain, nous vous proposons cette maison neuve, modèle Impresa, construite par Elysees Ocean, le constructeur avec les meilleurs avis clients de la profession. Cette maison de 152 m², conforme à la norme RE2020, est un véritable bijou de modernité et de basse consommation énergétique. Elle se compose de 3 chambres spacieuses et de 4 pièces lumineuses, offrant un cadre de vie agréable et confortable.Les grandes pièces de cette maison sont baignées de lumière naturelle grâce à une conception architecturale ingénieuse qui maximise l’exposition au soleil. Le séjour et la cuisine, ouverts sur l’Est et le Sud, permettent de profiter de la lumière dès les premières heures du jour et tout au long de l’année. L’auvent généreux ajoute une touche de confort supplémentaire, idéale pour les journées ensoleillées.La toiture ciselée en plusieurs parties de 2 pans, avec des tuiles rondes de pays ou plates anthracites, confère à cette maison une allure traditionnelle tout en étant résolument moderne. Le garage, plus ou moins décalé, offre une protection efficace contre les vents d’ouest et les surchauffes estivales.Les menuiseries en aluminium, très demandées par nos clients, ajoutent une touche de sophistication et de durabilité à cette maison. L’architecture découpée de l’Impresa crée des espaces de rencontre conviviaux ainsi que des espaces intimes, pour le plus grand plaisir de ses futurs habitants.Ne manquez pas cette opportunité unique de devenir propriétaire d’une maison neuve, basse consommation, et conforme aux dernières normes environnementales. Contactez-nous dès aujourd’hui pour plus d’informations et pour organiser une visite du terrain.
Saint-Augustin
TERRAINDécouvrez ce magnifique terrain de 1000 m², idéalement situé à Saint-Augustin, en Charente-Maritime. Ce terrain plat, offre une opportunité exceptionnelle pour concrétiser votre projet de construction de maison dans un cadre agréable. Profitez d’une qualité de vie exceptionnelle dans cette commune paisible, reconnue pour son atmosphère conviviale et chaleureuse, qui saura séduire les familles et les couples en quête de tranquillité. Saint-Augustin, charmante ville de la Nouvelle-Aquitaine, bénéficie d’un emplacement privilégié proche des commodités essentielles, vous permettant d’accéder facilement à tous les services nécessaires au quotidien. Les résidents apprécieront également la proximité de nombreuses attractions locales, allant des espaces verts propices aux balades en plein air jusqu’aux activités culturelles et sportives qui animent la région. Ne manquez pas cette occasion unique de devenir propriétaire dans un environnement calme et enchanteur, parfaitement adapté à l’épanouissement de votre famille. Cet terrain représente une belle opportunité à saisir pour tous ceux désireux de construire leur maison dans un lieu privilégié. N’hésitez pas à envisager cet investissement prometteur ! À noter qu’en tant que constructeur, nous ne sommes pas mandatés pour réaliser la vente de ce terrain.
Étaules
TERRAINDécouvrez ce magnifique terrain à vendre, idéalement situé à Étaules, en Charente-Maritime. S’étendant sur une superficie généreuse de 450 m², ce terrain non viabilisé offre un cadre champêtre paisible, parfait pour réaliser votre projet de construction de maison. La tranquillité d’esprit et la promesse d’un mode de vie au calme sont au rendez-vous, tout en restant à proximité des commodités nécessaires. Ce terrain constitue une opportunité rare pour ceux qui cherchent à bâtir leur chez-soi dans un environnement serein. Étaules, charmante commune de Nouvelle-Aquitaine, se distingue par son cadre naturel préservé et sa proximité avec diverses attractions locales. Profitez de la beauté des paysages environnants, tout en ayant accès aux services essentiels tels que commerces, écoles et transports. La région offre également de nombreuses activités de plein air, rendant le quotidien très agréable. Ici, vous pouvez vivre en harmonie avec la nature tout en restant connecté aux infrastructures urbaines. Ne manquez pas cette occasion unique d’acquérir un terrain au potentiel immense dans un cadre idyllique. Contactez-nous pour explorer ensemble les possibilités de ce terrain qui n’attendent que votre imagination. À noter qu’en tant que constructeur, nous ne sommes pas mandatés pour réaliser la vente de ce terrain.
Saint-Palais-sur-Mer
TERRAINSitué à Saint-Palais-sur-Mer, charmante station balnéaire prisée de la côte atlantique, ce terrain constructible de 380 m² offre une opportunité rare. Idéalement placé dans un environnement calme et résidentiel. Il peut permettre une construction avec un étage pour plus de terrain disponible.C’est l’emplacement idéal pour une vie de famille ou un investissement immobilier.N’hésitez pas à prendre contact avec Karen LAUNAY (tél : (Numéro supprimé)) pour obtenir de plus amples informations sur la maison et sur les modalités de vente.Terrain proposé par un partenaire foncier selon disponibilité dans le cadre d’un projet de construction avec Alpha Constructions. Les descriptions, photographies, surfaces et prix illustrant l’annonce sont fournies à titre indicatif et ne sont pas contractuels. Non soumis au DPE. Différents modèles disponibles.
Saint-Palais-sur-Mer
TERRAIN ET MAISONOffrez-vous le confort d’une construction neuve personnalisée de 101 m², pensée pour s’adapter parfaitement à votre mode de vie ! Situé à Saint-Palais-sur-Mer, sur un terrain idéalement placé, ce projet allie modernité, qualité et cadre de vie exceptionnel.Cette maison, pensée pour ce terrain de 380m², est entièrement personnalisable : plan, agencement, prestations, matériaux… tout est conçu pour répondre à vos envies. Grâce à son carport intégré, vous bénéficiez d’un espace de stationnement pratique et élégant, en harmonie avec l’architecture de la maison.Avec sa suite parentale au rez-de-chaussée et une pièce de vie très lumineuse et traversante, parfaitement exposée pour profiter du jardin, cette maison offre également, 2 chambres à l’étage avec une belle salle d’eau.C’est l’emplacement idéal pour une vie de famille ou un investissement immobilier.N’hésitez pas à prendre contact avec Karen LAUNAY (tél : (Numéro supprimé)) pour obtenir de plus amples informations sur la maison et sur les modalités de vente.
Étaules
TERRAIN ET MAISONSur ce terrain, nous vous proposons cette maison neuve, modèle CITY, conçue par Elysees Ocean, le constructeur avec les meilleurs avis clients de la profession. Maison citadine et évolutive par excellence, CITY peut se transformer facilement au gré du développement de la famille. Avec une surface de 70 m², cette maison dispose de 2 chambres et de 3 pièces, offrant un espace de vie confortable et fonctionnel.Les caractéristiques principales de cette maison incluent une dalle étage en béton, garantissant robustesse et durabilité, ainsi qu’un excellent rapport qualité/prix. En plus de ses chambres à l’étage, CITY peut offrir une chambre au rez-de-chaussée, et peut être équipée d’un garage accolé, d’un car port ou de volets roulants, options les plus demandées par nos clients.Cette maison neuve est basse consommation et conforme à la réglementation environnementale RE2020, assurant des performances énergétiques optimales et un impact environnemental réduit.Ses finitions sont nombreuses et peuvent s’adapter à tout type d’architecture, qu’elle soit traditionnelle ou contemporaine, pour répondre à toutes vos envies et besoins.Ne manquez pas cette opportunité unique de devenir propriétaire d’une maison moderne, évolutive et éco-responsable avec Elysees Ocean. Contactez-nous dès aujourd’hui pour plus d’informations et pour organiser une visite.
Arvert
TERRAIN ET MAISON🏡 Votre maison sur mesure en Charente-Maritime avec Maisons MCA !Envie d’une maison individuelle adaptée à vos rêves et à votre budget ? Maisons MCA, constructeur local depuis 1986 et membre du groupe Hexaom (n°1 en France), vous accompagne de A à Z pour construire votre maison idéale à Rochefort, Saintes, Île d’Oléron ou Presqu’île d’Arvert.✅ Des maisons 100% personnalisables : plain-pied, à étage, contemporaine ou traditionnelle.✅ Qualité et performance : Isolation optimale (perméabilité à 0,4 m³/h/m²), respect strict de la RE 2020, et matériaux haut de gamme.✅ Sécurité et sérénité : Garanties maintenues depuis 2020, artisans locaux expérimentés, et suivi de chantier rigoureux.✅ Budget maîtrisé : Solutions de financement adaptées et étude gratuite.📍 Projets clés en main sur terrain viabilisé – à partir de 284 310€.Terrain sélectionné et vu pour vous sous réserve de disponibilité et au prix indiqué par notre partenaire foncier. 📞 Contact et renseignements: Cédric RÊTEUX (Numéro supprimé)Projet de construction signé les Maisons MCAPourquoi nous choisir ?Avec 40 ans d’expérience et des centaines de maisons construites, nous allions expertise, qualité et proximité pour vous offrir une maison durable, économique et sur mesure.
Arvert
TERRAIN ET MAISON🏡 Maison neuve 102 m² – Modèle Marennes – Élégance et espace de vie📍 À construire sur terrain viabilisé – Plan personnalisable avec Maisons MCADécouvrez le modèle Marennes 102, une maison de plain-pied à l’architecture soignée, idéale pour les familles en quête d’espace, de lumière et de fonctionnalité.🔸 102 m² habitables au design moderne🔸 3 belles chambres, dont une suite parentale avec salle d’eau privative🔸 Grande pièce de vie ouverte : séjour + cuisine de plus de 45 m²🔸 Salle de bains familiale + WC séparés🔸 Cellier pratique attenant à la cuisine🔸 Garage intégré pour stationnement et rangement✨ Confort et performance :Construction conforme à la réglementation RE2020Matériaux durables et prestations de qualitéMaison lumineuse grâce à ses nombreuses ouvertures🛠️ Entièrement personnalisable selon vos envies : agencement intérieur, façade, revêtements…💼 Accompagnement de A à Z par votre conseiller Maisons MCA : étude financière, démarches administratives, suivi chantier📞 Contactez moi pour plus d’infos ou une étude gratuite et personnalisée de votre projet de vie.Cédric RÊTEUX (Numéro supprimé)
Saint-Augustin
TERRAIN ET MAISONVenez découvrir cette maison de 5 pièces de plain-pied de 90 m² à sur un terrain de 413 m2. Elle est composée de quatre chambres, d’une salle de bains et WC séparé, d’une belle pièce de vie lumineuse de 40 m2 avec cuisine ouverte et cellier. Un garage vient compléter ce bel ensemble.Agréable commune où il fait bon vivre, Saint Augustin sur Mer est située à 15 minutes du centre de Royan, dans un cadre de vie privilégié à proximité des plages, vous disposerez des principales commodités et d’une école.Le prix affiché comprend le terrain, les frais de notaire, et cette maison livrée prête à décorer. Pour toute information, vous pouvez contacter votre conseillère MCA Véronique CANTEAU au (Numéro supprimé), elle vous guidera dans les démarches et vous accompagnera dans ce projet de construction personnalisé, aux normes RE2020.
L’actualité immobilière à Saint-Augustin
27/11/2023
02/11/2023
30/10/2023
20/10/2023
16/10/2023
16/10/2023