Maison neuve à Saint-Ciers-Champagne (17520)
Images
Description
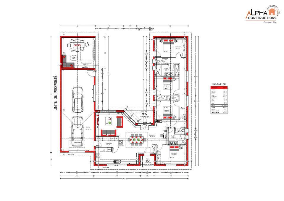
Situé au coeur d'un village calme et recherché, à seulement quelques minutes de Jonzac et Barbezieux, cette jolie maison à construire de 135m² est idéale pour une famille. Vous allez adorer son cadre paisible, sa vue dégagée, son excellent potentiel et sa proximité des commodités.
Cette agréable maison est équipé de 4 chambres lumineuses, une pièce agréable à vivre pour recevoir, 2 salles de bains, WC séparé et un garage.
MODE DE CHAUFFAGE ECONOMIQUE. PLAN MODULABLE. PRESTATIONS ET MATERIAUX DE QUALITES. RE2020.
N'hésitez pas à contacter notre agence ALPHA CONSTRUCTIONS Cognac (Tony DAIGRE (Numéro supprimé)) pour plus de renseignements.
Logement susceptibles de vous intéresser
Nous vous proposons de découvrir aussi cette sélection de logements situés à moins de 10km de Saint-Ciers-Champagne et qui seraient susceptibles de vous intéresser.
Jonzac
TERRAIN ET MAISONUn écrin de verdure pour votre future constructionLaissez vous séduire par ce terrain d’exception de 800 m2, imaginez votre future résidence, nichée au coeur d’un environnement privilégié, offrant calme et nature, à quelques kilomètres de JonzacLes atouts exclusifs de ce terrain : vaste superficie de plus de 800 m2 Situation géographique recherchée, à proximité de commodités indispensablesExposition optimale, offrant une luminosité exceptionnelle garantie tout au long de la journée Vue panoramique sur un paysage préservé, véritable invitation à la détente. Cette annonce comprend une estimation globale du projet de construction, dont une estimation des frais annexes. Ne manquez pas cette opportunité rare d’acquérir un bien d’exception. Contactez Léonie au (Numéro supprimé) qui vous accompagnera dans la création et la réalisation de votre projet. tInstagram : leoniebeaujon_
Saint-Médard
TERRAINÀ la recherche d’un cadre idyllique pour réaliser votre projet de construction de maison ? Ce terrain de 450 m², situé à Saint Médard d’Aunis constitue une belle opportunité. Viabilisé et prêt à accueillir votre future résidence, ce lotissement est le lieu idéal pour concrétiser vos rêves d’habitation. Profitez d’un environnement calme et ensoleillé qui séduira les familles en quête de tranquillité et de confort. Idéalement situé dans un cadre champêtre tout en restant à proximité de toutes les commodités nécessaires au quotidien. De plus, un arrêt de bus à proximité facilite vos déplacements dans la CDA. Contactez-nous dès maintenant pour explorer cette opportunité d’achat. À noter qu’en tant que constructeur, nous ne sommes pas mandatés pour réaliser la vente de ce terrain.
Saint-Médard
TERRAIN ET MAISONSur ce terrain, nous vous proposons cette maison neuve : la Blainium, une maison résolument moderne et très singulière. La Blainium, une maison de plain-pied contemporaine, propose une façade très stylée et originale avec ses jeux de toiture et de façades. Par ailleurs, ses grandes fenêtres laissent entrer généreusement la lumière extérieure. Cette demeure est disponible en plusieurs variantes, dans des dimensions allant de 85 à 125 m². En configuration 3 ou 4 chambres, avec ou sans bureau, dressing, salle d’eau privative, notre seule limite c’est votre imagination.Avec une surface de 110 m², cette maison dispose de 3 chambres et de 4 pièces. En partie jour, vous disposerez d’un hall d’entrée qui donne sur un vaste séjour, une cuisine ouverte qui se prête à accueillir un grand îlot central, et un cellier. Le garage pratique d’accès est accolé. Parmi les caractéristiques principales, vous trouverez un toit plat, un garage accolé, un dressing et une suite parentale.Les options les plus demandées par nos clients sont également disponibles : menuiseries en aluminium, enduit bi-ton, plancher chauffant et double garage. Cette maison neuve est basse consommation et conforme à la RE2020, vous garantissant ainsi une habitation éco-responsable et économique.Maisons Privat, constructeur centenaire avec les meilleurs avis clients de la région, vous permet de vivre votre rêve dans une maison unique. Posséder une maison neuve exceptionnelle n’a jamais été aussi accessible. La Blainium permet de vivre son rêve dans une maison unique. Cette habitation vous permettra de réaliser votre rêve : posséder une maison neuve exceptionnelle.
Saint-Ciers-Champagne
TERRAIN ET MAISONSitué au coeur d’un village calme et recherché, à seulement quelques minutes de Jonzac et Barbezieux, cette jolie maison à construire de 135m² est idéale pour une famille. Vous allez adorer son cadre paisible, sa vue dégagée, son excellent potentiel et sa proximité des commodités. Cette agréable maison est équipé de 4 chambres lumineuses, une pièce agréable à vivre pour recevoir, 2 salles de bains, WC séparé et un garage. MODE DE CHAUFFAGE ECONOMIQUE. PLAN MODULABLE. PRESTATIONS ET MATERIAUX DE QUALITES. RE2020.N’hésitez pas à contacter notre agence ALPHA CONSTRUCTIONS Cognac (Tony DAIGRE (Numéro supprimé)) pour plus de renseignements.
Saint-Ciers-Champagne
TERRAIN ET MAISONSitué au coeur d’un village calme et recherché, à seulement quelques minutes de Jonzac et Barbezieux, cette jolie maison à construire de 80m² est idéale pour une famille, un premier achat ou un investissement serein. Vous allez adorer son cadre paisible, sa vue dégagée, son excellent potentiel et sa proximité des commodités. Cette agréable maison est équipé de 3 chambres lumineuses, une pièce agréable à vivre pour recevoir, salle de bain avec WC séparé et un garage. MODE DE CHAUFFAGE ECONOMIQUE. PLAN MODULABLE. PRESTATIONS ET MATERIAUX DE QUALITES. RE2020.N’hésitez pas à contacter notre agence ALPHA CONSTRUCTIONS Cognac (Tony DAIGRE (Numéro supprimé)) pour plus de renseignements.
Baignes-Sainte-Radegonde
TERRAINEmplacement privilégié, à coté du collège et des commodités magnifique terrain viabilisé de 1500m² qui offre un cadre idéal pour concrétiser votre projet de construction dans un environnement calme et recherché. A deux pas de toutes les commodités: commerces, écolés, collèges, services etc.. Accès facile aux transports et axes routiers. Eau, électricité et tout à l’égout sur le terrain. Ce terrain est parfait pour accueillir votre future maison familiale ou un projet d’investissement dans un cadre agréable et pratique. Contacter notre agence Alpha Construction Cognac (Tony DAIGRE (Numéro supprimé)) pour plus de renseignements.
Baignes-Sainte-Radegonde
TERRAIN ET MAISONA découvrir sans tarder! Magnifique maison de 100m² offre un cadre paisible et verdoyant, alliant confort, espace et luminosité. Composé de 3 chambres spacieuses, 1 salle de bain modernes, cuisine fonctionnelle, garage intégré et un magnifique séjour traversant baigné dans la lumière. Idéalement située à la campagne tout en étant proche des commodités, cette maison séduit par sa luminosité naturelle, son agencement convivial et son environnement calme. MODE DE CHAUFFAGE PERFORMANT ET ECONOMIQUE, RE2020, MATERIAUX DE QUALITES. PLAN MODULABLE.Contactez notre agence Alpha Constructions Cognac (Tony DAIGRE (Numéro supprimé)) pour plus de renseignements
Baignes-Sainte-Radegonde
TERRAIN ET MAISONA découvrir sans tarder! Magnifique maison de 130m² offre un cadre paisible et verdoyant, alliant confort, espace et luminosité. Composé de 3 chambres spacieuses, 2 salle de bain modernes, cuisine fonctionnelle, cuisine d’été, garage et un magnifique séjour traversant baigné dans la lumière. Idéalement située à la campagne tout en étant proche des commodités, cette maison séduit par sa luminosité naturelle, son agencement convivial et son environnement calme. PLAN MODULABLE, MODE DE CHAUFFAGE PERFORMANT ET ECONOMIQUE, RE2020, MATERIAUX DE QUALITES. PLAN MODULABLE.Contactez notre agence Alpha Constructions Cognac (Tony DAIGRE (Numéro supprimé)) pour plus de renseignements
Jonzac
TERRAIN ET MAISONMAISON 3 CHAMBRES ET GARAGEJONZAC. Sur un terrain de 348 m², ALPHA CONSTRUCTIONS vous propose de réaliser votre futur projet de construction d’une surface de 80 m², composé de 3 chambres et garage.Proche du centre-ville, des commerces, de la gare.Dans la partie « jour » d’environ 45 m² vous disposerez d’une cuisine ouverte, d’un salon / séjour avec grande baie vitrée et porte fenêtre, ainsi que d’un cellier communiquant avec la cuisine et le garage. La partie « nuit » se compose de 3 belles chambres avec placard et une salle de bain avec douche italienne et meuble vasque. WC indépendant. Projet modifiable, adaptable à vos envies et besoins.Contactez votre chargé de projet, Mr VINCENT Christophe, au (Numéro supprimé).
L’actualité immobilière à Saint-Ciers-Champagne
27/11/2023
02/11/2023
30/10/2023
20/10/2023
16/10/2023
16/10/2023