Images
Description
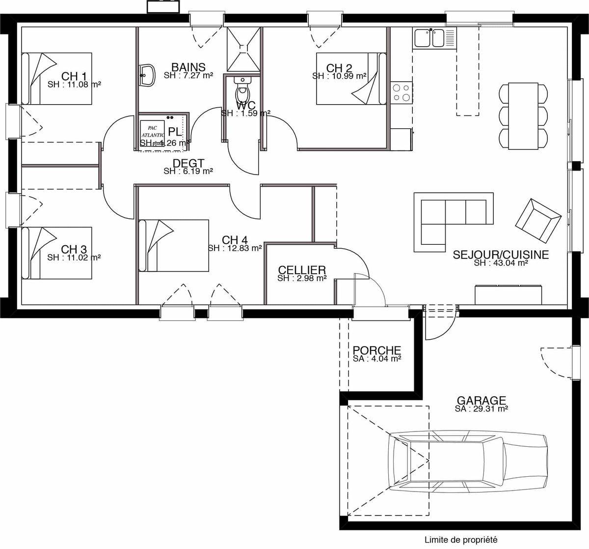
Sur ce terrain, nous vous proposons cette maison neuve, l'Atrium, conçue par Elysees Ocean, le constructeur aux meilleurs avis clients de la profession. Cette superbe demeure de 110 m² allie harmonieusement tradition et modernité, avec un design en L qui optimise l'espace et la luminosité.
L'Atrium se distingue par son architecture unique, combinant toit plat et toit classique, pour un rendu esthétique à la fois original et élégant. Vous n'aurez plus à choisir entre une maison traditionnelle et une maison contemporaine, cette maison vous offre le meilleur des deux mondes.
Avec ses 4 chambres spacieuses et ses 4 pièces bien agencées, cette maison est idéale pour les familles en quête de confort et de fonctionnalité. Le garage intégré et le porche d'entrée ajoutent une touche de praticité et de charme à cette demeure.
Les options les plus demandées par nos clients, telles que les menuiseries en aluminium et le clin bois, sont disponibles pour personnaliser votre maison selon vos goûts et vos besoins.
L'Atrium est une maison basse consommation, conforme à la réglementation environnementale RE2020, garantissant ainsi des performances énergétiques optimales et un respect de l'environnement.
Ne manquez pas cette opportunité unique de devenir propriétaire d'une maison neuve, moderne et éco-responsable, conçue par Elysees Ocean, le constructeur de confiance. Contactez-nous dès maintenant pour plus d'informations et pour découvrir les différentes options de personnalisation disponibles.
Logement susceptibles de vous intéresser
Nous vous proposons de découvrir aussi cette sélection de logements situés à moins de 10km de Saint-Crépin et qui seraient susceptibles de vous intéresser.
Archingeay
TERRAIN ET MAISONFort d’une expérience de près de 40 ans, Maisons MCA vous accompagne dans votre projet.Maison de plain-pied de 84 m², comprenant une belle pièce à vivre lumineuse, dédiée à la cuisine et au séjour, 3 chambres, une salle d’eau équipée, un WC, cellier et un garage.Outre ses nombreuses possibilités de personnalisations, cette maison saura aussi vous séduire par la qualité de ses menuiseries et de ses équipements, notamment ses volets roulants motorisés. Ces derniers sont pilotables depuis votre smartphone ou votre tablette grâce à la box domotique fournie.Pour un confort optimal en toute saison, le séjour/cuisine est équipé d’émetteurs Air/Air permettant de chauffer ou climatiser le volume de la pièce très rapidement.Cette maison est conforme à la Réglementation Environnementale 2020 (RE 2020).Classe énergétique : AGaranties et assurances obligatoires incluses (voir détails en agence). Prix indicatif hors peintures et hors options. Dans ce même secteur nous disposons de nombreux terrains, n’hésitez pas à contacter Cédric RÊTEUX pour un devis gratuit, rapide et sans engagement, du lundi au samedi de 9h00 à 19h00 sans interruption.Renseignements Cédric RÊTEUX (Numéro supprimé)Projet de construction Maisons MCA
Archingeay
TERRAIN ET MAISONCette maison à toit plat, se caractérise par ses formes audacieuses et le volume de son espace de vie.Cette maison contemporaine avec un salon-séjour spacieux et traversant, vous permettra de profiter au maximum de l’ensoleillement offert par la grande baie vitrée.Une cuisine semi-ouverte complète l’espace de vie.Cette maison à étage est présentée en deux versions : 118 m² et 132 m².Le plan de 118 m² est composé de deux chambres à l’étage et la suite parentale de 23 m² (avec un dressing) au rez-de-chaussée.Le plan de 132 m² se décline avec 3 chambres, 2 salles de bains et un grand bureau pouvant accueillir une salle de jeu, un espace home office ou un atelier.Laissez libre court à votre imagination en personnalisant ce modèle de maison à étage.Contactez Cédric RÊTEUX au (Numéro supprimé) pour des renseignements et rdv
Archingeay
TERRAIN ET MAISONFort d’une expérience de près de 40 ans, Maisons MCA vous accompagne dans votre projet.Maison de plain-pied de 85 m², comprenant une belle pièce à vivre lumineuse, dédiée à la cuisine et au séjour, 3 chambres dont une suite parentale, une salle d’eau équipée, un WC, cellier et un garage.Outre ses nombreuses possibilités de personnalisations, cette maison saura aussi vous séduire par la qualité de ses menuiseries et de ses équipements, notamment ses volets roulants motorisés. Ces derniers sont pilotables depuis votre smartphone ou votre tablette grâce à la box domotique fournie.Pour un confort optimal en toute saison, le séjour/cuisine est équipé d’émetteurs Air/Air permettant de chauffer ou climatiser le volume de la pièce très rapidement.Cette maison est conforme à la Réglementation Environnementale 2020 (RE 2020).Classe énergétique : AGaranties et assurances obligatoires incluses (voir détails en agence). Prix indicatif hors peintures et hors options. Dans ce même secteur nous disposons de nombreux terrains, n’hésitez pas à contacter Cédric RÊTEUX pour un devis gratuit, rapide et sans engagement, du lundi au samedi de 9h00 à 19h00 sans interruption.Renseignements Cédric RÊTEUX (Numéro supprimé)Projet de construction Maisons MCA
Archingeay
TERRAIN ET MAISONDécouvrez la charmante maison Lilas, un modèle rectangulaire conçu pour répondre à tous vos besoins. Avec ses trois chambres, une salle de bains moderne et un WC séparé, elle offre un agencement pratique et fonctionnel pour votre vie quotidienne.Dès votre entrée, passé un mignon et pratique petit porche, vous serez accueilli par un placard pratique qui vous permettra de ranger vos affaires en toute discrétion. Le modèle de maison Lilas se distingue également par sa cuisine américaine avec un cellier attenant, intégrée dans une pièce à vivre spacieuse de 40 mètres carrés. Imaginez les délicieux repas que vous pourrez préparer tout en restant en contact avec vos invités dans cet espace convivial et lumineux.Contact et renseignements: Cédric RÊTEUX (Numéro supprimé)Projet de construction signé les Maisons MCAMaisons de la Côte Atlantique Saintes est là pour vous accompagner dans tous vos projets immobiliers.
Archingeay
TERRAIN ET MAISONVue dégagée sur la campagne. Nous vous proposons ce projet de construction d’une maison de plain pied de 69 m².La maison se compose de 2 belles chambres, une salle d’eau, une grande pièce de vie avec cuisine ouverte (aménagée et équipée), un cellier et un garage complètent ce bien.Chauffage par pompe à chaleur au sol.Projet de construction signé les Maisons MCA.Le prix comprend le terrain, les frais de notaire, et la construction.Hors finition, branchements et raccordements. Renseignements Cédric RÊTEUX (Numéro supprimé)
Archingeay
TERRAIN🌿 Terrain constructible à Archingeay – 543 m² – 44 725 €🏡 Cadre verdoyant et calme – Idéal pour votre projet immobilier !À Archingeay, découvrez ce terrain de 543 m², situé dans un environnement paisible et verdoyant. Parfait pour construire votre maison et profiter d’un cadre de vie naturel et préservé.Atouts d’Archingeay :🛒 Commerces et services : Proximité des commerces locaux et des artisans.🎓 Écoles et crèches : Établissements scolaires accessibles.🏥 Santé : Médecins, pharmacies et services médicaux à proximité.🌳 Loisirs : Randonnées, balades en nature, et activités de plein air.🚗 Transports : Accès facile aux routes principales de la région.💰 Prix : 44 725 € – Disponible immédiatement.📞 Contactez-moi pour une visite et réalisez votre projet dans un cadre naturel et apaisant !Cédric RÊTEUX (Numéro supprimé)
Archingeay
TERRAINTerrain constructible de 676m² dans lotissement.Ecole primaire à pied et toutes commodités à moins de 10 minutes (Saint Savinien à 8 minutes et Tonnay Boutonne à 10), venez découvrir ce beau projet de construction de lotissement avec une vue magnifique sur la campagne.Les terrains seront vendus viabilisés et terrassés.Prix de vente : 62 500 euros charge vendeur.Pour visiter et vous accompagner dans votre projet, contactez Adeline LOGEL, au (Numéro supprimé) ou, par courriel à (Email supprimé).Selon l’article L.561.5 du Code Monétaire et Financier, pour l’organisation de la visite, la présentation d’une pièce d’identité vous sera demandée.Cette présente annonce a été rédigée sous la responsabilité éditoriale de Adeline LOGEL agissant sous le statut d’agent commercial auprès de SAS PROPRIETES PRIVEES. Cette vente est garantie 12 mois.Cette présente annonce a été rédigée sous la responsabilité éditoriale de Adeline LOGEL agissant sous le statut d’agent commercial immatriculé au RSAC SAINTES 938138054 auprès de la SAS PROPRIETES PRIVEES , au capital de 44 920 euros, ZAC LE CHÊNE FERRÉ – 44 ALLÉE DES CINQ CONTINENTS 44120 VERTOU; SIRET 487 624 777 00040, RCS Nantes. Carte Professionnelle Transactions sur immeubles et fonds de commerce (T) et Gestion immobilière (G) n°CPI 4401 2016 000 010 388 délivrée par la CCI Nantes – Saint Nazaire. Compte séquestre n(Numéro supprimé)67 BPA SAINT-SEBASTIEN-SUR-LOIRE (44230). Garantie GALIAN – 89 rue de la Boétie, 75008 Paris – n°28137 J pour 2 000 000 euros pour T et 120 000 euros pour G. Assurance responsabilité civile professionnelle par MMA Entreprise n° de police 120.137.405Mandat réf : 393459 – Le professionnel garantit et sécurise votre projet immobilier.Copropriété de 11 lots – dont 11 lots habitation.(). Jean-Jacques OZON (EI) Agent Commercial – Numéro RSAC : 423128057 LA ROCHELLE – .
Archingeay
TERRAINTerrain constructible de 593m² dans lotissement.Ecole primaire à pied et toutes commodités à moins de 10 minutes (Saint Savinien à 8 minutes et Tonnay Boutonne à 10), venez découvrir ce beau projet de construction de lotissement avec une vue magnifique sur la campagne.Les terrains seront vendus viabilisés et terrassés.Prix de vente : 54 700 euros charge vendeur.Pour visiter et vous accompagner dans votre projet, contactez Adeline LOGEL, au (Numéro supprimé) ou, par courriel à (Email supprimé).Selon l’article L.561.5 du Code Monétaire et Financier, pour l’organisation de la visite, la présentation d’une pièce d’identité vous sera demandée.Cette présente annonce a été rédigée sous la responsabilité éditoriale de Adeline LOGEL agissant sous le statut d’agent commercial auprès de SAS PROPRIETES PRIVEES. Cette vente est garantie 12 mois.Cette présente annonce a été rédigée sous la responsabilité éditoriale de Adeline LOGEL agissant sous le statut d’agent commercial immatriculé au RSAC SAINTES 938138054 auprès de la SAS PROPRIETES PRIVEES , au capital de 44 920 euros, ZAC LE CHÊNE FERRÉ – 44 ALLÉE DES CINQ CONTINENTS 44120 VERTOU; SIRET 487 624 777 00040, RCS Nantes. Carte Professionnelle Transactions sur immeubles et fonds de commerce (T) et Gestion immobilière (G) n°CPI 4401 2016 000 010 388 délivrée par la CCI Nantes – Saint Nazaire. Compte séquestre n(Numéro supprimé)67 BPA SAINT-SEBASTIEN-SUR-LOIRE (44230). Garantie GALIAN – 89 rue de la Boétie, 75008 Paris – n°28137 J pour 2 000 000 euros pour T et 120 000 euros pour G. Assurance responsabilité civile professionnelle par MMA Entreprise n° de police 120.137.405Mandat réf : 393460 – Le professionnel garantit et sécurise votre projet immobilier. Jean-Jacques OZON (EI) Agent Commercial – Numéro RSAC : 423128057 LA ROCHELLE – .
Archingeay
TERRAINTerrain constructible de 569m² dans lotissement.Ecole primaire à pied et toutes commodités à moins de 10 minutes (Saint Savinien à 8 minutes et Tonnay Boutonne à 10), venez découvrir ce beau projet de construction de lotissement avec une vue magnifique sur la campagne.Les terrains seront vendus viabilisés et terrassés.Prix de vente : 52 700 euros charge vendeur.Pour visiter et vous accompagner dans votre projet, contactez Adeline LOGEL, au (Numéro supprimé) ou, par courriel à (Email supprimé).Selon l’article L.561.5 du Code Monétaire et Financier, pour l’organisation de la visite, la présentation d’une pièce d’identité vous sera demandée.Cette présente annonce a été rédigée sous la responsabilité éditoriale de Adeline LOGEL agissant sous le statut d’agent commercial auprès de SAS PROPRIETES PRIVEES. Cette vente est garantie 12 mois.Cette présente annonce a été rédigée sous la responsabilité éditoriale de Adeline LOGEL agissant sous le statut d’agent commercial immatriculé au RSAC SAINTES 938138054 auprès de la SAS PROPRIETES PRIVEES , au capital de 44 920 euros, ZAC LE CHÊNE FERRÉ – 44 ALLÉE DES CINQ CONTINENTS 44120 VERTOU; SIRET 487 624 777 00040, RCS Nantes. Carte Professionnelle Transactions sur immeubles et fonds de commerce (T) et Gestion immobilière (G) n°CPI 4401 2016 000 010 388 délivrée par la CCI Nantes – Saint Nazaire. Compte séquestre n(Numéro supprimé)67 BPA SAINT-SEBASTIEN-SUR-LOIRE (44230). Garantie GALIAN – 89 rue de la Boétie, 75008 Paris – n°28137 J pour 2 000 000 euros pour T et 120 000 euros pour G. Assurance responsabilité civile professionnelle par MMA Entreprise n° de police 120.137.405Mandat réf : 393461 – Le professionnel garantit et sécurise votre projet immobilier.Copropriété de 11 lots (). Jean-Jacques OZON (EI) Agent Commercial – Numéro RSAC : 423128057 LA ROCHELLE – .
L’actualité immobilière à Saint-Crépin
27/11/2023
02/11/2023
30/10/2023
20/10/2023
16/10/2023
16/10/2023