Images
Description
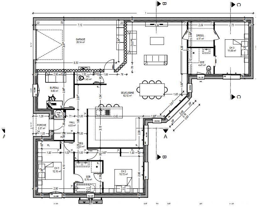
Sur ce terrain, nous vous proposons cette maison neuve, la Forges, construite par Elysees Ocean, le constructeur avec les meilleurs avis clients de la profession. Cette belle et vaste maison familiale offre une superficie habitable de 130 m². De plain-pied et de style traditionnel, elle s'intègre parfaitement dans l'architecture locale tout en offrant un design contemporain.
Son plan est extrêmement bien pensé et offre un grand espace de vie lumineux de 58 m² avec une cuisine ouverte donnant sur l'extérieur, orientée plein sud. La maison dispose de quatre chambres, dont une suite parentale de 20 m² comprenant une salle d'eau et un dressing. Cette suite parentale s'ouvre sur le jardin grâce à une baie vitrée.
Un autre espace nuit, pensé pour des enfants, est composé de deux chambres de plus de 12 m², dotées de grands placards et d'une salle de bain privative avec douche et double vasque. Un très pratique bureau de 9.50 m², pouvant servir de chambre d'ami, se trouve également à proximité du grand séjour.
Un grand garage intégré de 28 m² complète l'ensemble.
Cette maison neuve est basse consommation et conforme à la RE2020, garantissant ainsi une performance énergétique optimale. Les menuiseries en aluminium, très demandées par les clients, ajoutent une touche de modernité et de durabilité à cette construction.
Ne manquez pas cette opportunité unique de devenir propriétaire d'une maison alliant confort, modernité et respect de l'environnement.
Logement susceptibles de vous intéresser
Nous vous proposons de découvrir aussi cette sélection de logements situés à moins de 10km de Saint-Froult et qui seraient susceptibles de vous intéresser.
Saint-Nazaire-sur-Charente
TERRAINTerrains viabilisés de 217m² à 788 m², VUE MER, libres de constructeur sur la commune de Saint-Nazaire-sur-Charente, en Charente-Maritime.Découvrez notre nouvelle opération « La Bernardière » située chemin de la Bernardière.Idéalement située en bord de mer à proximité de La Rochelle, Autoroute A837 accessible en moins de 10 minutes. Les amateurs de sports nautiques, de voile et de pêche trouveront leur bonheur dans cette région dynamique, où les loisirs liés à la mer sont à portée de main.Retrouvez l’ensemble de nos lots disponibles sur notre site internet.
Port-des-Barques
TERRAINDécouvrez ce magnifique terrain non viabilisé de 3838 m², un véritable trésor à Port-des-Barques, disponible au prix de 169 900 €. Ce terrain offre une opportunité unique pour concrétiser votre rêve de construction de maison, tout en bénéficiant d’un environnement paisible et ensoleillé. Profitez d’une superbe vue dégagée, sans vis-à-vis, dans un quartier privilégié, propice à une qualité de vie exceptionnelle. Ce dernier terrain disponible est idéalement situé pour fusionner confort moderne et nature environnante. Port-des-Barques, nichée en Charente-Maritime au cœur de la Nouvelle-Aquitaine, se distingue par sa proximité avec la mer et ses paysages enchanteurs. Ce charmant village est entouré de commodités locales, facilitant votre quotidien tout en offrant un cadre de vie agréable. Les résidents peuvent savourer des moments de détente à la plage, explorer les sentiers environnants ou profiter des commerces de proximité. Cette localité est également réputée pour ses vues imprenables, offrant ainsi un cadre de vie alliant tranquillité et nature, parfait pour votre projet de construction. Ne laissez pas passer cette occasion rare d’acquérir un terrain avec un potentiel exceptionnel. Envisagez dès aujourd’hui votre future maison dans ce cadre idyllique.
Port-des-Barques
TERRAIN ET MAISONSur ce terrain, nous vous proposons cette maison neuve, la Palmyre, conçue par Elysees Ocean, le constructeur aux meilleurs avis clients de la profession. Avec une surface généreuse de 162 m², cette maison est idéale pour accueillir une famille nombreuse grâce à ses 4 chambres et 4 pièces.La Palmyre se distingue par ses caractéristiques exceptionnelles : un solarium pour profiter des journées ensoleillées, une suite parentale à l’écart avec un balcon privatif donnant sur un jardin paysagé, et une grande terrasse parfaite pour les moments de détente en plein air. Faisant partie de la Collection Plénitude, cette maison allie confort et modernité.Le grand séjour convivial, ouvert sur une cuisine spacieuse, est le cœur de la maison. Un petit cellier attenant permet de ranger les équipements techniques en toute discrétion. Les dortoirs et chambres doubles offrent un espace de vie confortable pour chaque membre de la famille.Un auvent généreux sur l’ouest incite à la rêverie tout en protégeant la maison des surchauffes estivales de fin d’après-midi. Les brises-soleils au-dessus des grandes baies vitrées assurent un confort optimal en été.Les options les plus demandées par nos clients, telles que les menuiseries en aluminium et la domotique, sont disponibles pour personnaliser votre maison selon vos envies.Enfin, cette maison neuve est basse consommation et conforme à la réglementation environnementale RE2020, garantissant des performances énergétiques optimales et un respect de l’environnement.Un véritable coup de cœur pour cette maison d’architecte contemporaine, la Palmyre est prête à devenir votre nouveau foyer. Ne manquez pas cette opportunité unique de vivre dans une maison alliant élégance, confort et modernité.
Saint-Froult
TERRAIN ET MAISONSur ce terrain, nous vous proposons cette maison neuve, la Dompierre, conçue par le constructeur Elysees Ocean, reconnu pour ses excellents avis clients. Cette maison de 120 m², basse consommation et conforme à la RE2020, est idéale pour les familles à la recherche de confort et de modernité.La Dompierre se distingue par son architecture contemporaine de standing, articulée autour d’un mur rideau de plus de 30 m² orienté plein sud. Ce mur rideau illumine le séjour au rez-de-chaussée et une grande mezzanine-bureau à l’étage, offrant un volume étendu et harmonieux à la pièce à vivre. Vous aurez l’impression que l’intérieur et l’extérieur de la maison ne font qu’un.Le confort d’été est assuré par un brise-soleil vertical sur la partie haute et horizontal pour les vantaux coulissants du rez-de-chaussée, ainsi que des vitrages auto-nettoyants et performants sur le plan thermique. Une petite terrasse privative se love à l’arrière de la maison entre la cuisine et la salle de bain parentale, offrant un espace protégé pour les déjeuners et après-midis d’été.La maison dispose de 4 chambres, dont une suite parentale, et de 4 pièces principales. L’escalier luxueux de la collection Plénitude ajoute une touche d’élégance à l’intérieur. Un garage accolé complète les prestations de cette maison.Les options les plus demandées par nos clients, telles que le bardage Vibrato et les menuiseries en aluminium, sont également disponibles pour personnaliser votre future maison.Ne manquez pas cette opportunité unique de devenir propriétaire d’une maison neuve, moderne et économe en énergie, conçue par Elysees Ocean, le constructeur de confiance.
Saint-Froult
TERRAINDécouvrez ce magnifique terrain à vendre de 1064 m², situé à Saint-Froult, un lieu enchanteur en Charente-Maritime. Idéal pour une construction de maison, ce terrain non viabilisé offre un cadre champêtre sans vis-à-vis, avec un ensoleillement optimal. Vous serez séduit par l’atmosphère calme et arborée, qui fait de ce lieu un véritable havre de paix, parfait pour concrétiser votre projet de vie. Saint-Froult, niché au cœur de la région Nouvelle-Aquitaine, propose un style de vie agréable avec des commodités à proximité. La ville est connue pour sa qualité de vie exceptionnelle, ses paysages pittoresques et sa proximité avec la mer. Profitez des attractions locales, des marchés pittoresques et des activités en plein air, le tout à quelques pas de votre futur chez-vous. Vous serez également séduits par la richesse culturelle de la région, qui promet un cadre de vie épanouissant. Ne manquez pas cette occasion unique d’acquérir un terrain au potentiel indéniable. Contactez-nous pour envisager ensemble votre futur projet.
Port-des-Barques
TERRAIN ET MAISONLa ligne EVOLUTION vous offre une maison plain-pied dès 79 m² habitables, pensée pour s’adapter à votre style de vie. Profitez d’une pièce de vie traversante à partir de 35m², baignée de lumière grâce à une grande baie vitrée, avec cuisine ouverte et cellier isolé pour plus de praticité. Ce modèle se compose de 3 chambres. À l’extérieur, choisissez un garage, un préau ou un carport attenant d’une surface de 15m², parfait pour stationner ou profiter des beaux jours.Informations : Mathieu Dagusé au (Numéro supprimé).Prix incluant assurance dommages-ouvrage, VRD compris, terrain viabilisé, assainissement compris, frais de notaire non compris, taxes non comprises, frais divers non compris. Terrain sous réserve de disponibilité de notre partenaire foncier. Images non contractuelles.Cette annonce a été créée et diffusée avec le logiciel VITAHOME.
Port-des-Barques
TERRAIN ET MAISONLa ligne EVOLUTION vous offre une maison plain-pied dès 71 m² habitables, pensée pour s’adapter à votre style de vie. Profitez d’une pièce de vie traversante à partir de 35m², baignée de lumière grâce à une grande baie vitrée, avec cuisine ouverte et cellier isolé pour plus de praticité. Ce modèle se compose de 2 chambres. À l’extérieur, choisissez un garage, un préau ou un carport attenant d’une surface de 15m², parfait pour stationner ou profiter des beaux jours.Informations : Mathieu Dagusé au (Numéro supprimé).Prix incluant assurance dommages-ouvrage, VRD compris, terrain viabilisé, assainissement compris, frais de notaire non compris, taxes non comprises, frais divers non compris. Terrain sous réserve de disponibilité de notre partenaire foncier. Images non contractuelles.Cette annonce a été créée et diffusée avec le logiciel VITAHOME.
Port-des-Barques
TERRAIN ET MAISONLa ligne EVOLUTION vous offre une maison plain-pied dès 71 m² habitables, pensée pour s’adapter à votre style de vie. Profitez d’une pièce de vie traversante à partir de 35m², baignée de lumière grâce à une grande baie vitrée, avec cuisine ouverte et cellier isolé pour plus de praticité. Ce modèle se compose de 2 chambres. À l’extérieur, choisissez un garage, un préau ou un carport attenant d’une surface de 15m², parfait pour stationner ou profiter des beaux jours.Informations : Mathieu Blay au (Numéro supprimé).Prix incluant assurance dommages-ouvrage, VRD compris, terrain viabilisé, assainissement compris, frais de notaire non compris, taxes non comprises, frais divers non compris. Terrain sous réserve de disponibilité de notre partenaire foncier. Images non contractuelles.Cette annonce a été créée et diffusée avec le logiciel VITAHOME.
Port-des-Barques
TERRAIN ET MAISONLa ligne EVOLUTION vous offre une maison plain-pied dès 93 m² habitables, pensée pour s’adapter à votre style de vie. Profitez d’une pièce de vie traversante à partir de 35m², baignée de lumière grâce à une grande baie vitrée, avec cuisine ouverte et cellier isolé pour plus de praticité. Ce modèle se compose de 4 chambres dont une suite parentale offrant confort et intimité. À l’extérieur, choisissez un garage, un préau ou un carport attenant d’une surface de 15m², parfait pour stationner ou profiter des beaux jours.Informations : Mathieu Dagusé au (Numéro supprimé).Prix incluant assurance dommages-ouvrage, VRD compris, terrain viabilisé, assainissement compris, frais de notaire non compris, taxes non comprises, frais divers non compris. Terrain sous réserve de disponibilité de notre partenaire foncier. Images non contractuelles.Cette annonce a été créée et diffusée avec le logiciel VITAHOME.
L’actualité immobilière à Saint-Froult
27/11/2023
02/11/2023
30/10/2023
20/10/2023
16/10/2023
16/10/2023