Images
Description
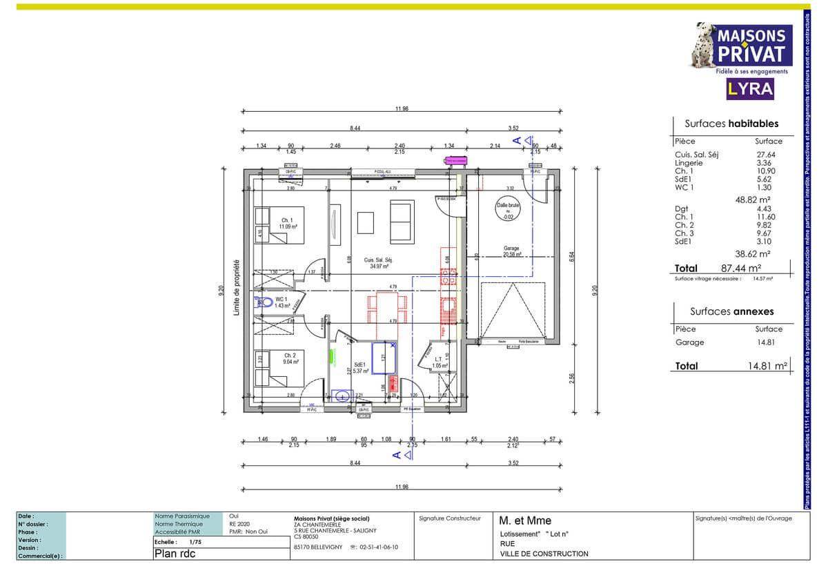
Sur ce terrain, nous vous proposons cette maison de plain-pied au design contemporain, idéale pour un confort de vie au quotidien. Ses deux chambres offrent un espace nuit cosy, tandis que la vaste pièce de vie de plus de 35 m² réunit cuisine ouverte, salle à manger et salon, baignés de lumière naturelle. Vous profiterez également d’une salle d’eau moderne et d’un WC indépendant, pensés pour simplifier votre quotidien.
Le garage de plus de 20 m² constitue un atout majeur pour stationner votre véhicule en toute sécurité ou aménager un espace de bricolage.
Son architecture élégante, soulignée par une toiture à double pente, s’intègre harmonieusement à l’environnement. Ne manquez pas cette belle opportunité?: chaque détail a été soigneusement étudié pour vous garantir une qualité de vie incomparable.
Logement susceptibles de vous intéresser
Nous vous proposons de découvrir aussi cette sélection de logements situés à moins de 10km de Saint-Georges-du-Bois et qui seraient susceptibles de vous intéresser.
Benon
TERRAIN25 mn LA ROCHELLE – Terrain à bâtir situé dans un environnement très calme et résidentiel sans vis à vis – Toute viabilité sur rue –
Benon
TERRAIN ET MAISONSur ce terrain, nous vous proposons cette superbe maison de plain-pied, alliant confort, modernité et praticité, idéale pour une famille en quête de bien-être.Avec son agencement optimisé, cette maison vous offre une spacieuse pièce de vie baignée de lumière naturelle, comprenant un séjour convivial et une cuisine ouverte fonctionnelle, parfaite pour des moments en famille ou entre amis.L’espace nuit se compose de trois belles chambres offrant confort et sérénité, d’une salle d’eau moderne et de WC séparés pour plus de praticité.Un garage intégré vient compléter ce bien, idéal pour stationner un véhicule ou disposer d’un espace de rangement supplémentaire.
Bouhet
TERRAIN ET MAISONLa ligne EVOLUTION vous offre une maison plain-pied dès 93 m² habitables, pensée pour s’adapter à votre style de vie. Profitez d’une pièce de vie traversante à partir de 35m², baignée de lumière grâce à une grande baie vitrée, avec cuisine ouverte et cellier isolé pour plus de praticité. Ce modèle se compose de 4 chambres dont une suite parentale offrant confort et intimité. À l’extérieur, choisissez un garage, un préau ou un carport attenant d’une surface de 15m², parfait pour stationner ou profiter des beaux jours.Informations du terrain : Terrain facile d'accès et idéale pour l'implantation de la maisonInformations : Mathieu Blay au (Numéro supprimé).Prix incluant assurance dommages-ouvrage, VRD compris, terrain viabilisé, assainissement compris, frais de notaire non compris, taxes non comprises, frais divers non compris. Terrain sous réserve de disponibilité de notre partenaire foncier. Images non contractuelles.Cette annonce a été créée et diffusée avec le logiciel VITAHOME.
Bouhet
TERRAIN ET MAISONSpacieuse et lumineuse ! Cette maison en L à partir de 89 m2 habitable, vous offre une généreuse pièce de vie de 40 m2 avec cuisine ouverte sur salon et séjour, cellier isolé. Grande baie coulissante située sur l’arrière. Vous disposez de 3 chambres, dont une équipée avec un dressing ou une salle d’eau équipée avec douche et meuble vasque. Vous disposez également d’une salle de bain équipée avec meuble vasque, douche et/ou baignoire, sèche serviette. Garage attenant de 16 m2. Orientation cuisine salon séjour arrière. Carrelage grand format compris dans toute les pièces (hors chambres) et faïence au choix dans une large gamme disponible.Informations du terrain : Terrain facile d'accès et idéale pour l'implantation de la maisonInformations : Mathieu Blay au (Numéro supprimé).Prix incluant assurance dommages-ouvrage, VRD compris, terrain viabilisé, assainissement compris, frais de notaire non compris, taxes non comprises, frais divers non compris. Terrain sous réserve de disponibilité de notre partenaire foncier. Images non contractuelles.Cette annonce a été créée et diffusée avec le logiciel VITAHOME.
Bouhet
TERRAIN ET MAISONLa ligne EVOLUTION vous offre une maison plain-pied dès 71 m² habitables, pensée pour s’adapter à votre style de vie. Profitez d’une pièce de vie traversante à partir de 35m², baignée de lumière grâce à une grande baie vitrée, avec cuisine ouverte et cellier isolé pour plus de praticité. Ce modèle se compose de 2 chambres. À l’extérieur, choisissez un garage, un préau ou un carport attenant d’une surface de 15m², parfait pour stationner ou profiter des beaux jours.Informations du terrain : Terrain facile d'accès et idéale pour l'implantation de la maisonInformations : Mathieu Blay au (Numéro supprimé).Prix incluant assurance dommages-ouvrage, VRD compris, terrain viabilisé, assainissement compris, frais de notaire non compris, taxes non comprises, frais divers non compris. Terrain sous réserve de disponibilité de notre partenaire foncier. Images non contractuelles.Cette annonce a été créée et diffusée avec le logiciel VITAHOME.
Bouhet
TERRAIN ET MAISONLa ligne EVOLUTION vous offre une maison plain-pied dès 79 m² habitables, pensée pour s’adapter à votre style de vie. Profitez d’une pièce de vie traversante à partir de 35m², baignée de lumière grâce à une grande baie vitrée, avec cuisine ouverte et cellier isolé pour plus de praticité. Ce modèle se compose de 3 chambres. À l’extérieur, choisissez un garage, un préau ou un carport attenant d’une surface de 15m², parfait pour stationner ou profiter des beaux jours.Informations du terrain : Terrain facile d'accès et idéale pour l'implantation de la maisonInformations : Mathieu Blay au (Numéro supprimé).Prix incluant assurance dommages-ouvrage, VRD compris, terrain viabilisé, assainissement compris, frais de notaire non compris, taxes non comprises, frais divers non compris. Terrain sous réserve de disponibilité de notre partenaire foncier. Images non contractuelles.Cette annonce a été créée et diffusée avec le logiciel VITAHOME.
Bouhet
TERRAIN ET MAISONLa ligne EVOLUTION vous offre une maison plain-pied dès 89 m² habitables, pensée pour s’adapter à votre style de vie. Profitez d’une pièce de vie traversante à partir de 35m², baignée de lumière grâce à une grande baie vitrée, avec cuisine ouverte et cellier isolé pour plus de praticité. Ce modèle se compose de 3 chambres. À l’extérieur, choisissez un garage, un préau ou un carport attenant d’une surface de 15m², parfait pour stationner ou profiter des beaux jours.Informations du terrain : Terrain facile d'accès et idéale pour l'implantation de la maisonInformations : Mathieu Blay au (Numéro supprimé).Prix incluant assurance dommages-ouvrage, VRD compris, terrain viabilisé, assainissement compris, frais de notaire non compris, taxes non comprises, frais divers non compris. Terrain sous réserve de disponibilité de notre partenaire foncier. Images non contractuelles.Cette annonce a été créée et diffusée avec le logiciel VITAHOME.
Bouhet
TERRAINTerrain facile d'accès et idéale pour l'implantation de la maisonPrix : 59900 €.Informations : Mathieu Blay au (Numéro supprimé).Sous réserve de disponibilité de notre partenaire foncier. Prix hors frais de notaire. Photos non contractuelles.Cette annonce a été créée et diffusée avec le logiciel VITAHOME.
Bouhet
TERRAINTerrain viabilisé et bien situé dans le lotissement. Parcelle avec une bonne orientation et possibilité d'implantation simple.Prix : 61900 €.Informations : Mathieu Blay au (Numéro supprimé).Sous réserve de disponibilité de notre partenaire foncier. Prix hors frais de notaire. Photos non contractuelles.Cette annonce a été créée et diffusée avec le logiciel VITAHOME.
L’actualité immobilière à Saint-Georges-du-Bois
27/11/2023
02/11/2023
30/10/2023
20/10/2023
16/10/2023
16/10/2023