Images
Description
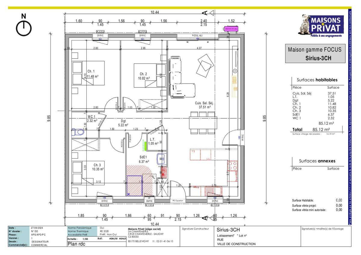
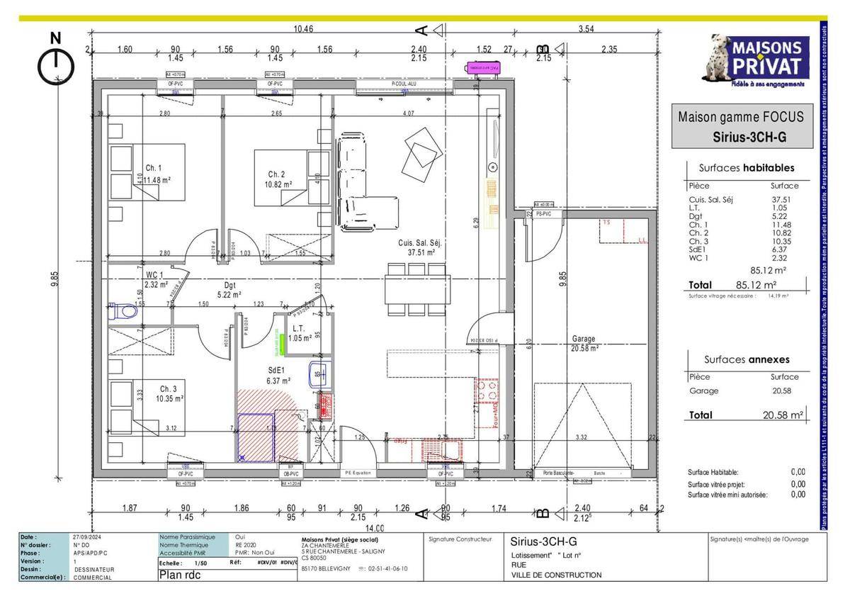
Sur ce terrain, nous vous proposons cette superbe maison de plain-pied au plan optimisé, pensée pour offrir confort et convivialité à toute la famille. Passé l’entrée, vous serez immédiatement séduit par une vaste pièce de vie baignée de lumière, où se côtoient salon, salle à manger et cuisine ouverte, idéale pour partager des moments chaleureux au quotidien.
Côté nuit, trois chambres spacieuses et lumineuses vous attendent, chacune permettant d’installer rangements et bureau selon vos envies. Une salle de bain moderne, un WC complètent cet agencement astucieux, facilitant l’organisation de la vie de famille.
Atout pratique : Un garage attenant de près de 21 m² permet de stationner votre véhicule en toute sécurité, tout en laissant de la place pour un atelier ou du rangement supplémentaire.
Moderne, fonctionnelle et pensée pour un confort optimal, cette maison saura répondre à toutes vos attentes. N’attendez plus pour venir la découvrir et laissez-vous séduire par son agencement harmonieux !
Logement susceptibles de vous intéresser
Nous vous proposons de découvrir aussi cette sélection de logements situés à moins de 10km de Saint-Jean-de-Liversay et qui seraient susceptibles de vous intéresser.
Courçon
TERRAINNous vous proposons à la vente un terrain exceptionnelle d’une superficie de 405 m², idéalement situé à Courçon, au cœur de la belle Charente-Maritime. Ce terrain viabilisé offre une opportunité parfaite pour la construction de votre future maison, vous permettant de réaliser votre projet à votre image dans un environnement paisible et accueillant. Avec son cadre verdoyant et ses caractéristiques uniques, ce terrain saura séduire les futurs propriétaires désireux de s’installer dans une région dynamique. Courçon, située dans le département de la Charente-Maritime en Nouvelle-Aquitaine, est une ville qui conjugue charmante atmosphère locale et proximité des commodités essentielles. Vous pourrez profiter de diverses attractions, notamment des marchés animés et des paysages naturels à couper le souffle. De plus, la proximité des services de santé, des écoles et des commerces donne à ce quartier un attrait indéniable pour les familles et les jeunes actifs. Ne manquez pas cette occasion d’acquérir un terrain dans une localité prometteuse et pleine de vie. Ce terrain représente une opportunité unique à ne pas manquer pour tous ceux qui souhaitent bâtir leur avenir dans un cadre de vie agréable. Pensez à envisager cette belle parcelle pour réaliser votre rêve d’habitat. À noter qu’en tant que constructeur, nous ne sommes pas mandatés pour réaliser la vente de ce terrain.
Courçon
TERRAIN ET MAISONSur ce terrain, nous vous proposons cette maison de plain-pied au design contemporain, idéale pour un confort de vie au quotidien. Ses deux chambres offrent un espace nuit cosy, tandis que la vaste pièce de vie de plus de 35 m² réunit cuisine ouverte, salle à manger et salon, baignés de lumière naturelle. Vous profiterez également d’une salle d’eau moderne et d’un WC indépendant, pensés pour simplifier votre quotidien.Le garage de plus de 20 m² constitue un atout majeur pour stationner votre véhicule en toute sécurité ou aménager un espace de bricolage. Son architecture élégante, soulignée par une toiture à double pente, s’intègre harmonieusement à l’environnement. Ne manquez pas cette belle opportunité?: chaque détail a été soigneusement étudié pour vous garantir une qualité de vie incomparable.
Courçon
TERRAINNous vous présentons un terrain en vente d’une superficie généreuse dans un charmant lotissement situé à Courçon, en Charente-Maritime. Avec des caractéristiques viabilisées, ce terrain est idéal pour un projet de construction de maison. Son emplacement exceptionnel vous permet de bénéficier de l’air pur de la campagne tout en restant à proximité des commodités essentielles, vous assurant ainsi un cadre de vie agréable et équilibré. Courçon, nichée en Nouvelle-Aquitaine, se distingue par son cadre paisible et ses atouts locaux. Vous trouverez à proximité des attractions naturelles ainsi que des services variés, notamment des commerces, des écoles et des espaces de loisirs. Cette ville dynamique est également idéale pour les amoureux de la nature, offrant de belles promenades et un accès facile aux merveilles de la Charente-Maritime, vous promettant ainsi une qualité de vie sans égale. Ce terrain représente une opportunité unique pour les acheteurs en quête d’un emplacement privilégié pour réaliser leur rêve immobilier. N’attendez plus pour envisager ce potentiel exceptionnel. À noter qu’en tant que constructeur, nous ne sommes pas mandatés pour réaliser la vente de ce terrain.
Courçon
TERRAIN ET MAISONSur ce terrain, nous vous proposons cette superbe maison de plain-pied au plan optimisé, pensée pour offrir confort et convivialité à toute la famille. Passé l’entrée, vous serez immédiatement séduit par une vaste pièce de vie baignée de lumière, où se côtoient salon, salle à manger et cuisine ouverte, idéale pour partager des moments chaleureux au quotidien.Côté nuit, trois chambres spacieuses et lumineuses vous attendent, chacune permettant d’installer rangements et bureau selon vos envies. Une salle de bain moderne, un WC complètent cet agencement astucieux, facilitant l’organisation de la vie de famille.Atout pratique : Un garage attenant de près de 21 m² permet de stationner votre véhicule en toute sécurité, tout en laissant de la place pour un atelier ou du rangement supplémentaire.Moderne, fonctionnelle et pensée pour un confort optimal, cette maison saura répondre à toutes vos attentes. N’attendez plus pour venir la découvrir et laissez-vous séduire par son agencement harmonieux !
Courçon
TERRAINÀ la recherche d’un écrin pour votre projet de vie ? Nous vous proposons ce terrain idéalement situé à Courçon, dans la Charente-Maritime. D’une superficie généreuse, ce terrain viabilisé constitue une opportunité parfaite pour construire la maison de vos rêves. Le lotissement dans lequel il se trouve offre un cadre calme et agréable, propice à l’épanouissement de toute la famille, le tout à proximité des commodités locales. Courçon, localisé en Nouvelle-Aquitaine, est une ville dynamique qui allie charme et praticité. Vous profiterez de la proximité immédiate des commerces et des écoles, ce qui facilitera votre quotidien. La région est également connue pour ses activités récréatives et culturelles qui sauront séduire petits et grands. C’est un cadre de vie recherché, où tranquillité et accessibilité se rencontrent, idéal pour établir votre foyer. N’attendez plus pour envisager cette opportunité unique d’acquérir un terrain à fort potentiel. Ne laissez pas passer votre chance de réaliser vos rêves de construction ! À noter qu’en tant que constructeur, nous ne sommes pas mandatés pour réaliser la vente de ce terrain.
Courçon
TERRAIN ET MAISONSur cet terrain, nous vous proposons cette maison évolutive, conçue pour aujourd’hui et pensée pour demainCe modèle de maison incarne l’harmonie parfaite entre fonctionnalité et adaptabilité, offrant un cadre de vie agréable qui évolue avec vos besoins.Au cœur de cette maison, une spacieuse pièce de vie baignée de lumière naturelle grâce à ses larges ouvertures. Ce séjour chaleureux, avec sa cuisine ouverte moderne, constitue un espace idéal pour partager des moments en famille ou entre amis.À proximité, une chambre et une salle d’eau offrent un espace nuit fonctionnel et pratique.Adossé à la maison, un garage de presque 58m² représente bien plus qu’un simple espace de stationnement. Conçu pour évoluer, il peut être transformé en un véritable espace de vie supplémentaire. En fonction de vos besoins, cet espace pourra accueillir jusqu’à trois chambres et une seconde salle d’eau, apportant ainsi une solution idéale pour agrandir votre maison sans contrainte majeure.Grâce à une conception intelligente et anticipée, cette maison s’adapte à votre mode de vie, que ce soit pour accueillir une famille grandissante, créer un espace de travail ou offrir un confort supplémentaire à vos proches.En choisissant cette maison évolutive, vous investissez dans un habitat durable, adaptable et conçu pour le bien-être de toute votre famille.
Saint-Jean-de-Liversay
TERRAINÀ saisir, un terrain exceptionnel de 502 m², situé dans un lotissement moderne à Saint-Jean-de-Liversay en Charente-Maritime. Ce terrain entièrement viabilisé représente une opportunité unique pour concrétiser votre projet de construction de maison. Vous pourrez bénéficier d’un cadre de vie agréable et harmonieux, idéal pour les familles souhaitant s’installer dans un environnement paisible. Saint-Jean-de-Liversay, charmante commune de la région Nouvelle-Aquitaine, offre un cadre de vie idéal avec sa proximité aux commodités locales. Profitez des marchés animés, des commerces de proximité et des nombreux loisirs que la ville propose. Vous serez également à quelques minutes des plages de la côte atlantique et des paysages pittoresques de la Charente-Maritime, garantissant ainsi un quotidien agréable et dynamique. N’attendez plus pour découvrir le potentiel de ce terrain dans cette ville pleine de charme! Ce terrain représente une belle opportunité d’investissement. N’hésitez pas à nous contacter pour plus d’informations et pour envisager la réalisation de votre projet de rêve. À noter qu’en tant que constructeur, nous ne sommes pas mandatés pour réaliser la vente de ce terrain.
Saint-Jean-de-Liversay
TERRAIN ET MAISONSur ce terrain, nous vous proposons cette magnifique maison contemporaine de 90,57 m², offrant un cadre de vie idyllique où modernité, confort et nature se rencontrent harmonieusement. Avec ses volumes optimisés, elle est idéale pour une famille à la recherche de bien-être et de sérénité.Un intérieur spacieux et lumineuxDès l’entrée, laissez-vous séduire par un grand espace de vie ouvert de 37 m², baigné de lumière grâce à ses larges baies vitrées offrant une vue imprenable sur le jardin et la piscine. La cuisine moderne et fonctionnelle s’intègre parfaitement à l’espace de réception, créant une atmosphère chaleureuse et conviviale.Au rez-de-chaussée, vous trouverez une suite parentale de 12,18 m², parfaite pour plus d’intimité, une grande pièce de vie de 37 m² avec cuisine ouverte, salon et salle à manger, ainsi qu’une salle d’eau et des WC séparés. Le garage de 22,55 m², accessible directement depuis la maison, offre un espace de rangement idéal.À l’étage, deux chambres confortables de 10,70 m² et 10,74 m² offrent un espace de vie agréable pour les enfants ou les invités. Une salle d’eau spacieuse de 5,56 m² et un palier pouvant être aménagé en bureau ou en espace détente complètent cet étage.* Prix indiqué hors branchements, hors sanitaires, hors revêtement des sols et des murs. Assurance dommages ouvrages incluse.
Saint-Jean-de-Liversay
TERRAINNous vous proposons à la vente un terrain viabilisé de 378 m², idéalement situé dans le charmant lotissement de Saint-Jean-de-Liversay, dans le département de la Charente-Maritime. Ce terrain offre un cadre de vie propice à la construction de votre future maison, dans un environnement calme et verdoyant. C’est une opportunité rare de concevoir une résidence à votre image, tout en bénéficiant d’un emplacement stratégique au sein d’une commune dynamique. Saint-Jean-de-Liversay, nichée en Nouvelle-Aquitaine, vous séduira par ses multiples atouts. À proximité immédiate, vous trouverez de nombreux commerces qui répondront à vos besoins quotidiens, ainsi que des infrastructures scolaires et sportives qui contribuent à la qualité de vie locale. De plus, la ville est idéalement située, permettant d’accéder facilement aux beautés de la Charente-Maritime, avec ses paysages variés et ses attractions historiques. Un lieu parfait pour élever une famille ou profiter de la tranquillité d’un cadre naturel sans être éloigné des commodités du quotidien. Ne manquez pas cette occasion exceptionnelle de donner vie à votre projet immobilier dans un environnement enchanteur. Contactez-nous pour explorer le potentiel de ce terrain et concrétiser vos rêves. À noter qu’en tant que constructeur, nous ne sommes pas mandatés pour réaliser la vente de ce terrain.
L’actualité immobilière à Saint-Jean-de-Liversay
27/11/2023
02/11/2023
30/10/2023
20/10/2023
16/10/2023
16/10/2023