Images
Description
Sur ce terrain, nous vous proposons cette maison neuve, modèle Oceane, construite par Elysees Ocean, le constructeur avec les meilleurs avis clients de la profession.
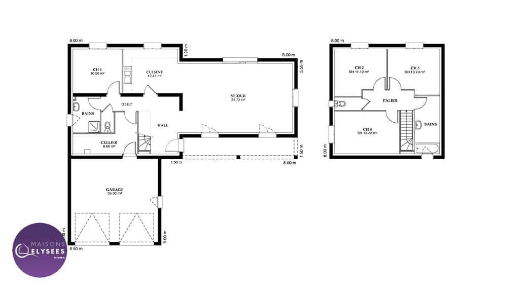
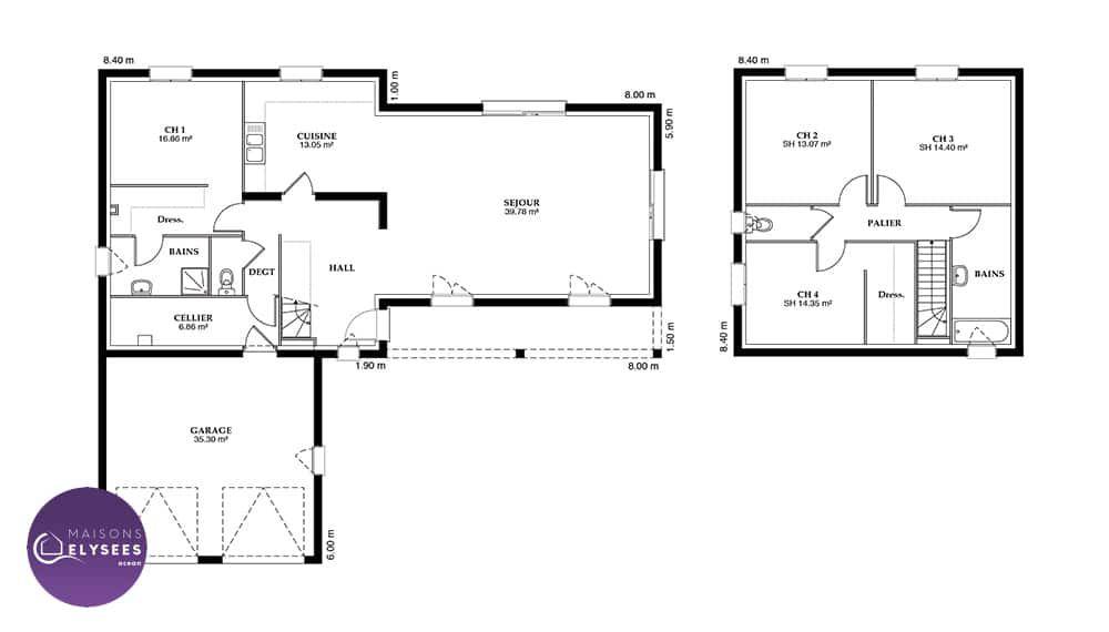
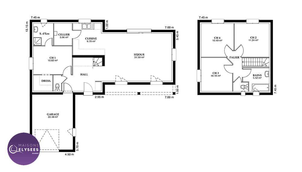
Cette maison de 116 m², de style provençal, se distingue par son élégance et son harmonie. Elle dispose de 4 chambres et de 4 pièces, offrant ainsi un espace de vie confortable et fonctionnel pour toute la famille. La maison Oceane est conçue avec une dalle étage en béton, garantissant une solidité et une durabilité exceptionnelles. Vous avez le choix entre une toiture à 2 pans ou à 4 pans, selon vos préférences esthétiques.
Le rez-de-chaussée accueille un grand espace à vivre lumineux et convivial, idéal pour les moments en famille ou entre amis. Une chambre ou un bureau supplémentaire se trouve également à ce niveau, offrant une flexibilité d'aménagement. À l'étage, la partie nuit se compose de trois chambres spacieuses, parfaites pour le repos et l'intimité de chacun.
Le garage intégré est un atout pratique, permettant de stationner votre véhicule en toute sécurité et de bénéficier d'un espace de rangement supplémentaire.
Les options les plus demandées par nos clients, telles que les menuiseries en aluminium, sont disponibles pour personnaliser votre maison selon vos goûts et vos besoins. Vous pouvez également choisir des façades colorées ou un bardage bois pour apporter une touche de modernité à votre demeure.
Cette maison neuve est basse consommation et conforme à la réglementation environnementale RE2020, vous assurant ainsi des économies d'énergie et un confort optimal tout au long de l'année.
La maison Oceane est idéale pour une vie en bord de mer, offrant un cadre de vie agréable et paisible. Ne manquez pas cette opportunité unique de devenir propriétaire d'une maison neuve, élégante et éco-responsable, construite par Elysees Ocean, le constructeur de confiance avec les meilleurs avis clients de la profession.
Logement susceptibles de vous intéresser
Nous vous proposons de découvrir aussi cette sélection de logements situés à moins de 10km de Saint-Laurent-de-la-Prée et qui seraient susceptibles de vous intéresser.
Yves
TERRAIN ET MAISONLumineuse ! Maison plain-pied 3 chambres dont une avec salle d’eau équipée avec une douche et un meuble vasque. Cette maison à partir de 87 m2 habitable vous procure une belle pièce de vie de 40 m2 orientée à l’avant. Cellier isolé attenant au garage de 16 m2. Grande cuisine ouverte sur la pièce de vie éclairée par une baie coulissante sur la façade. Vous accédez de votre cuisine sur une terrasse opposée au séjour. Orientation des chambres situées à l’arrière. Vous bénéficiez également d’une salle de bain équipée avec meuble vasque et baignoire. Carrelage grand format compris dans toute les pièces (hors chambres) et faïence au choix dans une large gamme disponible.Informations : Mathieu Dagusé au (Numéro supprimé).Prix incluant assurance dommages-ouvrage, VRD compris, terrain viabilisé, assainissement compris, frais de notaire non compris, taxes non comprises, frais divers non compris. Terrain sous réserve de disponibilité de notre partenaire foncier. Images non contractuelles.Cette annonce a été créée et diffusée avec le logiciel VITAHOME.
Yves
TERRAIN ET MAISONSpacieuse et lumineuse ! Cette maison en L à partir de 89 m2 habitable, vous offre une généreuse pièce de vie de 40 m2 avec cuisine ouverte sur salon et séjour, cellier isolé. Grande baie coulissante située sur l’arrière. Vous disposez de 3 chambres, dont une équipée avec un dressing ou une salle d’eau équipée avec douche et meuble vasque. Vous disposez également d’une salle de bain équipée avec meuble vasque, douche et/ou baignoire, sèche serviette. Garage attenant de 16 m2. Orientation cuisine salon séjour arrière. Carrelage grand format compris dans toute les pièces (hors chambres) et faïence au choix dans une large gamme disponible.Informations : Mathieu Dagusé au (Numéro supprimé).Prix incluant assurance dommages-ouvrage, VRD compris, terrain viabilisé, assainissement compris, frais de notaire non compris, taxes non comprises, frais divers non compris. Terrain sous réserve de disponibilité de notre partenaire foncier. Images non contractuelles.Cette annonce a été créée et diffusée avec le logiciel VITAHOME.
Yves
TERRAIN ET MAISONLa ligne EVOLUTION vous offre une maison plain-pied dès 93 m² habitables, pensée pour s’adapter à votre style de vie. Profitez d’une pièce de vie traversante à partir de 35m², baignée de lumière grâce à une grande baie vitrée, avec cuisine ouverte et cellier isolé pour plus de praticité. Ce modèle se compose de 4 chambres dont une suite parentale offrant confort et intimité. À l’extérieur, choisissez un garage, un préau ou un carport attenant d’une surface de 15m², parfait pour stationner ou profiter des beaux jours.Informations : Mathieu Dagusé au (Numéro supprimé).Prix incluant assurance dommages-ouvrage, VRD compris, terrain viabilisé, assainissement compris, frais de notaire non compris, taxes non comprises, frais divers non compris. Terrain sous réserve de disponibilité de notre partenaire foncier. Images non contractuelles.Cette annonce a été créée et diffusée avec le logiciel VITAHOME.
Yves
TERRAIN ET MAISONModulable à souhaits ! Votre maison plain-pied, 3 chambres, dont une équipée avec un dressing, et une salle d’eau équipée avec douche et meuble vasque. Disponible à partir de 89 m2 habitable. Porche d’entrée sur la façade avant. Belle pièce de vie de 40 m2 avec cuisine ouverte orientée sur la façade arrière, cellier isolé. Grande baie coulissante donnant sur la terrasse arrière. Vous disposez également d’une salle de bain équipée avec meuble vasque, et douche. Garage attenant de 17 m2. Orientation salon séjour traversant. Carrelage grand format compris dans toutes les pièces (hors chambres) et faïence au choix dans une large gamme disponible.Informations : Mathieu Dagusé au (Numéro supprimé).Prix incluant assurance dommages-ouvrage, VRD compris, terrain viabilisé, assainissement compris, frais de notaire non compris, taxes non comprises, frais divers non compris. Terrain sous réserve de disponibilité de notre partenaire foncier. Images non contractuelles.Cette annonce a été créée et diffusée avec le logiciel VITAHOME.
Yves
TERRAIN ET MAISONLa ligne EVOLUTION vous offre une maison plain-pied dès 71 m² habitables, pensée pour s’adapter à votre style de vie. Profitez d’une pièce de vie traversante à partir de 35m², baignée de lumière grâce à une grande baie vitrée, avec cuisine ouverte et cellier isolé pour plus de praticité. Ce modèle se compose de 2 chambres. À l’extérieur, choisissez un garage, un préau ou un carport attenant d’une surface de 15m², parfait pour stationner ou profiter des beaux jours.Informations : Mathieu Dagusé au (Numéro supprimé).Prix incluant assurance dommages-ouvrage, VRD compris, terrain viabilisé, assainissement compris, frais de notaire non compris, taxes non comprises, frais divers non compris. Terrain sous réserve de disponibilité de notre partenaire foncier. Images non contractuelles.Cette annonce a été créée et diffusée avec le logiciel VITAHOME.
Yves
TERRAIN ET MAISONClassique et fonctionnelle ! Votre maison plain-pied à partir de 90 m2 habitable vous apporte une grande pièce de vie de 45 m2 avec cellier isolé, cuisine et coin repas attenant. Salon indépendant. 2 grandes baies coulissantes exposées sur la terrasse arrière vous offrent luminosité et confort. Vous disposez de 3 chambres dont une située sur la façade arrière. La salle de bain est aménagée avec meuble 2 vasques, une grande douche et une baignoire. Garage attenant de 16 m2. Orientation salon et pièce de vie principale exposées sur la terrasse à l’arrière. Carrelage grand format compris dans toute les pièces (hors chambres) et faïence au choix dans une large gamme disponible.Informations : Mathieu Dagusé au (Numéro supprimé).Prix incluant assurance dommages-ouvrage, VRD compris, terrain viabilisé, assainissement compris, frais de notaire non compris, taxes non comprises, frais divers non compris. Terrain sous réserve de disponibilité de notre partenaire foncier. Images non contractuelles.Cette annonce a été créée et diffusée avec le logiciel VITAHOME.
Yves
TERRAIN ET MAISONLa ligne EVOLUTION vous offre une maison plain-pied dès 79 m² habitables, pensée pour s’adapter à votre style de vie. Profitez d’une pièce de vie traversante à partir de 35m², baignée de lumière grâce à une grande baie vitrée, avec cuisine ouverte et cellier isolé pour plus de praticité. Ce modèle se compose de 3 chambres. À l’extérieur, choisissez un garage, un préau ou un carport attenant d’une surface de 15m², parfait pour stationner ou profiter des beaux jours.Informations : Mathieu Dagusé au (Numéro supprimé).Prix incluant assurance dommages-ouvrage, VRD compris, terrain viabilisé, assainissement compris, frais de notaire non compris, taxes non comprises, frais divers non compris. Terrain sous réserve de disponibilité de notre partenaire foncier. Images non contractuelles.Cette annonce a été créée et diffusée avec le logiciel VITAHOME.
Yves
TERRAIN ET MAISONLa ligne EVOLUTION vous offre une maison plain-pied dès 89 m² habitables, pensée pour s’adapter à votre style de vie. Profitez d’une pièce de vie traversante à partir de 35m², baignée de lumière grâce à une grande baie vitrée, avec cuisine ouverte et cellier isolé pour plus de praticité. Ce modèle se compose de 3 chambres. À l’extérieur, choisissez un garage, un préau ou un carport attenant d’une surface de 15m², parfait pour stationner ou profiter des beaux jours.Informations : Mathieu Dagusé au (Numéro supprimé).Prix incluant assurance dommages-ouvrage, VRD compris, terrain viabilisé, assainissement compris, frais de notaire non compris, taxes non comprises, frais divers non compris. Terrain sous réserve de disponibilité de notre partenaire foncier. Images non contractuelles.Cette annonce a été créée et diffusée avec le logiciel VITAHOME.
Saint-Nazaire-sur-Charente
TERRAINTerrains viabilisés de 217m² à 788 m², VUE MER, libres de constructeur sur la commune de Saint-Nazaire-sur-Charente, en Charente-Maritime.Découvrez notre nouvelle opération « La Bernardière » située chemin de la Bernardière.Idéalement située en bord de mer à proximité de La Rochelle, Autoroute A837 accessible en moins de 10 minutes. Les amateurs de sports nautiques, de voile et de pêche trouveront leur bonheur dans cette région dynamique, où les loisirs liés à la mer sont à portée de main.Retrouvez l’ensemble de nos lots disponibles sur notre site internet.
L’actualité immobilière à Saint-Laurent-de-la-Prée
27/11/2023
02/11/2023
30/10/2023
20/10/2023
16/10/2023
16/10/2023