Images
Description
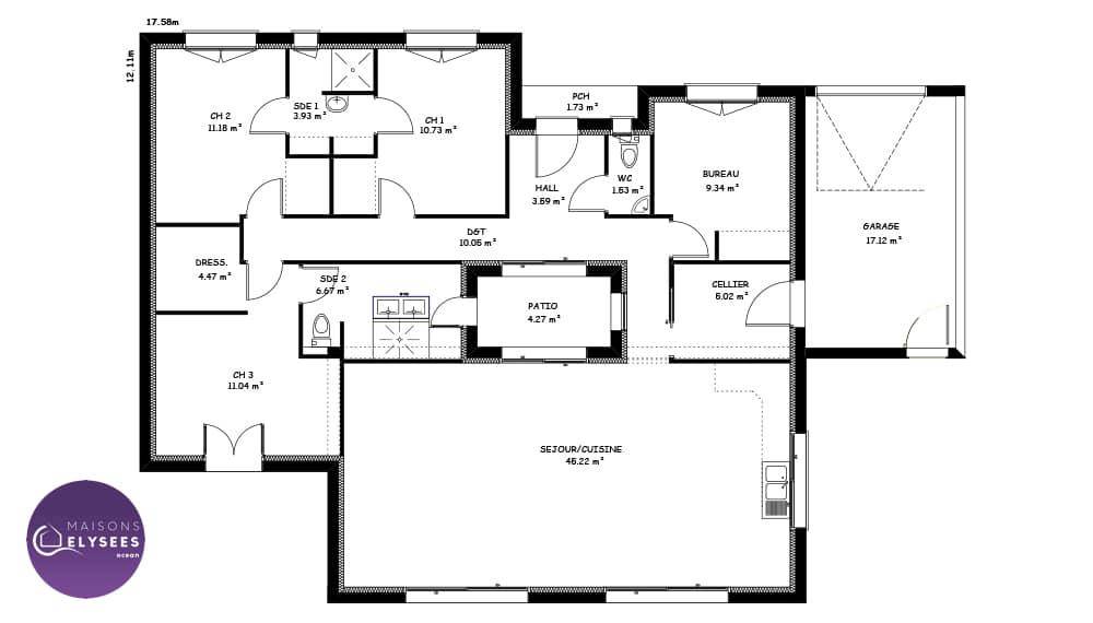
Sur ce terrain, nous vous proposons cette maison neuve, le modèle Dualium, conçue par Elysees Ocean, le constructeur avec les meilleurs avis clients de la profession. Cette maison de 105 m², basse consommation et conforme à la RE2020, est idéale pour ceux qui recherchent confort et modernité.
La Dualium se distingue par son architecture contemporaine et son bardage en bois, offrant une esthétique à la fois élégante et chaleureuse. Elle s'articule autour d'un patio généreux, véritable pièce supplémentaire où vous pourrez vous reposer ou méditer en toute tranquillité. Ce patio apporte de la transparence et de l'apaisement au cœur de la maison.
La maison dispose de 4 pièces, dont 3 chambres spacieuses, chacune équipée de sa propre salle d'eau, une option très demandée par nos clients. La cuisine, orientée à l'est, est baignée de lumière matinale, tandis que le séjour, orienté au sud, bénéficie d'un ensoleillement optimal tout au long de la journée. Les chambres, situées au nord, offrent un espace de repos frais et calme.
Un garage intégré complète cette maison, offrant un espace de stationnement pratique et sécurisé.
Ne manquez pas cette opportunité unique de devenir propriétaire d'une maison neuve, moderne et éco-responsable, conçue par Elysees Ocean. Contactez-nous dès maintenant pour plus d'informations et pour organiser une visite du terrain.
Logement susceptibles de vous intéresser
Nous vous proposons de découvrir aussi cette sélection de logements situés à moins de 10km de Saint-Laurent-de-la-Prée et qui seraient susceptibles de vous intéresser.
Yves
TERRAIN ET MAISONLumineuse ! Maison plain-pied 3 chambres dont une avec salle d’eau équipée avec une douche et un meuble vasque. Cette maison à partir de 87 m2 habitable vous procure une belle pièce de vie de 40 m2 orientée à l’avant. Cellier isolé attenant au garage de 16 m2. Grande cuisine ouverte sur la pièce de vie éclairée par une baie coulissante sur la façade. Vous accédez de votre cuisine sur une terrasse opposée au séjour. Orientation des chambres situées à l’arrière. Vous bénéficiez également d’une salle de bain équipée avec meuble vasque et baignoire. Carrelage grand format compris dans toute les pièces (hors chambres) et faïence au choix dans une large gamme disponible.Informations : Mathieu Dagusé au (Numéro supprimé).Prix incluant assurance dommages-ouvrage, VRD compris, terrain viabilisé, assainissement compris, frais de notaire non compris, taxes non comprises, frais divers non compris. Terrain sous réserve de disponibilité de notre partenaire foncier. Images non contractuelles.Cette annonce a été créée et diffusée avec le logiciel VITAHOME.
Yves
TERRAIN ET MAISONSpacieuse et lumineuse ! Cette maison en L à partir de 89 m2 habitable, vous offre une généreuse pièce de vie de 40 m2 avec cuisine ouverte sur salon et séjour, cellier isolé. Grande baie coulissante située sur l’arrière. Vous disposez de 3 chambres, dont une équipée avec un dressing ou une salle d’eau équipée avec douche et meuble vasque. Vous disposez également d’une salle de bain équipée avec meuble vasque, douche et/ou baignoire, sèche serviette. Garage attenant de 16 m2. Orientation cuisine salon séjour arrière. Carrelage grand format compris dans toute les pièces (hors chambres) et faïence au choix dans une large gamme disponible.Informations : Mathieu Dagusé au (Numéro supprimé).Prix incluant assurance dommages-ouvrage, VRD compris, terrain viabilisé, assainissement compris, frais de notaire non compris, taxes non comprises, frais divers non compris. Terrain sous réserve de disponibilité de notre partenaire foncier. Images non contractuelles.Cette annonce a été créée et diffusée avec le logiciel VITAHOME.
Yves
TERRAIN ET MAISONLa ligne EVOLUTION vous offre une maison plain-pied dès 93 m² habitables, pensée pour s’adapter à votre style de vie. Profitez d’une pièce de vie traversante à partir de 35m², baignée de lumière grâce à une grande baie vitrée, avec cuisine ouverte et cellier isolé pour plus de praticité. Ce modèle se compose de 4 chambres dont une suite parentale offrant confort et intimité. À l’extérieur, choisissez un garage, un préau ou un carport attenant d’une surface de 15m², parfait pour stationner ou profiter des beaux jours.Informations : Mathieu Dagusé au (Numéro supprimé).Prix incluant assurance dommages-ouvrage, VRD compris, terrain viabilisé, assainissement compris, frais de notaire non compris, taxes non comprises, frais divers non compris. Terrain sous réserve de disponibilité de notre partenaire foncier. Images non contractuelles.Cette annonce a été créée et diffusée avec le logiciel VITAHOME.
Yves
TERRAIN ET MAISONModulable à souhaits ! Votre maison plain-pied, 3 chambres, dont une équipée avec un dressing, et une salle d’eau équipée avec douche et meuble vasque. Disponible à partir de 89 m2 habitable. Porche d’entrée sur la façade avant. Belle pièce de vie de 40 m2 avec cuisine ouverte orientée sur la façade arrière, cellier isolé. Grande baie coulissante donnant sur la terrasse arrière. Vous disposez également d’une salle de bain équipée avec meuble vasque, et douche. Garage attenant de 17 m2. Orientation salon séjour traversant. Carrelage grand format compris dans toutes les pièces (hors chambres) et faïence au choix dans une large gamme disponible.Informations : Mathieu Dagusé au (Numéro supprimé).Prix incluant assurance dommages-ouvrage, VRD compris, terrain viabilisé, assainissement compris, frais de notaire non compris, taxes non comprises, frais divers non compris. Terrain sous réserve de disponibilité de notre partenaire foncier. Images non contractuelles.Cette annonce a été créée et diffusée avec le logiciel VITAHOME.
Yves
TERRAIN ET MAISONLa ligne EVOLUTION vous offre une maison plain-pied dès 71 m² habitables, pensée pour s’adapter à votre style de vie. Profitez d’une pièce de vie traversante à partir de 35m², baignée de lumière grâce à une grande baie vitrée, avec cuisine ouverte et cellier isolé pour plus de praticité. Ce modèle se compose de 2 chambres. À l’extérieur, choisissez un garage, un préau ou un carport attenant d’une surface de 15m², parfait pour stationner ou profiter des beaux jours.Informations : Mathieu Dagusé au (Numéro supprimé).Prix incluant assurance dommages-ouvrage, VRD compris, terrain viabilisé, assainissement compris, frais de notaire non compris, taxes non comprises, frais divers non compris. Terrain sous réserve de disponibilité de notre partenaire foncier. Images non contractuelles.Cette annonce a été créée et diffusée avec le logiciel VITAHOME.
Yves
TERRAIN ET MAISONClassique et fonctionnelle ! Votre maison plain-pied à partir de 90 m2 habitable vous apporte une grande pièce de vie de 45 m2 avec cellier isolé, cuisine et coin repas attenant. Salon indépendant. 2 grandes baies coulissantes exposées sur la terrasse arrière vous offrent luminosité et confort. Vous disposez de 3 chambres dont une située sur la façade arrière. La salle de bain est aménagée avec meuble 2 vasques, une grande douche et une baignoire. Garage attenant de 16 m2. Orientation salon et pièce de vie principale exposées sur la terrasse à l’arrière. Carrelage grand format compris dans toute les pièces (hors chambres) et faïence au choix dans une large gamme disponible.Informations : Mathieu Dagusé au (Numéro supprimé).Prix incluant assurance dommages-ouvrage, VRD compris, terrain viabilisé, assainissement compris, frais de notaire non compris, taxes non comprises, frais divers non compris. Terrain sous réserve de disponibilité de notre partenaire foncier. Images non contractuelles.Cette annonce a été créée et diffusée avec le logiciel VITAHOME.
Yves
TERRAIN ET MAISONLa ligne EVOLUTION vous offre une maison plain-pied dès 79 m² habitables, pensée pour s’adapter à votre style de vie. Profitez d’une pièce de vie traversante à partir de 35m², baignée de lumière grâce à une grande baie vitrée, avec cuisine ouverte et cellier isolé pour plus de praticité. Ce modèle se compose de 3 chambres. À l’extérieur, choisissez un garage, un préau ou un carport attenant d’une surface de 15m², parfait pour stationner ou profiter des beaux jours.Informations : Mathieu Dagusé au (Numéro supprimé).Prix incluant assurance dommages-ouvrage, VRD compris, terrain viabilisé, assainissement compris, frais de notaire non compris, taxes non comprises, frais divers non compris. Terrain sous réserve de disponibilité de notre partenaire foncier. Images non contractuelles.Cette annonce a été créée et diffusée avec le logiciel VITAHOME.
Yves
TERRAIN ET MAISONLa ligne EVOLUTION vous offre une maison plain-pied dès 89 m² habitables, pensée pour s’adapter à votre style de vie. Profitez d’une pièce de vie traversante à partir de 35m², baignée de lumière grâce à une grande baie vitrée, avec cuisine ouverte et cellier isolé pour plus de praticité. Ce modèle se compose de 3 chambres. À l’extérieur, choisissez un garage, un préau ou un carport attenant d’une surface de 15m², parfait pour stationner ou profiter des beaux jours.Informations : Mathieu Dagusé au (Numéro supprimé).Prix incluant assurance dommages-ouvrage, VRD compris, terrain viabilisé, assainissement compris, frais de notaire non compris, taxes non comprises, frais divers non compris. Terrain sous réserve de disponibilité de notre partenaire foncier. Images non contractuelles.Cette annonce a été créée et diffusée avec le logiciel VITAHOME.
Saint-Nazaire-sur-Charente
TERRAINTerrains viabilisés de 217m² à 788 m², VUE MER, libres de constructeur sur la commune de Saint-Nazaire-sur-Charente, en Charente-Maritime.Découvrez notre nouvelle opération « La Bernardière » située chemin de la Bernardière.Idéalement située en bord de mer à proximité de La Rochelle, Autoroute A837 accessible en moins de 10 minutes. Les amateurs de sports nautiques, de voile et de pêche trouveront leur bonheur dans cette région dynamique, où les loisirs liés à la mer sont à portée de main.Retrouvez l’ensemble de nos lots disponibles sur notre site internet.
L’actualité immobilière à Saint-Laurent-de-la-Prée
27/11/2023
02/11/2023
30/10/2023
20/10/2023
16/10/2023
16/10/2023