Maison à construire à Saint-Palais-sur-Mer (17420)
Images
Description
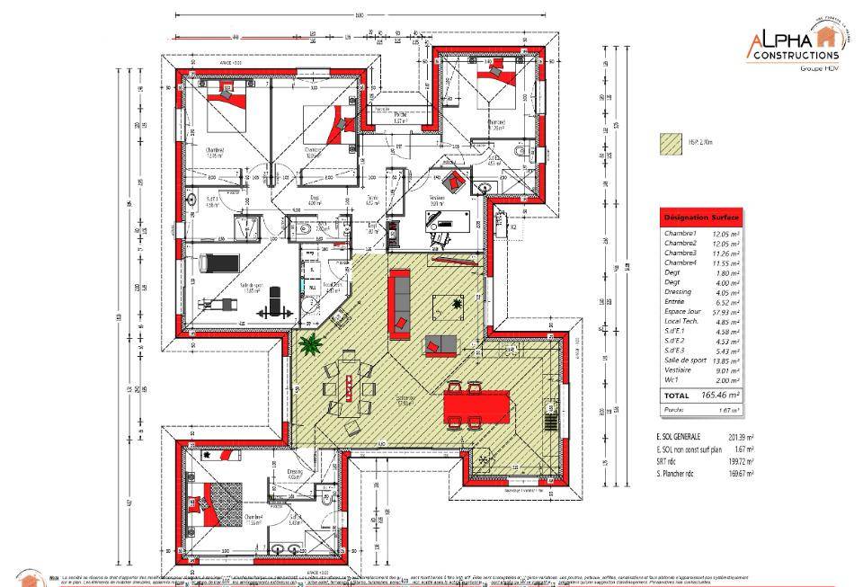
Etienne NEAU conseiller chez Alpha Constructions vous propose de découvrir cette superbe maison contemporaine de 165 m², pensée pour offrir un cadre de vie à la fois convivial, lumineux et fonctionnel. Sa conception en forme de L crée une parfaite harmonie entre les espaces de vie et les espaces nuit, tout en ouvrant largement la maison sur son extérieur. Dès l'entrée, le ton est donné : une vaste pièce de vie de près de 48 m², baignée de lumière, accueille un salon chaleureux et une cuisine moderne avec salle à manger. L'ensemble s'ouvre sur la terrasse, idéale pour profiter des beaux jours. Côté nuit, la maison propose quatre chambres spacieuses, dont une suite parentale avec dressing et salle d'eau privative, garantissant intimité et confort. Une salle de sport, un vestiaire, ainsi qu'un cellier fonctionnel complètent l'agencement haut de gamme de ce bien. Les prestations sont au rendez-vous : volumes généreux, circulation fluide, rangements optimisés et finitions soignées. Chaque détail a été imaginé pour conjuguer esthétique, confort et praticité au quotidien. Que vous recherchiez une résidence principale élégante ou une maison familiale haut de gamme, ce bien saura répondre à toutes vos attentes.
📍 Surface habitable : 165 m²
🛏 4 chambres dont suite parentale
🛋 Grande pièce de vie ouverte et lumineuse
🏋 Salle de sport et dressing
🚿 2 salles d'eau et 2 WC
🌿 Architecture contemporaine et harmonieuse
Retrouvez moi, directement en agence à Royan ou par téléphone au (Numéro supprimé) Alpha Constructions vous accompagne dans toutes vos démarches et à toutes les étapes de votre projet.
Logement susceptibles de vous intéresser
Nous vous proposons de découvrir aussi cette sélection de logements situés à moins de 10km de Saint-Palais-sur-Mer et qui seraient susceptibles de vous intéresser.
Saint-Augustin
TERRAINEtienne NEAU, conseiller chez Alpha Constructions vous propose de découvrir ce charmant terrain à vendre à Saint-Augustin, charmante commune idéalement située entre Royan et La Tremblade, découvrez ce magnifique terrain à bâtir offrant un cadre de vie paisible et verdoyant. Niché au coeur d’un environnement calme, il constitue l’endroit parfait pour réaliser votre projet de construction et profiter pleinement de la douceur de vivre de la côte charentaise. La commune de Saint-Augustin séduit par son atmosphère conviviale et son emplacement privilégié, à seulement quelques minutes des plages, des commerces et des écoles. Vous y trouverez un équilibre rare entre nature, confort et proximité des lieux de vie essentiels. Ce terrain, non viabilisé de 446m² à 107 000€ vous permettra de donner vie à la maison qui vous ressemble, dans un cadre privilégié où sérénité et authenticité se rencontrent. C’est une belle opportunité pour celles et ceux qui rêvent de s’installer dans un village recherché, tout près de l’océan. N’attendez plus pour venir le découvrir et imaginer votre futur chez-vous.Prenez contact avec Etienne NEAU ((Numéro supprimé)) pour tout renseignement sur le terrain. Retrouvez-moi, directement en agence à Royan ou par téléphone au (Numéro supprimé) Alpha Constructions vous accompagne dans toutes vos démarches et à toutes les étapes de votre projet.
Saint-Sulpice-de-Royan
TERRAINEtienne NEAU, conseiller chez Alpha Constructions vous propose découvrir une adresse rare au coeur d’un environnement préservé. Situé sur la commune prisée de Saint-Sulpice-de-Royan, ce terrain non viabilisé de 1 454 m² offre un cadre de vie unique, à quelques minutes seulement de Royan et du littoral atlantique. Son emplacement privilégié, dans un secteur calme et verdoyant, séduit par son équilibre parfait entre élégance, sérénité et proximité des commerces, écoles et plages. Vous pourrez y imaginer une résidence sur mesure, baignée de lumière, pensée pour le confort et le bien-être au quotidien. Avec ses volumes généreux et son orientation idéale, ce terrain permet la création d’un projet haut de gamme, à l’image de vos envies.💰 Prix : 312 610 € (hors frais annexes)📍 Saint-Sulpice-de-Royan – un cadre de vie recherché, à deux pas de Royan.Un lieu d’exception pour une maison d’exception.Prenez contact avec Etienne NEAU ((Numéro supprimé)) pour tout renseignement sur le terrain. Retrouvez-moi, directement en agence à Royan ou par téléphone au (Numéro supprimé) Alpha Constructions vous accompagne dans toutes vos démarches et à toutes les étapes de votre projet.
Saint-Augustin
TERRAIN ET MAISONEtienne NEAU conseiller chez Alpha Constructions vous propose de découvrir tout le charme de notre modèle OPTICA, une maison contemporaine à l’architecture sobre et élégante, conçue pour offrir un espace de vie raffiné et parfaitement optimisé. Dès l’entrée, vous serez séduit par une pièce de vie baignée de lumière grâce à ses larges ouvertures et son exposition idéale. La cuisine ouverte s’intègre harmonieusement à un salon-séjour convivial de plus de 30 m², invitant au partage et à la détente. Côté nuit, deux chambres lumineuses, une salle d’eau moderne et des rangements bien pensés assurent un quotidien fonctionnel et apaisant. Chaque mètre carré a été étudié pour offrir une circulation fluide, un maximum de lumière naturelle et une sensation d’espace remarquable. Économe en énergie, respectueuse des dernières normes environnementales, la maison OPTICA combine design, confort et performance dans un écrin contemporain.Retrouvez moi, directement en agence à Royan ou par téléphone au (Numéro supprimé) Alpha Constructions vous accompagne dans toutes vos démarches et à toutes les étapes de votre projet.
Saint-Sulpice-de-Royan
TERRAIN ET MAISONEtienne NEAU conseiller chez Alpha Constructions vous propose de découvrir tout le charme de notre modèle OPTICA, une maison contemporaine à l’architecture sobre et élégante, conçue pour offrir un espace de vie raffiné et parfaitement optimisé. Dès l’entrée, vous serez séduit par une pièce de vie baignée de lumière grâce à ses larges ouvertures et son exposition idéale. La cuisine ouverte s’intègre harmonieusement à un salon-séjour convivial de plus de 30 m², invitant au partage et à la détente. Côté nuit, deux chambres lumineuses, une salle d’eau moderne et des rangements bien pensés assurent un quotidien fonctionnel et apaisant. Chaque mètre carré a été étudié pour offrir une circulation fluide, un maximum de lumière naturelle et une sensation d’espace remarquable. Économe en énergie, respectueuse des dernières normes environnementales, la maison OPTICA combine design, confort et performance dans un écrin contemporain.Retrouvez moi, directement en agence à Royan ou par téléphone au (Numéro supprimé) Alpha Constructions vous accompagne dans toutes vos démarches et à toutes les étapes de votre projet.
Saint-Palais-sur-Mer
TERRAIN ET MAISONEtienne NEAU conseiller chez Alpha Constructions vous propose cette belle maison de 85 m², avec garage intégré. Parfaite pour une famille, cette maison possède son coin nuit comprenant, 3 chambres une salle de bain ainsi que son WC. Vous aurez également une belle pièce de vie avec la cuisine ouverte sur le salon et son cellier attenant.Retrouvez moi, directement en agence à Royan ou par téléphone au (Numéro supprimé) Alpha Constructions vous accompagne dans toutes vos démarches et à toutes les étapes de votre projet.
Saint-Sulpice-de-Royan
TERRAIN ET MAISONEtienne NEAU conseiller chez Alpha Constructions vous propose de découvrir cette superbe maison contemporaine de 165 m², pensée pour offrir un cadre de vie à la fois convivial, lumineux et fonctionnel. Sa conception en forme de L crée une parfaite harmonie entre les espaces de vie et les espaces nuit, tout en ouvrant largement la maison sur son extérieur. Dès l’entrée, le ton est donné : une vaste pièce de vie de près de 48 m², baignée de lumière, accueille un salon chaleureux et une cuisine moderne avec salle à manger. L’ensemble s’ouvre sur la terrasse, idéale pour profiter des beaux jours. Côté nuit, la maison propose quatre chambres spacieuses, dont une suite parentale avec dressing et salle d’eau privative, garantissant intimité et confort. Une salle de sport, un vestiaire, ainsi qu’un cellier fonctionnel complètent l’agencement haut de gamme de ce bien. Les prestations sont au rendez-vous : volumes généreux, circulation fluide, rangements optimisés et finitions soignées. Chaque détail a été imaginé pour conjuguer esthétique, confort et praticité au quotidien. Que vous recherchiez une résidence principale élégante ou une maison familiale haut de gamme, ce bien saura répondre à toutes vos attentes.📍 Surface habitable : 165 m²🛏 4 chambres dont suite parentale🛋 Grande pièce de vie ouverte et lumineuse🏋 Salle de sport et dressing🚿 2 salles d’eau et 2 WC🌿 Architecture contemporaine et harmonieuseRetrouvez moi, directement en agence à Royan ou par téléphone au (Numéro supprimé) Alpha Constructions vous accompagne dans toutes vos démarches et à toutes les étapes de votre projet.
Saint-Palais-sur-Mer
TERRAIN ET MAISONEtienne NEAU conseiller chez Alpha Constructions vous propose de découvrir cette superbe maison contemporaine de 165 m², pensée pour offrir un cadre de vie à la fois convivial, lumineux et fonctionnel. Sa conception en forme de L crée une parfaite harmonie entre les espaces de vie et les espaces nuit, tout en ouvrant largement la maison sur son extérieur. Dès l’entrée, le ton est donné : une vaste pièce de vie de près de 48 m², baignée de lumière, accueille un salon chaleureux et une cuisine moderne avec salle à manger. L’ensemble s’ouvre sur la terrasse, idéale pour profiter des beaux jours. Côté nuit, la maison propose quatre chambres spacieuses, dont une suite parentale avec dressing et salle d’eau privative, garantissant intimité et confort. Une salle de sport, un vestiaire, ainsi qu’un cellier fonctionnel complètent l’agencement haut de gamme de ce bien. Les prestations sont au rendez-vous : volumes généreux, circulation fluide, rangements optimisés et finitions soignées. Chaque détail a été imaginé pour conjuguer esthétique, confort et praticité au quotidien. Que vous recherchiez une résidence principale élégante ou une maison familiale haut de gamme, ce bien saura répondre à toutes vos attentes.📍 Surface habitable : 165 m²🛏 4 chambres dont suite parentale🛋 Grande pièce de vie ouverte et lumineuse🏋 Salle de sport et dressing🚿 2 salles d’eau et 2 WC🌿 Architecture contemporaine et harmonieuseRetrouvez moi, directement en agence à Royan ou par téléphone au (Numéro supprimé) Alpha Constructions vous accompagne dans toutes vos démarches et à toutes les étapes de votre projet.
Royan
TERRAIN ET MAISONVéronique CANTEAU des maisons MCA de Royan, vous propose d’adapter le modèle Paradis sur ce terrain de 311 m2, idéalement situé sur la commune de Royan à proximité des commerces et à 5 minutes des plages.Cette maison est composée d’un espace à vivre d’environ 37 m2, avec cuisine ouverte et cellier attenant. L’espace nuit est composé de 3 chambres, une salle de bains et WC séparés. Cette maison est entièrement personnalisable pour s’adapter à votre mode de vie, idéale pour un premier achat ou un investissement locatif.Le prix affiché comprend le terrain, les frais de notaire, et cette maison livrée prête à décorer.Contactez vite votre conseillère Véronique CANTEAU au (Numéro supprimé) à l’agence MCA de Royan, afin qu’elle vous guide dans les démarches et vous accompagne dans ce projet de construction personnalisé, aux normes RE2020.
Royan
TERRAIN ET MAISONVéronique CANTEAU des maisons MCA de Royan, vous propose d’adapter le modèle LYS 49 sur ce terrain d’environ 310 m2, idéalement situé sur la commune de Royan.Cette maison est composée d’une pièce de vie lumineuse d’environ 24 m2, avec cuisine ouverte. L’espace nuit est composé de 2 chambres, une salle de bains avec WC. Un grand garage vient compléter l’ensemble.Ce modèle est entièrement personnalisable pour s’adapter à votre mode de vie, idéal pour un premier achat ou un investissement locatif. Vous préférez une seule chambre et agrandir la pièce de vie ? Vous souhaitez revoir l’agencement d’une pièce ? C’est possible car ce modèle est 100% personnalisable !Le prix affiché comprend le terrain, les frais de notaire, et cette maison livrée prête à décorer.Contactez vite votre conseillère Véronique CANTEAU au (Numéro supprimé) à l’agence MCA de Royan, afin qu’elle vous guide dans les démarches et vous accompagne dans ce projet de construction personnalisé, aux normes RE2020.
L’actualité immobilière à Saint-Palais-sur-Mer
27/11/2023
02/11/2023
30/10/2023
20/10/2023
16/10/2023
16/10/2023