Images
Description
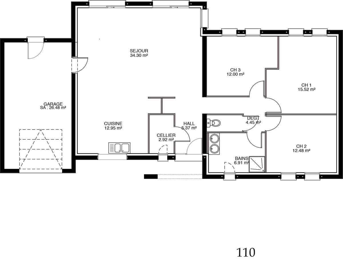
Sur ce terrain, nous vous proposons cette maison neuve : la Blainium, une maison résolument moderne et très singulière.
La Blainium, une maison de plain-pied contemporaine, propose une façade très stylée et originale avec ses jeux de toiture et de façades. Par ailleurs, ses grandes fenêtres laissent entrer généreusement la lumière extérieure. Cette demeure est disponible en plusieurs variantes, dans des dimensions allant de 85 à 125 m². En configuration 3 ou 4 chambres, avec ou sans bureau, dressing, salle d'eau privative, notre seule limite c'est votre imagination.
Avec une surface de 110 m², cette maison dispose de 3 chambres et de 4 pièces. En partie jour, vous disposerez d’un hall d'entrée qui donne sur un vaste séjour, une cuisine ouverte qui se prête à accueillir un grand îlot central, et un cellier. Le garage pratique d'accès est accolé. Parmi les caractéristiques principales, vous trouverez un toit plat, un garage accolé, un dressing et une suite parentale.
Les options les plus demandées par nos clients sont également disponibles : menuiseries en aluminium, enduit bi-ton, plancher chauffant et double garage.
Cette maison neuve est basse consommation et conforme à la RE2020, vous garantissant ainsi une habitation éco-responsable et économique.
Maisons Privat, constructeur centenaire avec les meilleurs avis clients de la région, vous permet de vivre votre rêve dans une maison unique. Posséder une maison neuve exceptionnelle n'a jamais été aussi accessible.
La Blainium permet de vivre son rêve dans une maison unique. Cette habitation vous permettra de réaliser votre rêve : posséder une maison neuve exceptionnelle.
Logement susceptibles de vous intéresser
Nous vous proposons de découvrir aussi cette sélection de logements situés à moins de 10km de Surgères et qui seraient susceptibles de vous intéresser.
Surgères
TERRAINA 5 minutes de la gare TGV et 10 minutes à pied du centre ville. Terrain viabilisé eau et électricité, hors lotissement et libre de constructeur. Son exposition et son emplacement sont idéals et laissent de grandes possibilités au projet de construction. Les honoraires d’agence sont à la charge de l’acquéreur, soit 8,24% TTC du prix hors honoraires.Les informations sur les risques auxquels ce bien est exposé sont disponibles sur le site Géorisques : www. georisques. gouv. fr.Réseau Immobilier CAPIFRANCE – Votre agent commercial (RSAC N(Numéro supprimé) – Greffe de LA ROCHELLE) Audrey LEVEQUE Entrepreneur Individuel (Numéro supprimé) – Réf.929463
Surgères
TERRAINNous avons le plaisir de vous proposer à la vente ce terrain d’une superficie de 325 m², idéalement situé en plein cœur de la charmante commune de Surgères. Ce terrain, déjà viabilisé, constitue une toile vierge parfaite pour votre futur projet de construction de maison. Bénéficiant d’un emplacement de choix, proche de la gare, ce terrain permet un accès facile aux grandes villes environnantes tout en offrant une ambiance paisible il saura séduire les amateurs de tranquillité tout en restant à proximité des commodités nécessaires au quotidien. À noter qu’en tant que constructeur, nous ne sommes pas mandatés pour réaliser la vente de ce terrain.
Surgères
TERRAIN ET MAISONSur ce terrain, nous vous proposons cette maison de plain-pied au design contemporain, idéale pour un confort de vie au quotidien. Ses deux chambres offrent un espace nuit cosy, tandis que la vaste pièce de vie de plus de 35 m² réunit cuisine ouverte, salle à manger et salon, baignés de lumière naturelle. Vous profiterez également d’une salle d’eau moderne et d’un WC indépendant, pensés pour simplifier votre quotidien.Le garage de plus de 20 m² constitue un atout majeur pour stationner votre véhicule en toute sécurité ou aménager un espace de bricolage. Son architecture élégante, soulignée par une toiture à double pente, s’intègre harmonieusement à l’environnement. Ne manquez pas cette belle opportunité?: chaque détail a été soigneusement étudié pour vous garantir une qualité de vie incomparable.
Surgères
TERRAINFRAIS DE NOTAIRE OFFERT !!!! Nous avons le plaisir de vous proposer à la vente ce terrain d’une superficie de 431 m², idéalement situé en plein cœur de la charmante commune de Surgères. Ce terrain, déjà viabilisé, constitue une toile vierge parfaite pour votre futur projet de construction de maison. Bénéficiant d’un emplacement de choix, proche de la gare, ce terrain permet un accès facile aux grandes villes environnantes tout en offrant une ambiance paisible il saura séduire les amateurs de tranquillité tout en restant à proximité des commodités nécessaires au quotidien. À noter qu’en tant que constructeur, nous ne sommes pas mandatés pour réaliser la vente de ce terrain.
Surgères
TERRAIN ET MAISONSur ce terrain, nous vous proposons cette maison neuve : la Blainium, une maison résolument moderne et très singulière. La Blainium, une maison de plain-pied contemporaine, propose une façade très stylée et originale avec ses jeux de toiture et de façades. Par ailleurs, ses grandes fenêtres laissent entrer généreusement la lumière extérieure. Cette demeure est disponible en plusieurs variantes, dans des dimensions allant de 85 à 125 m². En configuration 3 ou 4 chambres, avec ou sans bureau, dressing, salle d’eau privative, notre seule limite c’est votre imagination.Avec une surface de 110 m², cette maison dispose de 3 chambres et de 4 pièces. En partie jour, vous disposerez d’un hall d’entrée qui donne sur un vaste séjour, une cuisine ouverte qui se prête à accueillir un grand îlot central, et un cellier. Le garage pratique d’accès est accolé. Parmi les caractéristiques principales, vous trouverez un toit plat, un garage accolé, un dressing et une suite parentale.Les options les plus demandées par nos clients sont également disponibles : menuiseries en aluminium, enduit bi-ton, plancher chauffant et double garage. Cette maison neuve est basse consommation et conforme à la RE2020, vous garantissant ainsi une habitation éco-responsable et économique.Maisons Privat, constructeur centenaire avec les meilleurs avis clients de la région, vous permet de vivre votre rêve dans une maison unique. Posséder une maison neuve exceptionnelle n’a jamais été aussi accessible. La Blainium permet de vivre son rêve dans une maison unique. Cette habitation vous permettra de réaliser votre rêve : posséder une maison neuve exceptionnelle.
Saint-Saturnin-du-Bois
TERRAIN ET MAISONSur ce terrain, nous vous proposons cette maison neuve, modèle Golf, conçue par Elysees Ocean, le constructeur aux meilleurs avis clients de la profession. Avec une surface de 142 m², cette maison cubique et design est idéale pour une petite famille.Avec son architecture ciselée, cette maison réjouit les amateurs de lignes contemporaines harmonieuses. Ses grandes pièces et ses baies vitrées orientées au Sud apportent beaucoup de confort et d’économies d’énergie à ses habitants. La maison dispose de 4 chambres et de 4 pièces, dont une suite parentale, offrant ainsi un espace de vie généreux et fonctionnel.Les options les plus demandées par nos clients, telles que les menuiseries en aluminium, sont également disponibles pour cette maison. De plus, cette construction neuve est basse consommation et conforme à la réglementation environnementale RE2020, garantissant ainsi une performance énergétique optimale et un respect de l’environnement.Ne manquez pas cette opportunité unique de vivre dans une maison moderne, lumineuse et économe en énergie, sur un terrain étroit avec une entrée Est ou Ouest. Contactez-nous dès maintenant pour plus d’informations et pour découvrir cette maison exceptionnelle.
Saint-Saturnin-du-Bois
TERRAINDécouvrez une opportunité rare d’acquérir un terrain de 1300 m², situé dans la charmante commune de Saint-Saturnin-du-Bois, dans le département de la Charente-Maritime. Ce terrain non viabilisé, bercé par un cadre champêtre et au calme, est idéal pour concrétiser votre projet de construction de maison. Sa surface généreuse vous offre de multiples possibilités pour réaliser la demeure de vos rêves, tout en profitant de la qualité de vie que cette ville pittoresque a à offrir. Saint-Saturnin-du-Bois, en Nouvelle-Aquitaine, se distingue par son ambiance rurale et son art de vivre authentique. Cette petite commune est entourée de paysages verdoyants, propices aux promenades et aux activités en plein air. Vous y trouverez des commodités essentielles à proximité, ainsi que des attractions locales qui enrichissent la vie quotidienne. Bénéficiez d’un cadre idéal pour établir votre foyer, tout en profitant de la tranquillité d’une région au charme indéniable. Ne manquez pas cette occasion unique de posséder un terrain avec un potentiel immense dans un environnement paisible. Nous vous invitons à envisager cette offre, qui saura séduire les acheteurs en quête de sérénité. À noter qu’en tant que constructeur, nous ne sommes pas mandatés pour réaliser la vente de ce terrain.
Landrais
TERRAIN ET MAISONSur ce terrain, nous vous proposons cette maison neuve, la Dompierre, conçue par le constructeur Elysees Ocean, reconnu pour ses excellents avis clients. Cette maison de 120 m², basse consommation et conforme à la RE2020, est idéale pour les familles à la recherche de confort et de modernité.La Dompierre se distingue par son architecture contemporaine de standing, articulée autour d’un mur rideau de plus de 30 m² orienté plein sud. Ce mur rideau illumine le séjour au rez-de-chaussée et une grande mezzanine-bureau à l’étage, offrant un volume étendu et harmonieux à la pièce à vivre. Vous aurez l’impression que l’intérieur et l’extérieur de la maison ne font qu’un.Le confort d’été est assuré par un brise-soleil vertical sur la partie haute et horizontal pour les vantaux coulissants du rez-de-chaussée, ainsi que des vitrages auto-nettoyants et performants sur le plan thermique. Une petite terrasse privative se love à l’arrière de la maison entre la cuisine et la salle de bain parentale, offrant un espace protégé pour les déjeuners et après-midis d’été.La maison dispose de 4 chambres, dont une suite parentale, et de 4 pièces principales. L’escalier luxueux de la collection Plénitude ajoute une touche d’élégance à l’intérieur. Un garage accolé complète les prestations de cette maison.Les options les plus demandées par nos clients, telles que le bardage Vibrato et les menuiseries en aluminium, sont également disponibles pour personnaliser votre future maison.Ne manquez pas cette opportunité unique de devenir propriétaire d’une maison neuve, moderne et économe en énergie, conçue par Elysees Ocean, le constructeur de confiance.
Landrais
TERRAINDécouvrez ce terrain exceptionnel de 603 m², niché dans la charmante ville de Landrais, en Charente-Maritime. Ce bien unique saura séduire les acheteurs potentiels par sa tranquillité, son cadre champêtre et son ensoleillement optimal. Idéalement situé, ce terrain offre de multiples opportunités pour un projet de construction de maison, permettant ainsi à chacun de dessiner l’espace de vie de ses rêves dans un environnement paisible et sécurisé. Landrais, une perle de la Nouvelle-Aquitaine, se distingue par son atmosphère conviviale et ses attraits locaux. À proximité, vous pourrez profiter de toutes les commodités nécessaires au quotidien ainsi que de magnifiques espaces naturels à explorer. Ce secteur est réputé pour son ambiance agréable et sa qualité de vie, vous permettant de bénéficier d’un cadre idyllique tout en étant proche des services et des activités locales. C’est l’endroit parfait pour allier tranquillité et vie active. Ne manquez pas l’opportunité d’acquérir ce terrain au potentiel exceptionnel et envisagez dès maintenant la réalisation de votre projet de vie. Contactez-nous pour plus d’informations ! À noter qu’en tant que constructeur, nous ne sommes pas mandatés pour réaliser la vente de ce terrain.
L’actualité immobilière à Surgères
27/11/2023
02/11/2023
30/10/2023
20/10/2023
16/10/2023
16/10/2023