Images
Description
Sur ce terrain, nous vous proposons cette maison neuve : la Blainium, une maison résolument moderne et très singulière.
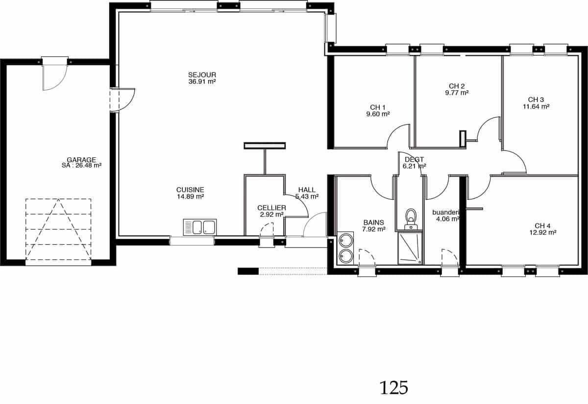
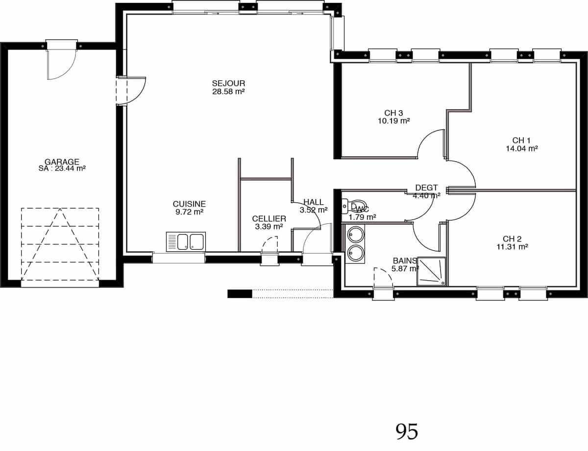
La Blainium, une maison de plain-pied contemporaine, propose une façade très stylée et originale avec ses jeux de toiture et de façades. Par ailleurs, ses grandes fenêtres laissent entrer généreusement la lumière extérieure. Cette demeure est disponible en plusieurs variantes, dans des dimensions allant de 85 à 125 m². En configuration 3 ou 4 chambres, avec ou sans bureau, dressing, salle d'eau privative, notre seule limite c'est votre imagination.
Avec une surface de 110 m², cette maison dispose de 3 chambres et de 4 pièces. En partie jour, vous disposerez d’un hall d'entrée qui donne sur un vaste séjour, une cuisine ouverte qui se prête à accueillir un grand îlot central, et un cellier. Le garage pratique d'accès est accolé. Parmi les caractéristiques principales, vous trouverez un toit plat, un garage accolé, un dressing et une suite parentale.
Les options les plus demandées par nos clients sont également disponibles : menuiseries en aluminium, enduit bi-ton, plancher chauffant et double garage.
Cette maison neuve est basse consommation et conforme à la RE2020, vous garantissant ainsi une habitation éco-responsable et économique.
Maisons Privat, constructeur centenaire avec les meilleurs avis clients de la région, vous permet de vivre votre rêve dans une maison unique. Posséder une maison neuve exceptionnelle n'a jamais été aussi accessible.
La Blainium permet de vivre son rêve dans une maison unique. Cette habitation vous permettra de réaliser votre rêve : posséder une maison neuve exceptionnelle.
Logement susceptibles de vous intéresser
Nous vous proposons de découvrir aussi cette sélection de logements situés à moins de 10km de Vouhé et qui seraient susceptibles de vous intéresser.
Benon
TERRAIN25 mn LA ROCHELLE – Terrain à bâtir situé dans un environnement très calme et résidentiel sans vis à vis – Toute viabilité sur rue –
Benon
TERRAIN ET MAISONSur ce terrain, nous vous proposons cette superbe maison de plain-pied, alliant confort, modernité et praticité, idéale pour une famille en quête de bien-être.Avec son agencement optimisé, cette maison vous offre une spacieuse pièce de vie baignée de lumière naturelle, comprenant un séjour convivial et une cuisine ouverte fonctionnelle, parfaite pour des moments en famille ou entre amis.L’espace nuit se compose de trois belles chambres offrant confort et sérénité, d’une salle d’eau moderne et de WC séparés pour plus de praticité.Un garage intégré vient compléter ce bien, idéal pour stationner un véhicule ou disposer d’un espace de rangement supplémentaire.
Anais
TERRAIN ET MAISONLa ligne EVOLUTION vous offre une maison plain-pied dès 93 m² habitables, pensée pour s’adapter à votre style de vie. Profitez d’une pièce de vie traversante à partir de 35m², baignée de lumière grâce à une grande baie vitrée, avec cuisine ouverte et cellier isolé pour plus de praticité. Ce modèle se compose de 4 chambres dont une suite parentale offrant confort et intimité. À l’extérieur, choisissez un garage, un préau ou un carport attenant d’une surface de 15m², parfait pour stationner ou profiter des beaux jours.Informations : Mathieu Blay au (Numéro supprimé).Prix incluant assurance dommages-ouvrage, VRD compris, terrain viabilisé, assainissement compris, frais de notaire non compris, taxes non comprises, frais divers non compris. Terrain sous réserve de disponibilité de notre partenaire foncier. Images non contractuelles.Cette annonce a été créée et diffusée avec le logiciel VITAHOME.
Bouhet
TERRAIN ET MAISONLa ligne EVOLUTION vous offre une maison plain-pied dès 93 m² habitables, pensée pour s’adapter à votre style de vie. Profitez d’une pièce de vie traversante à partir de 35m², baignée de lumière grâce à une grande baie vitrée, avec cuisine ouverte et cellier isolé pour plus de praticité. Ce modèle se compose de 4 chambres dont une suite parentale offrant confort et intimité. À l’extérieur, choisissez un garage, un préau ou un carport attenant d’une surface de 15m², parfait pour stationner ou profiter des beaux jours.Informations du terrain : Terrain facile d'accès et idéale pour l'implantation de la maisonInformations : Mathieu Blay au (Numéro supprimé).Prix incluant assurance dommages-ouvrage, VRD compris, terrain viabilisé, assainissement compris, frais de notaire non compris, taxes non comprises, frais divers non compris. Terrain sous réserve de disponibilité de notre partenaire foncier. Images non contractuelles.Cette annonce a été créée et diffusée avec le logiciel VITAHOME.
Ferrières
TERRAIN ET MAISONLa ligne EVOLUTION vous offre une maison plain-pied dès 93 m² habitables, pensée pour s’adapter à votre style de vie. Profitez d’une pièce de vie traversante à partir de 35m², baignée de lumière grâce à une grande baie vitrée, avec cuisine ouverte et cellier isolé pour plus de praticité. Ce modèle se compose de 4 chambres dont une suite parentale offrant confort et intimité. À l’extérieur, choisissez un garage, un préau ou un carport attenant d’une surface de 15m², parfait pour stationner ou profiter des beaux jours.Informations du terrain : Terrain proche de tout commerces et qui donne un accès simple pour la voie rapide reliant La Rochelle à Niort.Informations : Mathieu Blay au (Numéro supprimé).Prix incluant assurance dommages-ouvrage, VRD compris, terrain viabilisé, assainissement compris, frais de notaire non compris, taxes non comprises, frais divers non compris. Terrain sous réserve de disponibilité de notre partenaire foncier. Images non contractuelles.Cette annonce a été créée et diffusée avec le logiciel VITAHOME.
Ferrières
TERRAIN ET MAISONLa ligne EVOLUTION vous offre une maison plain-pied dès 93 m² habitables, pensée pour s’adapter à votre style de vie. Profitez d’une pièce de vie traversante à partir de 35m², baignée de lumière grâce à une grande baie vitrée, avec cuisine ouverte et cellier isolé pour plus de praticité. Ce modèle se compose de 4 chambres dont une suite parentale offrant confort et intimité. À l’extérieur, choisissez un garage, un préau ou un carport attenant d’une surface de 15m², parfait pour stationner ou profiter des beaux jours.Informations : Mathieu Dagusé au (Numéro supprimé).Prix incluant assurance dommages-ouvrage, VRD compris, terrain viabilisé, assainissement compris, frais de notaire non compris, taxes non comprises, frais divers non compris. Terrain sous réserve de disponibilité de notre partenaire foncier. Images non contractuelles.Cette annonce a été créée et diffusée avec le logiciel VITAHOME.
Forges
TERRAIN ET MAISONLa ligne EVOLUTION vous offre une maison plain-pied dès 93 m² habitables, pensée pour s’adapter à votre style de vie. Profitez d’une pièce de vie traversante à partir de 35m², baignée de lumière grâce à une grande baie vitrée, avec cuisine ouverte et cellier isolé pour plus de praticité. Ce modèle se compose de 4 chambres dont une suite parentale offrant confort et intimité. À l’extérieur, choisissez un garage, un préau ou un carport attenant d’une surface de 15m², parfait pour stationner ou profiter des beaux jours.Informations du terrain : Terrain disponible dans ce nouveau lotissement à Forges idéalement situé, proche de tout commerces.Informations : Mathieu Blay au (Numéro supprimé).Prix incluant assurance dommages-ouvrage, VRD compris, terrain viabilisé, assainissement compris, frais de notaire non compris, taxes non comprises, frais divers non compris. Terrain sous réserve de disponibilité de notre partenaire foncier. Images non contractuelles.Cette annonce a été créée et diffusée avec le logiciel VITAHOME.
Forges
TERRAIN ET MAISONLa ligne EVOLUTION vous offre une maison plain-pied dès 93 m² habitables, pensée pour s’adapter à votre style de vie. Profitez d’une pièce de vie traversante à partir de 35m², baignée de lumière grâce à une grande baie vitrée, avec cuisine ouverte et cellier isolé pour plus de praticité. Ce modèle se compose de 4 chambres dont une suite parentale offrant confort et intimité. À l’extérieur, choisissez un garage, un préau ou un carport attenant d’une surface de 15m², parfait pour stationner ou profiter des beaux jours.Informations : Mathieu Dagusé au (Numéro supprimé).Prix incluant assurance dommages-ouvrage, VRD compris, terrain viabilisé, assainissement compris, frais de notaire non compris, taxes non comprises, frais divers non compris. Terrain sous réserve de disponibilité de notre partenaire foncier. Images non contractuelles.Cette annonce a été créée et diffusée avec le logiciel VITAHOME.
Anais
TERRAIN ET MAISONSpacieuse et lumineuse ! Cette maison en L à partir de 89 m2 habitable, vous offre une généreuse pièce de vie de 40 m2 avec cuisine ouverte sur salon et séjour, cellier isolé. Grande baie coulissante située sur l’arrière. Vous disposez de 3 chambres, dont une équipée avec un dressing ou une salle d’eau équipée avec douche et meuble vasque. Vous disposez également d’une salle de bain équipée avec meuble vasque, douche et/ou baignoire, sèche serviette. Garage attenant de 16 m2. Orientation cuisine salon séjour arrière. Carrelage grand format compris dans toute les pièces (hors chambres) et faïence au choix dans une large gamme disponible.Informations : Mathieu Blay au (Numéro supprimé).Prix incluant assurance dommages-ouvrage, VRD compris, terrain viabilisé, assainissement compris, frais de notaire non compris, taxes non comprises, frais divers non compris. Terrain sous réserve de disponibilité de notre partenaire foncier. Images non contractuelles.Cette annonce a été créée et diffusée avec le logiciel VITAHOME.
L’actualité immobilière à Vouhé
27/11/2023
02/11/2023
30/10/2023
20/10/2023
16/10/2023
16/10/2023