Images
Description
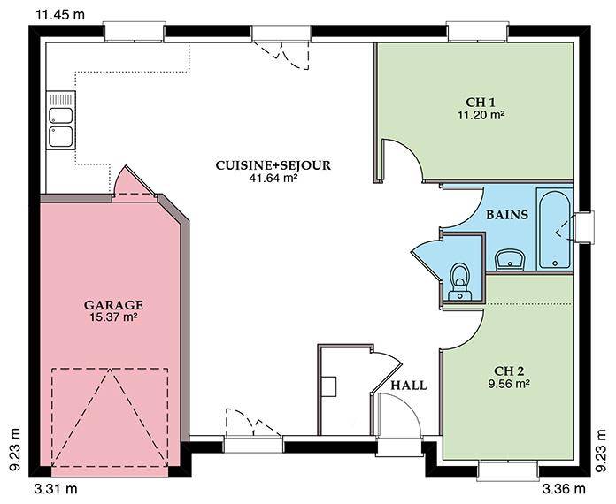
Découvrez la Prunière, une maison neuve de 87,5 m² avec garage intégré, qui marie style moderne et confort au quotidien. Disponible en toit 2 ou 4 pans, elle séduit par son architecture élégante et son agencement fonctionnel, idéal pour un couple ou une jeune famille.
L’intérieur se compose de 3 chambres lumineuses, d’un espace de vie ouvert et convivial, et d’un garage accolé offrant un rangement pratique et un accès direct à la maison. Chaque espace a été pensé pour offrir volume, clarté et bien-être.
Conforme à la réglementation RE2020, la Prunière bénéficie d’une isolation performante, d’une consommation énergétique réduite et d’un confort thermique optimal tout au long de l’année.
La Prunière 87,5 m² + garage, c’est le choix d’une maison moderne, économe et durable, pensée pour un mode de vie simple, serein et tourné vers l’avenir.
Logement susceptibles de vous intéresser
Nous vous proposons de découvrir aussi cette sélection de logements situés à moins de 10km de Baugy et qui seraient susceptibles de vous intéresser.
Baugy
TERRAINNous avons le plaisir de vous proposer un terrain viabilisé d’une superficie généreuse de 1 026 m², idéal pour le projet de construction de votre future maison. Situé dans le charmant lotissement de Baugy, ce terrain offre un cadre unique pour concrétiser vos envies d’habitat sur mesure. Avec des caractéristiques d’urbanisme favorables, c’est une opportunité rare pour tous ceux qui souhaitent s’installer dans un lieu paisible tout en jouissant de la proximité des services. Implanté dans le département du Cher, au cœur de la région Centre-Val de Loire, Baugy se distingue par son ambiance conviviale et ses commodités. Les résidents peuvent profiter de diverses attractions locales, tout en ayant accès à des services essentiels, tels que des écoles, des commerces et des infrastructures sportives, propices à un cadre de vie agréable. La ville, riche en histoire et en nature, offre également de nombreuses possibilités de loisirs, garantissant ainsi un quotidien épanouissant pour toute la famille. Ce terrain représente une opportunité exceptionnelle pour les potentiels acquéreurs désireux de bâtir leur maison dans un environnement propice à la vie sereine. N’attendez plus pour envisager cette chance unique d’acquérir un bien dans une commune dynamique et accueillante ! À noter qu’en tant que constructeur, nous ne sommes pas mandatés pour réaliser la vente de ce terrain.
Baugy
TERRAIN ET MAISONNous vous proposons cette maison neuve, baptisée « Crescendo », un modèle de construction qui allie élégance et fonctionnalité, tout en répondant aux exigences de la réglementation environnementale RE2020. Avec une surface habitable de 85 m², cette maison basse consommation est conçue pour offrir confort et économies d’énergie à ses occupants. Le modèle « Crescendo » se distingue par son architecture soignée, comprenant un garage accolé pratique pour sécuriser votre véhicule ou stocker vos équipements. L’entrée de la maison est agrémentée d’un porche accueillant, invitant à découvrir l’intérieur chaleureux et lumineux de la demeure. L’espace de vie se compose de 4 pièces judicieusement agencées, dont 3 chambres confortables, offrant un cadre de vie idéal pour une famille. Chaque pièce a été pensée pour maximiser l’espace et la luminosité, créant une atmosphère agréable et conviviale. La maison « Crescendo » est conçue dans le respect des normes de la RE2020, garantissant une performance énergétique optimale. Cette maison basse consommation utilise des matériaux et des technologies de pointe pour minimiser son impact environnemental tout en assurant un confort maximal à ses habitants, été comme hiver. En choisissant le modèle « Crescendo », vous optez pour une maison moderne, économique et respectueuse de l’environnement. Une opportunité à saisir pour concrétiser votre projet immobilier avec une demeure prête à accueillir vos plus beaux moments de vie. N’attendez plus pour découvrir cette maison neuve, symbole d’un habitat durable et confortable, et laissez-vous séduire par le charme et les avantages du modèle « Crescendo ».
Baugy
TERRAINDécouvrez ce terrain à bâtir d’une superficie généreuse de 831 m², situé dans le charmant lotissement de Baugy, au cœur du département du Cher. Ce terrain viabilisé offre une belle opportunité pour réaliser le projet de vos rêves en toute tranquillité. Entouré d’une nature préservée, il bénéficie d’une ambiance paisible, idéale pour une construction de maison familiale. Ce cadre de vie exceptionnel vous séduira par son caractère convivial et sa proximité avec toutes les commodités nécessaires. Idéalement situé à Baugy, dans la région Centre-Val de Loire, ce secteur est une véritable invitation à profiter d’un environnement agréable. La ville se distingue par ses nombreuses attractions locales et ses activités en plein air, tout en étant à proximité des commerces, écoles et services de santé. Vous apprécierez également la richesse des paysages environnants, propices aux promenades et aux activités sportives. En choisissant ce terrain, vous optez non seulement pour un lieu de vie confortable, mais aussi pour un cadre de vie épanouissant. Ne laissez pas passer cette opportunité rare d’acquérir un terrain dans un environnement d’exception. N’hésitez pas à nous contacter pour envisager ce projet d’achat unique. À noter qu’en tant que constructeur, nous ne sommes pas mandatés pour réaliser la vente de ce terrain.
Baugy
TERRAIN ET MAISONNous vous proposons cette maison neuve, baptisée « »Ambre » », un modèle d’exception qui allie élégance et fonctionnalité, conçu par un architecte de renom. Avec une surface habitable de 102.5 m², cette demeure est idéalement pensée pour offrir confort et bien-être à ses résidents. L’habitation se distingue par ses 4 chambres spacieuses, promettant intimité et tranquillité à chaque membre de la famille. Les 4 pièces de la maison sont réparties de manière à optimiser l’espace et la lumière naturelle, créant ainsi une atmosphère chaleureuse et accueillante dès le seuil franchi. Le modèle « »Ambre » » intègre un garage, solution pratique et esthétique, qui s’harmonise parfaitement avec l’architecture globale de la maison. Ce garage intégré offre non seulement un espace de stationnement sécurisé pour votre véhicule mais aussi un accès direct à l’intérieur pour plus de commodité. Construite dans le respect des dernières normes environnementales, cette maison neuve est un véritable modèle de basse consommation. Conforme à la RE2020, elle garantit une efficacité énergétique optimale, réduisant ainsi les dépenses énergétiques tout en préservant l’environnement. Ce choix responsable traduit notre engagement envers un avenir plus durable, offrant aux propriétaires une qualité de vie inégalée et des économies significatives sur le long terme. L’architecture de la maison « »Ambre » » a été pensée pour s’intégrer harmonieusement dans son environnement, avec des lignes épurées et modernes. Chaque détail a été soigneusement étudié pour répondre aux attentes des plus exigeants, alliant esthétique et fonctionnalité. En choisissant la maison « »Ambre » », vous optez pour un cadre de vie exceptionnel, où chaque jour est une invitation au confort et au bien-être. Ne manquez pas cette opportunité de construire la maison de vos rêves, une demeure qui vous ressemble et qui répond à toutes vos attentes.
Baugy
TERRAINEn exclusivité à Baugy, Terrain à bâtir d’environ 1001 m², très large avec plus de 50 mètres de façade, viabilisé et idéalement situé, à deux pas du centre-ville dans un secteur calme et peu passant. Libre constructeur, avec orientation sud à l’arrière. Commerces et services accessibles à pied. Honoraires Charge VENDEUR. Pour tout renseignement ou visite, merci de contacter Alain MOREAU RSAC 750 813 271 EI (Greffe de BOURGES) directement en répondant à l’annonce par la messagerie du site ou au numéro de téléphone indiqué (SMS acceptés). « Les informations sur les risques auxquels ce bien est exposé sont disponibles sur le site Géorisques. »
Baugy
TERRAIN ET MAISONDécouvrez la Prunière, une maison neuve de 87,5 m² avec garage intégré, qui marie style moderne et confort au quotidien. Disponible en toit 2 ou 4 pans, elle séduit par son architecture élégante et son agencement fonctionnel, idéal pour un couple ou une jeune famille.L’intérieur se compose de 3 chambres lumineuses, d’un espace de vie ouvert et convivial, et d’un garage accolé offrant un rangement pratique et un accès direct à la maison. Chaque espace a été pensé pour offrir volume, clarté et bien-être.Conforme à la réglementation RE2020, la Prunière bénéficie d’une isolation performante, d’une consommation énergétique réduite et d’un confort thermique optimal tout au long de l’année.La Prunière 87,5 m² + garage, c’est le choix d’une maison moderne, économe et durable, pensée pour un mode de vie simple, serein et tourné vers l’avenir.
Baugy
TERRAINNous vous proposons un terrain exceptionnel d’une surface de 1000 m², idéal pour un projet de construction de maison. Situé à Baugy, ce terrain viabilisé offre un cadre de vie agréable et pratique pour les futurs propriétaires souhaitant bâtir leur résidence de rêve. La commune se distingue par son ambiance paisible tout en bénéficiant de toutes les commodités nécessaires à la vie quotidienne. Baugy, charmante ville du département du Cher en Centre-Val de Loire, est réputée pour son emplacement central, proche des commerces et services essentiels. Les écoles, ainsi que les collèges et lycées, se trouvent à proximité, facilitant ainsi la vie de famille. Avec ses nombreux atouts, dont un terrain plat et un prix exceptionnel, ce terrain offre une opportunité rare d’acquérir un bien dans une ville dynamique et accueillante. Ne manquez pas cette chance unique de réaliser votre projet immobilier dans un environnement agréable. Ce terrain représentera sans doute une belle occasion pour les investisseurs et futurs propriétaires. N’hésitez pas à nous contacter pour plus d’informations et pour envisager l’achat de ce terrain prometteur. À noter qu’en tant que constructeur, nous ne sommes pas mandatés pour réaliser la vente de ce terrain.
Villabon
TERRAIN ET MAISONMaison de 6 pièces (160 m²) à vendre à VillabonIdéalement située – À Villabon (18800), maison neuve à vendre de 6 pièces, 2 niveaux, 160 m² de surface et 2 200 m² de terrain. Son intérieur est composé de trois chambres, d’une cuisine et de deux salles de bains.À proximité : gare (Avord), écoles. Nationale N142 à 19 km. Bourges à 22 km.Le prix de vente de cette maison de 6 pièces est de 337 050 €.N’hésitez pas à prendre contact avec notre agence (LEBLANC Jonathan : (Numéro supprimé)) pour toute information sur la maison, sur les démarches à suivre ou sur les modalités de vente. Concrétisez vos projets immobiliers avec Maisons Bruno Petit MJB Bourges.
Villabon
TERRAIN ET MAISONVENTE d’une maison F3 (80 m²) à VillabonIdéalement située – Maison neuve 3 pièces à vendre à Villabon (18800) avec une surface de 80 m² et de 2 200 m² de terrain. Elle comporte trois chambres, une cuisine et une salle de bains.À dix minutes : gare (Avord), écoles. Nationale N142 accessible à 19 km. Bourges à 22 km.Le prix de vente de cette maison de 3 pièces est de 189 650 €.N’hésitez pas à prendre contact avec Jonathan LEBLANC ((Numéro supprimé)) pour toute question sur la maison ou sur les modalités de vente. Donnez vie à vos projets immobiliers avec Maisons Bruno Petit MJB Bourges.
L’actualité immobilière à Baugy
27/11/2023
02/11/2023
30/10/2023
20/10/2023
16/10/2023
16/10/2023