Images
Description
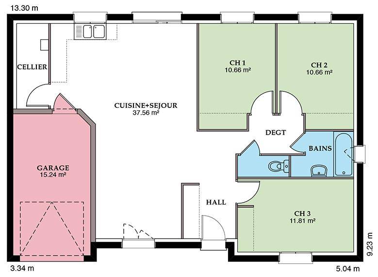
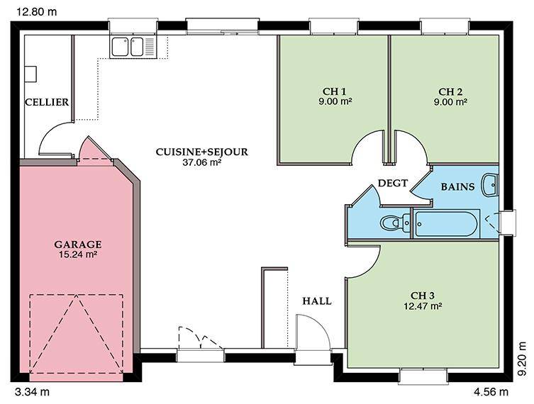
Nous vous proposons cette maison neuve, baptisée ""Prunière"", un modèle de construction alliant élégance et fonctionnalité, conçu pour répondre aux attentes des familles modernes. Avec une surface habitable de 99 m², cette maison est parfaitement dimensionnée pour offrir confort et bien-être à ses occupants.
La ""Prunière"" se distingue par son architecture soignée, disponible en versions à 2 ou 4 pans, selon vos préférences, intégrant harmonieusement un garage. Cette caractéristique non seulement ajoute à l'esthétique de la maison mais assure également une fonctionnalité accrue, offrant un espace supplémentaire pour votre véhicule ou pour du rangement.
L'intérieur de la maison est judicieusement agencé pour maximiser l'espace et la lumière naturelle. Elle comprend quatre chambres spacieuses, promettant un espace privé confortable pour chaque membre de la famille. Les quatre pièces de la maison sont conçues pour faciliter une vie familiale harmonieuse, avec des espaces de vie communs accueillants et bien pensés.
Au-delà de son design attrayant, la ""Prunière"" est une maison basse consommation, conçue dans le strict respect de la réglementation environnementale RE2020. Cette norme garantit une efficacité énergétique optimale et une réduction significative de votre empreinte carbone. Vivre dans la ""Prunière"", c'est choisir un habitat respectueux de l'environnement, tout en bénéficiant d'un confort inégalé et de réductions substantielles sur vos factures d'énergie.
Cette maison neuve représente une opportunité exceptionnelle de posséder une demeure moderne, durable et économe en énergie. La ""Prunière"" est la promesse d'un foyer chaleureux, où chaque détail a été pensé pour votre bien-être et celui de votre famille. Ne manquez pas cette chance de construire la maison de vos rêves, un lieu où de nouveaux souvenirs seront créés et chéris pour les années à venir.
Logement susceptibles de vous intéresser
Nous vous proposons de découvrir aussi cette sélection de logements situés à moins de 10km de Farges-en-Septaine et qui seraient susceptibles de vous intéresser.
Villabon
TERRAIN ET MAISONVENTE d’une maison F3 (80 m²) à VillabonIdéalement située – Maison neuve 3 pièces à vendre à Villabon (18800) avec une surface de 80 m² et de 2 200 m² de terrain. Elle comporte trois chambres, une cuisine et une salle de bains.À dix minutes : gare (Avord), écoles. Nationale N142 accessible à 19 km. Bourges à 22 km.Le prix de vente de cette maison de 3 pièces est de 189 650 €.N’hésitez pas à prendre contact avec Jonathan LEBLANC ((Numéro supprimé)) pour toute question sur la maison ou sur les modalités de vente. Donnez vie à vos projets immobiliers avec Maisons Bruno Petit MJB Bourges.
Villabon
TERRAIN ET MAISONMaison de 6 pièces (160 m²) à vendre à VillabonIdéalement située – À Villabon (18800), maison neuve à vendre de 6 pièces, 2 niveaux, 160 m² de surface et 2 200 m² de terrain. Son intérieur est composé de trois chambres, d’une cuisine et de deux salles de bains.À proximité : gare (Avord), écoles. Nationale N142 à 19 km. Bourges à 22 km.Le prix de vente de cette maison de 6 pièces est de 337 050 €.N’hésitez pas à prendre contact avec notre agence (LEBLANC Jonathan : (Numéro supprimé)) pour toute information sur la maison, sur les démarches à suivre ou sur les modalités de vente. Concrétisez vos projets immobiliers avec Maisons Bruno Petit MJB Bourges.
Villabon
TERRAIN ET MAISONVENTE : maison de 3 pièces (120 m²) à VillabonIdéalement située – Maison neuve 3 pièces à vendre à Villabon (18800) avec une surface de 120 m² sur un terrain de 2 200 m². Son intérieur offre trois chambres, une cuisine et deux salles de bains.Proche gare (Avord), écoles. Nationale N142 à 19 km. Bourges à 22 km.Le prix de vente de cette maison de 3 pièces est de 226 450 €.Prenez contact avec notre agence (Jonathan LEBLANC : (Numéro supprimé)) pour obtenir de plus amples informations sur la maison.
Villabon
TERRAIN ET MAISONMaison de 2 pièces (60 m²) à vendre à VillabonIdéalement située – À découvrir à Villabon (18800) : maison neuve 2 pièces à vendre. Surface de 60 m² sur 2 200 m² de terrain. Conçue de plain-pied, elle est composée de deux chambres, d’une cuisine et d’une salle de bains.Proche gare (Avord), écoles. Accès nationale N142 à 19 km. Bourges à 22 km.Cette maison de 2 pièces est à vendre pour la somme de 167 950 €.Contactez notre agence (LEBLANC Jonathan : (Numéro supprimé)) pour toute question sur la maison, sur les démarches à suivre ou sur les modalités de vente. Maisons Bruno Petit MJB Bourges vous accompagne dans tous vos projets immobiliers et dans toutes vos démarches.
Villabon
TERRAIN ET MAISONVENTE d’une maison de 2 pièces (90 m²) à VillabonIdéalement située – À Villabon (18800), maison neuve en vente de 2 pièces, 90 m² sur 2 200 m² de terrain. Son intérieur dispose de deux chambres, d’une cuisine et de deux salles de bains.À proximité : gare (Avord), écoles. Accès nationale N142 à 19 km. Bourges à 22 km.Cette maison de 2 pièces est proposée à l’achat pour 229 350 €.Prenez contact avec Jonathan LEBLANC ((Numéro supprimé)) pour toute question sur la maison de plain-pied, sur les démarches à suivre ou sur les modalités de vente. Faites de vos projets immobiliers une réalité avec Maisons Bruno Petit MJB Bourges.
Villabon
TERRAIN ET MAISONVillabon : maison de 2 pièces (100 m²) à vendreIdéalement située – À découvrir à Villabon (18800) : maison neuve 2 pièces à vendre, 100 m² de surface et 2 200 m² de terrain. Elle compte deux chambres, une cuisine et deux salles de bains.À proximité : gare (Avord), écoles. Nationale N142 à 19 km. Bourges à 22 km.Cette maison de 2 pièces est proposée à l’achat pour 245 550 €.Contactez notre agence (Jonathan LEBLANC : (Numéro supprimé)) pour toute information sur la maison ou sur les démarches à suivre.
Villabon
TERRAINVillabon : terrain de 2 200 m² en venteIdéalement situé – En vente : terrain de 2 200 m² à Villabon (18800).À dix minutes : gare (Avord), écoles. Nationale N142 accessible à 19 km. Bourges à 22 km.Il est à vendre pour la somme de 39 550 €. Contactez notre agence (LEBLANC Jonathan : (Numéro supprimé)) pour toute question sur le terrain ou sur les démarches à suivre. Maisons Bruno Petit MJB Bourges vous accompagne dans tous vos projets immobiliers et à toutes les étapes de l’achat.
Farges-en-Septaine
TERRAINDécouvrez ce magnifique terrain à vendre, d’une superficie généreuse de 1250 m², situé dans la charmante commune de Farges-en-Septaine, au cœur du département du Cher en région Centre-Val de Loire. Ce terrain plat et ensoleillé, offrant une vue dégagée sans vis-à-vis, est l’endroit idéal pour réaliser votre projet de construction de maison. Profitez d’un cadre champêtre pittoresque, synonyme de quiétude et de qualité de vie, dans un environnement sécurisé. Idéalement situé à proximité des transports, ce bien jouit d’une excellente accessibilité tout en préservant l’authenticité et le calme d’une vie rurale. La commune de Farges-en-Septaine se distingue par son ambiance conviviale et ses infrastructures locales qui comprennent des services de proximité, contribuant ainsi à un quotidien agréable. Laissez-vous séduire par les atouts indéniables de cette localité, entre nature et commodités. Ce terrain représente une opportunité idéale pour les acheteurs à la recherche d’un endroit où construire leur future maison dans un cadre apaisant et attrayant. N’attendez plus pour envisager cet investissement prometteur ! À noter qu’en tant que constructeur, nous ne sommes pas mandatés pour réaliser la vente de ce terrain.
Farges-en-Septaine
TERRAIN ET MAISONNous vous proposons cette maison neuve, baptisée « »Prunière » », un modèle de construction alliant élégance et fonctionnalité, conçu pour répondre aux attentes des familles modernes. Avec une surface habitable de 99 m², cette maison est parfaitement dimensionnée pour offrir confort et bien-être à ses occupants. La « »Prunière » » se distingue par son architecture soignée, disponible en versions à 2 ou 4 pans, selon vos préférences, intégrant harmonieusement un garage. Cette caractéristique non seulement ajoute à l’esthétique de la maison mais assure également une fonctionnalité accrue, offrant un espace supplémentaire pour votre véhicule ou pour du rangement. L’intérieur de la maison est judicieusement agencé pour maximiser l’espace et la lumière naturelle. Elle comprend quatre chambres spacieuses, promettant un espace privé confortable pour chaque membre de la famille. Les quatre pièces de la maison sont conçues pour faciliter une vie familiale harmonieuse, avec des espaces de vie communs accueillants et bien pensés. Au-delà de son design attrayant, la « »Prunière » » est une maison basse consommation, conçue dans le strict respect de la réglementation environnementale RE2020. Cette norme garantit une efficacité énergétique optimale et une réduction significative de votre empreinte carbone. Vivre dans la « »Prunière » », c’est choisir un habitat respectueux de l’environnement, tout en bénéficiant d’un confort inégalé et de réductions substantielles sur vos factures d’énergie. Cette maison neuve représente une opportunité exceptionnelle de posséder une demeure moderne, durable et économe en énergie. La « »Prunière » » est la promesse d’un foyer chaleureux, où chaque détail a été pensé pour votre bien-être et celui de votre famille. Ne manquez pas cette chance de construire la maison de vos rêves, un lieu où de nouveaux souvenirs seront créés et chéris pour les années à venir.
L’actualité immobilière à Farges-en-Septaine
27/11/2023
02/11/2023
30/10/2023
20/10/2023
16/10/2023
16/10/2023