Maison à construire à Fussy (18110)
Images
Description
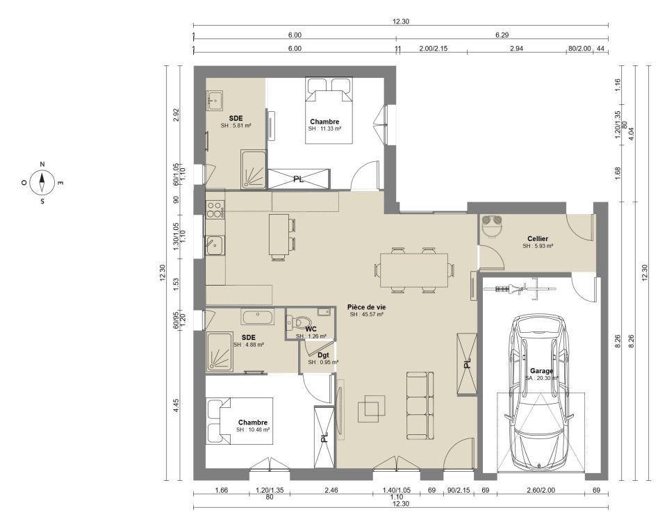
VENTE : maison de 3 pièces (90 m²) à Fussy
Idéalement située - À découvrir à Fussy (18110) : maison neuve 3 pièces à vendre. Surface de 90 m² sur 1 160 m² de terrain. Son intérieur est composé de deux chambres, d'une cuisine et de deux salles de bains.
Proche gares (Bourges et Saint-Germain-du-Puy), École Primaire Maxime Duruthin, bibliothèque, tennis, commerce, boulangerie, poissonnerie, épicerie et bureau de poste. Nationale N142 à 9 km. Bourges à 8 km.
Cette maison de 3 pièces est à vendre pour la somme de 239 700 €.
Prenez contact avec Jonathan LEBLANC ((Numéro supprimé)) pour tout renseignement sur la maison, sur les modalités de vente ou sur les démarches à suivre. Maisons Bruno Petit MJB Bourges vous accompagne dans tous vos projets immobiliers et à toutes les étapes de votre projet.
Logement susceptibles de vous intéresser
Nous vous proposons de découvrir aussi cette sélection de logements situés à moins de 10km de Fussy et qui seraient susceptibles de vous intéresser.
Bourges
TERRAIN ET MAISONBourges : maison de 4 pièces (120 m²) en venteIdéalement située – À Bourges (18000), maison neuve à vendre de 4 pièces, 120 m² et 600 m² de terrain. Conçue de plain-pied, elle propose trois chambres, une cuisine et deux salles de bains.À proximité : gares (Bourges, Saint-Germain-du-Puy et Marmagne), établissements scolaires, crèche, INSA Centre Val de Loire, commerces, boulangeries, supermarchés, boucheries-charcuteries et bureau de poste. Marché Place des Marronniers le jeudi matin. Autoroute A71 et nationales N142 et N151 à 7 km.Le prix de vente de cette maison de 4 pièces est de 236 900 €.Contactez Jonathan LEBLANC (tél : (Numéro supprimé)) pour tout renseignement sur la maison de plain-pied, sur les modalités de vente ou sur les démarches à suivre.
Bourges
TERRAIN ET MAISONVENTE : maison T2 (70 m²) à BourgesIdéalement située – À découvrir à Bourges (18000) : maison neuve 2 pièces à vendre. Surface de 70 m² sur 600 m² de terrain. Conçue de plain-pied, elle dispose de deux chambres, d’une cuisine et d’une salle de bains.Proche gares (Bourges, Saint-Germain-du-Puy et Marmagne), établissements scolaires, crèche, INSA Centre Val de Loire, commerces, boulangeries, supermarchés, poissonneries et bureau de poste. Marché Place des Marronniers le jeudi matin. Autoroute A71 et nationales N142 et N151 accessibles à 7 km.Cette maison de 2 pièces est à vendre pour la somme de 178 400 €.Contactez notre agence (Jonathan LEBLANC : (Numéro supprimé)) pour toute question sur la maison, sur les modalités de vente ou sur les démarches à suivre. Maisons Bruno Petit MJB Bourges vous accompagne dans tous vos projets immobiliers et dans toutes vos démarches.
Bourges
TERRAIN ET MAISONVENTE : maison T2 (100 m²) à BourgesIdéalement située – À Bourges (18000), maison neuve à vendre de 2 pièces, 100 m² de surface sur 600 m² de terrain. Elle propose deux chambres, une cuisine et deux salles de bains.À proximité : gares (Bourges, Saint-Germain-du-Puy et Marmagne), établissements scolaires, crèche, INSA Centre Val de Loire, commerces, boulangeries, supermarchés, épiceries et poissonneries. Marché Place des Marronniers le jeudi matin. Autoroute A71 et nationales N142 et N151 accessibles à 7 km.Le prix de vente de cette maison de 2 pièces est de 225 700 €.Contactez Jonathan LEBLANC ((Numéro supprimé)) pour tout renseignement sur la maison ou sur les démarches à suivre.
Bourges
TERRAINBourges : terrain de 600 m² en venteIdéalement situé – Projetez-vous sur ce terrain de 600 m² à vendre à Bourges (18000).Proche gares (Bourges, Saint-Germain-du-Puy et Marmagne), établissements scolaires, crèche, INSA Centre Val de Loire, commerces, boulangeries, supermarchés, poissonneries et boucheries-charcuteries. Marché Place des Marronniers le jeudi matin. Accès autoroute A71 et nationales N142 et N151 à 7 km.Il est proposé à l’achat pour 50 000 €. N’hésitez pas à prendre contact avec notre agence (Jonathan LEBLANC : (Numéro supprimé)) pour tout renseignement sur le terrain. Maisons Bruno Petit MJB Bourges vous accompagne à toutes les étapes de votre projet et dans tous vos projets immobiliers.
Fussy
TERRAIN ET MAISONFussy : maison de 3 pièces (120 m²) à vendreIdéalement située – À Fussy (18110), maison neuve en vente de 3 pièces, 120 m² de surface sur 1 160 m² de terrain. Conçue de plain-pied, elle offre trois chambres, une cuisine et deux salles de bains.À dix minutes : gares (Bourges et Saint-Germain-du-Puy), École Primaire Maxime Duruthin, bibliothèque, tennis, commerce, boulangerie, épicerie, poissonnerie et bureau de poste. Nationale N142 à 9 km. Bourges à 8 km.Cette maison de 3 pièces est proposée à l’achat pour 236 800 €.Contactez Jonathan LEBLANC ((Numéro supprimé)) pour obtenir de plus amples informations sur la maison de plain-pied. Donnez vie à vos projets immobiliers avec Maisons Bruno Petit MJB Bourges.
Fussy
TERRAIN ET MAISONFussy : maison de 2 pièces (60 m²) à vendreIdéalement située – À Fussy (18110), maison neuve en vente de 2 pièces, 60 m² sur 1 160 m² de terrain. Conçue de plain-pied, elle offre deux chambres, une cuisine et une salle de bains.À dix minutes : gares (Bourges et Saint-Germain-du-Puy), École Primaire Maxime Duruthin, bibliothèque, tennis, commerce, boulangerie, épicerie, bureau de poste et poissonnerie. Accès nationale N142 à 9 km. Bourges à 8 km.Le prix de vente de cette maison de 2 pièces est de 178 300 €.Contactez Jonathan LEBLANC ((Numéro supprimé)) pour toute question sur la maison de plain-pied. Maisons Bruno Petit MJB Bourges est là pour vous accompagner dans toutes vos démarches.
Fussy
TERRAIN ET MAISONVENTE : maison de 3 pièces (90 m²) à FussyIdéalement située – À découvrir à Fussy (18110) : maison neuve 3 pièces à vendre. Surface de 90 m² sur 1 160 m² de terrain. Son intérieur est composé de deux chambres, d’une cuisine et de deux salles de bains.Proche gares (Bourges et Saint-Germain-du-Puy), École Primaire Maxime Duruthin, bibliothèque, tennis, commerce, boulangerie, poissonnerie, épicerie et bureau de poste. Nationale N142 à 9 km. Bourges à 8 km.Cette maison de 3 pièces est à vendre pour la somme de 239 700 €.Prenez contact avec Jonathan LEBLANC ((Numéro supprimé)) pour tout renseignement sur la maison, sur les modalités de vente ou sur les démarches à suivre. Maisons Bruno Petit MJB Bourges vous accompagne dans tous vos projets immobiliers et à toutes les étapes de votre projet.
Fussy
TERRAIN ET MAISONFussy : maison de 2 pièces (100 m²) en venteIdéalement située – Maison neuve 2 pièces en vente à Fussy (18110) avec une surface de 100 m² et de 1 160 m² de terrain. Son intérieur compte deux chambres, une cuisine et deux salles de bains.À dix minutes : gares (Bourges et Saint-Germain-du-Puy), École Primaire Maxime Duruthin, bibliothèque, tennis, commerce, boulangerie, poissonnerie, bureau de poste et épicerie. Nationale N142 accessible à 9 km. Bourges à 8 km.Cette maison de 2 pièces est à vendre pour la somme de 255 900 €.Contactez notre agence (Jonathan LEBLANC : (Numéro supprimé)) pour toute question sur la maison de plain-pied, sur les démarches à suivre ou sur les modalités de vente. Maisons Bruno Petit MJB Bourges est là pour vous accompagner à toutes les étapes de votre projet.
Bourges
TERRAINVENTE : terrain de 1 000 m² à BourgesIdéalement situé – En vente à Bourges (18000) : projetez-vous sur ce terrain de 1 000 m².À dix minutes : gares (Bourges, Saint-Germain-du-Puy et Marmagne), établissements scolaires, crèche, INSA Centre Val de Loire, commerces, boulangeries, supermarchés, boucheries-charcuteries et poissonneries. Marché Place des Marronniers le jeudi matin. Accès autoroute A71 et nationales N142 et N151 à 7 km.Son prix de vente est de 40 000 €. Contactez Jonathan LEBLANC (tél : (Numéro supprimé)) pour plus d’informations sur le terrain. Maisons Bruno Petit MJB Bourges vous accompagne dans tous vos projets immobiliers et à toutes les étapes de votre projet.
L’actualité immobilière à Fussy
27/11/2023
02/11/2023
30/10/2023
20/10/2023
16/10/2023
16/10/2023