Images
Description
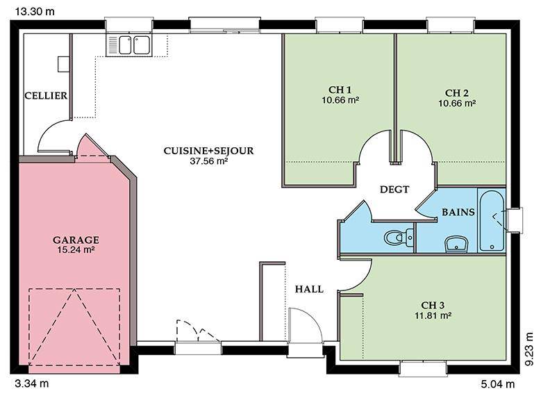
Nous vous proposons cette maison neuve, baptisée ""Prunière"", un modèle de construction alliant élégance et fonctionnalité, conçu pour répondre aux attentes des familles modernes. Avec une surface habitable de 99 m², cette maison est parfaitement dimensionnée pour offrir confort et bien-être à ses occupants.
La ""Prunière"" se distingue par son architecture soignée, disponible en versions à 2 ou 4 pans, selon vos préférences, intégrant harmonieusement un garage. Cette caractéristique non seulement ajoute à l'esthétique de la maison mais assure également une fonctionnalité accrue, offrant un espace supplémentaire pour votre véhicule ou pour du rangement.
L'intérieur de la maison est judicieusement agencé pour maximiser l'espace et la lumière naturelle. Elle comprend quatre chambres spacieuses, promettant un espace privé confortable pour chaque membre de la famille. Les quatre pièces de la maison sont conçues pour faciliter une vie familiale harmonieuse, avec des espaces de vie communs accueillants et bien pensés.
Au-delà de son design attrayant, la ""Prunière"" est une maison basse consommation, conçue dans le strict respect de la réglementation environnementale RE2020. Cette norme garantit une efficacité énergétique optimale et une réduction significative de votre empreinte carbone. Vivre dans la ""Prunière"", c'est choisir un habitat respectueux de l'environnement, tout en bénéficiant d'un confort inégalé et de réductions substantielles sur vos factures d'énergie.
Cette maison neuve représente une opportunité exceptionnelle de posséder une demeure moderne, durable et économe en énergie. La ""Prunière"" est la promesse d'un foyer chaleureux, où chaque détail a été pensé pour votre bien-être et celui de votre famille. Ne manquez pas cette chance de construire la maison de vos rêves, un lieu où de nouveaux souvenirs seront créés et chéris pour les années à venir.
Logement susceptibles de vous intéresser
Nous vous proposons de découvrir aussi cette sélection de logements situés à moins de 10km de Jouet-sur-l'Aubois et qui seraient susceptibles de vous intéresser.
Jouet-sur-l'Aubois
TERRAINNous vous proposons un terrain à vendre d’une superficie de 2439 m², parfaitement viabilisé et situé à Jouet-sur-l’Aubois, dans le département du Cher. Ce bien rare offre une opportunité unique pour réaliser votre projet de construction de maison dans un cadre champêtre et ensoleillé. La qualité de vie dans cette magnifique commune, combinée à un prix exceptionnel, fait de ce terrain un choix judicieux pour les acheteurs souhaitant s’installer dans un environnement paisible. Situé en Centre-Val de Loire, Jouet-sur-l’Aubois est une ville charmante qui privilégie le cadre de vie. Vous bénéficierez de la proximité des commodités locales tout en profitant des paysages naturels environnants. La division parcellaire est possible, et le PLU non contraignant permet une flexibilité dans vos projets d’aménagement. En choisissant ce terrain, vous vous offrez la convivialité d’un village tout en étant à quelques pas des attractions de la région. Vous pourrez savourer les délices de la nature tout en ayant accès aux services essentiels de la ville. Ce terrain représente une opportunité d’achat unique, et nous vous invitons à envisager tout son potentiel pour créer la maison de vos rêves. À noter qu’en tant que constructeur, nous ne sommes pas mandatés pour réaliser la vente de ce terrain.
Jouet-sur-l'Aubois
TERRAIN ET MAISONNous vous proposons cette maison neuve, baptisée « »Prunière » », un modèle de construction alliant élégance et fonctionnalité, conçu pour répondre aux attentes des familles modernes. Avec une surface habitable de 99 m², cette maison est parfaitement dimensionnée pour offrir confort et bien-être à ses occupants. La « »Prunière » » se distingue par son architecture soignée, disponible en versions à 2 ou 4 pans, selon vos préférences, intégrant harmonieusement un garage. Cette caractéristique non seulement ajoute à l’esthétique de la maison mais assure également une fonctionnalité accrue, offrant un espace supplémentaire pour votre véhicule ou pour du rangement. L’intérieur de la maison est judicieusement agencé pour maximiser l’espace et la lumière naturelle. Elle comprend quatre chambres spacieuses, promettant un espace privé confortable pour chaque membre de la famille. Les quatre pièces de la maison sont conçues pour faciliter une vie familiale harmonieuse, avec des espaces de vie communs accueillants et bien pensés. Au-delà de son design attrayant, la « »Prunière » » est une maison basse consommation, conçue dans le strict respect de la réglementation environnementale RE2020. Cette norme garantit une efficacité énergétique optimale et une réduction significative de votre empreinte carbone. Vivre dans la « »Prunière » », c’est choisir un habitat respectueux de l’environnement, tout en bénéficiant d’un confort inégalé et de réductions substantielles sur vos factures d’énergie. Cette maison neuve représente une opportunité exceptionnelle de posséder une demeure moderne, durable et économe en énergie. La « »Prunière » » est la promesse d’un foyer chaleureux, où chaque détail a été pensé pour votre bien-être et celui de votre famille. Ne manquez pas cette chance de construire la maison de vos rêves, un lieu où de nouveaux souvenirs seront créés et chéris pour les années à venir.
Marzy
TERRAINNous vous proposons un terrain rare de 4 000 m² situé à Marzy, dans la magnifique Nièvre. Ce terrain plat, non viabilisé, représente une opportunité parfaite pour ceux qui envisagent un projet de construction de maison individuelle. Son vaste espace vous permettra d’imaginer et de concevoir un lieu de vie qui vous ressemble, tout en bénéficiant d’un environnement paisible. La ville de Marzy, reconnue pour son atmosphère conviviale, présente une belle harmonie entre milieu urbain et naturel, ce qui en fait un lieu de vie idéal. Le terrain se trouve à proximité de toutes les commodités nécessaires : supermarchés, commerces de proximité, ainsi que des établissements scolaires tels que des écoles, collégiales et lycées. Les lignes de transports en commun, notamment un arrêt de bus proche, facilitent les déplacements vers les villes environnantes. Marzy est également connue pour ses espaces verts et ses activités culturelles, offrant un cadre de vie agréable et dynamique, propice à l’épanouissement des familles. Ne laissez pas passer cette occasion en or d’acquérir un terrain à fort potentiel dans une zone recherchée. Contactez-nous dès aujourd’hui pour explorer cette belle opportunité d’achat qui pourrait réaliser votre rêve de construire la maison idéale.
Marzy
TERRAIN ET MAISONNous vous proposons cette maison neuve, baptisée « »Prunière » », un modèle de construction alliant élégance et fonctionnalité, conçu pour répondre aux attentes des familles modernes. Avec une surface habitable de 99 m², cette maison est parfaitement dimensionnée pour offrir confort et bien-être à ses occupants. La « »Prunière » » se distingue par son architecture soignée, disponible en versions à 2 ou 4 pans, selon vos préférences, intégrant harmonieusement un garage. Cette caractéristique non seulement ajoute à l’esthétique de la maison mais assure également une fonctionnalité accrue, offrant un espace supplémentaire pour votre véhicule ou pour du rangement. L’intérieur de la maison est judicieusement agencé pour maximiser l’espace et la lumière naturelle. Elle comprend quatre chambres spacieuses, promettant un espace privé confortable pour chaque membre de la famille. Les quatre pièces de la maison sont conçues pour faciliter une vie familiale harmonieuse, avec des espaces de vie communs accueillants et bien pensés. Au-delà de son design attrayant, la « »Prunière » » est une maison basse consommation, conçue dans le strict respect de la réglementation environnementale RE2020. Cette norme garantit une efficacité énergétique optimale et une réduction significative de votre empreinte carbone. Vivre dans la « »Prunière » », c’est choisir un habitat respectueux de l’environnement, tout en bénéficiant d’un confort inégalé et de réductions substantielles sur vos factures d’énergie. Cette maison neuve représente une opportunité exceptionnelle de posséder une demeure moderne, durable et économe en énergie. La « »Prunière » » est la promesse d’un foyer chaleureux, où chaque détail a été pensé pour votre bien-être et celui de votre famille. Ne manquez pas cette chance de construire la maison de vos rêves, un lieu où de nouveaux souvenirs seront créés et chéris pour les années à venir.
Marzy
TERRAINDans un lotissement d’une dizaine de lots , ce terrain de 1000 m² entièrement viabilisé . Situé au cœur de Marzy et sa campagne , proche également du centre commercial et 6 minutes de l’A 77 . A saisir
Marzy
TERRAIN ET MAISONNous vous proposons cette maison neuve, la Diamant, d’une surface de 96 m², comprenant 3 chambres et 4 pièces. Cette charmante demeure se distingue par son design en L offrant une configuration optimale et une belle luminosité.Les caractéristiques principales de la Diamant incluent un auvent accueillant à l’entrée, idéal pour abriter vos invités des intempéries. De plus, un garage intégré vous permettra de stationner votre véhicule en toute sécurité, offrant ainsi un confort supplémentaire au quotidien.Cette maison à construire se démarque par son aspect basse consommation, répondant aux normes de la RE2020 en matière d’efficacité énergétique. Vous pourrez ainsi profiter d’un habitat moderne et respectueux de l’environnement, alliant confort et économies d’énergie.Ne manquez pas l’opportunité d’acquérir cette maison Diamant, alliant praticité, esthétique et performance énergétique pour un cadre de vie agréable et durable.
Marzy
TERRAINNous vous présentons un terrain exceptionnel à vendre, d’une surface généreuse de 800 m², situé dans le charmant lotissement de Marzy, au cœur du département de la Nièvre en Bourgogne-Franche-Comté. Ce terrain viabilisé est parfait pour concrétiser votre projet de construction de maison. Marzy se distingue par son ambiance conviviale et son cadre de vie agréable, promesse d’une qualité de vie à la hauteur de vos attentes. Localisé dans un quartier recherché, ce terrain bénéficie d’une situation idéale à proximité des commodités. Vous trouverez facilement magasins, écoles et services variés, tout en profitant d’un environnement calme et verdoyant. La ville de Marzy est également desservie par un réseau de transports qui facilite les déplacements vers les commerces et les activités de loisirs. Le potentiel d’épanouissement et de bien-être y est indéniable, ce qui en fait une opportunité à ne pas manquer pour les futurs propriétaires. Ne laissez pas passer cette chance unique de réaliser vos rêves immobiliers dans un cadre idyllique ! À noter qu’en tant que constructeur, nous ne sommes pas mandatés pour réaliser la vente de ce terrain.
Pougues-les-Eaux
TERRAIN ET MAISONNous vous proposons cette maison neuve, baptisée « »Prunière » », un modèle de construction alliant élégance et fonctionnalité, conçu pour répondre aux attentes des familles modernes. Avec une surface habitable de 99 m², cette maison est parfaitement dimensionnée pour offrir confort et bien-être à ses occupants. La « »Prunière » » se distingue par son architecture soignée, disponible en versions à 2 ou 4 pans, selon vos préférences, intégrant harmonieusement un garage. Cette caractéristique non seulement ajoute à l’esthétique de la maison mais assure également une fonctionnalité accrue, offrant un espace supplémentaire pour votre véhicule ou pour du rangement. L’intérieur de la maison est judicieusement agencé pour maximiser l’espace et la lumière naturelle. Elle comprend quatre chambres spacieuses, promettant un espace privé confortable pour chaque membre de la famille. Les quatre pièces de la maison sont conçues pour faciliter une vie familiale harmonieuse, avec des espaces de vie communs accueillants et bien pensés. Au-delà de son design attrayant, la « »Prunière » » est une maison basse consommation, conçue dans le strict respect de la réglementation environnementale RE2020. Cette norme garantit une efficacité énergétique optimale et une réduction significative de votre empreinte carbone. Vivre dans la « »Prunière » », c’est choisir un habitat respectueux de l’environnement, tout en bénéficiant d’un confort inégalé et de réductions substantielles sur vos factures d’énergie. Cette maison neuve représente une opportunité exceptionnelle de posséder une demeure moderne, durable et économe en énergie. La « »Prunière » » est la promesse d’un foyer chaleureux, où chaque détail a été pensé pour votre bien-être et celui de votre famille. Ne manquez pas cette chance de construire la maison de vos rêves, un lieu où de nouveaux souvenirs seront créés et chéris pour les années à venir.
Pougues-les-Eaux
TERRAINDécouvrez ce terrain exceptionnel de 608 m², idéalement situé à Pougues-les-Eaux, dans le département de la Nièvre, au cœur de la région Bourgogne-Franche-Comté. Ce terrain viabilisé offre de nombreuses possibilités pour un projet de construction de maison, permettant ainsi de réaliser vos rêves d’habitat dans un environnement paisible et agréable. Profitez d’une vue dégagée et d’un cadre de vie serein, propice à l’épanouissement familial. Pougues-les-Eaux se distingue par son ambiance chaleureuse et conviviale, avec un accès facile aux commodités et commerces locaux. La ville est dotée de transports à proximité, notamment d’une gare facilitant les déplacements vers les grandes agglomérations. Vous pourrez également apprécier les attraits touristiques de la région, qui mêlent nature verdoyante et richesses culturelles, offrant ainsi un cadre de vie des plus agréables. Ne ratez pas cette opportunité rare d’acquérir un terrain au potentiel exceptionnel?! Ce terrain représente une opportunité unique pour les acheteurs souhaitant bâtir leur maison idéale dans un environnement privilégié. N’hésitez pas à nous contacter pour plus d’informations sur ce bien d’exception. À noter qu’en tant que constructeur, nous ne sommes pas mandatés pour réaliser la vente de ce terrain.
L’actualité immobilière à Jouet-sur-l'Aubois
27/11/2023
02/11/2023
30/10/2023
20/10/2023
16/10/2023
16/10/2023