Maison à construire à La Chapelle-d'Angillon (18380)
Images
Description
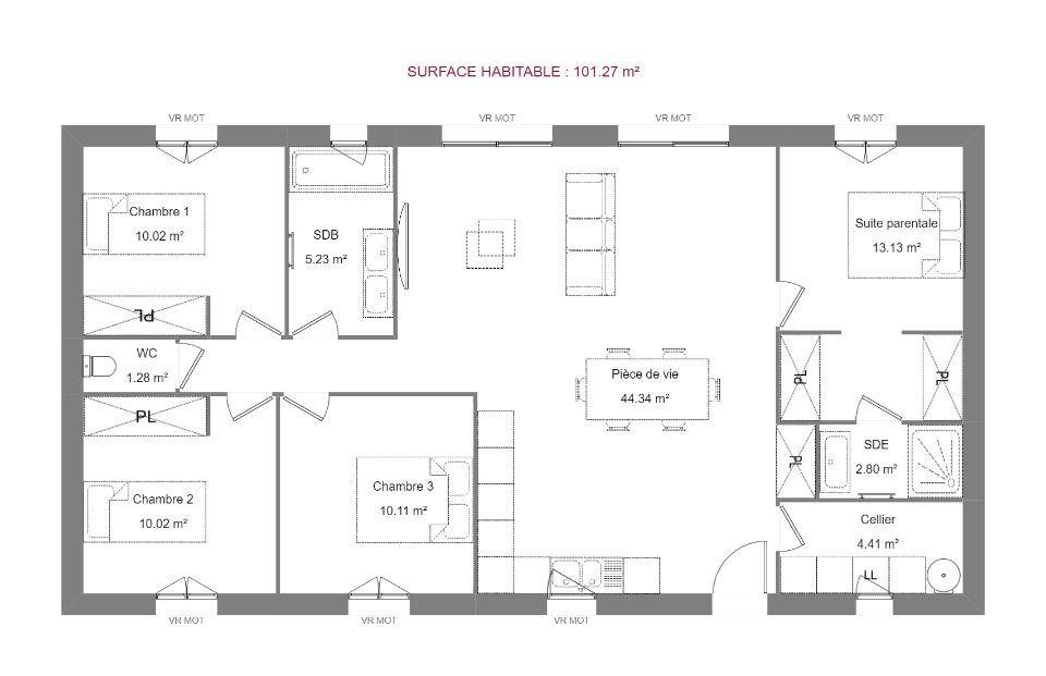
Maison neuve - 4 chambres dont suite parentale - La Chapelle-d'Angillon
Découvrez cette maison moderne offrant 4 chambres, une salle de bain, un WC séparé et un cellier très fonctionnel.
Profitez également d'une suite parentale avec dressing et salle d'eau, idéale pour un confort optimal au quotidien.
Un projet pensé pour allier praticité, bien-être et vie de famille.
Réalisez la maison qui vous ressemble, adaptée à vos besoins avec MAISONS FRANCE CONFORT sur ce terrain en accord avec un partenaire foncier.
📞 Contactez Maisons France Confort Saint-Doulchard pour plus d'informations et commencer votre projet de construction !
Logement susceptibles de vous intéresser
Nous vous proposons de découvrir aussi cette sélection de logements situés à moins de 10km de La Chapelle-d'Angillon et qui seraient susceptibles de vous intéresser.
La Chapelle-d'Angillon
TERRAIN ET MAISONMaison neuve – 3 chambres – Normes PMR à partir de 154 900 €Idéale Investisseur ou Primo-AccédantOptez pour une maison neuve fonctionnelle et économique, conforme aux normes PMR, parfaite pour un premier achat ou un investissement locatif sécurisé.Elle offre 3 chambres, une pièce de vie lumineuse, une salle d’eau adaptée, un WC PMR et des prestations modernes pour un confort optimal.Un bien neuf, pratique et à forte valeur locative !Réalisez la maison qui vous ressemble, adaptée à vos besoins avec MAISONS FRANCE CONFORT sur ce terrain en accord avec un partenaire foncier.📞 Contactez Maisons France Confort Saint-Doulchard pour plus d’informations et commencer votre projet de construction !
La Chapelle-d'Angillon
TERRAIN ET MAISONConstruction Maison R+1 – 4 chambres avec garage – Prestations haut de gammeRéalisez votre projet de vie avec Maisons France Confort, constructeur du groupe HEXAOM, premier constructeur de maisons individuelles en France, reconnu pour la qualité et le sérieux de ses réalisations.✨ Caractéristiques de la maison :R+1 complet offrant de beaux volumes et une organisation fonctionnelle4 chambres spacieuses pour toute la famille2 WC et un cellier pratique pour le rangementGrande pièce de vie lumineuse pour profiter d’un espace convivial et confortableMaison conforme aux normes RE2020, garantissant confort thermique et économies d’énergie🌿 Prestations haut de gamme : matériaux de qualité, finitions soignées et conception moderne pour un confort optimal.🏠 Maisons France Confort, c’est la garantie d’une construction fiable, sur mesure, et pensée pour allier fonctionnalité, espace et confort, idéale pour une vie de famille sereine.Réalisez la maison qui vous ressemble, adaptée à vos besoins avec MAISONS FRANCE CONFORT sur ce terrain en accord avec un partenaire foncier.📞 Contactez Maisons France Confort Saint-Doulchard dès aujourd’hui pour plus d’informations et commencer votre projet de construction !
La Chapelle-d'Angillon
TERRAIN ET MAISONMaison neuve – 4 chambres dont suite parentale – La Chapelle-d’AngillonDécouvrez cette maison moderne offrant 4 chambres, une salle de bain, un WC séparé et un cellier très fonctionnel.Profitez également d’une suite parentale avec dressing et salle d’eau, idéale pour un confort optimal au quotidien.Un projet pensé pour allier praticité, bien-être et vie de famille.Réalisez la maison qui vous ressemble, adaptée à vos besoins avec MAISONS FRANCE CONFORT sur ce terrain en accord avec un partenaire foncier.📞 Contactez Maisons France Confort Saint-Doulchard pour plus d’informations et commencer votre projet de construction !
La Chapelle-d'Angillon
TERRAIN ET MAISONProjet de construction – Maison 2 chambres + garage + combles aménageablesDécouvrez cette maison neuve conçue pour allier confort, fonctionnalité et évolutivité. Elle propose :2 chambres bien agencéesUne pièce de vie lumineuse avec cuisine ouverteUn garage attenantDes combles aménageables, offrant un potentiel d’agrandissement idéal pour une future chambre, un bureau ou une salle de jeuxUne conception moderne, performante et personnalisable selon vos enviesCe projet est parfait pour un premier achat, une famille souhaitant évoluer dans le temps ou encore pour investir.Construisez une maison qui s’adapte à votre vie et à vos besoins !Réalisez la maison qui vous ressemble, adaptée à vos besoins avec MAISONS FRANCE CONFORT sur ce terrain en accord avec un partenaire foncier.📞 Contactez Maisons France Confort Saint-Doulchard dès aujourd’hui pour plus d’informations et commencer votre projet de construction !
La Chapelle-d'Angillon
TERRAIN ET MAISON🏡 Maison neuve à étage – Suite parentale + 4 chambres + mezzanineLe confort familial haut de gamme !Superbe maison neuve pensée pour offrir espace et bien-être :À l’étage, 4 chambres, une mezzanine esprit jeux/bureau, une belle salle de bain et un WC indépendant.Au rez-de-chaussée, craquez pour la suite parentale avec grand dressing et salle de bain, ainsi que la grande pièce de vie ouverte sur la cuisine.Un cellier communiquant avec le garage complète ce bien ultra-fonctionnel.Un projet moderne, lumineux et idéal pour une vie de famille confortable et sereine !Réalisez la maison qui vous ressemble, adaptée à vos besoins avec MAISONS FRANCE CONFORT sur ce terrain en accord avec un partenaire foncier.📞 Contactez Maisons France Confort Saint-Doulchard dès aujourd’hui pour plus d’informations et commencer votre projet de construction !
La Chapelle-d'Angillon
TERRAINIdéal pour votre projet de maison avec Maisons France Confort🏠 Un projet de construction personnaliséLe constructeur Maisons France Confort vous accompagne pour imaginer et bâtir la maison de vos rêves :Maisons traditionnelles, modernes ou contemporaines.Plans personnalisables selon vos besoins et votre budget.Garanties et accompagnement complet (CCMI, suivi de chantier, performance énergétique).📞 Contactez Maisons France Confort Saint-Doulchard pour plus d’informations et commencer votre projet de construction ! Nous vous accompagnerons à chaque étape de votre projet pour une réalisation en toute sérénité sur ce terrain proposé en accord avec notre partenaire foncier.
La Chapelle-d'Angillon
TERRAIN ET MAISONLa Chapelle-d’Angillon : maison T6 (180 m²) à vendreIdéalement située – Maison neuve 6 pièces à vendre à La Chapelle-d’Angillon (18380) avec 2 niveaux, une surface de 180 m² sur un terrain de 1 000 m². Son intérieur est composé de quatre chambres, d’une cuisine et de deux salles de bains.Proche École Primaire Muguette Apert, tennis, commerce, boulangerie et épicerie.Cette maison de 6 pièces est proposée à l’achat pour 462 000 €.Prenez contact avec notre agence (LEBLANC Jonathan : (Numéro supprimé)) pour toute information sur la maison. Maisons Bruno Petit MJB Bourges est là pour vous accompagner dans tous vos projets immobiliers.
La Chapelle-d'Angillon
TERRAIN ET MAISONMaison de 6 pièces (109 m²) en vente à La Chapelle-d’AngillonIdéalement située – À découvrir à La Chapelle-d’Angillon (18380) : maison neuve 6 pièces en vente. Surface de 109 m² et 1 000 m² de terrain. Son intérieur inclut quatre chambres, une cuisine et deux salles de bains.À dix minutes : École Primaire Muguette Apert, tennis, commerce, boulangerie et épicerie.Cette maison de 6 pièces est à vendre pour la somme de 217 000 €.Contactez Jonathan LEBLANC (tél : (Numéro supprimé)) pour tout renseignement sur la maison de plain-pied. Maisons Bruno Petit MJB Bourges vous accompagne dans tous vos projets immobiliers et dans toutes vos démarches.
La Chapelle-d'Angillon
TERRAIN ET MAISONLa Chapelle-d’Angillon : maison de 5 pièces (96 m²) à vendreIdéalement située – À découvrir à La Chapelle-d’Angillon (18380) : maison neuve 5 pièces en vente, 2 niveaux, 96 m² sur 1 000 m² de terrain. Elle comporte quatre chambres, une cuisine et une salle de bains.À dix minutes : École Primaire Muguette Apert, tennis, commerce, boulangerie et épicerie.Le prix de vente de cette maison de 5 pièces est de 187 000 €.Contactez Jonathan LEBLANC (tél : (Numéro supprimé)) pour obtenir de plus amples renseignements sur la maison ou sur les modalités de vente.
L’actualité immobilière à La Chapelle-d'Angillon
27/11/2023
02/11/2023
30/10/2023
20/10/2023
16/10/2023
16/10/2023